| ||||||||||||||||||||||||||||||
Скачать Серия ИИ-04-15 Дополнение 1 к выпуску 0. Дополнительные монтажные схемы и узлыДата актуализации: 10.08.2017
|
| Обозначение: | Серия ИИ-04-15 |
| Обозначение англ: | Series ИИ-04-15 |
| Статус: | не действует |
| Название рус.: | Дополнение 1 к выпуску 0. Дополнительные монтажные схемы и узлы |
| Дата добавления в базу: | 01.09.2013 |
| Дата актуализации: | 05.05.2017 |
| Дата введения: | 01.11.1974 |
| Дата окончания срока действия: | 01.06.1983 |
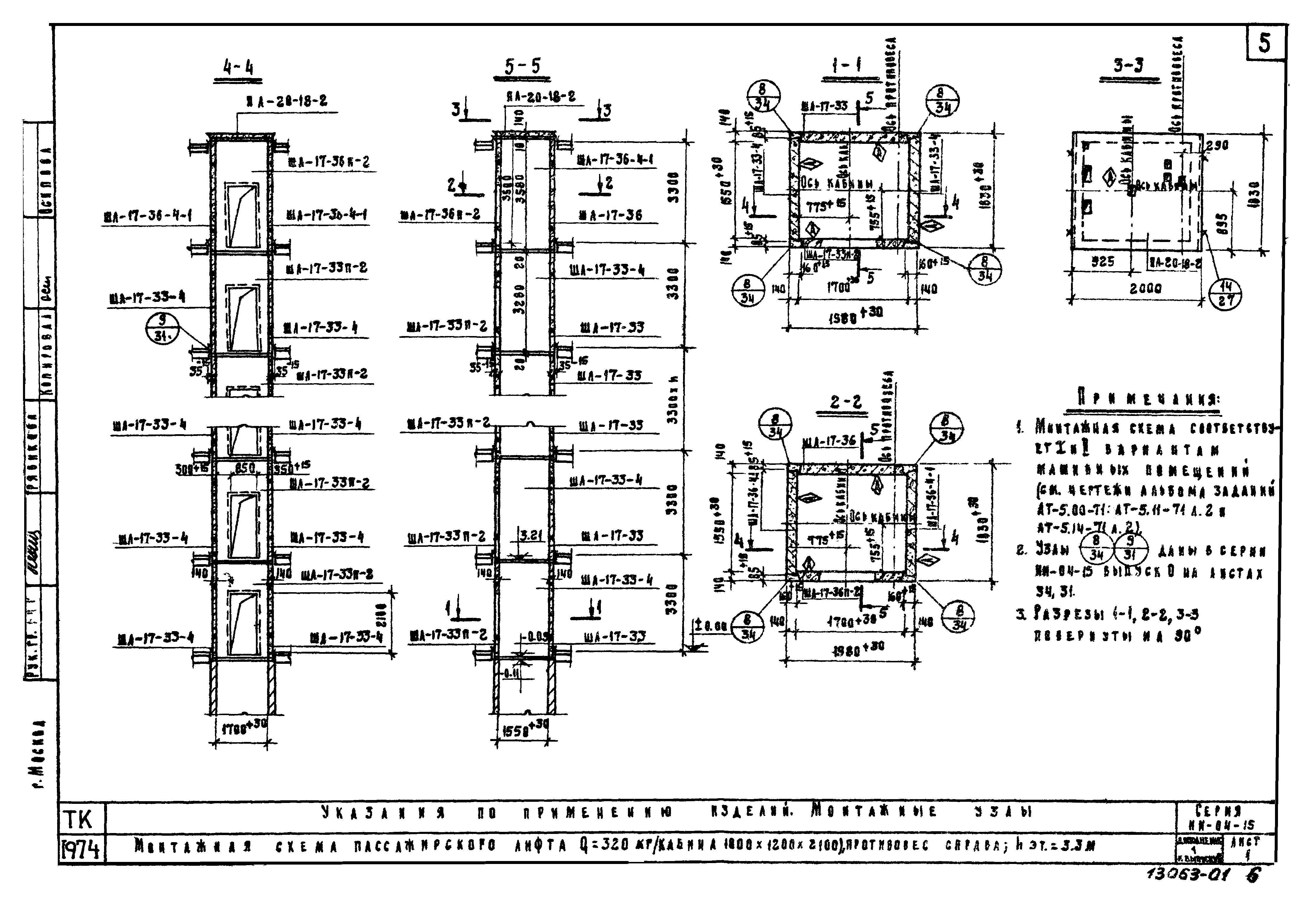
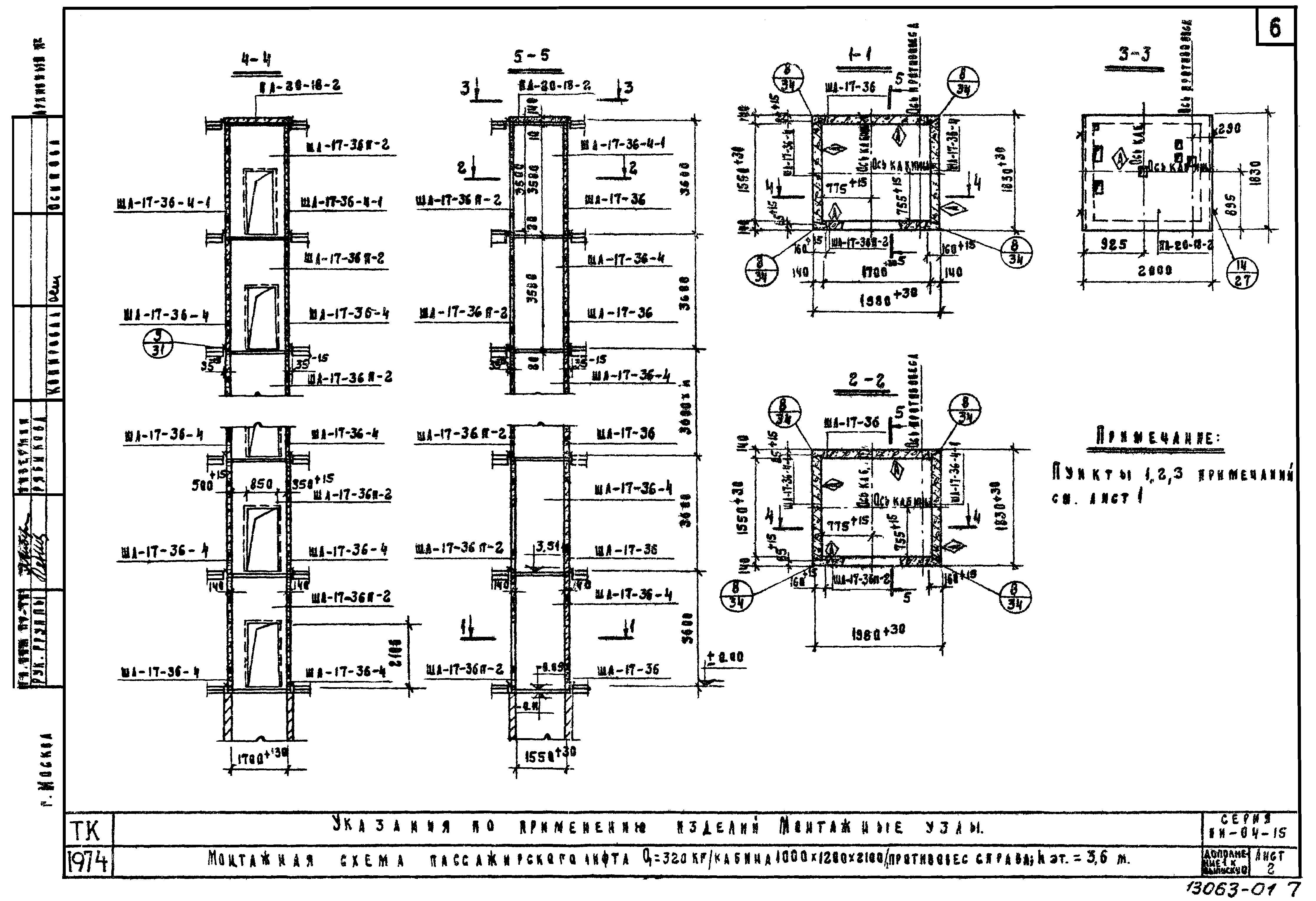
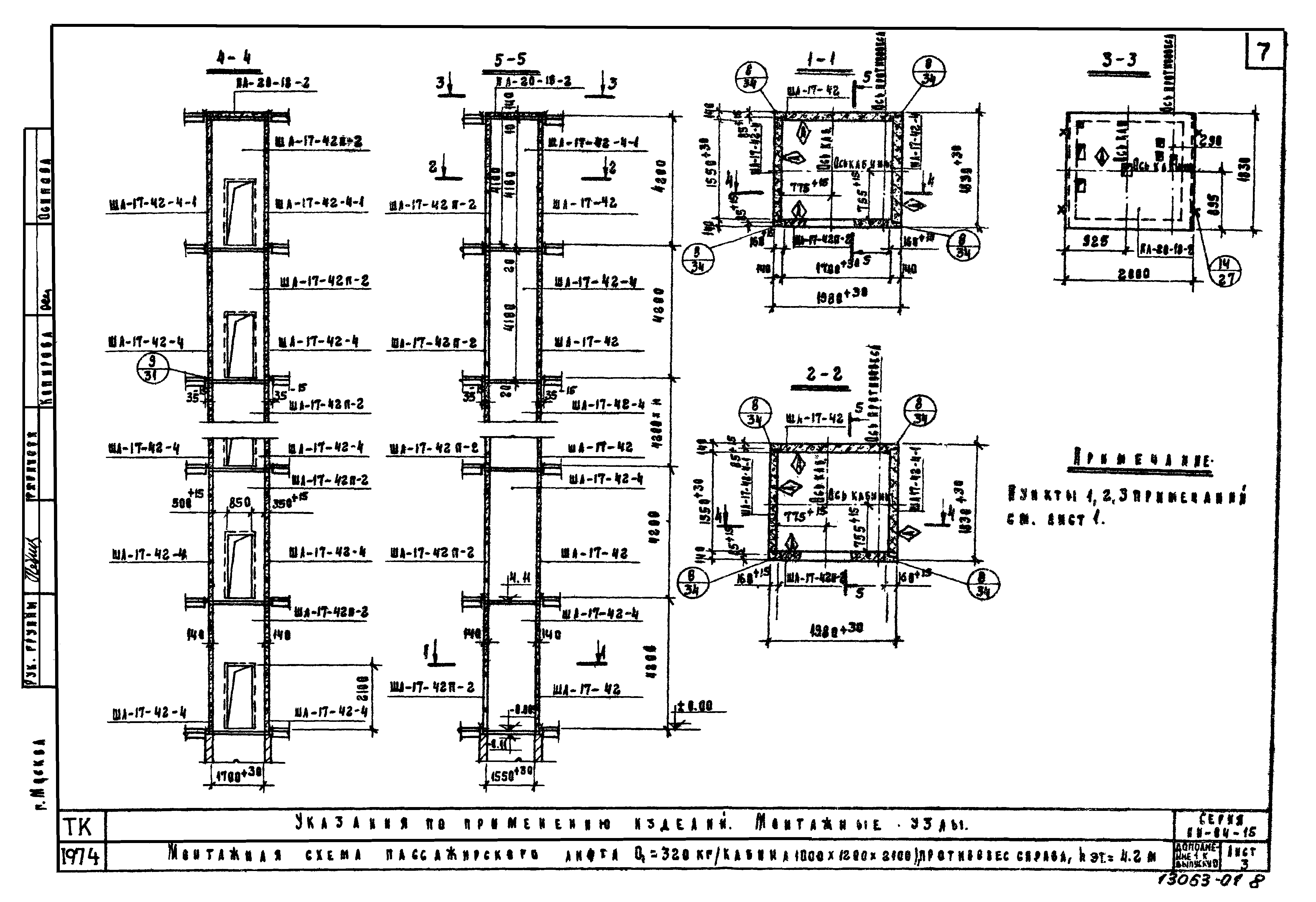
| Оглавление: | Содержание Пояснительная записка Монтажная схема пассажирского лифта Q = 320 кг (кабина 1000х1200х2100), противовес справа, h этажа = 3,3 м Монтажная схема пассажирского лифта Q = 320 кг (кабина 1000х1200х2100), противовес справа, h этажа = 3,6 м Монтажная схема пассажирского лифта Q = 320 кг (кабина 1000х1200х2100), противовес справа, h этажа = 4,2 м Монтажная схема пассажирского лифта Q = 320 кг (кабина 1000х1200х2100), противовес слева, h этажа = 3,3 м Монтажная схема пассажирского лифта Q = 320 кг (кабина 1000х1200х2100), противовес слева, h этажа = 3,6 м Монтажная схема пассажирского лифта Q = 320 кг (кабина 1000х1200х2100), противовес слева, h этажа = 4,2 м Монтажная схема пассажирского лифта Q = 500 кг (кабина 1200х1400х2100), противовес справа, h этажа = 3,3 м Монтажная схема пассажирского лифта Q = 500 кг (кабина 1200х1400х2100), противовес справа, h этажа = 3,6 м Монтажная схема пассажирского лифта Q = 500 кг (кабина 1200х1400х2100), противовес справа, h этажа = 4,2 м Монтажная схема пассажирского лифта Q = 500 кг (кабина 1200х1400х2100), противовес слева, h этажа = 3,3 м Монтажная схема пассажирского лифта Q = 500 кг (кабина 1200х1400х2100), противовес слева, h этажа = 3,6 м Монтажная схема пассажирского лифта Q = 500 кг (кабина 1200х1400х2100), противовес слева, h этажа = 4,2 м Монтажная схема пассажирского лифта Q = 500 кг (кабина 1200х2200х2100), противовес справа, h этажа = 3,3 м Монтажная схема пассажирского лифта Q = 500 кг (кабина 1200х2200х2100), противовес справа, h этажа = 3,6 м Монтажная схема пассажирского лифта Q = 500 кг (кабина 1200х2200х2100), противовес справа, h этажа = 4,2 м Монтажная схема пассажирского лифта Q = 500 кг (кабина 1200х2200х2100), противовес слева, h этажа = 3,3 м Монтажная схема пассажирского лифта Q = 500 кг (кабина 1200х2200х2100), противовес слева, h этажа = 3,6 м Монтажная схема пассажирского лифта Q = 500 кг (кабина 1200х2200х2100), противовес слева, h этажа = 4,2 м Монтажная схема пассажирского лифта Q = 500 кг (кабина 2200х1200х2100), противовес сзади, h этажа = 3,3 м Монтажная схема пассажирского лифта Q = 500 кг (кабина 2200х1200х2100), противовес сзади, h этажа = 3,6 м Монтажная схема пассажирского лифта Q = 500 кг (кабина 2200х1200х2100), противовес сзади, h этажа = 4,2 м Монтажная схема пассажирского лифта Q = 1000 кг (кабина 2200х1200х2100), противовес сзади, h этажа = 3,3 м Монтажная схема пассажирского лифта Q = 1000 кг (кабина 2200х1200х2100), противовес сзади, h этажа = 3,6 м Монтажная схема пассажирского лифта Q = 1000 кг (кабина 2200х1200х2100), противовес сзади, h этажа = 4,2 м Узлы 10 и 11 Узлы 12 и 15 Узлы 13 и 14 |
| Разработан: | ГипроНИИздрав Минздрава СССР |
| Утверждён: | 04.10.1974 Госгражданстрой (Gosgrazhdanstroy 225) |
| Расположен в: | |
| Чем заменён: |
































