Информационная система
«Ёшкин Кот»

Скачать базу одним архивом
Скачать обновления
История создания базы
Карта сайта

Скачать Типовой проект 281-1-135-148 Альбом I. Архитектурно-строительные чертежи

Дата актуализации: 10.08.2017

Типовой проект 281-1-135-148

Альбом I. Архитектурно-строительные чертежи

Обозначение: Типовой проект 281-1-135-148
Обозначение англ: 281-1-135-148
Статус:не определен законодательством
Название рус.:Альбом I. Архитектурно-строительные чертежи
Дата добавления в базу:01.09.2013
Дата актуализации:05.05.2017
Дата введения:14.09.1979
Оглавление:Заглавный лист
Характеристика проекта
План фундаментов, план раскладки цокольных панелей. Развертки
Вход №1 и вход №2
План 1 этажа. Фасады, разрезы
Ведомость отделочных работ. Спецификация столярных изделий
Монтажный план, монтажные фасады. План покрытия
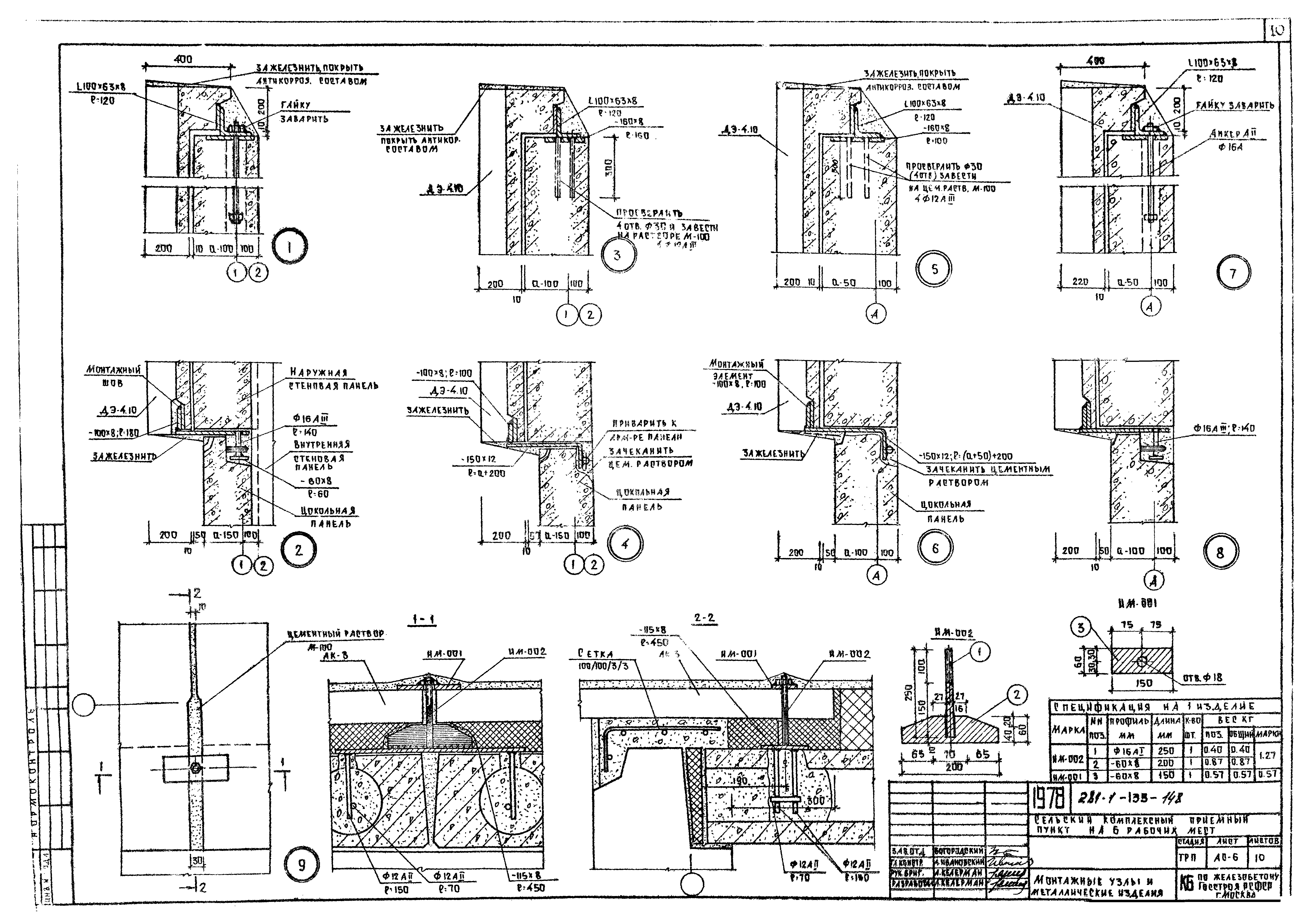
Монтажные узлы
Спецификация железобетонных изделий ниже отм. 0.000. Спецификация металла
Спецификация железобетонных изделий выше отм. 0.000
Спецификация металла выше отм. 0.000
Разработан: Гипробытпром
КБ по железобетону Госстроя РСФСР
Утверждён:27.08.1979 Минбытпром РСФСР (339)
Расположен в:Техническая документация Строительство Справочные документы Типовые строительные конструкции, изделия и узлы Общероссийский строительный каталог Общественные здания для строительства в сельской местности Предприятия бытового обслуживания населения (непроизводственного характера) и коммунального хозяйства Дома быта, комбинаты бытового обслуживания, комплексные приемные пункты, ателье
Типовой проект 281-1-135-148Типовой проект 281-1-135-148Типовой проект 281-1-135-148Типовой проект 281-1-135-148Типовой проект 281-1-135-148Типовой проект 281-1-135-148Типовой проект 281-1-135-148Типовой проект 281-1-135-148Типовой проект 281-1-135-148Типовой проект 281-1-135-148Типовой проект 281-1-135-148Типовой проект 281-1-135-148Типовой проект 281-1-135-148Типовой проект 281-1-135-148Типовой проект 281-1-135-148Типовой проект 281-1-135-148

© 2013 Ёшкин Кот :-) Карта сайта