Информационная система
«Ёшкин Кот»

Скачать базу одним архивом
Скачать обновления
История создания базы
Карта сайта

Скачать Типовой проект 231-1-125/75/-104 Альбом VIII. Проектная документация по переводу хозяйственно-бытовых помещений подвала на режим ПРУ

Дата актуализации: 10.08.2017

Типовой проект 231-1-125/75/-104

Альбом VIII. Проектная документация по переводу хозяйственно-бытовых помещений подвала на режим ПРУ

Обозначение: Типовой проект 231-1-125/75/-104
Обозначение англ: 231-1-125/75/-104
Статус:не определен законодательством
Название рус.:Альбом VIII. Проектная документация по переводу хозяйственно-бытовых помещений подвала на режим ПРУ
Дата добавления в базу:01.09.2013
Дата актуализации:05.05.2017
Дата введения:30.11.1984
Оглавление:Общие данные
Экспликация помещений. Технико-экономические показатели
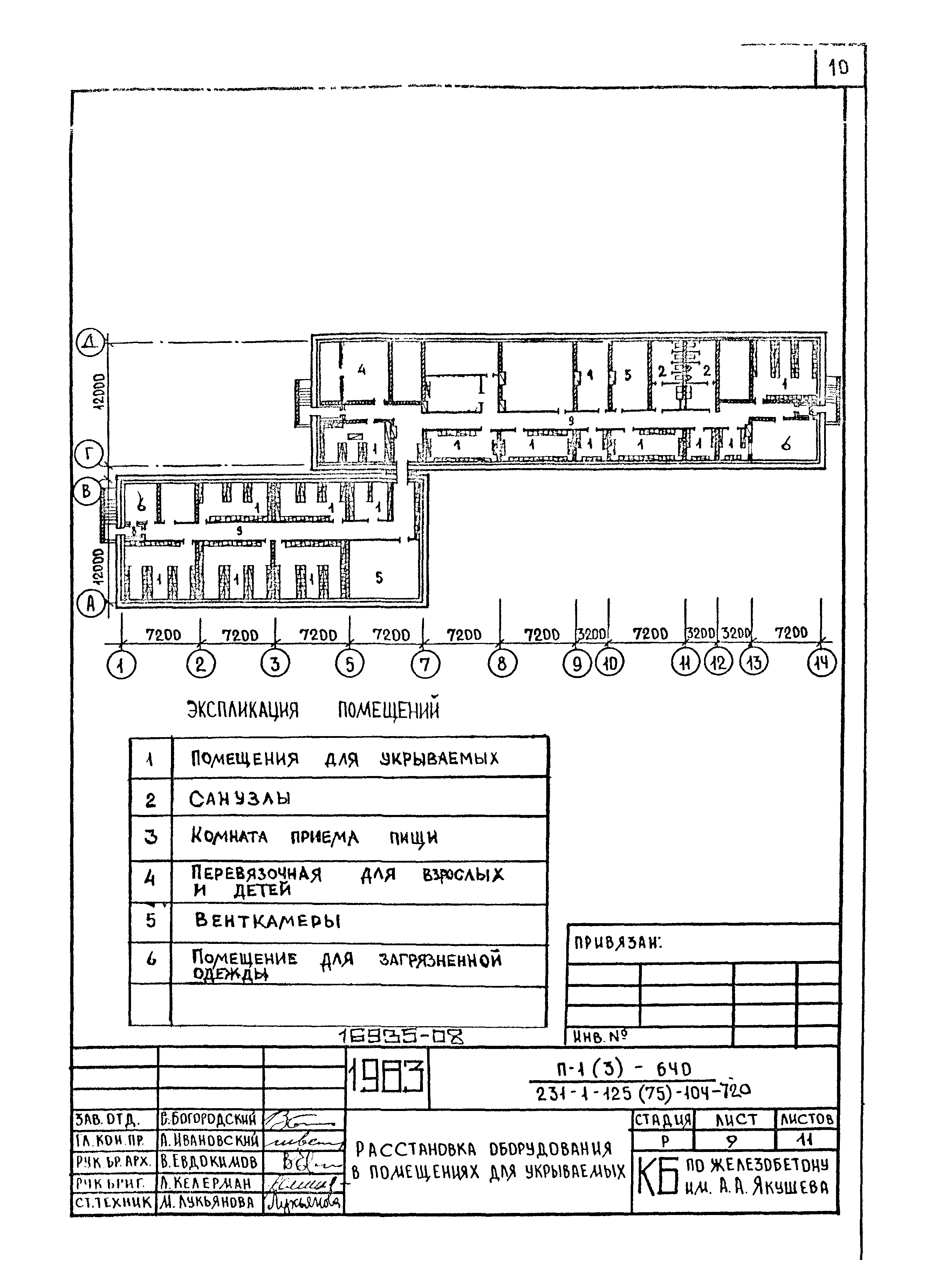
Расстановка оборудования в помещениях для укрываемых
Спецификация материалов
Разработан: КБ по железобетону им. А.А. Якушева
Утверждён:02.07.1979 Госстрой РСФСР (Russian Federation Gosstroy 43)
Расположен в:Техническая документация Строительство Справочные документы Типовые строительные конструкции, изделия и узлы Общероссийский строительный каталог Защитные сооружения гражданской обороны Типовые проекты защитных сооружений гражданской обороны для жилищно-гражданского строительства Для строительства в городах и поселках городского типа Встроенные помещения, приспосабливаемые под противорадиационные укрытия в общественных зданиях Противорадиационные укрытия в профессионально-технических, средних специальных учебных заведениях и учебных комбинатах Общественные здания в городах и поселках городского типа Профессионально-технические, средние специальные и высшие учебные заведения, учебные пункты и учебные комбинаты Профессионально-технические училища и учебные заведения для подготовки и переподготовки рабочих кадров
Типовой проект 231-1-125/75/-104Типовой проект 231-1-125/75/-104Типовой проект 231-1-125/75/-104Типовой проект 231-1-125/75/-104Типовой проект 231-1-125/75/-104Типовой проект 231-1-125/75/-104Типовой проект 231-1-125/75/-104Типовой проект 231-1-125/75/-104Типовой проект 231-1-125/75/-104Типовой проект 231-1-125/75/-104Типовой проект 231-1-125/75/-104Типовой проект 231-1-125/75/-104Типовой проект 231-1-125/75/-104Типовой проект 231-1-125/75/-104

© 2013 Ёшкин Кот :-) Карта сайта