Скачать Серия ТДК-Н-1-75/2 Выпуск 2. Часть I. Монолитные участки. Монолитные участки № 1 - 10а. Рабочие чертежиДата актуализации: 10.08.2017 Серия ТДК-Н-1-75/2
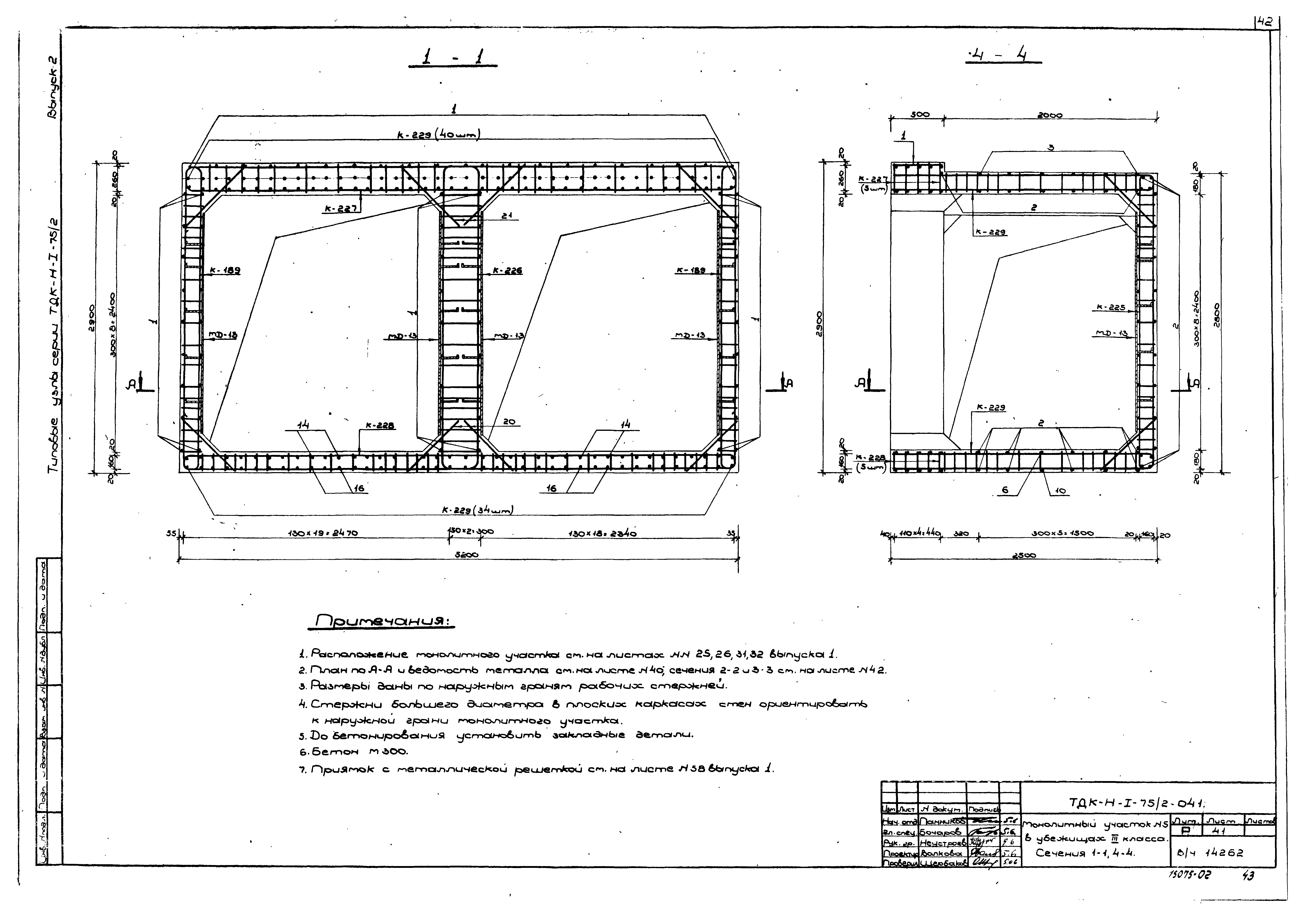
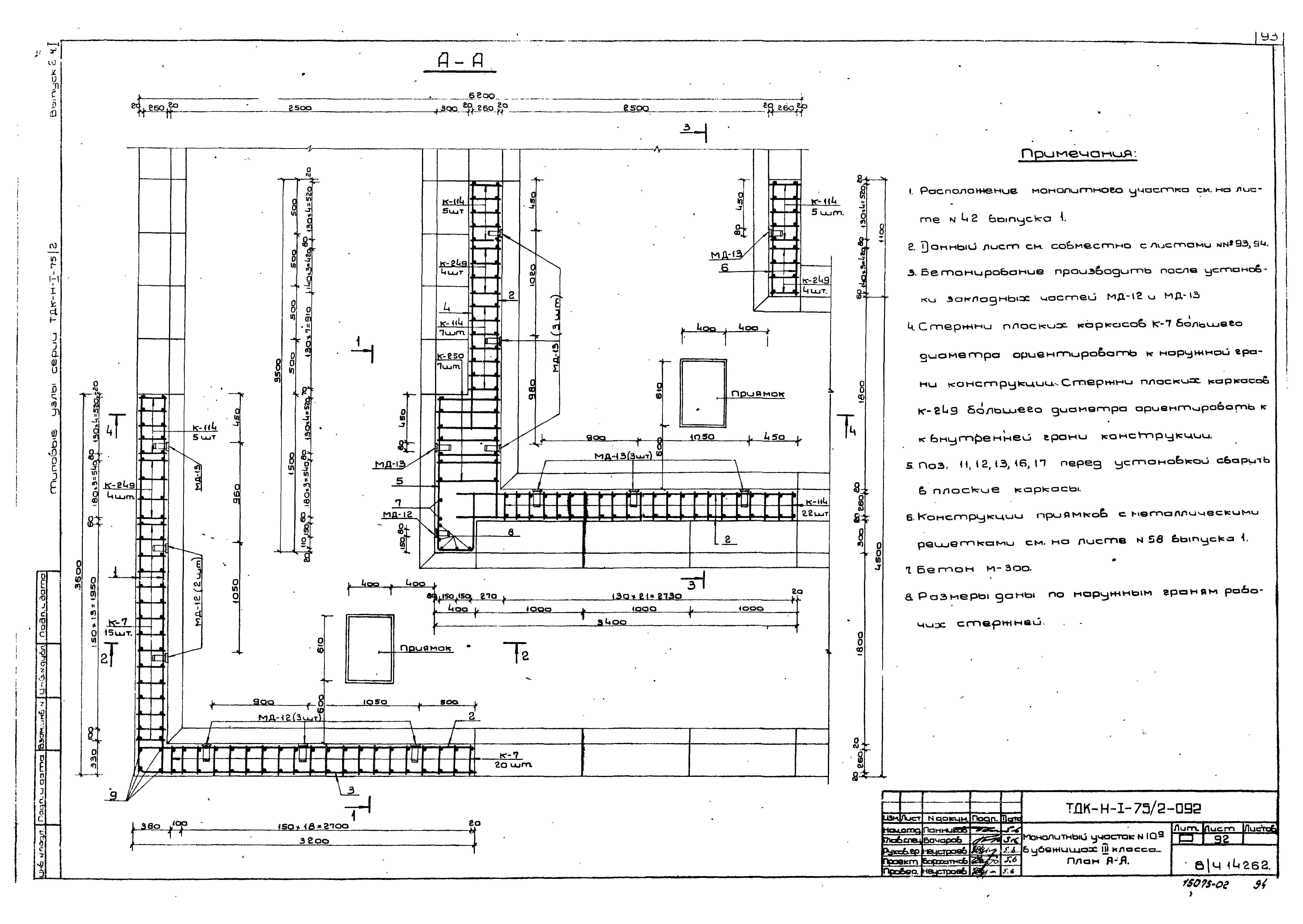
Выпуск 2. Часть I. Монолитные участки. Монолитные участки № 1 - 10а. Рабочие чертежиОбозначение: | Серия ТДК-Н-1-75/2 | Обозначение англ: | Series ТДК-Н-1-75/2 | Статус: | заменен | Название рус.: | Выпуск 2. Часть I. Монолитные участки. Монолитные участки № 1 - 10а. Рабочие чертежи | Дата добавления в базу: | 01.09.2013 | Дата актуализации: | 05.05.2017 | Дата введения: | 01.02.1984 | Оглавление: | Титульный лист Ведомость чертежей части 1 выпуска 2 Монолитный участок №1 в убежищах V класса. План А-А, сечение 1-1 Монолитный участок №1 в убежищах V класса. Сечения 2-2 и 3-3 Монолитный участок №1 в убежищах IV класса. План А-А, сечение 1-1 Монолитный участок №1 в убежищах IV класса. Сечения 2-2 и 3-3 Монолитный участок №1 в убежищах III класса. План А-А, сечение 1-1 Монолитный участок №1 в убежищах III класса. Сечения 2-2 и 3-3 Монолитный участок №1 в убежищах II класса. План А-А, сечение 1-1 Монолитный участок №1 в убежищах II класса. Сечения 2-2 и 3-3 Монолитный участок №2 в убежищах V класса. План А-А, сечение 1-1 Монолитный участок №2 в убежищах V класса. Сечения 2-2 и 3-3 Монолитный участок №2 в убежищах IV класса. План А-А, сечение 1-1 Монолитный участок №2 в убежищах IV класса. Сечения 2-2 и 3-3 Монолитный участок №2 в убежищах III класса. План А-А, сечение 1-1 Монолитный участок №2 в убежищах III класса. Сечения 2-2 и 3-3 Монолитный участок №2а в убежищах II класса. План А-А, сечение 1-1 Монолитный участок №2а в убежищах II класса. Сечения 2-2 и 3-3 Монолитный участок №3 в убежищах V класса. План А-А, сечение 1-1 Монолитный участок №3 в убежищах V класса. Сечения 2-2 и 3-3 Монолитный участок №3 в убежищах IV класса. План А-А, сечение 1-1 Монолитный участок №3 в убежищах IV класса. Сечения 2-2 и 3-3 Монолитный участок №3а в убежищах III класса. План А-А, сечение 1-1 Монолитный участок №3а в убежищах III класса. Сечения 2-2 и 3-3 Монолитный участок №3а в убежищах II класса. План А-А, сечение 1-1 Монолитный участок №3а в убежищах II класса. Сечения 2-2 и 3-3 Монолитный участок №4 в убежищах V класса. План А-А, сечение 1-1 Монолитный участок №4 в убежищах V класса. Сечения 2-2 и 3-3 Монолитный участок №4 в убежищах IV класса. План А-А, сечение 1-1 Монолитный участок №4 в убежищах IV класса. Сечения 2-2 и 3-3 Монолитный участок №4а в убежищах III класса. План А-А, сечение 1-1 Монолитный участок №4а в убежищах III класса. Сечения 2-2 и 3-3 Монолитный участок №4а в убежищах II класса. План А-А, сечение 1-1 Монолитный участок №4а в убежищах II класса. Сечения 2-2 и 3-3 Монолитный участок №5 в убежищах V класса. План А-А Монолитный участок №5 в убежищах V класса. Сечения 1-1, 4-4 Монолитный участок №5 в убежищах V класса. Сечения 2-2 и 3-3 Монолитный участок №5 в убежищах IV класса. План А-А Монолитный участок №5 в убежищах IV класса. Сечения 1-1, 4-4 Монолитный участок №5 в убежищах IV класса. Сечения 2-2 и 3-3 Монолитный участок №5 в убежищах III класса. План А-А Монолитный участок №5 в убежищах III класса. Сечения 1-1, 4-4 Монолитный участок №5 в убежищах III класса. Сечения 2-2 и 3-3 Монолитный участок №5а в убежищах II класса. План А-А Монолитный участок №5а в убежищах II класса. Сечения 1-1, 4-4 Монолитный участок №5а в убежищах II класса. Сечения 2-2 и 3-3 Монолитный участок №6 в убежищах V класса. План А-А Монолитный участок №6 в убежищах V класса. Сечения 1-1 - 3-3 Монолитный участок №6 в убежищах V класса. Сечение 4-4 Монолитный участок №6 в убежищах IV класса. План А-А Монолитный участок №6 в убежищах IV класса. Сечения 1-1 - 3-3 Монолитный участок №6 в убежищах IV класса. Сечение 4-4 Монолитный участок №6а в убежищах III класса. План А-А Монолитный участок №6а в убежищах III класса. Сечения 1-1 - 3-3 Монолитный участок №6а в убежищах III класса. Сечение 4-4 Монолитный участок №6а в убежищах II класса. План А-А Монолитный участок №6а в убежищах II класса. Сечения 1-1 - 3-3 Монолитный участок №6а в убежищах II класса. Сечение 4-4 Монолитный участок №7 в убежищах V класса. План А-А, сечение 1-1 Монолитный участок №7 в убежищах V класса. Сечения 2-2 и 3-3 Монолитный участок №7 в убежищах IV класса. План А-А, сечение 1-1 Монолитный участок №7 в убежищах IV класса. Сечения 2-2 и 3-3 Монолитный участок №7 в убежищах III класса. План А-А, сечение 1-1 Монолитный участок №7 в убежищах III класса. Сечения 2-2 и 3-3 Монолитный участок №7а в убежищах II класса. План А-А, сечение 1-1 Монолитный участок №7а в убежищах II класса. Сечения 2-2 и 3-3 Монолитный участок №8 в убежищах V класса. План А-А, сечение 1-1 Монолитный участок №8 в убежищах V класса. Сечения 2-2 и 3-3 Монолитный участок №8 в убежищах IV класса. План А-А, сечение 1-1 Монолитный участок №8 в убежищах IV класса. Сечения 2-2 и 3-3 Монолитный участок №8а в убежищах III класса. План А-А, сечение 1-1 Монолитный участок №8а в убежищах III класса. Сечения 2-2 и 3-3 Монолитный участок №8а в убежищах II класса. План А-А, сечение 1-1 Монолитный участок №8а в убежищах II класса. Сечения 2-2 и 3-3 Монолитный участок №9 в убежищах V класса. План А-А Монолитный участок №9 в убежищах V класса. Сечения 1-1, 4-4 Монолитный участок №9 в убежищах V класса. Сечения 2-2, 3-3 Монолитный участок №9 в убежищах IV класса. План А-А Монолитный участок №9 в убежищах IV класса. Сечения 1-1, 4-4 Монолитный участок №9 в убежищах IV класса. Сечения 2-2, 3-3 Монолитный участок №9 в убежищах III класса. План А-А Монолитный участок №9 в убежищах III класса. Сечения 1-1, 4-4 Монолитный участок №9 в убежищах III класса. Сечения 2-2, 3-3 Монолитный участок №9а в убежищах II класса. План А-А Монолитный участок №9а в убежищах II класса. Сечения 1-1, 4-4 Монолитный участок №9а в убежищах II класса. Сечения 2-2, 3-3 Монолитный участок №10 в убежищах V класса. План А-А Монолитный участок №10 в убежищах V класса. Сечения 1-1 - 3-3 Монолитный участок №10 в убежищах V класса. Сечение 4-4 Монолитный участок №10 в убежищах IV класса. План А-А Монолитный участок №10 в убежищах IV класса. Сечения 1-1 - 3-3 Монолитный участок №10 в убежищах IV класса. Сечение 4-4 Монолитный участок №10а в убежищах III класса. План А-А Монолитный участок №10а в убежищах III класса. Сечения 1-1 - 3-3 Монолитный участок №10а в убежищах III класса. Сечение 4-4 Монолитный участок №10а в убежищах II класса. План А-А, сечение 1-1 Монолитный участок №10а в убежищах II класса. Сечения 1-1 - 3-3 Монолитный участок №10а в убежищах II класса. Сечение 4-4 | Разработан: | В/ч 14262
| Утверждён: | 31.01.1977 Госстрой СССР (Государственный комитет Совета Министров СССР по делам строительства) (USSR Gosstroy 1)
| Расположен в: |
| Чем заменён: | |
                                                                                                 
|