Скачать Типовой проект Ау-II,III,IV-50-74/23 Альбом I. Пояснительная записка и чертежиДата актуализации: 10.08.2017 Типовой проект Ау-II,III,IV-50-74/23
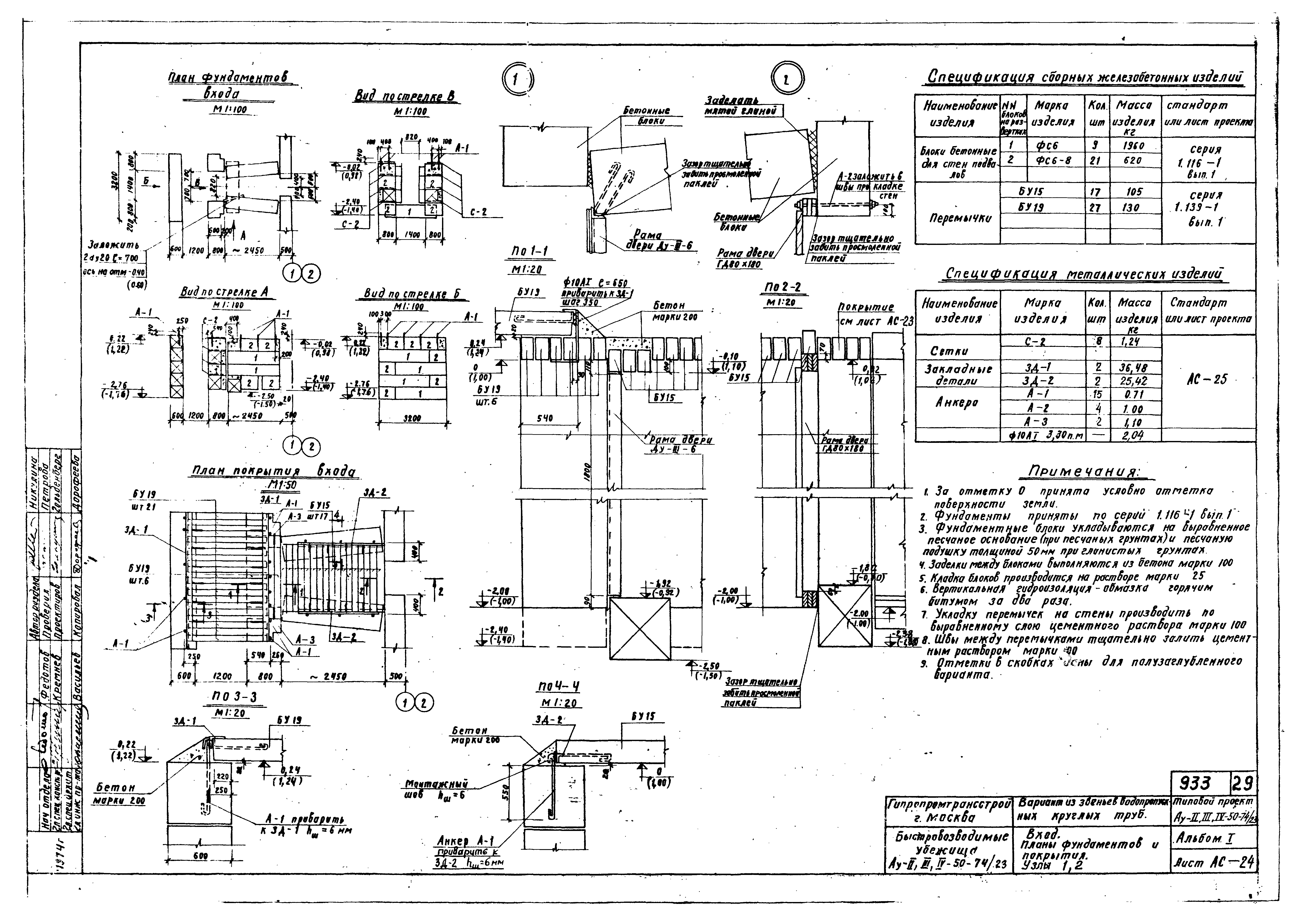
Альбом I. Пояснительная записка и чертежиОбозначение: | Типовой проект Ау-II,III,IV-50-74/23 | Обозначение англ: | Ау-II,III,IV-50-74/23 | Статус: | не определен законодательством | Название рус.: | Альбом I. Пояснительная записка и чертежи | Дата добавления в базу: | 01.09.2013 | Дата актуализации: | 05.05.2017 | Дата введения: | 09.06.1975 | Оглавление: | Титульный лист Содержание альбома Пояснительная записка Архитектурно-строительная часть Вариант из сборных блоков Заглавный лист План. Фрагмент входа. Разрезы 1-1 - 4-4 План фундаментов. Развертки стен. Сечения 1-1 - 4-4 План покрытия. Сечения 1-1 - 5-5 Вход. План фундаментов и покрытия. Узлы 1 и 2 Панели перекрытий ПТ59-12-И1; ПТ5-12-И2; ПТ59-12-И3 Сетки. Закладные детали. Анкера Герметическая дверь ГД80х180. Общий вид двери Герметическая дверь ГД80х180. Металлические детали Деревянные нары. Лестницы №1 и №2. Водосборный приямок Сводные спецификации Вариант из звеньев водопропускных прямоугольных труб Заглавный лист План. Фрагмент входа. Разрезы 1-1 - 4-4 План раскладки блоков. Развертки стен, сечения Вход. Планы фундаментов и покрытия. Узлы 1 и 2 Сетки. Закладные детали. Анкера Герметическая дверь ГД80х180. Общий вид двери Герметическая дверь ГД80х180. Металлические детали Деревянные нары. Лестницы №1 и №2. Водосборный приямок Сводные спецификации Вариант из звеньев водопропускных круглых труб Заглавный лист План. Фрагмент входа. Разрезы 1-1 - 4-4 План раскладки блоков и сечения Вход. Планы фундаментов и покрытия. Узлы 1 и 2 Сетки. Закладные детали. Анкера Герметическая дверь ГД80х180. Общий вид двери Герметическая дверь ГД80х180. Металлические детали Деревянные нары. Лестницы №1 и №2. Водосборный приямок Сводные спецификации Санитарно-техническая и электротехническая части Заглавный лист. Принципиальная схема вентиляции убежища План. Вытяжная установка ВУ Приточная установка ПУ-1 Приточная установка ПУ-2 Заказная спецификация. Вытяжная установка ВУ. Приточная установка ПУ-1 Заказная спецификация. Приточная установка ПУ-2 Бак на 100 литров для хранения запаса питьевой воды Бак на 100 литров для хранения запаса питьевой воды. Узлы I, II, III. Детали Фекальный резервуар емкостью 0,2 куб. м Электрооборудование. Заказная спецификация Электрооборудование. План, принципиальная схема распределительной сети Организация производства работ Организация строительства | Разработан: | Гипропромтрансстрой
| Утверждён: | 09.06.1975 МПС (Ministry of Railroads П-16481)
| Расположен в: |
|
                                           
|