| ||||||||||||||||||||||||||||||
Скачать Серия 1.460.3-15 Выпуск 1. Покрытия пролетами 24, 30 и 36 м для зданий, возводимых в несейсмических районах с расчетными температурами минус 40 градусов Цельсия и выше. Чертежи КМДата актуализации: 10.08.2017
|
| Обозначение: | Серия 1.460.3-15 |
| Обозначение англ: | Series 1.460.3-15 |
| Статус: | не действует |
| Название рус.: | Выпуск 1. Покрытия пролетами 24, 30 и 36 м для зданий, возводимых в несейсмических районах с расчетными температурами минус 40 градусов Цельсия и выше. Чертежи КМ |
| Дата добавления в базу: | 01.09.2013 |
| Дата актуализации: | 05.05.2017 |
| Дата введения: | 01.01.1983 |
| Дата окончания срока действия: | 01.07.1988 |
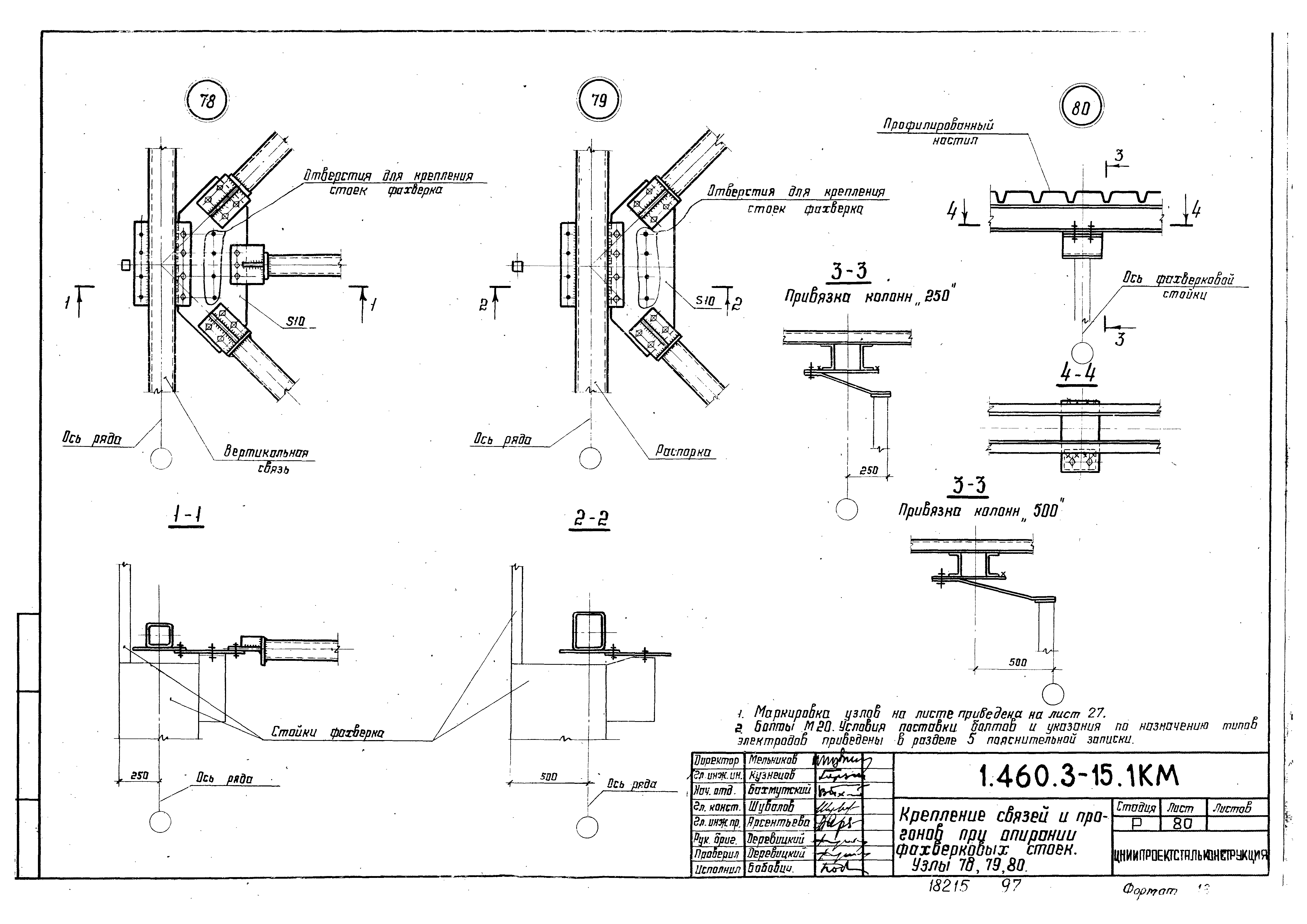
| Оглавление: | Пояснительная записка Пример пользования материалами данного выпуска Указания для выбора марки стропильной фермы при наличии дополнительных узловых нагрузок Эквивалентные нагрузки от подвесных кранов. Шаг стропильных ферм 6 м Эквивалентные нагрузки на стропильные фермы от снега и фонаря Схемы стропильных и подстропильных ферм с маркировкой заводских и монтажных узлов Схемы стропильных ферм при наличии подвесного транспорта с маркировкой заводских узлов Схемы расположения связей по верхним поясам стропильных ферм при железобетонных плитах в покрытии. Пролеты зданий 24 и 30 м. Шаг ферм 6 м Схемы расположения связей по верхним поясам стропильных ферм при железобетонных плитах в покрытии. Пролеты зданий 36 м. Шаг ферм 6 м Схемы расположения связей по верхним поясам стропильных ферм при железобетонных плитах в покрытии. Пролеты зданий 24 и 30 м. Шаг ферм 12 м Схемы расположения связей по верхним поясам стропильных ферм при железобетонных плитах в покрытии. Пролеты зданий 36 м. Шаг ферм 12 м Схемы расположения прогонов и связей по верхним поясам стропильных ферм при стальном профилированном настиле в покрытии. Пролеты зданий 24 и 30 м. Шаг ферм 6 м Схемы расположения прогонов и связей по верхним поясам стропильных ферм при стальном профилированном настиле в покрытии. Пролеты зданий 36 м. Шаг ферм 6 м Схемы расположения прогонов и связей по верхним поясам стропильных ферм при стальном профилированном настиле в покрытии. Пролеты зданий 24 и 30 м. Шаг ферм 12 м Схемы расположения прогонов и связей по верхним поясам стропильных ферм при стальном профилированном настиле в покрытии. Пролеты зданий 36 м. Шаг ферм 12 м Схемы расположения связей I-го типа по нижним поясам стропильных ферм. Пролеты зданий 24 и 30 м. Шаг ферм 6 м Схемы расположения связей I-го типа по нижним поясам стропильных ферм. Пролеты зданий 36 м. Шаг ферм 6 м Схемы расположения связей I-го типа по нижним поясам стропильных ферм. Пролеты зданий 24 и 30 м. Шаг ферм 12 м Схемы расположения связей I-го типа по нижним поясам стропильных ферм. Пролеты зданий 36 м. Шаг ферм 12 м Схемы расположения связей II-го типа по нижним поясам стропильных ферм. Пролеты зданий 24, 30 и 36 м. Шаг ферм 6 м Схемы расположения связей II-го типа по нижним поясам стропильных ферм. Пролеты зданий 24, 30 и 36 м. Шаг ферм 12 м Схемы расположения подвесных путей и тормозных балок "У" по нижним поясам стропильных ферм. Пролеты зданий 24 м Схемы расположения подвесных путей и тормозных балок "У" по нижним поясам стропильных ферм. Пролеты зданий 30 м Схемы расположения подвесных путей и тормозных балок "У" по нижним поясам стропильных ферм. Пролеты зданий 36 м Продольные разрезы 2-2; 5-5; 7-7; 9-9; 11-11; 14-14; 17-17; 19-19 в пролетах зданий Продольные разрезы 3-3; 4-4; 8-8; 12-12; 13-13; 18-18 по рядам колонн. Колонны стальные. Здания с мостовыми кранами Продольные разрезы 3-3; 4-4; 8-8; 12-12; 13-13; 18-18 по рядам колонн. Колонны стальные и железобетонные. Здания без мостовых кранов Продольные разрезы 3-3; 4-4; 8-8; 12-12; 13-13; 18-18 по рядам колонн. Колонны железобетонные. Здания с мостовыми и без мостовых кранов Схема расположения связей по нижним поясам стропильных ферм с шагом 12 м при опирании фахверковых стоек. Указания к схемам расположения прогонов и связей Схемы расположения распорок по верхним поясам стропильных ферм. Таблица для выбора схем Схемы расположения растяжек по нижним поясам стропильных ферм Таблица для выбора схем расположения растяжек по нижним поясам стропильных ферм Сортамент стропильных ферм для пролетов зданий 24 м Сортамент стропильных ферм для пролетов зданий 30 м Сортамент стропильных ферм для пролетов зданий 36 м Сортамент стропильных ферм пролетами 24, 30 и 36 м для зданий с подвесными кранами Сортамент подстропильных ферм Сортамент опорных стоек Сортамент распорок, раскосов, растяжек Сортамент вертикальных связей пролетом 5,5 и 6 м Сортамент вертикальных связей пролетом 11,5 и 12 м Сортаменты профилированных настилов и прогонов Таблица для выбора марок опорных стоек Таблицы для выбора марок поясов и раскосов горизонтальных связей по нижним поясам стропильных ферм в торце здания Таблицы для выбора марок вертикальных связей и распорок, расположенных по рядам колонн Схемы раскладки настила. Таблица для выбора марок настила Маркировочные схемы прогонов. Таблица для выбора марок прогонов Заводские узлы стропильных ферм. Узлы 1, 2, 3 Заводские узлы стропильных ферм. Узлы 4, 5, 6 Заводские узлы стропильных ферм. Узлы 7, 8 Заводские узлы и монтажные стыки стропильных ферм. Узлы 9, 10, 11, 12 Монтажные стыки нижних поясов стропильных ферм на накладках. Узлы 13, 14 Монтажные стыки нижних поясов стропильных ферм на фланцах. Узлы 15, 16. Таблица для выбора марок фланцевых соединений Сортамент фланцевых соединений нижнего пояса Заводской узел подстропильной фермы. Узел 17 Заводской узел подстропильной фермы. Узел 18 Узлы стропильных ферм при наличии подвесного транспорта. Узлы 19, 20, 21, 22, 23 Опорные стойки СК-1; СК-2; СК-3 Опорные стойки СК-4; СК-5; СК-6; СК-7 Опорные стойки СК-8; СК-9; СК-10; СК-11; СК-12 Схемы и узлы вертикальных связей Р1 и Т1 Схемы и узлы вертикальных связей ВС1; ВС2; ВС3; ВС4; ВС5; ВС6 Крепление связей по верхним поясам стропильных ферм. Узлы 40, 41, 42 Крепление прогонов и связей по верхним поясам стропильных ферм. Узлы 44, 45, 46 Крепление прогонов и связей по верхним поясам стропильных ферм. Узлы 47, 48, 49 Крепление прогонов и связей по верхним поясам стропильных ферм. Узлы 50, 51, 52 Крепление связей и элементов фонарей по верхним поясам стропильных ферм. Узлы 53, 54, 55 Крепление прогонов и связей по верхним поясам стропильных ферм. Узлы 56, 57, 58 Крепление прогонов и связей по верхним поясам стропильных ферм. Узлы 43, 59, 60 Крепление прогонов, связей и элементов фонарей по верхним поясам стропильных ферм. Узлы 61, 62, 63 Крепление прогонов, связей и элементов фонарей по верхним поясам стропильных ферм. Узлы 64, 65, 81 Крепление связей по нижним поясам стропильных ферм. Узел 66 Крепление связей по нижним поясам стропильных ферм. Узлы 67, 68, 82 Крепление связей по нижним поясам стропильных ферм. Узлы 69, 70, 71, 72 Крепление связей и тормозных балок по нижним поясам стропильных ферм. Узлы 73, 74, 75 Крепление стропильных и подстропильных ферм к опорным стойкам и опорных стоек к колоннам. Узел 76 Крепление стропильных ферм к подстропильным фермам. Узел 77 Крепление связей и прогонов при опирании фахверковых стоек. Узлы 78, 79, 80 Расположение отверстий в верхних и нижних поясах стропильных ферм L = 24 м Расположение отверстий в верхних и нижних поясах стропильных ферм L = 30 м Расположение отверстий в верхних и нижних поясах стропильных ферм L = 36 м Схемы раскладки профилированного настила. Узлы крепления профилированного настила к прогонам Узлы крепления профилированного настила к прогонам Спецификация стали стропильных ферм пролетом 24 м Спецификация стали стропильных ферм пролетом 30 м Спецификация стали стропильных ферм пролетом 36 м Спецификация стали подстропильных ферм Усилия в стержнях стропильной фермы пролетом 24 м от единичных нагрузок Усилия в стержнях стропильных ферм пролетами 30 и 36 м от единичных нагрузок Усилия от единичных нагрузок в элементах связей по нижним поясам стропильных ферм Несущая способность стержней поясов и стоек стропильных ферм Несущая способность раскосов стропильных ферм Расчетные нагрузки от ветра с торца здания на средний ряд колонн Варианты крепления распределительной балки, пешеходных мостиков и трубопроводов Расчетные нагрузки на фермы от подвесных кранов |
| Разработан: | ЦНИИпроектстальконструкция ВНИКТИстальконструкция Минмонтажспецстроя СССР |
| Утверждён: | 20.09.1982 Госстрой СССР (Государственный комитет Совета Министров СССР по делам строительства) (USSR Gosstroy 217) |
| Расположен в: | |
| Заменяет собой: |



















































































































