Информационная система
«Ёшкин Кот»

Скачать базу одним архивом
Скачать обновления
История создания базы
Карта сайта

Скачать Серия У-02-01 Компоновка фильтро-вентиляционного оборудования убежищ гражданской обороны

Дата актуализации: 10.08.2017

Серия У-02-01

Компоновка фильтро-вентиляционного оборудования убежищ гражданской обороны

Обозначение: Серия У-02-01
Обозначение англ: Series У-02-01
Статус:действует
Название рус.:Компоновка фильтро-вентиляционного оборудования убежищ гражданской обороны
Дата добавления в базу:01.09.2013
Дата актуализации:05.05.2017
Дата введения:01.06.1973
Оглавление:Содержание альбома
Пояснительная записка
Перечень вариантов
Условные обозначения
Убежище вместимостью 300 человек. Вариант I. Установка П1, П2. Схемы систем П1, П2
Убежище вместимостью 300 человек. Вариант II. Установка П1, П2. Схемы систем П1, П2
Убежище вместимостью 300 человек. Вариант III. Установка П1, П2. Схемы систем П1, П2
Убежище вместимостью 300 человек. Вариант I, II, III. Спецификация марок установок П1, П2
Убежище вместимостью 300 человек. Вариант IV. Установка П1, П2. Схемы систем П1, П2
Убежище вместимостью 300 человек. Вариант V. Установки П1, П2, В1. Схемы систем П1, П2, В1
Убежище вместимостью 300 человек. Вариант IV, V. Спецификация марок установок П1, П2
Убежище вместимостью 450 человек. Вариант I. Установка П1, П2. Схемы систем П1, П2
Убежище вместимостью 450 человек. Вариант II. Установка П1, П2. Схемы систем П1, П2
Убежище вместимостью 450 человек. Вариант III. Установка П1, П2. Схемы систем П1, П2. Схемы холодоснабжения установок П1, П2
Убежище вместимостью 450 человек. Вариант I, II, III. Спецификация марок установок П1, П2
Убежище вместимостью 450 человек. Вариант IV. Установки П1, П2. План с размещением кондиционеров
Убежище вместимостью 450 человек. Вариант V. Схемы систем П1, П2. Система оборотного водоснабжения кондиционеров К-12С. Спецификация марок установок П1, П2
Убежище вместимостью 600 человек. Вариант I. Установки П1, П2. Схемы систем П1, П2
Убежище вместимостью 600 человек. Вариант II. Установки П1, П2. Схемы систем П1, П2
Убежище вместимостью 600 человек. Вариант I, II. Спецификация марок установок П1, П2
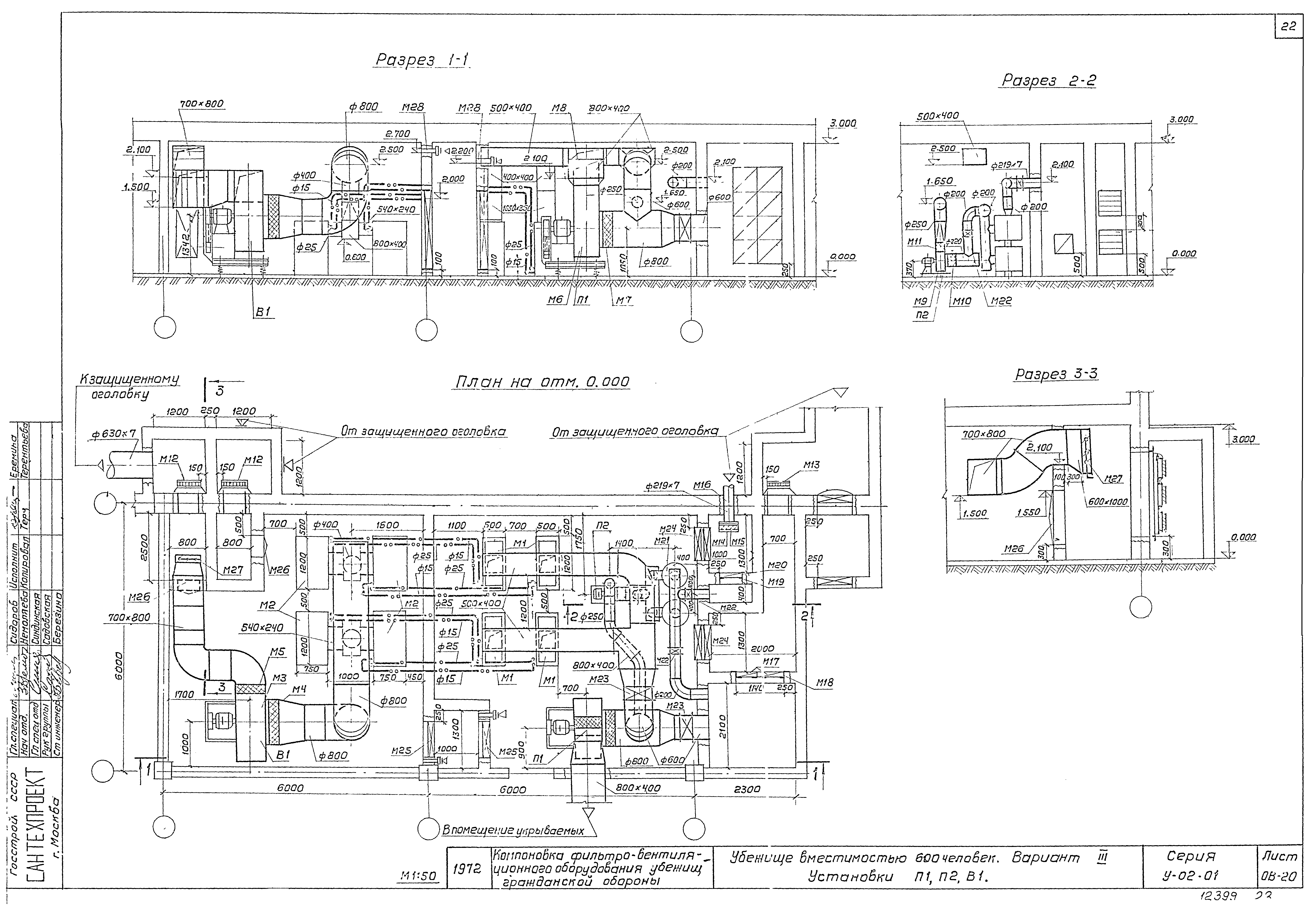
Убежище вместимостью 600 человек. Вариант III. Установки П1, П2, В1
Убежище вместимостью 600 человек. Вариант III. Установки П1, П2, В1. Спецификация марок установок П1, П2, В1
Убежище вместимостью 900 человек. Вариант I. Установки П1, П2
Убежище вместимостью 900 человек. Вариант I. Схема систем П1, П2. Спецификация марок установок П1, П2
Убежище вместимостью 900 человек. Вариант II. Установки П1, П2
Убежище вместимостью 900 человек. Вариант II. Схема систем П1, П2. Спецификация марок установок П1, П2
Убежище вместимостью 900 человек. Вариант III. Установки П1, П2
Убежище вместимостью 900 человек. Вариант III. Схемы систем П1, П2. Система холодоснабжения установок П1, П2. Спецификация марок установок П1, П2
Убежище вместимостью 900 человек. Вариант IV. Установки П1, П2
Убежище вместимостью 900 человек. Вариант IV. Схема систем П1, П2. Система холодоснабжения установок П1, П2. Спецификация марок установок П1, П2
Убежище вместимостью 1200 человек. Вариант I. Установки П1, П2
Убежище вместимостью 1200 человек. Вариант I. Схемы систем П1, П2. Спецификация марок установок П1, П2
Убежище вместимостью 1200 человек. Вариант II. Установка П1. Схема системы П1. Спецификация марок установки П1
Убежище вместимостью 1200 человек. Вариант II. Установка П2. Схема системы П2. Спецификация марок установки П2
Убежище вместимостью 1200 человек. Вариант III. Установки П1, П2
Убежище вместимостью 1200 человек. Вариант III. Установки П1, П2. Схема систем П1, П2
Убежище вместимостью 1200 человек. Вариант III. Система оборотного водоснабжения. Система холодоснабжения установок П1, П2. Спецификация марок установок П1, П2
Убежище вместимостью 300 человек. Вариант А. Убежище вместимостью 600 человек. Вариант Б. Установки В1, В2. Спецификация марок установок В1, В2
Убежище вместимостью 900 и 1200 человек. Варианты А, Б, В. Установки В1
Убежище вместимостью 450 человек. Вариант В. Убежище вместимостью 600 человек. Вариант Г. Установки ВЕ1, ВЕ2. Спецификация марок установок ВЕ1, ВЕ2
Убежище вместимостью 900 и 1200 человек. Варианты Г, Д. Установки В1, В2. Спецификация марок установок В1, В2
Разработан: ГПИ Сантехпроект Госстроя СССР
Утверждён:23.03.1973 Госстрой СССР (Государственный комитет Совета Министров СССР по делам строительства) (USSR Gosstroy )
Расположен в:Техническая документация Строительство Справочные документы Типовые строительные конструкции, изделия и узлы Общероссийский строительный каталог Защитные сооружения гражданской обороны Конструкции и инженерное оборудование Инженерное оборудование
Серия У-02-01Серия У-02-01Серия У-02-01Серия У-02-01Серия У-02-01Серия У-02-01Серия У-02-01Серия У-02-01Серия У-02-01Серия У-02-01Серия У-02-01Серия У-02-01Серия У-02-01Серия У-02-01Серия У-02-01Серия У-02-01Серия У-02-01Серия У-02-01Серия У-02-01Серия У-02-01Серия У-02-01Серия У-02-01Серия У-02-01Серия У-02-01Серия У-02-01Серия У-02-01Серия У-02-01Серия У-02-01Серия У-02-01Серия У-02-01Серия У-02-01Серия У-02-01Серия У-02-01Серия У-02-01Серия У-02-01Серия У-02-01Серия У-02-01Серия У-02-01Серия У-02-01Серия У-02-01Серия У-02-01Серия У-02-01Серия У-02-01

© 2013 Ёшкин Кот :-) Карта сайта