Информационная система
«Ёшкин Кот»

Скачать базу одним архивом
Скачать обновления
История создания базы
Карта сайта

Скачать Типовой проект 801-2-17 Альбом I. Часть 2. Пояснительная записка. Архитектурно-строительные решения. Конструкции железобетонные. Вариант с рамным каркасом

Дата актуализации: 10.08.2017

Типовой проект 801-2-17

Альбом I. Часть 2. Пояснительная записка. Архитектурно-строительные решения. Конструкции железобетонные. Вариант с рамным каркасом

Обозначение: Типовой проект 801-2-17
Обозначение англ: 801-2-17
Статус:действует
Название рус.:Альбом I. Часть 2. Пояснительная записка. Архитектурно-строительные решения. Конструкции железобетонные. Вариант с рамным каркасом
Дата добавления в базу:01.09.2013
Дата актуализации:05.05.2017
Дата введения:15.05.1981
Оглавление:Содержание
Пояснительная записка
Основной комплект марки АР
   Общие данные
   Фасады
   План на отм. 0.000. Разрез 1-1
   Фрагменты плана 1, 2, 3, 4
   Схема расположения каналов навозоудаления и кормушек. План полов и устройство выравнивания электрических потенциалов
   Фрагменты плана 5, 6. Сечения
Основной комплект марки КЖ
   Общие данные
   Схема расположения элементов фундаментов и фундаментных балок
   Узлы и сечения фундаментов
   Фрагмент 5. Монолитный железобетонный фундамент Фм-1
   Схемы расположения рам, стоек фахверка и плит покрытия
   Спецификация элементов к схемам расположенным на листе КЖ-8. Узлы 1, 2
   Схемы расположения панелей стен для tн = минус 30 градусов Цельсия
   Схемы расположения панелей стен для tн = минус 16, минус 40 градусов Цельсия
   Спецификация элементов к схемам расположения панелей стен
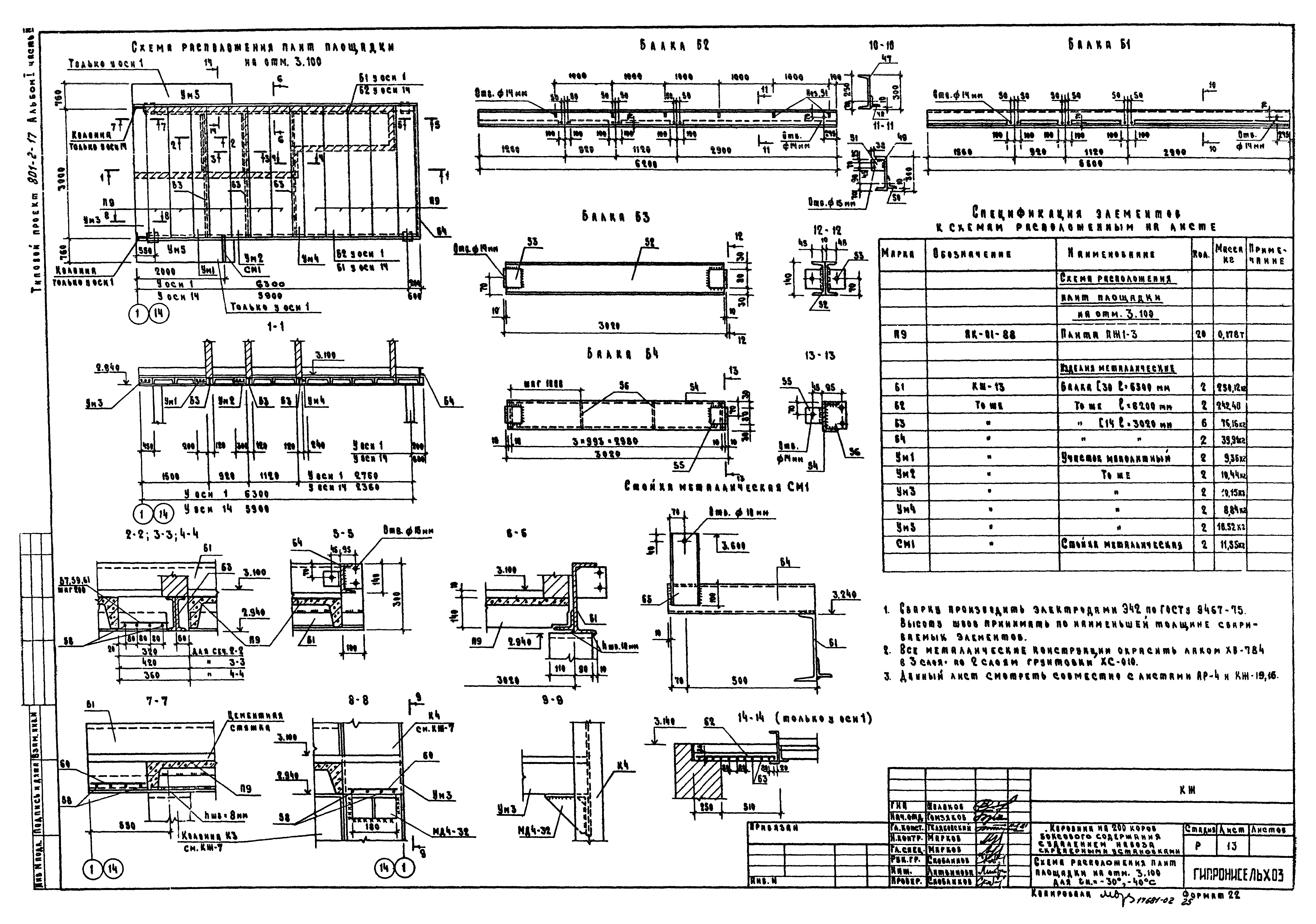
   Схема расположения плит площадки на отметке 3.100 для tн = минус 30, минус 40 градусов Цельсия
   Металлические изделия
   Металлические изделия. Спецификация
Разработан: ГипроНИсельхоз (Институт Гипронисельхоз )
Утверждён:21.04.1981 Минсельхоз СССР (USSR Minselkhoz 32)
Расположен в:Техническая документация Строительство Справочные документы Типовые строительные конструкции, изделия и узлы Общероссийский строительный каталог Сельскохозяйственные предприятия, здания и сооружения Предприятия, здания и сооружения для крупного рогатого скота Здания и сооружения Производство молока и выращивание нетелей Коровники
Типовой проект 801-2-17Типовой проект 801-2-17Типовой проект 801-2-17Типовой проект 801-2-17Типовой проект 801-2-17Типовой проект 801-2-17Типовой проект 801-2-17Типовой проект 801-2-17Типовой проект 801-2-17Типовой проект 801-2-17Типовой проект 801-2-17Типовой проект 801-2-17Типовой проект 801-2-17Типовой проект 801-2-17Типовой проект 801-2-17Типовой проект 801-2-17Типовой проект 801-2-17Типовой проект 801-2-17Типовой проект 801-2-17Типовой проект 801-2-17Типовой проект 801-2-17Типовой проект 801-2-17Типовой проект 801-2-17Типовой проект 801-2-17Типовой проект 801-2-17Типовой проект 801-2-17Типовой проект 801-2-17Типовой проект 801-2-17Типовой проект 801-2-17

© 2013 Ёшкин Кот :-) Карта сайта