Информационная система
«Ёшкин Кот»

Скачать базу одним архивом
Скачать обновления
История создания базы
Карта сайта

Скачать Типовые материалы для проектирования 407-03-415.86 Альбом X. КТПБ с усиленной изоляцией. Строительные решения. Схемы расположения строительных элементов подстанций

Дата актуализации: 10.08.2017

Типовые материалы для проектирования 407-03-415.86

Альбом X. КТПБ с усиленной изоляцией. Строительные решения. Схемы расположения строительных элементов подстанций

Обозначение: Типовые материалы для проектирования 407-03-415.86
Обозначение англ: 407-03-415.86
Статус:cправочные материалы, мп, тпр
Название рус.:Альбом X. КТПБ с усиленной изоляцией. Строительные решения. Схемы расположения строительных элементов подстанций
Дата добавления в базу:01.09.2013
Дата актуализации:05.05.2017
Дата введения:27.06.1986
Оглавление:Опись альбома комплекта КС
Общие данные (вариант на лежнях)
Общие данные (вариант на стойках)
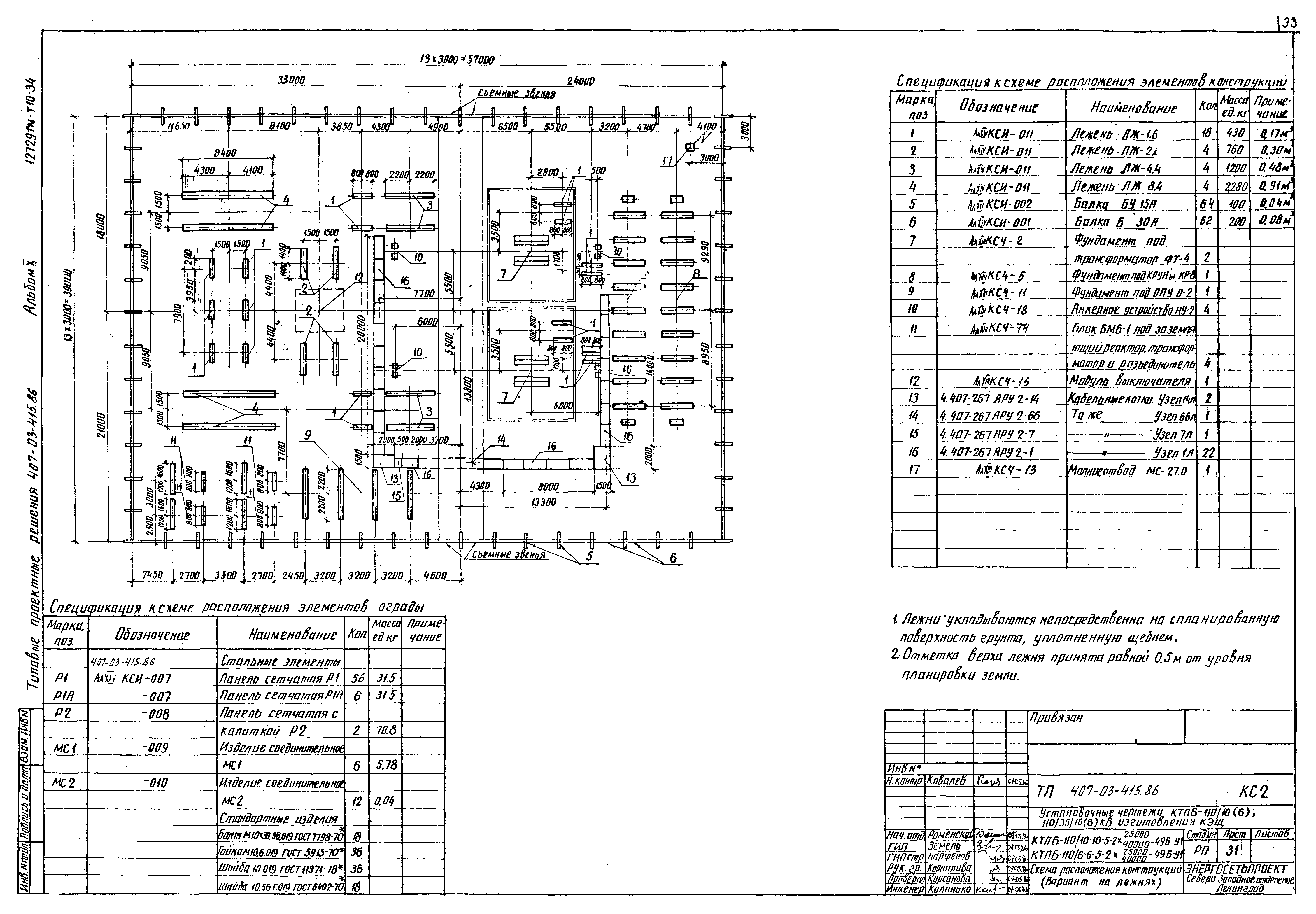
КТПБ-110/10(6)-3-1х2500/6300-49РБ-У1. КТПБ-110/10-3-1х10000/16000-49РБ-У1. Схема расположения конструкций (вариант на лежнях)
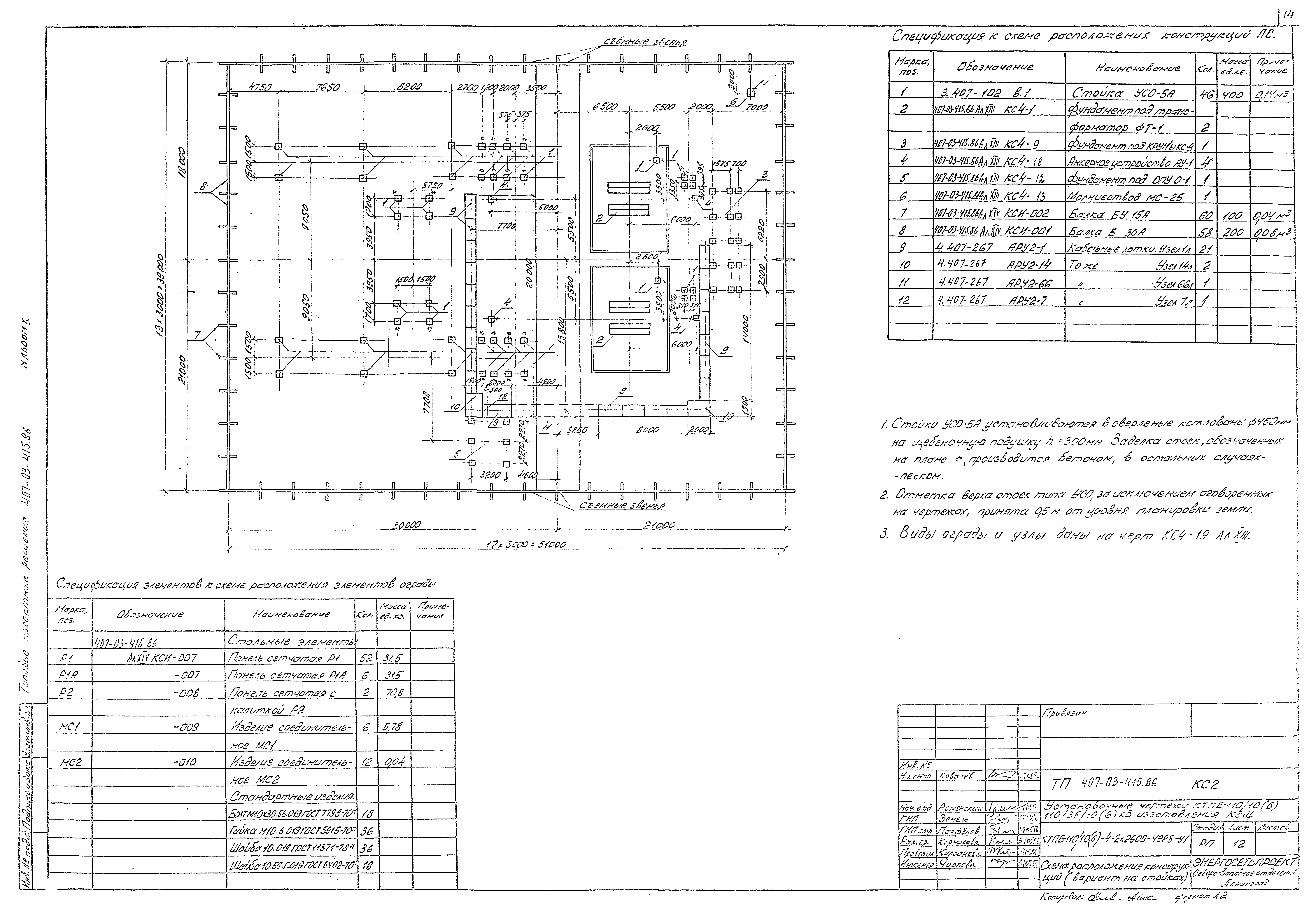
КТПБ-110/10(6)-3-1х2500/6300-49РБ-У1. КТПБ-110/10-3-1х10000/16000-49РБ-У1. Схема расположения конструкций (вариант на стойках)
КТПБ-110/6-3-1х10000/16000-49РБ-У1. КТПБ-110/10-10-3-1х25000/40000-49РБ-У1. Схема расположения конструкций (вариант на лежнях)
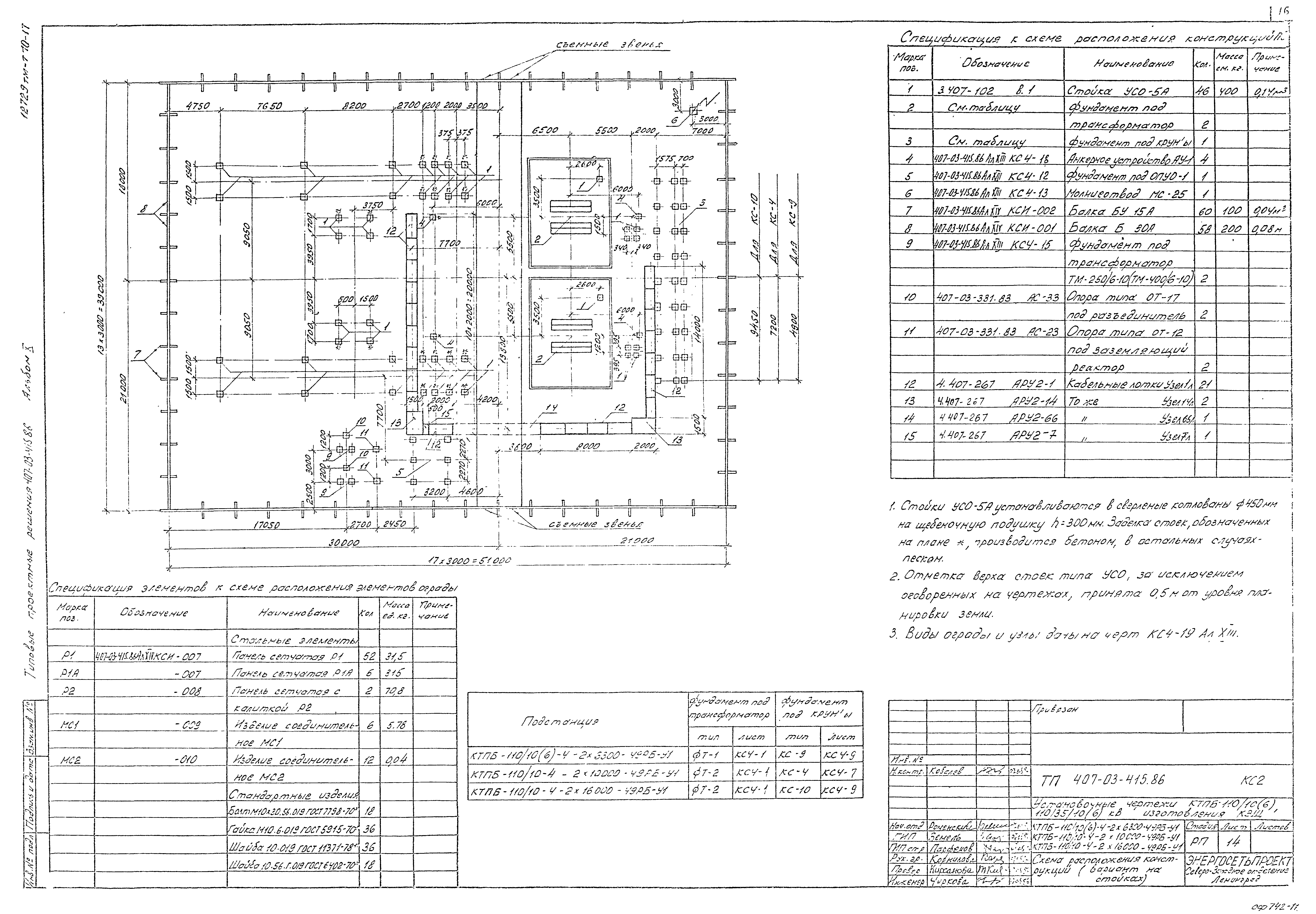
КТПБ-110/6-3-1х10000/16000-49РБ-У1. КТПБ-110/10-10-3-1х25000/40000-49РБ-У1. Схема расположения конструкций (вариант на стойках)
КТПБ-110/6-6-3-1х25000/40000-49РБ-У1. КТПБ-110/10-10-3-1х25000/40000-49РБ-У1. Схема расположения конструкций (вариант на лежнях)
КТПБ-110/6-6-3-1х25000/40000-49РБ-У1. КТПБ-110/10-10-3-1х25000/40000-49РБ-У1. Схема расположения конструкций (вариант на стойках)
КТПБ-110/35/10(6)-3-1х6300(10000; 25000; 40000)-49ЛРБ-У1. КТПБ-110/35/10-3-1х16000-49ЛРБ-У1. КТПБ-110/35/6-3-1х16000-49ЛРБ-У1. Схема расположения конструкций (вариант на лежнях)
КТПБ-110/35/10(6)-3-1х6300(10000; 25000; 40000)-49ЛРБ-У1. КТПБ-110/35/10-3-1х16000-49ЛРБ-У1. КТПБ-110/35/6-3-1х16000-49ЛРБ-У1. Схема расположения конструкций (вариант на стойках)
КТПБ-110/10(6)-4-2х25000-49РБ-У1. Схема расположения конструкций (вариант на лежнях)
КТПБ-110/10(6)-4-2х25000-49РБ-У1. Схема расположения конструкций (вариант на стойках)
КТПБ-110/10(6)-4-2х6300-49РБ-У1. КТПБ-110/10-4-2х10000-49РБ-У1. КТПБ-110/10-4-2х16000-49РБ-У1. Схема расположения конструкций (вариант на лежнях)
КТПБ-110/10(6)-4-2х6300-49РБ-У1. КТПБ-110/10-4-2х10000-49РБ-У1. КТПБ-110/10-4-2х16000-49РБ-У1. Схема расположения конструкций (вариант на стойках)
КТПБ-110/6-4-2х10000-49РБ-У1. КТПБ-110/6-4-2х16000-49РБ-У1. КТПБ-110/10-10-4-2х25000-49РБ-У1. КТПБ-110/10-10-4-2х40000-49РБ-У1.Схема расположения конструкций (вариант на лежнях)
КТПБ-110/6-4-2х10000-49РБ-У1. КТПБ-110/6-4-2х16000-49РБ-У1. КТПБ-110/10-10-4-2х25000-49РБ-У1. КТПБ-110/10-10-4-2х40000-49РБ-У1.Схема расположения конструкций (вариант на стойках)
КТПБ-110/6-6-4-2х25000-49РБ-У1. КТПБ-110/6-6-4-2х40000-49РБ-У1. КТПБ-110/10-10-4-2х25000-49РБ-У1. КТПБ-110/10-10-4-2х40000-49РБ-У1.Схема расположения конструкций (вариант на лежнях)
КТПБ-110/6-6-4-2х25000-49РБ-У1. КТПБ-110/6-6-4-2х40000-49РБ-У1. КТПБ-110/10-10-4-2х25000-49РБ-У1. КТПБ-110/10-10-4-2х40000-49РБ-У1.Схема расположения конструкций (вариант на стойках)
КТПБ-110/35/10(6)-4-2х6300-49РБ-У1. Схема расположения конструкций (вариант на лежнях)
КТПБ-110/35/10(6)-4-2х6300-49РБ-У1. Схема расположения конструкций (вариант на стойках)
КТПБ-110/35/10(6)-4-2х10000; 25000; 40000-49РБ-У1. КТПБ-110/35/10-4-2х16000-49РБ-У1. КТПБ-110/35/6-4-2х16000-49РБ-У1. Схема расположения конструкций (вариант на лежнях)
КТПБ-110/35/10(6)-4-2х10000; 25000; 40000-49РБ-У1. КТПБ-110/35/10-4-2х16000-49РБ-У1. КТПБ-110/35/6-4-2х16000-49РБ-У1. Схема расположения конструкций (вариант на стойках)
КТПБ-110/35/10(6)-4-2х6300 (10000; 25000; 40000)-49ЛРБ-У1. КТПБ-110/35/10-4-2х16000-49ЛРБ-У1. КТПБ-110/35/6-4-2х16000-49ЛРБ-У1. Схема расположения конструкций (вариант на лежнях)
КТПБ-110/35/10(6)-4-2х6300 (10000; 25000; 40000)-49ЛРБ-У1. КТПБ-110/35/10-4-2х16000-49ЛРБ-У1. КТПБ-110/35/6-4-2х16000-49ЛРБ-У1. Схема расположения конструкций (вариант на стойках)
КТПБ-110/10(6)-5-2х2500-49РБ-У1. Схема расположения конструкций (вариант на лежнях)
КТПБ-110/10(6)-5-2х2500-49РБ-У1. Схема расположения конструкций (вариант на стойках)
КТПБ-110/10(6)-5-2х6300-49Б-У1. КТПБ-110/10-5-2х10000-49Б-У1. КТПБ-110/10-5-2х16000-49Б-У1. Схема расположения конструкций (вариант на лежнях)
КТПБ-110/10(6)-5-2х6300-49Б-У1. КТПБ-110/10-5-2х10000-49Б-У1. КТПБ-110/10-5-2х16000-49Б-У1. Схема расположения конструкций (вариант на стойках)
КТПБ-110/6-5-2х10000/16000-49Б-У1. КТПБ-110/10-10-5-2х25000/40000-49Б-У1. Схема расположения конструкций (вариант на лежнях)
КТПБ-110/6-5-2х10000/16000-49Б-У1. КТПБ-110/10-10-5-2х25000/40000-49Б-У1. Схема расположения конструкций (вариант на стойках)
КТПБ-110/10-10-5-2х25000/40000-49Б-У1. КТПБ-110/6-6-5-2х25000/40000-49Б-У1. Схема расположения конструкций (вариант на лежнях)
КТПБ-110/10-10-5-2х25000/40000-49Б-У1. КТПБ-110/6-6-5-2х25000/40000-49Б-У1. Схема расположения конструкций (вариант на стойках)
КТПБ-110/35/10(6)-5-2х6300-49Б-У1. Схема расположения конструкций (вариант на лежнях)
КТПБ-110/35/10(6)-5-2х6300-49Б-У1. Схема расположения конструкций (вариант на стойках)
КТПБ-110/35/10(6)-5-2х10000-49Б-У1. КТПБ-110/35/10-5-2х6300-49Б-У1. Схема расположения конструкций (вариант на лежнях)
КТПБ-110/35/10(6)-5-2х10000-49Б-У1. КТПБ-110/35/10-5-2х6300-49Б-У1. Схема расположения конструкций (вариант на стойках)
КТПБ-110/35/6-5-2х16000-49Б-У1. КТПБ-110/35/10(6)-5-2х25000/40000-49Б-У1. Схема расположения конструкций (вариант на лежнях)
КТПБ-110/35/6-5-2х16000-49Б-У1. КТПБ-110/35/10(6)-5-2х25000/40000-49Б-У1. Схема расположения конструкций (вариант на стойках)
КТПБ-110/35/10(6)-5-2х6300/10000-49ЛБ-У1. КТПБ-110/35/10-5-2х16000-49ЛБ-У1. КТПБ-110/35/6-5-2х16000-49ЛБ-У1. КТПБ-110/35; 110(6)-5-2х25000/40000-49ЛБ-У1. Схема расположения конструкций (вариант на лежнях)
КТПБ-110/35/10(6)-5-2х6300/10000-49ЛБ-У1. КТПБ-110/35/10-5-2х16000-49ЛБ-У1. КТПБ-110/35/6-5-2х16000-49ЛБ-У1. КТПБ-110/35; 110(6)-5-2х25000/40000-49ЛБ-У1. Схема расположения конструкций (вариант на стойках)
Разработан: Северо-западное отделение института Энергосетьпроект
Утверждён:27.06.1986 Минэнерго СССР (USSR Minenergo 18)
Расположен в:Техническая документация Строительство Справочные документы Типовые строительные конструкции, изделия и узлы Общероссийский строительный каталог Промышленные предприятия, здания и сооружения Предприятия, здания и сооружения промышленности и электроэнергетики Электроэнергетика Устройства и подстанции распределительные
Типовые материалы для проектирования 407-03-415.86Типовые материалы для проектирования 407-03-415.86Типовые материалы для проектирования 407-03-415.86Типовые материалы для проектирования 407-03-415.86Типовые материалы для проектирования 407-03-415.86Типовые материалы для проектирования 407-03-415.86Типовые материалы для проектирования 407-03-415.86Типовые материалы для проектирования 407-03-415.86Типовые материалы для проектирования 407-03-415.86Типовые материалы для проектирования 407-03-415.86Типовые материалы для проектирования 407-03-415.86Типовые материалы для проектирования 407-03-415.86Типовые материалы для проектирования 407-03-415.86Типовые материалы для проектирования 407-03-415.86Типовые материалы для проектирования 407-03-415.86Типовые материалы для проектирования 407-03-415.86Типовые материалы для проектирования 407-03-415.86Типовые материалы для проектирования 407-03-415.86Типовые материалы для проектирования 407-03-415.86Типовые материалы для проектирования 407-03-415.86Типовые материалы для проектирования 407-03-415.86Типовые материалы для проектирования 407-03-415.86Типовые материалы для проектирования 407-03-415.86Типовые материалы для проектирования 407-03-415.86Типовые материалы для проектирования 407-03-415.86Типовые материалы для проектирования 407-03-415.86Типовые материалы для проектирования 407-03-415.86Типовые материалы для проектирования 407-03-415.86Типовые материалы для проектирования 407-03-415.86Типовые материалы для проектирования 407-03-415.86Типовые материалы для проектирования 407-03-415.86Типовые материалы для проектирования 407-03-415.86Типовые материалы для проектирования 407-03-415.86Типовые материалы для проектирования 407-03-415.86Типовые материалы для проектирования 407-03-415.86Типовые материалы для проектирования 407-03-415.86Типовые материалы для проектирования 407-03-415.86Типовые материалы для проектирования 407-03-415.86Типовые материалы для проектирования 407-03-415.86Типовые материалы для проектирования 407-03-415.86Типовые материалы для проектирования 407-03-415.86Типовые материалы для проектирования 407-03-415.86Типовые материалы для проектирования 407-03-415.86

© 2013 Ёшкин Кот :-) Карта сайта