Скачать Типовые материалы для проектирования 407-03-415.86 Альбом V. КТПБ по схемам 110-3, 110-4, 110-5. Схемы расположения строительных элементов подстанцийДата актуализации: 10.08.2017 Типовые материалы для проектирования 407-03-415.86
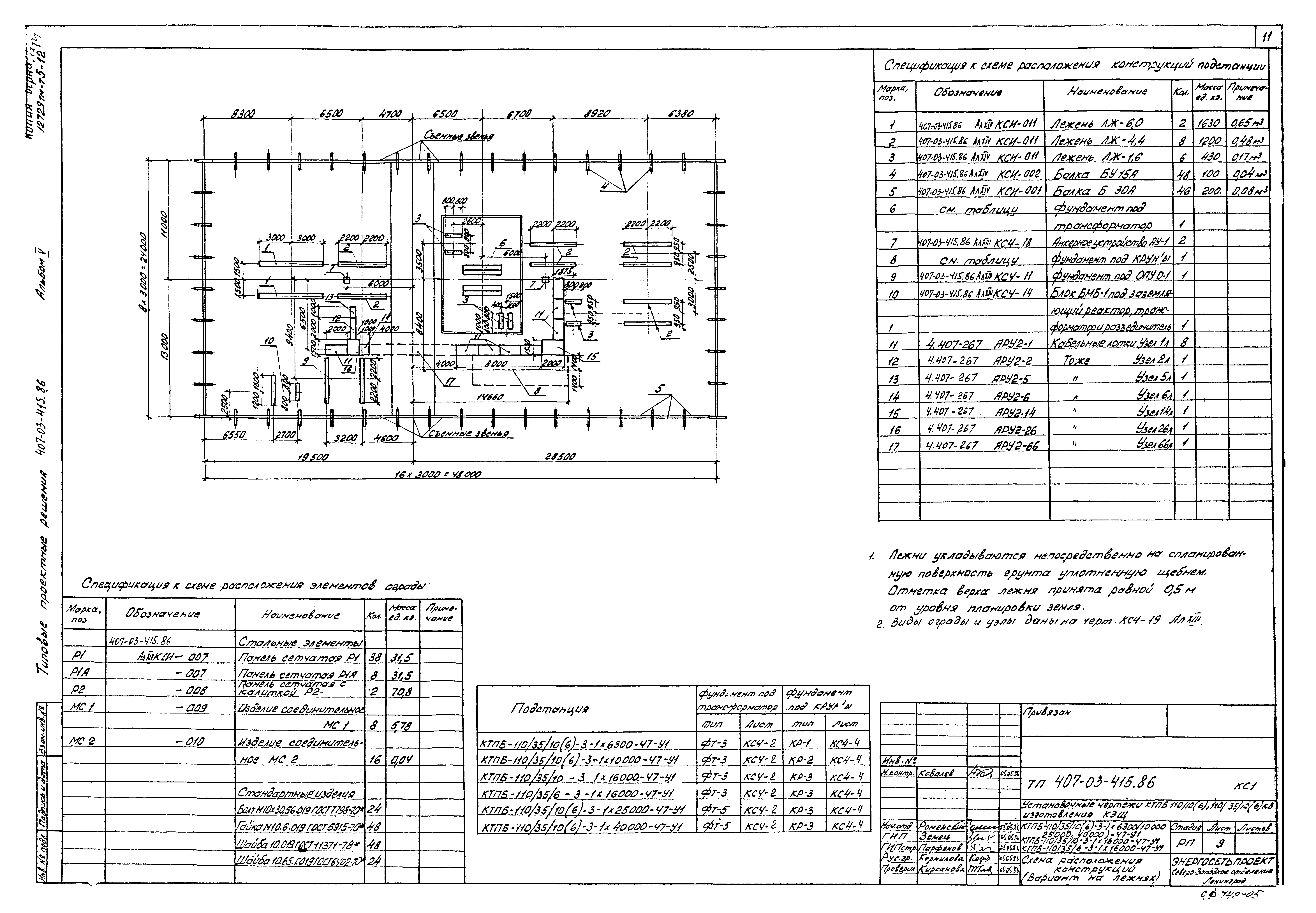
Альбом V. КТПБ по схемам 110-3, 110-4, 110-5. Схемы расположения строительных элементов подстанцийОбозначение: | Типовые материалы для проектирования 407-03-415.86 | Обозначение англ: | 407-03-415.86 | Статус: | cправочные материалы, мп, тпр | Название рус.: | Альбом V. КТПБ по схемам 110-3, 110-4, 110-5. Схемы расположения строительных элементов подстанций | Дата добавления в базу: | 01.09.2013 | Дата актуализации: | 05.05.2017 | Дата введения: | 27.06.1986 | Оглавление: | Опись альбома комплекта КС-1 Общие данные (вариант на лежнях) Общие данные (вариант на стойках) КТПБ-110/10(6)-3-1х2500-47-У1; КТПБ-110/10(6)-3-1х6300-47-У1; КТПБ-110/10-3-1х10000-47-У1; КТПБ-110/10-3-1х16000-47-У1. Схема расположения конструкций (вариант на лежнях) КТПБ-110/10(6)-3-1х2500-47-У1; КТПБ-110/10(6)-3-1х6300-47-У1; КТПБ-110/10-3-1х10000-47-У1; КТПБ-110/10-3-1х16000-47-У1. Схема расположения конструкций (вариант на стойках) КТПБ-110/6-3-1х10000-47-У1; КТПБ-110/6-3-1х16000-47-У1; КТПБ-110/10-10-3-1х25000-47-У1; КТПБ-110/10-10-3-1х40000-47-У1. Схема расположения конструкций (вариант на лежнях) КТПБ-110/6-3-1х10000-47-У1; КТПБ-110/6-3-1х16000-47-У1; КТПБ-110/10-10-3-1х25000-47-У1; КТПБ-110/10-10-3-1х40000-47-У1. Схема расположения конструкций (вариант на стойках) КТПБ-110/10-10-3-1х25000-47-У1; КТПБ-110/10-10-3-1х40000-47-У1; КТПБ-110/6-6-3-1х25000-47-У1; КТПБ-110/6-6-3-1х40000-47-У1. Схема расположения конструкций (вариант на лежнях) КТПБ-110/10-10-3-1х25000-47-У1; КТПБ-110/10-10-3-1х40000-47-У1; КТПБ-110/6-6-3-1х25000-47-У1; КТПБ-110/6-6-3-1х40000-47-У1. Схема расположения конструкций (вариант на стойках) КТПБ-110/35/10(6)-3-1х6300 (10000, 25000, 40000)-47-У1; КТПБ-110/35/10-3-1х16000-47-У1; КТПБ-110/35/6-3-1х16000-47-У1. Схема расположения конструкций (вариант на лежнях) КТПБ-110/35/10(6)-3-1х6300 (10000, 25000, 40000)-47-У1; КТПБ-110/35/10-3-1х16000-47-У1; КТПБ-110/35/6-3-1х16000-47-У1. Схема расположения конструкций (вариант на стойках) КТПБ-110/10(6)-4-2х25000-47-У1. Схема расположения конструкций (вариант на лежнях) КТПБ-110/10(6)-4-2х25000-47-У1. Схема расположения конструкций (вариант на стойках) КТПБ-110/10(6)-4-2х6300-47-У1, КТПБ-110/10-4-2х10000-47-У1, КТПБ-110/10-4-2х16000-47-У1. Схема расположения конструкций (вариант на лежнях) КТПБ-110/10(6)-4-2х6300-47-У1, КТПБ-110/10-4-2х10000-47-У1, КТПБ-110/10-4-2х16000-47-У1. Схема расположения конструкций (вариант на стойках) КТПБ-110/6-4-2х10000-47-У1, КТПБ-110/6-4-2х16000-47-У1, КТПБ-110/10-10-4-2х25000-47-У1, КТПБ-110/10-10-4-2х40000-47-У1. Схема расположения конструкций (вариант на лежнях) КТПБ-110/6-4-2х10000-47-У1, КТПБ-110/6-4-2х16000-47-У1, КТПБ-110/10-10-4-2х25000-47-У1, КТПБ-110/10-10-4-2х40000-47-У1. Схема расположения конструкций (вариант на стойках) КТПБ-110/10-10-4-2х25000-47-У1, КТПБ-110/10-10-4-2х40000-47-У1, КТПБ-110/6-6-4-2х25000-47-У1, КТПБ-110/6-6-4-2х40000-47-У1. Схема расположения конструкций (вариант на лежнях) КТПБ-110/10-10-4-2х25000-47-У1, КТПБ-110/10-10-4-2х40000-47-У1, КТПБ-110/6-6-4-2х25000-47-У1, КТПБ-110/6-6-4-2х40000-47-У1. Схема расположения конструкций (вариант на стойках) КТПБ-110/35/10(6)-4-2х6300-47-У1. Схема расположения конструкций (вариант на лежнях) КТПБ-110/35/10(6)-4-2х6300-47-У1. Схема расположения конструкций (вариант на стойках) КТПБ-110/35/10(6)-4-2х10000, 25000, 40000-47-У1, КТПБ-110/35/10-4-2х16000-47-У1, КТПБ-110/35/6-4-2х16000-47-У1. Схема расположения конструкций (вариант на лежнях) КТПБ-110/35/10(6)-4-2х10000, 25000, 40000-47-У1, КТПБ-110/35/10-4-2х16000-47-У1, КТПБ-110/35/6-4-2х16000-47-У1. Схема расположения конструкций (вариант на стойках) КТПБ-110/35/10(6)-4-2х6300 (10000, 25000, 40000)-47Л-У1, КТПБ-110/35/10-4-2х16000-47Л-У1, КТПБ-110/35/6-4-2х16000-47Л-У1. Схема расположения конструкций (вариант на лежнях) КТПБ-110/35/10(6)-4-2х6300 (10000, 25000, 40000)-47Л-У1, КТПБ-110/35/10-4-2х16000-47Л-У1, КТПБ-110/35/6-4-2х16000-47Л-У1. Схема расположения конструкций (вариант на стойках) КТПБ-110/10(6)-5-2х2500-47-У1. Схема расположения конструкций (вариант на лежнях) КТПБ-110/10(6)-5-2х2500-47-У1. Схема расположения конструкций (вариант на стойках) КТПБ-110/10(6)-5-2х6300-47-У1, КТПБ-110/10-5-2х10000-47-У1, КТПБ-110/10-5-2х16000-47-У1. Схема расположения конструкций (вариант на лежнях) КТПБ-110/10(6)-5-2х6300-47-У1, КТПБ-110/10-5-2х10000-47-У1, КТПБ-110/10-5-2х16000-47-У1. Схема расположения конструкций (вариант на стойках) КТПБ-110/6-5-2х10000-47-У1, КТПБ-110/6-5-2х16000-47-У1, КТПБ-110/10-10-5-2х25000-47-У1, КТПБ-110/10-10-5-2х40000-47-У1. Схема расположения конструкций (вариант на лежнях) КТПБ-110/6-5-2х10000-47-У1, КТПБ-110/6-5-2х16000-47-У1, КТПБ-110/10-10-5-2х25000-47-У1, КТПБ-110/10-10-5-2х40000-47-У1. Схема расположения конструкций (вариант на стойках) КТПБ-110/10-10-5-2х25000-47-У1, КТПБ-110/10-10-5-2х40000-47-У1, КТПБ-110/6-6-5-2х25000-47-У1, КТПБ-110/6-6-5-2х40000-47-У1. Схема расположения конструкций (вариант на лежнях) КТПБ-110/10-10-5-2х25000-47-У1, КТПБ-110/10-10-5-2х40000-47-У1, КТПБ-110/6-6-5-2х25000-47-У1, КТПБ-110/6-6-5-2х40000-47-У1. Схема расположения конструкций (вариант на стойках) КТПБ-110/35/10(6)-5-2х6300-47-У1. Схема расположения конструкций (вариант на лежнях) КТПБ-110/35/10(6)-5-2х6300-47-У1. Схема расположения конструкций (вариант на стойках) КТПБ-110/35/10(6)-5-2х10000-47-У1, КТПБ-110/35/10-5-2х16000-47-У1. Схема расположения конструкций (вариант на лежнях) КТПБ-110/35/10(6)-5-2х10000-47-У1, КТПБ-110/35/10-5-2х16000-47-У1. Схема расположения конструкций (вариант на стойках) КТПБ-110/35/6-5-2х16000-47-У1, КТПБ-110/35/10(6)-5-2х25000-47-У1, КТПБ-110/35/10(6)-5-2х40000-47-У1. Схема расположения конструкций (вариант на лежнях) КТПБ-110/35/6-5-2х16000-47-У1, КТПБ-110/35/10(6)-5-2х25000-47-У1, КТПБ-110/35/10(6)-5-2х40000-47-У1. Схема расположения конструкций (вариант на стойках) КТПБ-110/35/10(6)-5-2х6300 (10000, 25000, 40000)-47Л-У1, КТПБ-110/35/10-5-2х16000-47Л-У1, КТПБ-110/35/6-5-2х16000-47Л-У1. Схема расположения конструкций (вариант на лежнях) КТПБ-110/35/10(6)-5-2х6300 (10000, 25000, 40000)-47Л-У1, КТПБ-110/35/10-5-2х16000-47Л-У1, КТПБ-110/35/6-5-2х16000-47Л-У1. Схема расположения конструкций (вариант на стойках) КТПБ-110/35/10(6)-4-2х -47Р-У1, КТПБ-110/10(6)-4-2х -47Р-У1. План ОРУ 110 кВ (вариант на лежнях и на стойках) | Разработан: | Северо-западное отделение института Энергосетьпроект
| Утверждён: | 27.06.1986 Минэнерго СССР (USSR Minenergo 18)
| Расположен в: |
|
                                          
|