Скачать Типовой проект 284-5-34 Часть 1. Архитектурно-строительные чертежи выше отм. 0.00Дата актуализации: 10.08.2017 Типовой проект 284-5-34
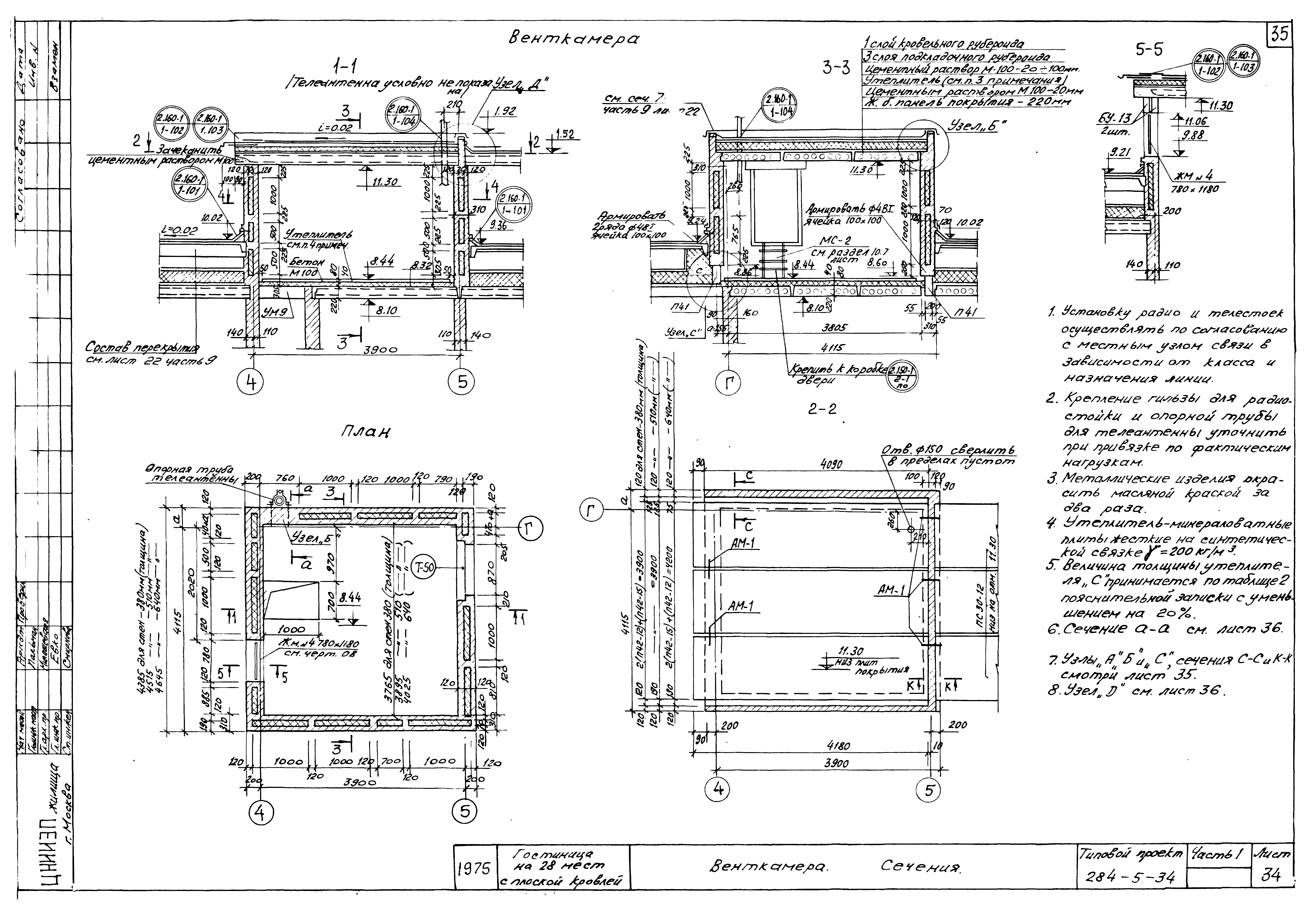
Часть 1. Архитектурно-строительные чертежи выше отм. 0.00Обозначение: | Типовой проект 284-5-34 | Обозначение англ: | 284-5-34 | Статус: | не действует | Название рус.: | Часть 1. Архитектурно-строительные чертежи выше отм. 0.00 | Дата добавления в базу: | 01.09.2013 | Дата актуализации: | 05.05.2017 | Оглавление: | Заглавный лист Технические указания к проекту Фасады в осях 1 - 12; 12 - 1 Фасады в осях А - И; И - А Кладочный план 1-го этажа. Примечания. Таблица значений "а" План первого этажа. Детали 7, 8 Кладочный план 2-го этажа. Детали кладки План 2-го этажа. Таблица марок материалов стен Кладочный план 3-го этажа. Детали кладки План 3-го этажа Разрезы 1-1 и 2-2. План крыльца на отм. 4.20 Лестница ЛВ-1. Разрез 3-3. Детали ограждения Лестница ЛВ-1. Планы перекрытия лестничных площадок. Узлы 1 - 6. Спецификации Лестница ЛВ-1. Монтажная схема металлоконструкций. Узлы Монтажный план балок 1, 2, 3 этажей и покрытия План перекрытия 1-го этажа План перекрытия 2-го этажа План перекрытия 3-го этажа Монолитные участки УМ-3 - УМ-8 Монолитные участки УМ-9 - УМ-10. Расход материалов Монтажные схемы ограждения кровли и узлы ограждения террасы и балконов Монтажные схемы крепления рам вентнасосов. Монтажные схемы декоративных решеток Таблица типов проемов выше отм. 0.00 Кладочный план продухов, детали План покрытия План кровли Венткамера. Сечения Узлы "А", "Б", "С". Сечения Выход на кровлю. Сечения. Узлы Прогон перекрытия П51, рабочая арматура из стали класса АIII, mа = 1,0 Прогон П41. Спецификация Монтажная схема металлоконструкций лестницы ЛН-4. Узлы Таблица отделочных работ Спецификация столярных изделий Спецификация металлических изделий выше отм. 0.00 Спецификация сборных железобетонных изделий выше отм. 0.00 | Разработан: | ЦНИИЭП жилища
| Утверждён: | 01.01.1975 Госкомитет по гражданскому строительству и архитектуре при Госстрое СССР (National Committee on Nonindustrial Construction and Architecture, USSR Gosstroy )
| Расположен в: |
|
                                             
|