Информационная система
«Ёшкин Кот»

Скачать базу одним архивом
Скачать обновления
История создания базы
Карта сайта

Скачать Типовой проект 282-1-154 Альбом I. Архитектурно-строительные решения. Технология и механизация. Витражи

Дата актуализации: 10.08.2017

Типовой проект 282-1-154

Альбом I. Архитектурно-строительные решения. Технология и механизация. Витражи

Обозначение: Типовой проект 282-1-154
Обозначение англ: 282-1-154
Статус:не определен законодательством
Название рус.:Альбом I. Архитектурно-строительные решения. Технология и механизация. Витражи
Дата добавления в базу:01.09.2013
Дата актуализации:05.05.2017
Дата введения:03.03.1982
Оглавление:Обложка
Титульный лист
Основной комплект чертежей марки АС1
   Общие данные
   Лист привязки
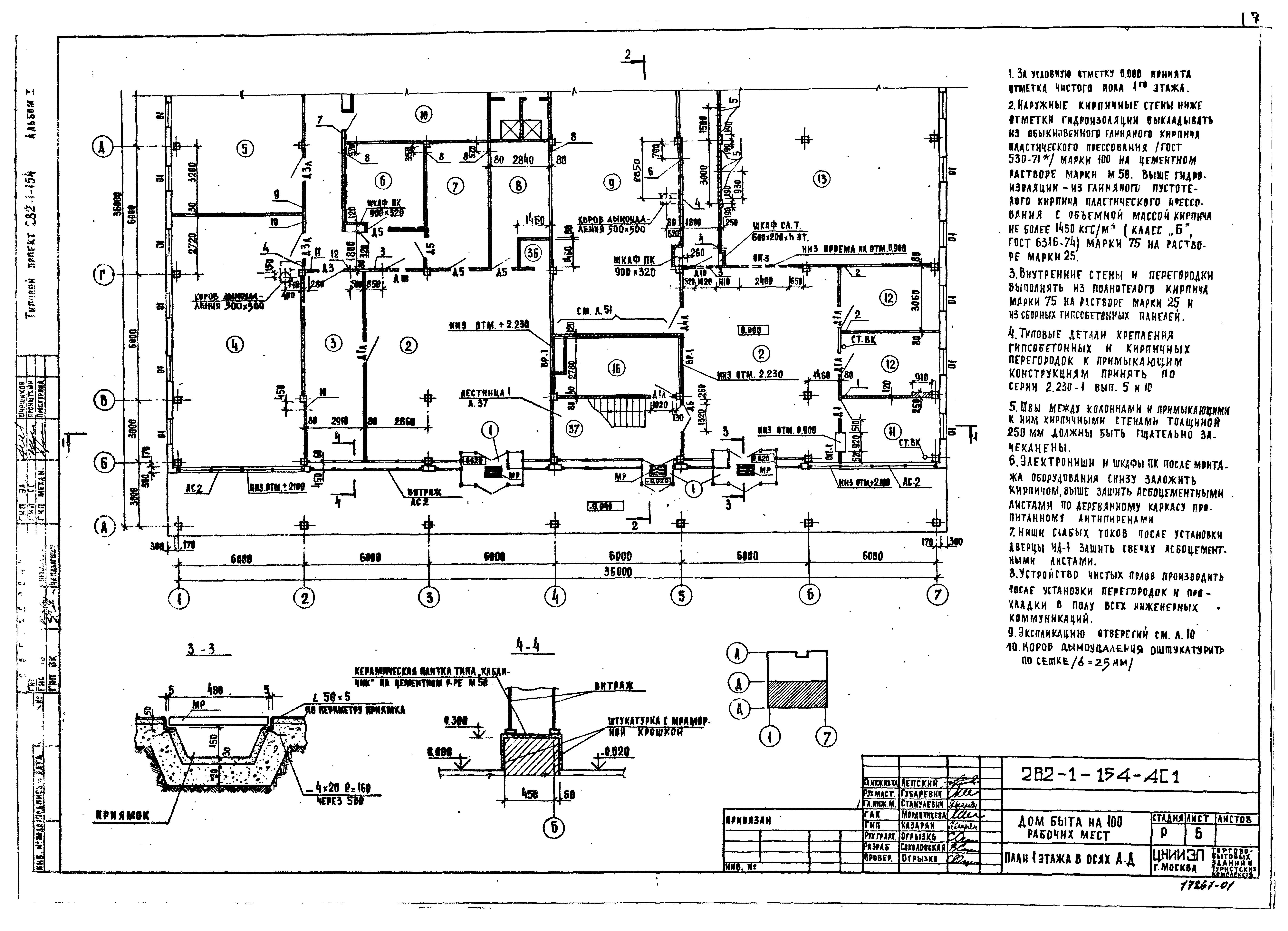
   План 1 этажа в осях А - Д
   План 1 этажа в осях Д - Л
   План 2 этажа в осях А - Д
   План 2 этажа в осях Д - Л
   Спецификация элементов планов. Экспликация отверстий
   План крыши
   Разрезы 1-1, 2-2
   Фасады 1 - 7, 7 - 1
   Фасады А - Л, Л - А
   Ведомость отделки помещений
   Развертки стен
   Подвесной потолок. План. Сечения
   Схема расчетных нагрузок на фундамент
   Схема расположения элементов фундаментов и подпольных каналов в осях А - Д
   Схема расположения элементов фундаментов и подпольных каналов в осях Д - Л
   Элементы сечений фундаментов
   Схема расположения элементов фундаментов под оборудование. Монолитный фундамент под диафрагму жесткости ДЖМ-1
   Схемы расположения закладных деталей для крепления витражей
   Схема расчетных нагрузок и перекрытие над 1 этажом
   Схема расположения элементов каркаса 1 этажа
   Схема расположения элементов каркаса покрытия
   Схема расположения элементов каркаса для стен из ячеистого бетона
   Схема расположения элементов перекрытия в осях Д - Л
   Схема расположения элементов перекрытия в осях Л - Д
   Схема расположения элементов покрытия в осях Л - Д
   Схема расположения элементов покрытия в осях Д - Л
   Спецификация к схемам расположения элементов каркаса и перекрытия
   Монолитный участок УМ-1
   Монолитные участки УМ-2 - УМ-5
   Монолитный участок УМ-6
   Схемы расположения элементов лестниц
   Монтажная схема лифта G = 500 кг
   Развертка стен лифтов
   Лист заказа лифтов
   Схема расположения элементов перегородок 1 этажа в осях А - Д
   Схема расположения элементов перегородок 1 этажа в осях Д - Л
   Схема расположения элементов перегородок 2 этажа в осях А - Д
   Схема расположения элементов перегородок 2 этажа в осях Д - Л
   Схемы расположения панелей стен из легкого бетона
   Спецификация к схемам расположения панелей стен
   Схемы расположения панелей стен из ячеистого бетона
   Схемы расположения элементов перемычек
   Ведомость перемычек. Спецификация сборных железобетонных перемычек, перегородок
   Венткамера и помещение воздушно-тепловой завесы
   Конструкция асбестоцементных воздуховодов
Основной комплект чертежей марки ТХ
   Общие данные
   План 1 этажа в осях А - Ж
   План 1 этажа в осях Ж - Л
   План 2 этажа в осях А - Д
   План 2 этажа в осях Д - Л
   Спецификация технологического оборудования 1 этажа
   Спецификация технологического оборудования 2 этажа и механизации
   Подъемный стол ПС-500. Установочный чертеж
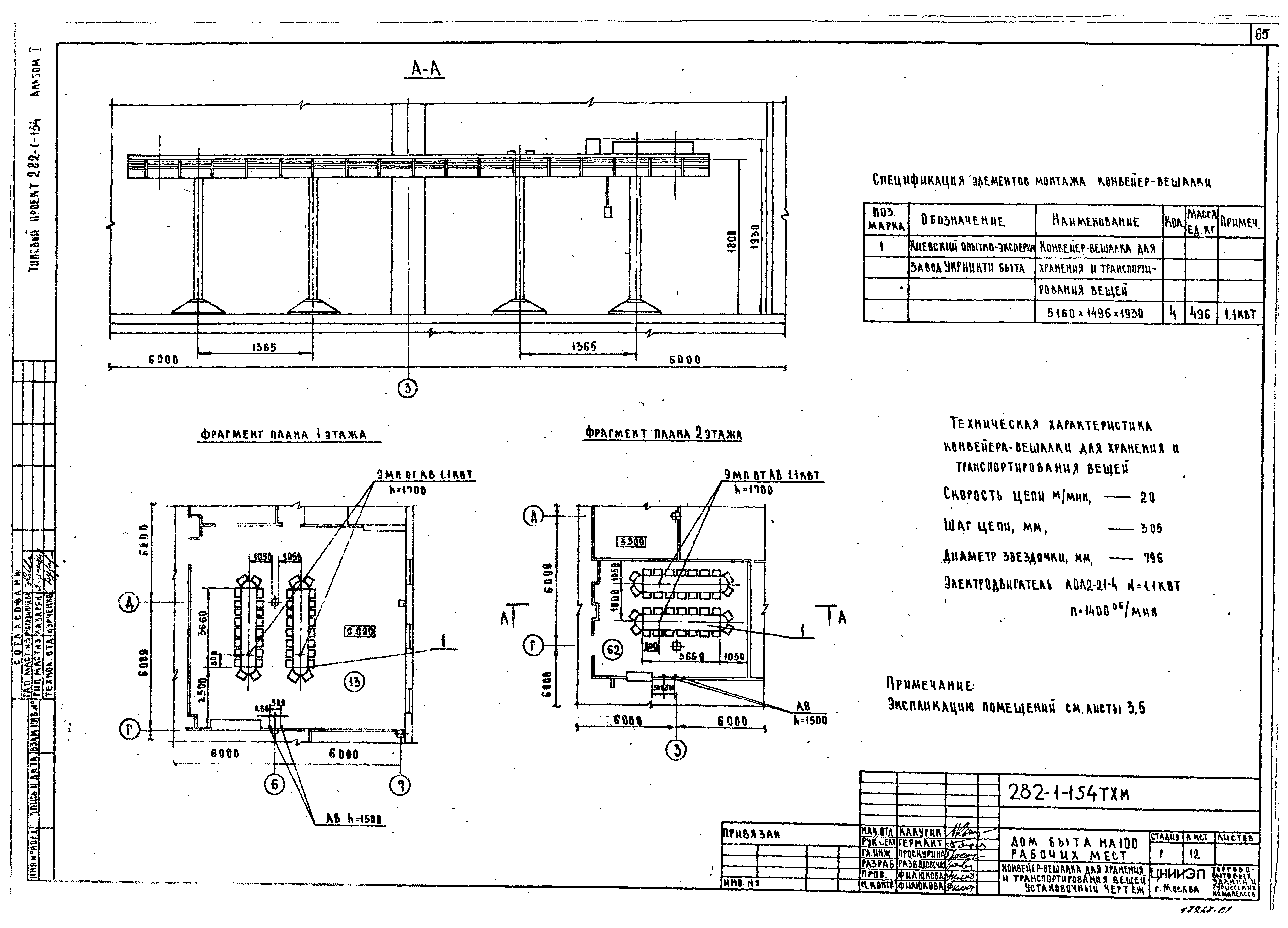
   Конвейер-вешалка для хранения и транспортирования вещей. Установочный чертеж
Основной комплект чертежей марки АС2
   Общие данные
   Спецификация элементов витражей, тамбуров и окон
   Схема расположения элементов витражей, тамбуров и окон
   Схема расположения элементов тамбуров. Монтажные узлы I; II; III; IV; XXIII
   Монтажные узлы VI; VII; VIII; IX; X; XI; XII; XIII; XIV; XXIV
   Монтажные узлы V; XV; XVI; XVII; XIX; XX; XXI; XXII
Разработан: ЦНИИЭП торгово-бытовых зданий и туристских комплексов
Утверждён:04.08.1980 Госгражданстрой (Gosgrazhdanstroy 201)
Расположен в:Техническая документация Строительство Справочные документы Типовые строительные конструкции, изделия и узлы Общероссийский строительный каталог Общественные здания в городах и поселках городского типа Предприятия торговли и общественного питания. Общественные центры Кооперированные здания предприятий торговли, общественного питания и бытового обслуживания Торговые центры
Типовой проект 282-1-154Типовой проект 282-1-154Типовой проект 282-1-154Типовой проект 282-1-154Типовой проект 282-1-154Типовой проект 282-1-154Типовой проект 282-1-154Типовой проект 282-1-154Типовой проект 282-1-154Типовой проект 282-1-154Типовой проект 282-1-154Типовой проект 282-1-154Типовой проект 282-1-154Типовой проект 282-1-154Типовой проект 282-1-154Типовой проект 282-1-154Типовой проект 282-1-154Типовой проект 282-1-154Типовой проект 282-1-154Типовой проект 282-1-154Типовой проект 282-1-154Типовой проект 282-1-154Типовой проект 282-1-154Типовой проект 282-1-154Типовой проект 282-1-154Типовой проект 282-1-154Типовой проект 282-1-154Типовой проект 282-1-154Типовой проект 282-1-154Типовой проект 282-1-154Типовой проект 282-1-154Типовой проект 282-1-154Типовой проект 282-1-154Типовой проект 282-1-154Типовой проект 282-1-154Типовой проект 282-1-154Типовой проект 282-1-154Типовой проект 282-1-154Типовой проект 282-1-154Типовой проект 282-1-154Типовой проект 282-1-154Типовой проект 282-1-154Типовой проект 282-1-154Типовой проект 282-1-154Типовой проект 282-1-154Типовой проект 282-1-154Типовой проект 282-1-154Типовой проект 282-1-154Типовой проект 282-1-154Типовой проект 282-1-154Типовой проект 282-1-154Типовой проект 282-1-154Типовой проект 282-1-154Типовой проект 282-1-154Типовой проект 282-1-154Типовой проект 282-1-154Типовой проект 282-1-154Типовой проект 282-1-154Типовой проект 282-1-154Типовой проект 282-1-154Типовой проект 282-1-154Типовой проект 282-1-154Типовой проект 282-1-154Типовой проект 282-1-154Типовой проект 282-1-154Типовой проект 282-1-154Типовой проект 282-1-154Типовой проект 282-1-154Типовой проект 282-1-154Типовой проект 282-1-154Типовой проект 282-1-154Типовой проект 282-1-154Типовой проект 282-1-154

© 2013 Ёшкин Кот :-) Карта сайта