Информационная система
«Ёшкин Кот»

Скачать базу одним архивом
Скачать обновления
История создания базы
Карта сайта

Скачать Типовые проектные решения 402-11-0154.89 Альбом 2. Конструкции металлические

Дата актуализации: 10.08.2017

Типовые проектные решения 402-11-0154.89

Альбом 2. Конструкции металлические

Обозначение: Типовые проектные решения 402-11-0154.89
Обозначение англ: 402-11-0154.89
Статус:cправочные материалы, мп, тпр
Название рус.:Альбом 2. Конструкции металлические
Дата добавления в базу:01.09.2013
Дата актуализации:05.05.2017
Дата введения:11.11.1988
Оглавление:Общие данные
Лист нагрузок
Задание на проектирование фундаментов. Техническая спецификация стали
Ведомость металлоконструкций по видам профилей
Схема металлических конструкций
Элемент арки А1
Элемент арки А2. Установочный элемент
Узлы 1 - 5
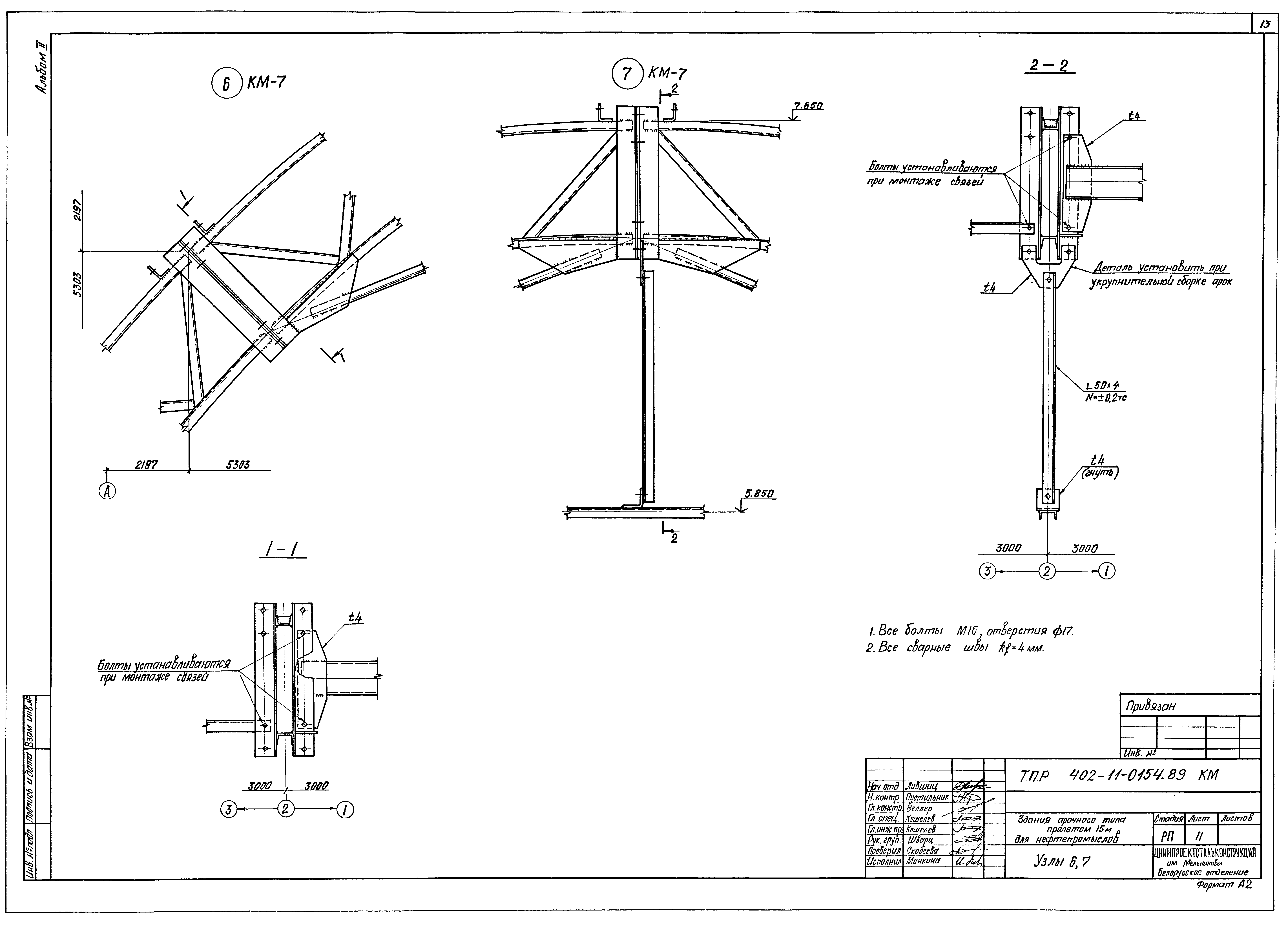
Узлы 6, 7
Узлы 8, 9
Узлы 10 - 14
Разработан: Гипровостокнефть Миннефтепрома (Giprovostokneft, Minnefteprom )
Белорусское отделение ЦНИИПроектстальконструкция им. Мельникова
Утверждён:11.11.1988 Миннефтепром СССР (196 "Э")
Расположен в:Техническая документация Строительство Справочные документы Типовые строительные конструкции, изделия и узлы Общероссийский строительный каталог Промышленные предприятия, здания и сооружения Предприятия, здания и сооружения промышленности и электроэнергетики Промышленность нефтяная и газовая Промышленность нефтяная Промышленность нефтедобывающая
Типовые проектные решения 402-11-0154.89Типовые проектные решения 402-11-0154.89Типовые проектные решения 402-11-0154.89Типовые проектные решения 402-11-0154.89Типовые проектные решения 402-11-0154.89Типовые проектные решения 402-11-0154.89Типовые проектные решения 402-11-0154.89Типовые проектные решения 402-11-0154.89Типовые проектные решения 402-11-0154.89Типовые проектные решения 402-11-0154.89Типовые проектные решения 402-11-0154.89Типовые проектные решения 402-11-0154.89Типовые проектные решения 402-11-0154.89Типовые проектные решения 402-11-0154.89Типовые проектные решения 402-11-0154.89Типовые проектные решения 402-11-0154.89

© 2013 Ёшкин Кот :-) Карта сайта