Информационная система
«Ёшкин Кот»

Скачать базу одним архивом
Скачать обновления
История создания базы
Карта сайта

Скачать Типовой проект 816-246 Альбом 1. Пояснительная записка. Технологические решения. Архитектурно-строительные решения. Конструкции железобетонные

Дата актуализации: 10.08.2017

Типовой проект 816-246

Альбом 1. Пояснительная записка. Технологические решения. Архитектурно-строительные решения. Конструкции железобетонные

Обозначение: Типовой проект 816-246
Обозначение англ: 816-246
Статус:действует
Название рус.:Альбом 1. Пояснительная записка. Технологические решения. Архитектурно-строительные решения. Конструкции железобетонные
Дата добавления в базу:01.09.2013
Дата актуализации:05.05.2017
Дата введения:30.10.1979
Оглавление:Пояснительная записка
Схема генплана
Технологические решения
   Общие данные
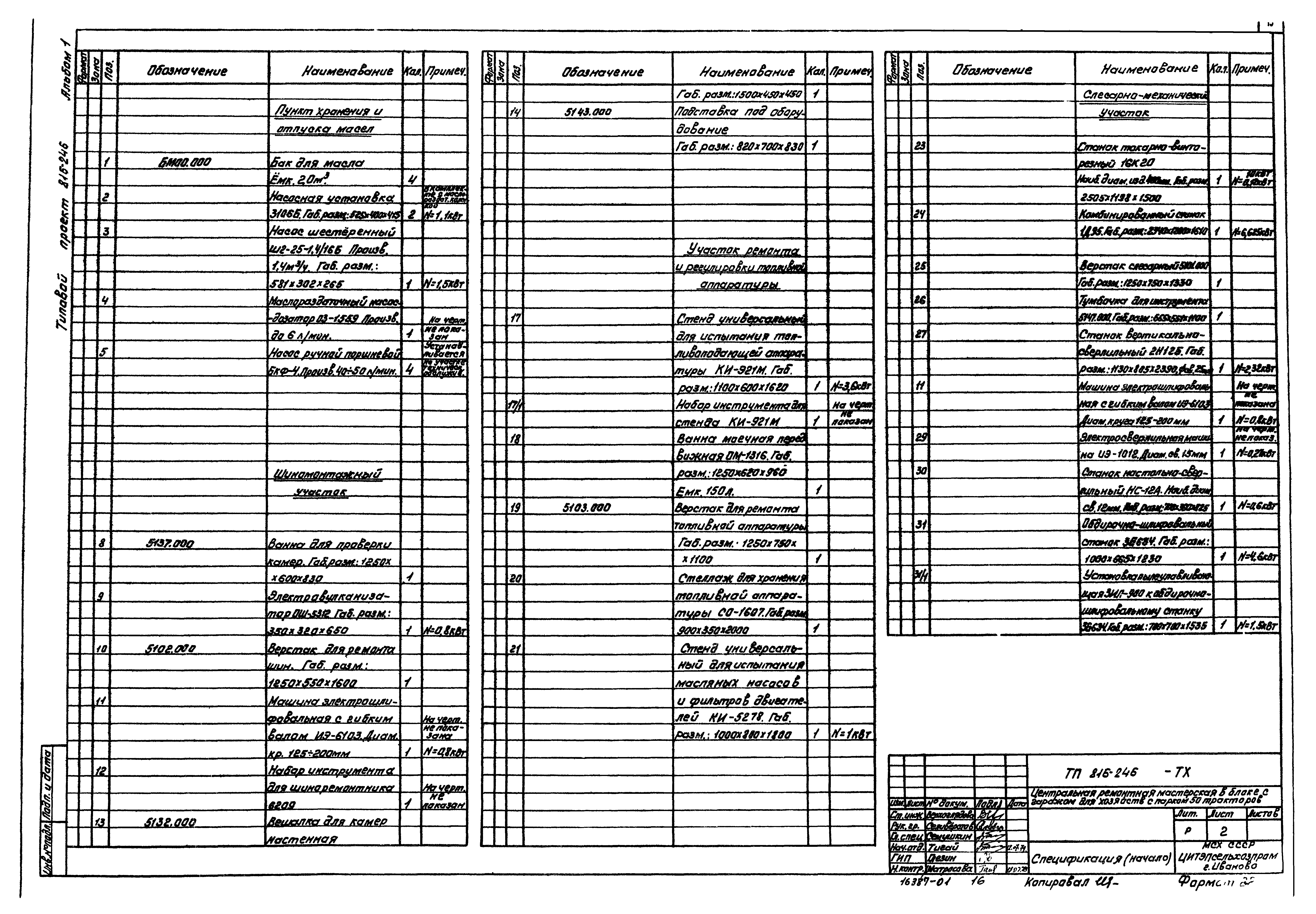
   Спецификация
   План на отм. 0.000 с установкой технологического оборудования
   План разводки трубопроводов свежих и отработанных масел
   План разводки трубопроводов сжатого воздуха
   Устройство для перемещения тракторов ОПТ-1326. Монтажный чертеж
   Устройство для перемещения тракторов ОПТ-1326. Спецификация
Архитектурно-строительные решения
   Общие данные
   Фасады
   План на отм. 0.000
   План на отм. 4.200 и 4.800. Фрагмент плана 1
   Фрагмент плана 2 - 5
   Разрезы
   План полов. План кровли
   План отверстий и перемычек на отм. 0.000
   План отверстий и перемычек на отм. 4.200 и 4.800
   Схемы заполнения оконных проемов
   Маркировочная схема узлов крепления оконных блоков
   Узлы крепления гипсобетонных перегородок
   Узлы 1 - 8. Сечение 1-1; 2-2
Конструкции железобетонные
   Общие данные
   Маркировочная схема фундаментов и фундаментных балок
   Узлы фундаментов 1, 2, 3, 4А. Сечения а-а, б-б, в-в, г-г, 10-10
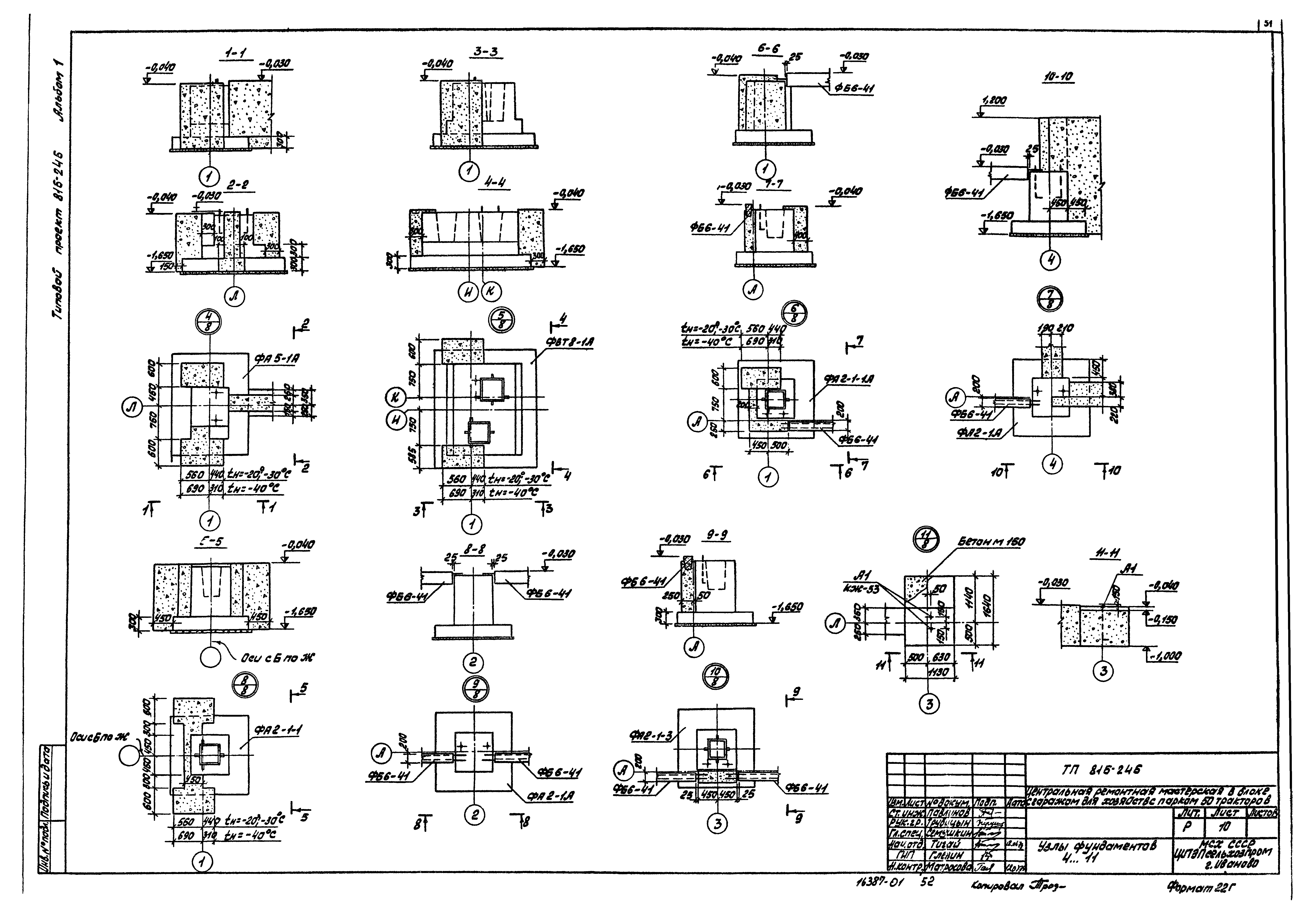
   Узлы фундаментов 4 - 11
   Узлы фундаментов 12 - 20, 20А
   Узлы фундаментов 21 - 30
   Фундаменты ФА2-1, ФА2-1-1, ФА2-1-1А, ФА2-1-2, ФА2-1-2А, ФА2-1-3. Опалубка и армирование
   Фундаменты ФА5-1А, ФА6-1. Опалубка и армирование
   Фундаменты ФА7-1, ФА7-1-1, ФА7-1-1А, ФА7-1А, ФА7-1Б. Опалубка и армирование
   Фундаменты ФА1-1А, ФА2-1А, ФА5-1, ФМ1. Опалубка и армирование
   Фундаменты ФАТ8-1А, ФБТ8-1А, ФВТ8-1А. Опалубка и армирование
   Маркировочная схема осмотровых канав, фундаментов под оборудование и подпольных каналов
   Фрагмент плана 1. План раскладки плит перекрытия. Фундаменты под оборудование ФОм1 - ФОм3, ФОм6
   Фундаменты под оборудование ФОм4 - ФОм14. Тупиковый водоприемный колодец с бадьей
   Фундамент ФОм5
   Спецификация к маркировочным схемам, расположенным на листах КЖ23 - КЖ25
   Маркировочные схемы колонн, балок, стоек и монтажных деталей
   Маркировочные схемы монтажных деталей по осям 1, 5, ряду К. Вид А
   Маркировочные схемы монтажных деталей по рядам А и М. Узлы 1 - 5
   Узлы 6 - 13
   Маркировочные схемы стеновых панелей по осям 1, 10, К, Н
   Маркировочная схема стеновых панелей по оси А. Фрагменты 1 - 16
   Фрагменты 17 - 30
   Маркировочная схема плит покрытия
   Спецификация элементов к маркировочной схеме, расположенной на листе КЖ-30
   Маркировочная схема плит перекрытия
   Монолитные участки УМ1 - УМ14
   Монолитный участок УМ15. Сечения 3-3 - 16-16
   Спецификация элементов монолитных конструкций
   Маркировочная схема элементов лестницы в осях М-Н. План перехода с отм. 4.200 на отм. 4.800
   Маркировочная схема ЛМ-1
   Маркировочная схема ЛМ-2
   Маркировочная схема перегородок. Вид А
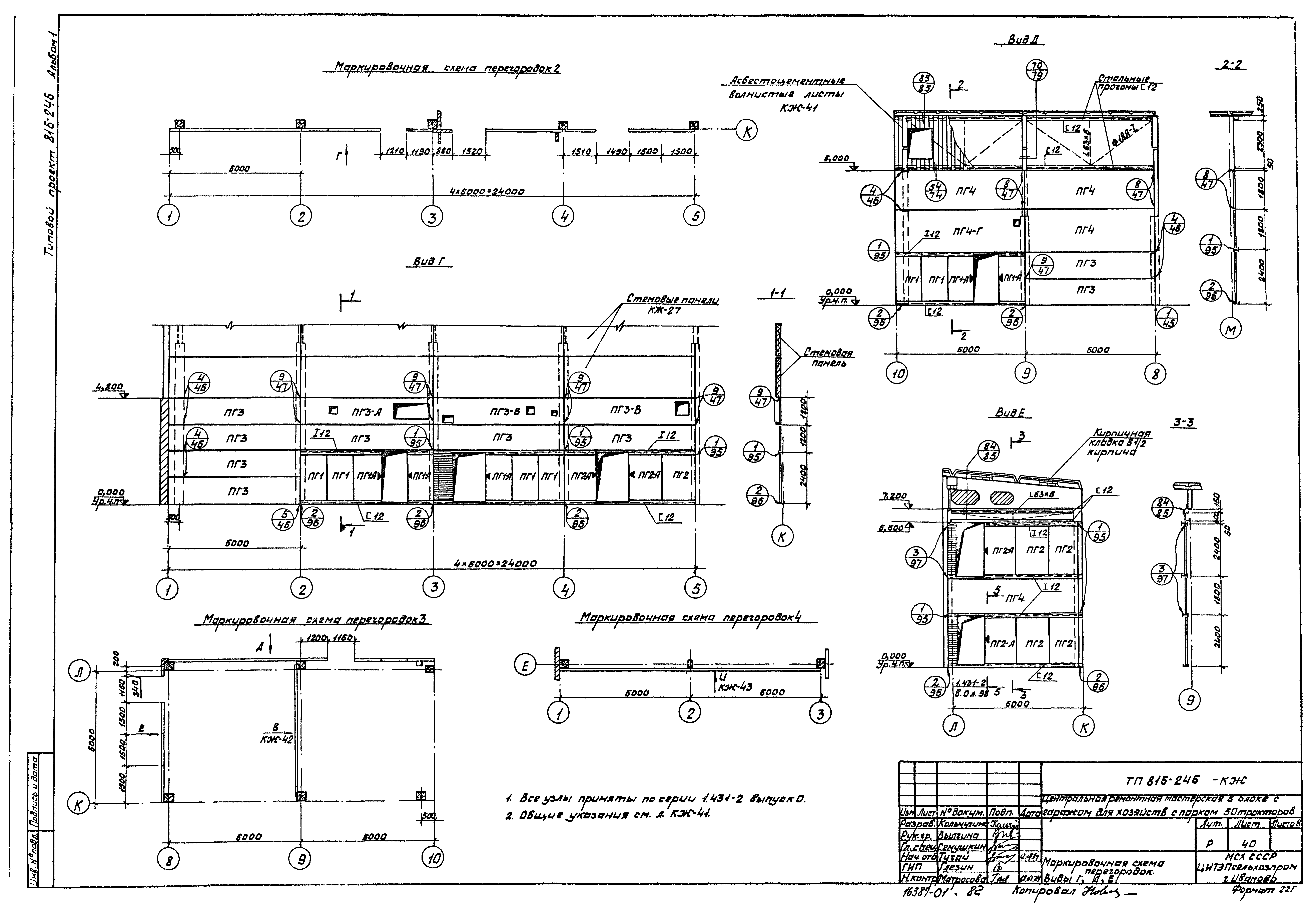
   Маркировочная схема перегородок. Виды Г, Д, Е
   Маркировочные схемы перегородок 5 - 9
   Виды Б, В, Л, М, Н
   Виды И, Р, К
   Опалубочные чертежи колонн К1а - К1е, К1к, К1у
   Опалубочные чертежи колонн К1ж, К1и, К1л - К1т, К2а, К2в, К3а - К3г, К3е - К3и
   Опалубочные чертежи колонн К3д, К3к, К4а - К4д, К5а - К5в, К6а
   Опалубочные чертежи балок
   Опалубочные чертежи плит покрытия
   Опалубочные чертежи панелей
   Маркировочная схема путей подвесных кранов, связей и подвесок
   Маркировочная схема путей подвесных кранов, связей и подвесок. Фрагменты, узлы
   Изделия металлические
   Металлические рамки РМ1 - РМ5. Анкера А1, А2. Крышка ЛН1
   Маркировочные схемы щитов кабин душевых и уборных. Маркировочная схема элементов ограждения
   Осмотровая канава №1. Планы. Разрез. Сечения. Узлы
   Осмотровая канава №2, 3. Планы. Разрез 1-1
   Осмотровая канава. Сечения 2-2 - 7-7. Узлы 1 - 5
   Осмотровая канава. Металлические изделия
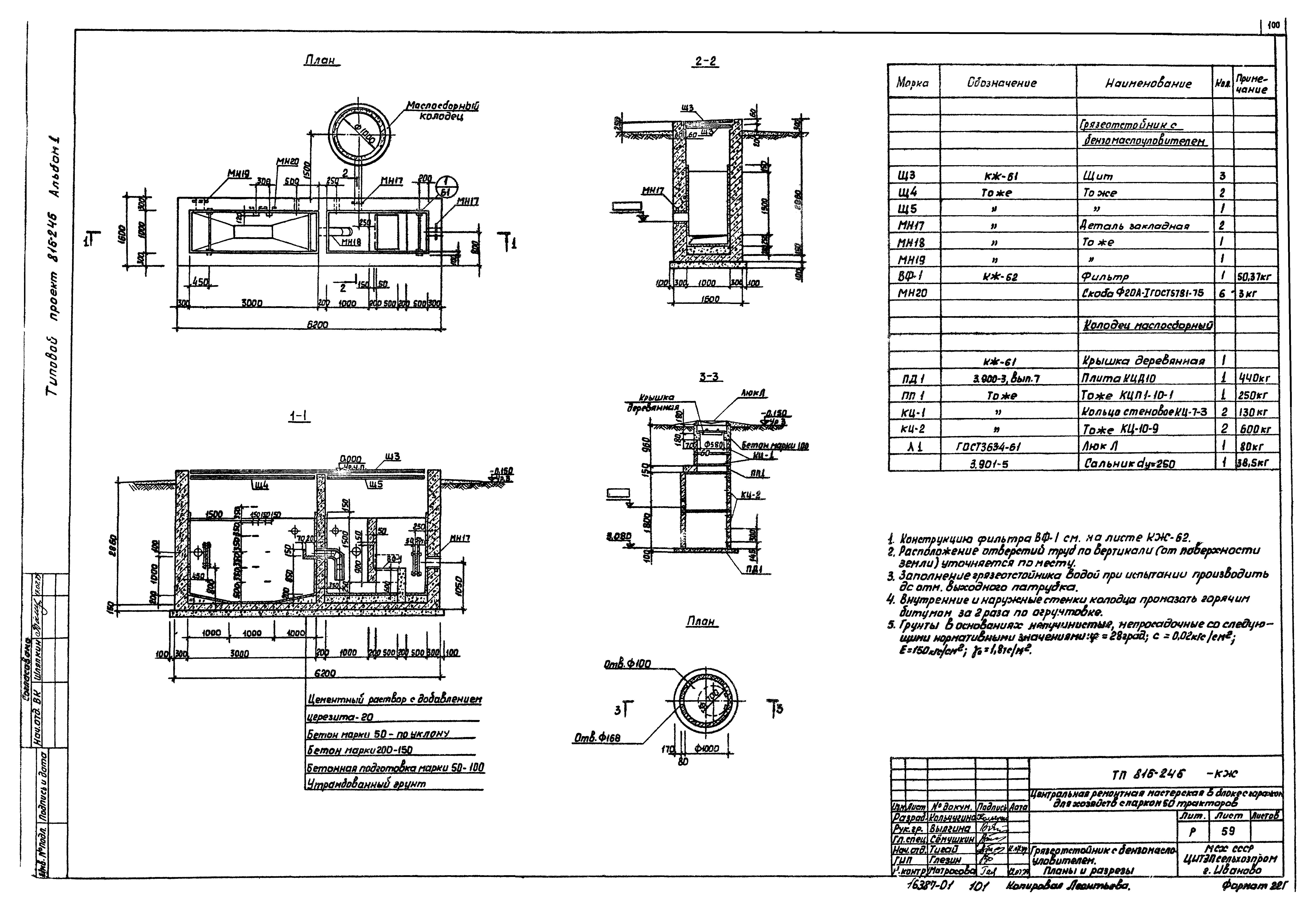
   Грязеотстойник с бензомаслоуловителем. Планы и разрезы
   Грязеотстойник с бензомаслоуловителем. Армирование
   Грязеотстойник с бензомаслоуловителем. Щиты Щ1 - Щ3. Детали. Сборочный чертеж
   Грязеотстойник с бензомаслоуловителем. Фильтр ВФ-1. Сборочный чертеж
   Ворота распашные с калиткой В-4,2х4,5 1.435-17.2.0000А. Сводная спецификация
   Ворота распашные с калиткой В-4,2х4,5 1.435-17.2.0000А
   Ворота распашные с калиткой В-3,6х3,6а
Разработан: ЦИТЭПсельхозпрома
Утверждён:14.03.1977 Минсельхоз СССР (USSR Minselkhoz 20/35)
Расположен в:Техническая документация Строительство Справочные документы Типовые строительные конструкции, изделия и узлы Общероссийский строительный каталог Сельскохозяйственные предприятия, здания и сооружения Предприятия, здания и сооружения по ремонту, техническому обслуживанию, хранению и обеспечению горюче-смазочными материалами сельхозтехники Центральные мастерские хозяйств
Типовой проект 816-246Типовой проект 816-246Типовой проект 816-246Типовой проект 816-246Типовой проект 816-246Типовой проект 816-246Типовой проект 816-246Типовой проект 816-246Типовой проект 816-246Типовой проект 816-246Типовой проект 816-246Типовой проект 816-246Типовой проект 816-246Типовой проект 816-246Типовой проект 816-246Типовой проект 816-246Типовой проект 816-246Типовой проект 816-246Типовой проект 816-246Типовой проект 816-246Типовой проект 816-246Типовой проект 816-246Типовой проект 816-246Типовой проект 816-246Типовой проект 816-246Типовой проект 816-246Типовой проект 816-246Типовой проект 816-246Типовой проект 816-246Типовой проект 816-246Типовой проект 816-246Типовой проект 816-246Типовой проект 816-246Типовой проект 816-246Типовой проект 816-246Типовой проект 816-246Типовой проект 816-246Типовой проект 816-246Типовой проект 816-246Типовой проект 816-246Типовой проект 816-246Типовой проект 816-246Типовой проект 816-246Типовой проект 816-246Типовой проект 816-246Типовой проект 816-246Типовой проект 816-246Типовой проект 816-246Типовой проект 816-246Типовой проект 816-246Типовой проект 816-246Типовой проект 816-246Типовой проект 816-246Типовой проект 816-246Типовой проект 816-246Типовой проект 816-246Типовой проект 816-246Типовой проект 816-246Типовой проект 816-246Типовой проект 816-246Типовой проект 816-246Типовой проект 816-246Типовой проект 816-246Типовой проект 816-246Типовой проект 816-246Типовой проект 816-246Типовой проект 816-246Типовой проект 816-246Типовой проект 816-246Типовой проект 816-246Типовой проект 816-246Типовой проект 816-246Типовой проект 816-246Типовой проект 816-246Типовой проект 816-246Типовой проект 816-246Типовой проект 816-246Типовой проект 816-246Типовой проект 816-246Типовой проект 816-246Типовой проект 816-246Типовой проект 816-246Типовой проект 816-246Типовой проект 816-246Типовой проект 816-246Типовой проект 816-246Типовой проект 816-246Типовой проект 816-246Типовой проект 816-246Типовой проект 816-246Типовой проект 816-246Типовой проект 816-246Типовой проект 816-246Типовой проект 816-246Типовой проект 816-246Типовой проект 816-246Типовой проект 816-246Типовой проект 816-246Типовой проект 816-246Типовой проект 816-246Типовой проект 816-246Типовой проект 816-246Типовой проект 816-246Типовой проект 816-246Типовой проект 816-246Типовой проект 816-246Типовой проект 816-246Типовой проект 816-246

© 2013 Ёшкин Кот :-) Карта сайта