Информационная система
«Ёшкин Кот»

Скачать базу одним архивом
Скачать обновления
История создания базы
Карта сайта

Скачать Типовой проект 816-233 Альбом I. Общая пояснительная записка. Технологические решения. Энергетические решения

Дата актуализации: 10.08.2017

Типовой проект 816-233

Альбом I. Общая пояснительная записка. Технологические решения. Энергетические решения

Обозначение: Типовой проект 816-233
Обозначение англ: 816-233
Статус:действует
Название рус.:Альбом I. Общая пояснительная записка. Технологические решения. Энергетические решения
Дата добавления в базу:01.09.2013
Дата актуализации:05.05.2017
Оглавление:Содержание альбома
Общая пояснительная записка
Технологические решения
   Общие данные
   Спецификация технологического оборудования
   Компоновочный план
   План расположения технологического оборудования
   Конвейеры, технические условия
   Устройство для перемещения тракторов ОПТ-5537 на участке 1 поз. 2. Монтажный чертеж
   Конвейер подвесной грузонесущий типа ГН-160Р на участке 1 поз. 5. Монтажный чертеж
   Конвейер подвесной грузонесущий типа ГН-100Р на участке 4 поз. 27. Монтажный чертеж
   Устройство для перемещения тракторов ОПТ-5537 на участке 7 поз. 3. Монтажный чертеж
   Конвейер подвесной грузонесущий типа ГН-100Р на участке 11 поз. 31. Монтажный чертеж
   Конвейер грузонесущий напольный тележечный КГНТ-250-500-Р100 на участке 17 поз. 11. Монтажный чертеж
   Конвейер для сборки трактора К-700 4951.00.000 на участке 27 поз. 34. Монтажный чертеж
   Механизм открывания стальных оконных панелей одинарного остекления. Монтажный чертеж
   Механизм открывания стальных оконных панелей двойного остекления. Монтажный чертеж
Энергетические решения
   Общие данные
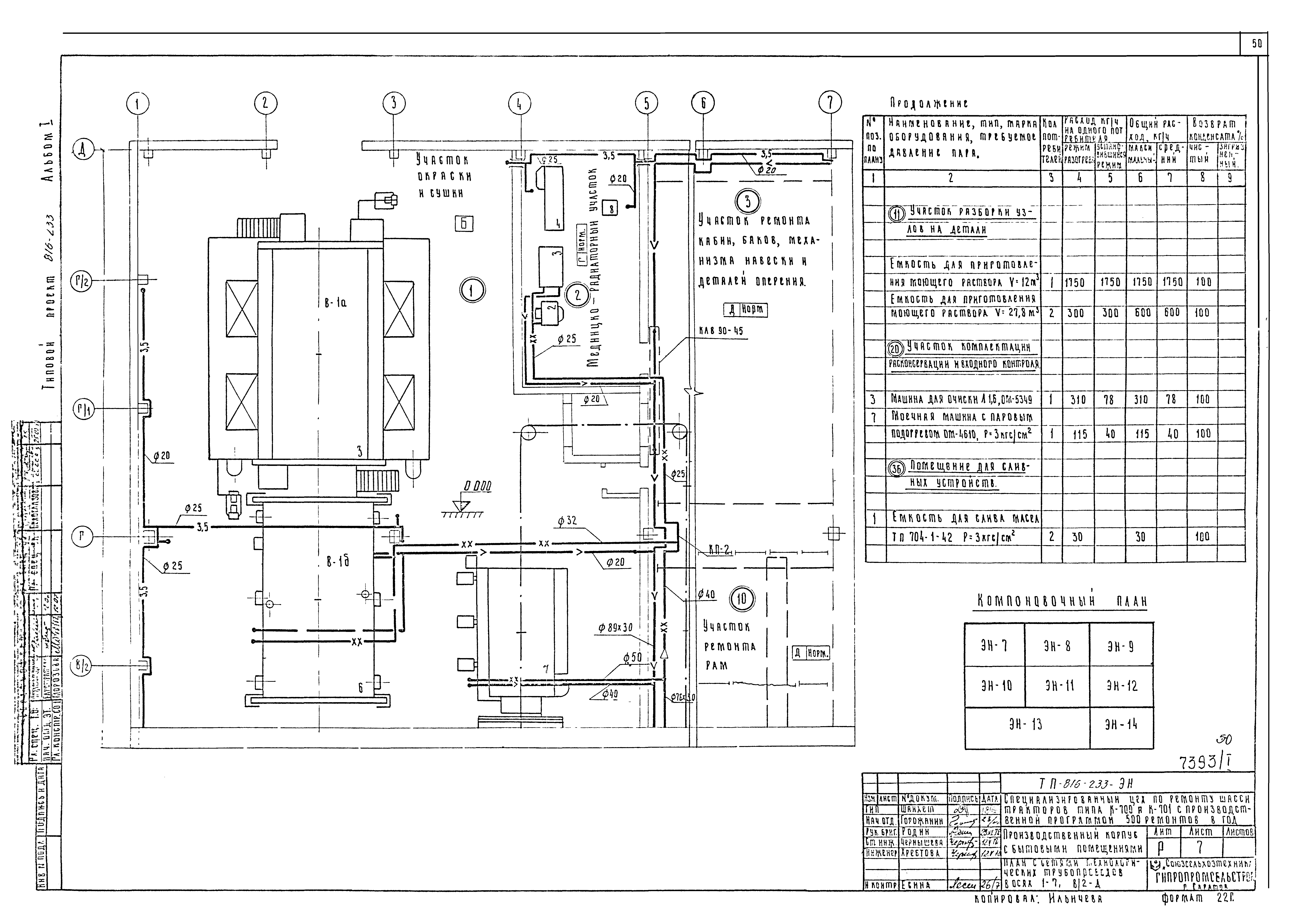
   План с сетями технологических трубопроводов в осях 1-7; В/2-Д
   План с сетями технологических трубопроводов в осях 7-13; В/2-Д
   План с сетями технологических трубопроводов в осях 13-19; В/2-Д
   План с сетями технологических трубопроводов в осях 1-7; Б-В/1
   План с сетями технологических трубопроводов в осях 7-13; Б-В/1
   План с сетями технологических трубопроводов в осях 13-19; Б-В/1
   План с сетями технологических трубопроводов в осях 1-7; А-В. Фрагмент плана на отм. - 1.800
   План с сетями технологических трубопроводов в осях 7-19; А-Б
   Центральный растворный пункт. План на отм. 0.000 и - 2.000
   Схема трубопроводов сжатого воздуха
   Схемы технологических трубопроводов. Сечение канала Б-Б
   Схема трубопроводов технологического пароснабжения
   Схемы технологических трубопроводов. Сечение канала А-А
   Схемы технологических трубопроводов. План на отм. - 3.000
Разработан: Гипропромсельстрой
Утверждён:30.06.1977 Союзсельхозтехника (31)
Расположен в:Техническая документация Строительство Справочные документы Типовые строительные конструкции, изделия и узлы Общероссийский строительный каталог Сельскохозяйственные предприятия, здания и сооружения Предприятия, здания и сооружения по ремонту, техническому обслуживанию, хранению и обеспечению горюче-смазочными материалами сельхозтехники Ремонтные предприятия районных агропромышленных объединений
Типовой проект 816-233Типовой проект 816-233Типовой проект 816-233Типовой проект 816-233Типовой проект 816-233Типовой проект 816-233Типовой проект 816-233Типовой проект 816-233Типовой проект 816-233Типовой проект 816-233Типовой проект 816-233Типовой проект 816-233Типовой проект 816-233Типовой проект 816-233Типовой проект 816-233Типовой проект 816-233Типовой проект 816-233Типовой проект 816-233Типовой проект 816-233Типовой проект 816-233Типовой проект 816-233Типовой проект 816-233Типовой проект 816-233Типовой проект 816-233Типовой проект 816-233Типовой проект 816-233Типовой проект 816-233Типовой проект 816-233Типовой проект 816-233Типовой проект 816-233Типовой проект 816-233Типовой проект 816-233Типовой проект 816-233Типовой проект 816-233Типовой проект 816-233Типовой проект 816-233Типовой проект 816-233Типовой проект 816-233Типовой проект 816-233Типовой проект 816-233Типовой проект 816-233Типовой проект 816-233Типовой проект 816-233Типовой проект 816-233Типовой проект 816-233Типовой проект 816-233Типовой проект 816-233Типовой проект 816-233Типовой проект 816-233Типовой проект 816-233Типовой проект 816-233Типовой проект 816-233Типовой проект 816-233Типовой проект 816-233Типовой проект 816-233Типовой проект 816-233Типовой проект 816-233Типовой проект 816-233Типовой проект 816-233Типовой проект 816-233Типовой проект 816-233Типовой проект 816-233Типовой проект 816-233Типовой проект 816-233Типовой проект 816-233

© 2013 Ёшкин Кот :-) Карта сайта