Информационная система
«Ёшкин Кот»

Скачать базу одним архивом
Скачать обновления
История создания базы
Карта сайта

Скачать Типовой проект 816-187 Альбом II. Архитектурно-строительные чертежи

Дата актуализации: 10.08.2017

Типовой проект 816-187

Альбом II. Архитектурно-строительные чертежи

Обозначение: Типовой проект 816-187
Обозначение англ: 816-187
Статус:действует
Название рус.:Альбом II. Архитектурно-строительные чертежи
Дата добавления в базу:01.09.2013
Дата актуализации:05.05.2017
Оглавление:Обложка
Титульный лист
Содержание альбома
Пояснительная записка
Заглавный лист
План на отм. 0.000 в осях 1 - 13
План на отм. 0.000 в осях 14 - 16
План на отм. 3.300 в осях 14 - 16
Разрезы 1-1, 2-2, 3-3
Фасады
Схемы заполнения оконных проемов
Элементы планов
План на отм. - 3.300. Разрезы, детали
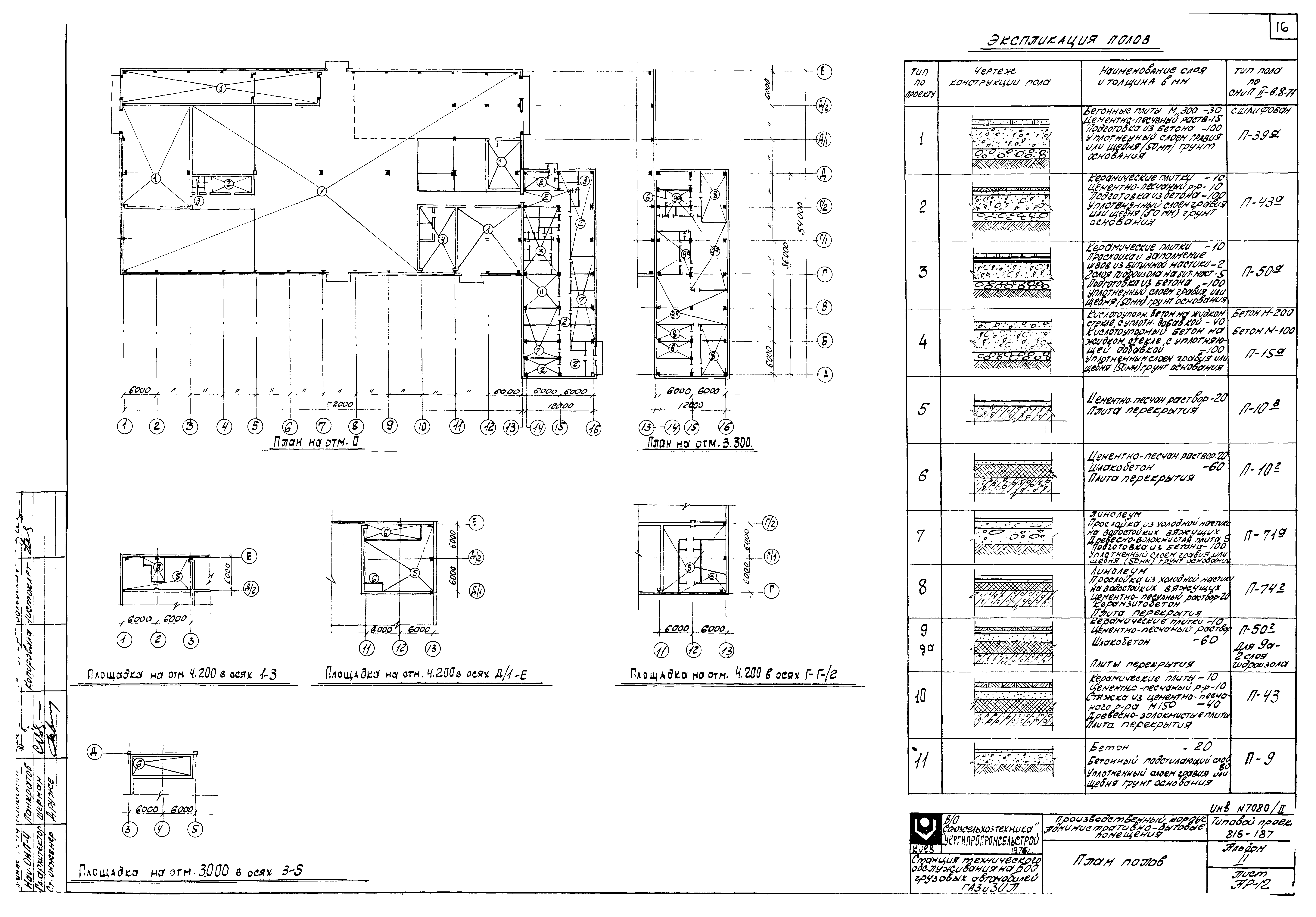
План полов. Экспликация полов
План с расположением технологического оборудования буфета
Перечень чертежей марки КС
Сводная спецификация сборных железобетонных изделий и стальных элементов (производственный корпус)
Сводная спецификация сборных железобетонных изделий и стальных элементов (административно-бытовой корпус)
План фундаментов
Сечения 1-1 - 6-6. Спецификации
Элементы плана 1 - 4
Элементы плана 5 - 8
Элементы плана 9 - 11
Элементы плана 12 - 14
Фундаменты ФА-43, ФА37-1
Фундаменты ФА19-1, ФА43-1
Фундаменты ФБ73-1, ФА-55
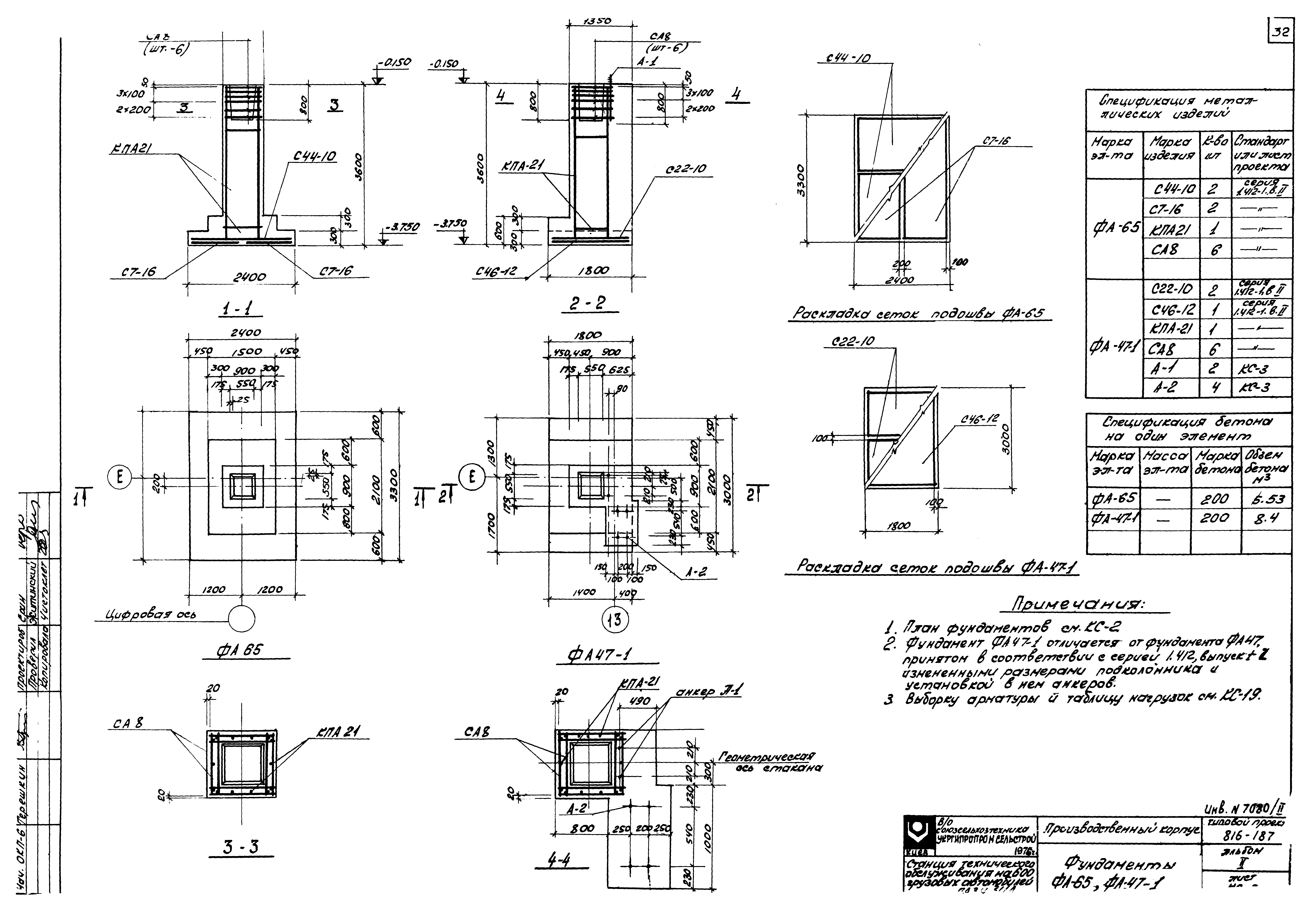
Фундаменты ФА-65, ФА-47-1
Фундаменты ФА-49, ФА-50
Фундаменты ФА-50-1, ФА-37-2
Фундаменты ФМ13, ФМ14
Фундаменты ФМ15, ФБ-85
Фундаменты ФБ-50-1, ФБ-31-1
Фундаменты ФБ-19, ФБ32-1
Каркасы КР-1; КР-2. Сетки С-1, С-2
Таблица нагрузок. Выборка арматуры
Раскладка стеновых блоков склада масел и топлива
Сечения 7-7 - 12-12. Перемычки склада масел и топлива
План фундаментов. Элементы плана №1 и №2
Фундаменты ФМ-1, ФМ-2, ФМ-3, ФДЖ
План подземного хозяйства
Смотровые канавы СК-1, СК-2. План. Разрезы 1-1 - 10-10
Смотровая канава СК-3. План. Разрезы. Детали. Спецификация
Фундаменты ФО-6; ФО-10; ФО-12
Смотровая канава СК-4. План. Разрезы
Узлы "А", "Б", "В". Сечения. Спецификации
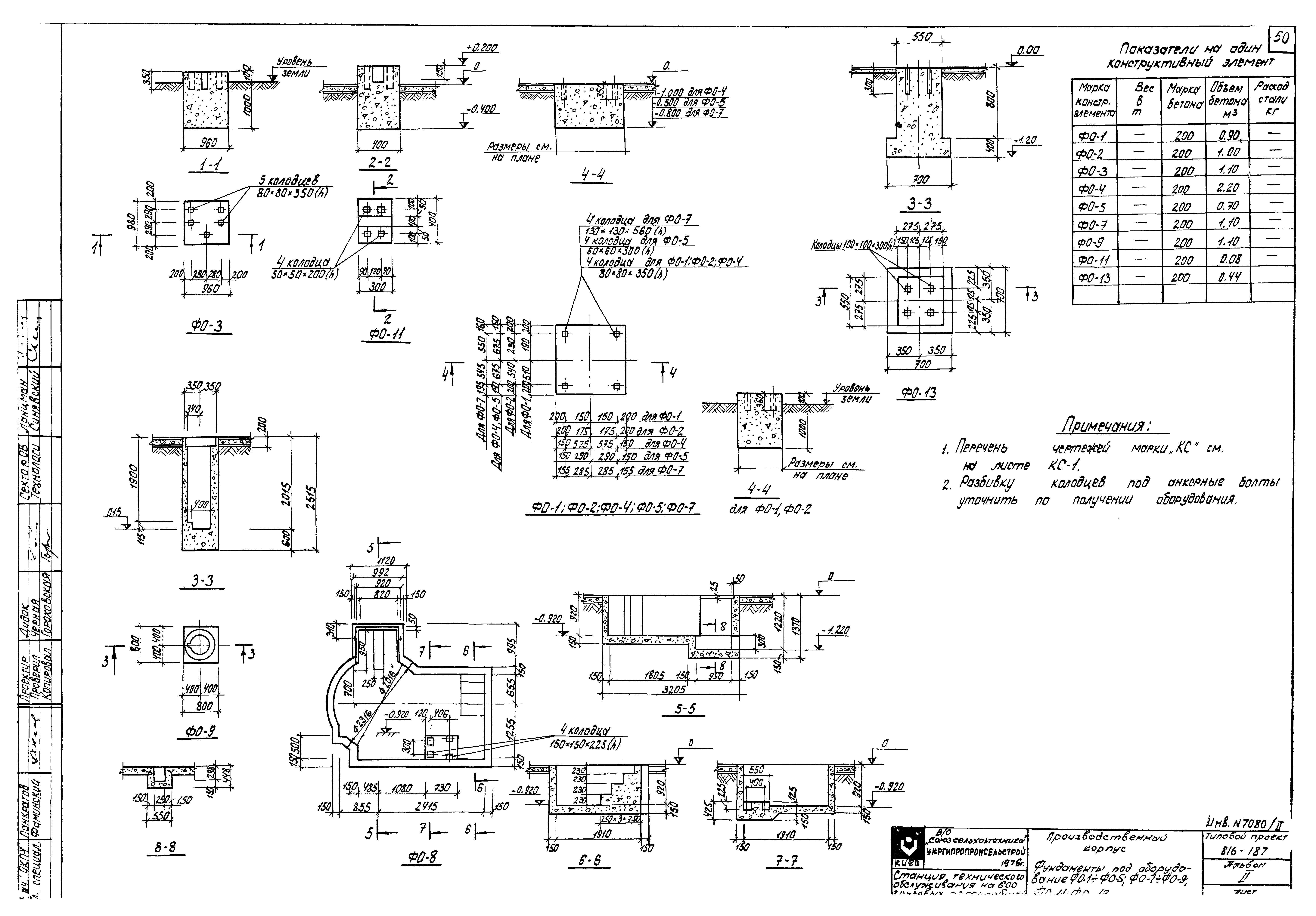
Фундаменты под оборудование ФО-1 - ФО-5; ФО-7 - ФО-9
Каналы подпольного хозяйства №1 - №3; №10 - №12
Каналы №5 - №9
Плиты ПМ-1. Деталь установки стаканов на покрытие. Планы фундаментов под оборудование подземных каналов
Монтажная схема колонн и рам ворот
Монтажный план подстропильных и стропильных ферм. План приварки стальных изделий к стропильным и подстропильным фермам
Монтажно-маркировочные планы железобетонных элементов каркаса здания и лестничных клеток
Каркас. Разрезы 1-1 - 6-6. Раскладка проступей на лестничные марши. Спецификация монтажных узлов и соединительных элементов
Монтажная схема плит покрытия
Монтажные схемы перекрытий на отм. + 2.900 и + 4.100 м
Перекрытия на отм. + 2.900 и + 4.100. Узлы "2", "4" - "7"
Венткамеры. Узлы 8, 9, 10 ,11 ,12 ,13, 15, 16
Монтажно-маркировочные планы плит перекрытия и покрытия
Монтажная схема стеновых панелей и монтажных узлов крепления
Монтажная схема стоек и посадок торцевого фахверка. Спецификации
Раскладка стеновых панелей по осям 14; 16; А; Д
Монтажный план перемычек. Монтажный план плит покрытия склада масел
Раскладка панелей перегородок. План на отм.0.000. План фундаментов под металлические стойки. Спецификации
Узел "А" и "Б". Фундамент Фм-21
Колонна К-3, К-4, К-5. Опалубка. Армирование
Колонна К-8, К-9. Опалубка. Армирование
Конструкции с дополнительными закладными элементами. Плиты П-3 - П-6; П-12. Фермы ФБ-1, ФБ-2
Колонна К-10, К-11. Опалубка. Армирование
Колонны К-10, К-11. Узлы I - IV, "А", "Б". Спецификации
Колонны К-10, К-11. Каркасы КР-1 - КР-6. Закладные элементы М1 - М5
Колонны 1-го этажа с дополнительными закладными деталями
Колонны 2-го этажа с дополнительными закладными деталями
Разбивка дополнительных закладных деталей в К-1; К-2; К-4 - К-6
Плиты перекрытия и покрытия с отверстиями. Опалубочные чертежи. Стеновая панель Н-60-90
Плиты П-1; П-2; П-5; П-7; П-9; Пп-3 с дополнительными закладными деталями и отверстиями Б-1 и ОП-1. Опалубка и армирование
Планы перегородок венткамер №1, 2, 3
Перегородки венткамер №1, 2, 3. Спецификации
Монтажный план стоек и перегородок. Виды 1-1 - 5-5. Спецификации
Монтажные схемы лестниц
Марки МД-1, МД-2, МД-4 - МД-6, 3Д-1 - 3Д5, МБ-1, МБ-2
Оконные панели ДО-180*, О-120*, О-115*
Рамы оконных панелей Р-7*, Р-8*, Р-13*. Детали рам
Плиты перекрытия и покрытия с отверстиями. Конструкция сеток и закладных деталей
Металлические ригели Рн-1 - Рн-3, Рн-2а, Рн-36. Закладные детали ЗД-6 - ЗД9; А-2. Балки Б-2
Закладные детали ЗД-10 - ЗД-15; ЗД-17 - ЗД-22. Сетки С-1 - С-3
Монтажная схема подвесных крановых путей
Разработан: Укргипропромсельстрой
Утверждён:09.07.1976 Союзсельхозтехника (44)
Расположен в:Техническая документация Строительство Справочные документы Типовые строительные конструкции, изделия и узлы Общероссийский строительный каталог Промышленные предприятия, здания и сооружения Предприятия, здания и сооружения транспорта Транспорт автомобильный Корпуса производственные, станции технического обслуживания и ремонта грузовых и легковых автомобилей и автобусов
Типовой проект 816-187Типовой проект 816-187Типовой проект 816-187Типовой проект 816-187Типовой проект 816-187Типовой проект 816-187Типовой проект 816-187Типовой проект 816-187Типовой проект 816-187Типовой проект 816-187Типовой проект 816-187Типовой проект 816-187Типовой проект 816-187Типовой проект 816-187Типовой проект 816-187Типовой проект 816-187Типовой проект 816-187Типовой проект 816-187Типовой проект 816-187Типовой проект 816-187Типовой проект 816-187Типовой проект 816-187Типовой проект 816-187Типовой проект 816-187Типовой проект 816-187Типовой проект 816-187Типовой проект 816-187Типовой проект 816-187Типовой проект 816-187Типовой проект 816-187Типовой проект 816-187Типовой проект 816-187Типовой проект 816-187Типовой проект 816-187Типовой проект 816-187Типовой проект 816-187Типовой проект 816-187Типовой проект 816-187Типовой проект 816-187Типовой проект 816-187Типовой проект 816-187Типовой проект 816-187Типовой проект 816-187Типовой проект 816-187Типовой проект 816-187Типовой проект 816-187Типовой проект 816-187Типовой проект 816-187Типовой проект 816-187Типовой проект 816-187Типовой проект 816-187Типовой проект 816-187Типовой проект 816-187Типовой проект 816-187Типовой проект 816-187Типовой проект 816-187Типовой проект 816-187Типовой проект 816-187Типовой проект 816-187Типовой проект 816-187Типовой проект 816-187Типовой проект 816-187Типовой проект 816-187Типовой проект 816-187Типовой проект 816-187Типовой проект 816-187Типовой проект 816-187Типовой проект 816-187Типовой проект 816-187Типовой проект 816-187Типовой проект 816-187Типовой проект 816-187Типовой проект 816-187Типовой проект 816-187Типовой проект 816-187Типовой проект 816-187Типовой проект 816-187Типовой проект 816-187Типовой проект 816-187Типовой проект 816-187Типовой проект 816-187Типовой проект 816-187Типовой проект 816-187Типовой проект 816-187Типовой проект 816-187Типовой проект 816-187Типовой проект 816-187Типовой проект 816-187

© 2013 Ёшкин Кот :-) Карта сайта