Информационная система
«Ёшкин Кот»

Скачать базу одним архивом
Скачать обновления
История создания базы
Карта сайта

Скачать Типовой проект 816-1-22 Альбом 1. Технологические решения. Архитектурно-строительные решения. Внутренние водопровод и канализация. Отопление и вентиляция. Электрооборудование. Автоматизация. Связь и сигнализация

Дата актуализации: 10.08.2017

Типовой проект 816-1-22

Альбом 1. Технологические решения. Архитектурно-строительные решения. Внутренние водопровод и канализация. Отопление и вентиляция. Электрооборудование. Автоматизация. Связь и сигнализация

Обозначение: Типовой проект 816-1-22
Обозначение англ: 816-1-22
Статус:действует
Название рус.:Альбом 1. Технологические решения. Архитектурно-строительные решения. Внутренние водопровод и канализация. Отопление и вентиляция. Электрооборудование. Автоматизация. Связь и сигнализация
Дата добавления в базу:01.09.2013
Дата актуализации:05.05.2017
Оглавление:Ведомость рабочих чертежей основного комплекта ТХ
   Общие данные
   План установки технологического оборудования. Спецификация
Ведомость рабочих чертежей основного комплекта АС
   Общие данные
   Фасады. Схемы заполнения оконных проемов
   Планы на отм. 0.000 и 3.600. Разрезы 1-1 - 3-3
   Схемы расположения полов и перемычек
   Схемы расположения плит покрытия и перекрытия
   План кровли. Схема расположения кронштейнов и отверстий в стенах и перегородках
   Схема расположения фундаментов и подпольных каналов
   Фрагмент 1. Фундаменты Фм1, Фм2
   Сборочные чертежи изделий. Разрезы, сечения
   Каркас КП1. Сетки С2 - С4
   Схемы расположения подвесных путей
Ведомость рабочих чертежей основного комплекта ВК
   Общие данные
   План систем на отм. 0.000 и 3.600
   Схема системы В1, Т3
   Схема систем К1 и К3
   Грязеотстойник с бензомаслоуловителем
Ведомость рабочих чертежей основного комплекта ОВ
   Общие данные
   Планы на отм. 0.000 и 3.600
   Схемы систем отопления 1, 2 и теплоснабжения калориферов систем П1, П2, А1
   Схемы систем вентиляции П1, П2, В1, В2, ВЕ1 - ВЕ4
   Установка систем П1, П2
   Установка систем В1, В2, ВЕ1, А1
   Схема узла управления, коллектор 1
   Сборочный чертеж, разрезы
   Переходы. Лючок с заглушкой
Ведомость рабочих чертежей основного комплекта ЭМ
   Общие данные
   Планы силовой и осветительной сети
   Расчетная схема силовой сети
   Крепление светильников в нише
Ведомость рабочих чертежей основного комплекта АОВ
   Общие данные
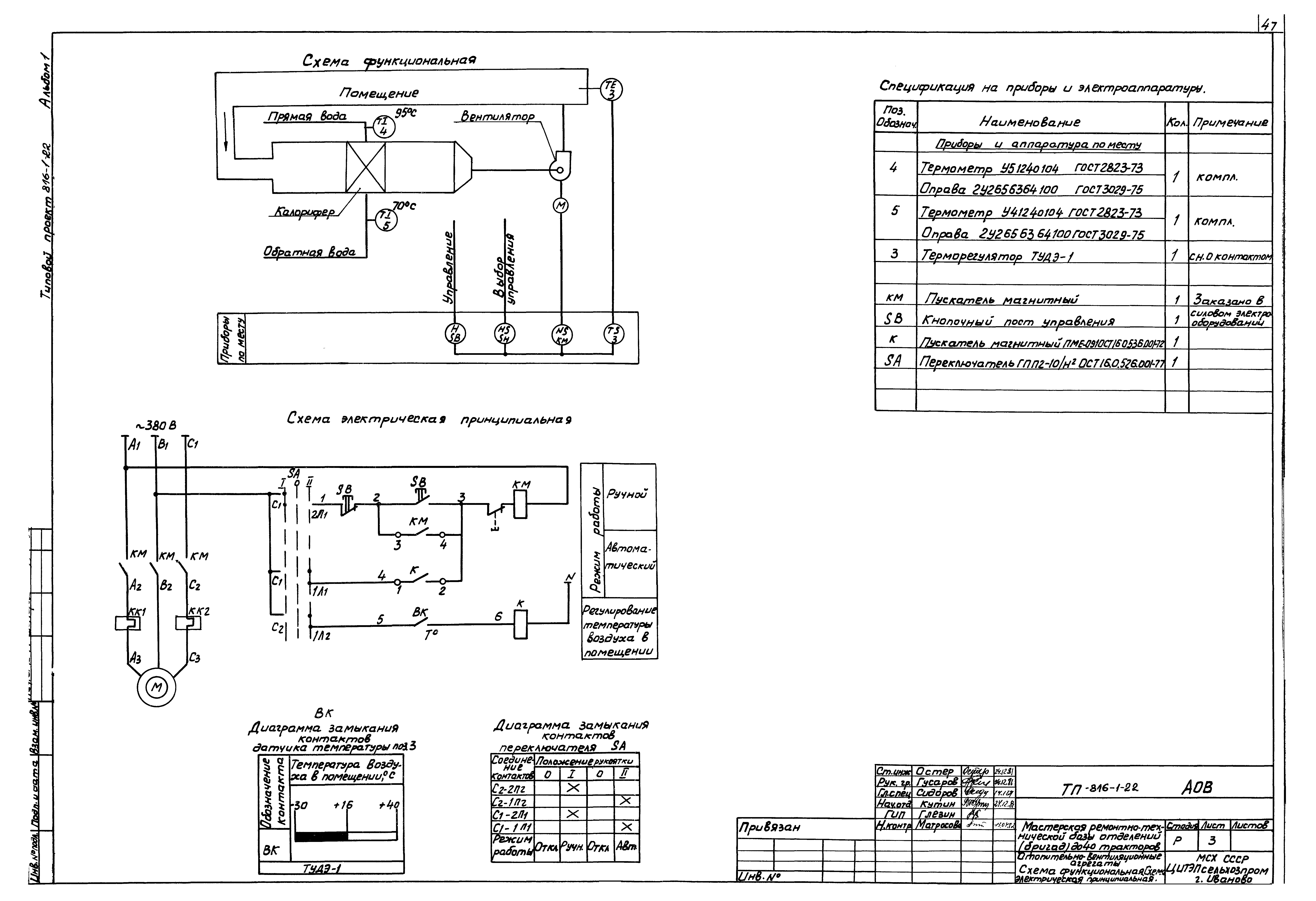
   Приточная система П1 (П2). Схема функциональная
   Отопительно-вентиляционный агрегат А1. Схема функциональная
   Схема электрическая принципиальная отключения двигателей при пожаре
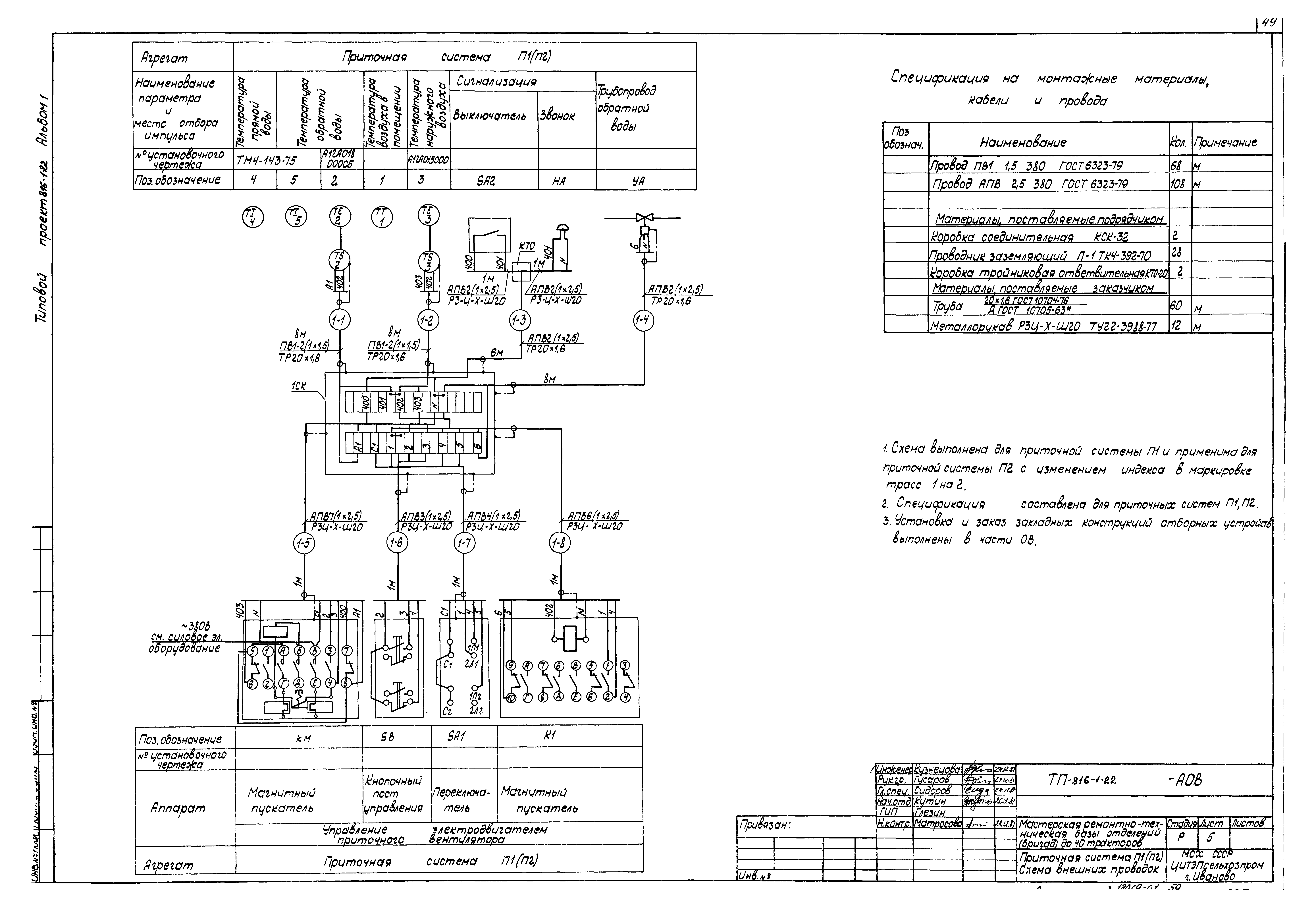
   Приточная система П1 (П2). Схема внешних проводок
   Отопительно-вентиляционный агрегат А1. Схема внешних проводок
   Узел управления. Схема функциональная
   Задвижка. Схема электрическая принципиальная
   Задвижка. Схема внешних проводок
   Схемы расположения на отм. 0.000 и 3.600
Ведомость рабочих чертежей основного комплекта УСП
   Общие данные
   Схема внешних проводок
   Устройство связи и пожарной сигнализации. Планы на отм. 0.000; 3.600
Разработан: ЦИТЭПсельхозпрома
Утверждён:15.09.1981 Минсельхоз СССР (USSR Minselkhoz 91)
Расположен в:Техническая документация Строительство Справочные документы Типовые строительные конструкции, изделия и узлы Общероссийский строительный каталог Сельскохозяйственные предприятия, здания и сооружения Предприятия, здания и сооружения по ремонту, техническому обслуживанию, хранению и обеспечению горюче-смазочными материалами сельхозтехники Мастерские отделений хозяйств
Типовой проект 816-1-22Типовой проект 816-1-22Типовой проект 816-1-22Типовой проект 816-1-22Типовой проект 816-1-22Типовой проект 816-1-22Типовой проект 816-1-22Типовой проект 816-1-22Типовой проект 816-1-22Типовой проект 816-1-22Типовой проект 816-1-22Типовой проект 816-1-22Типовой проект 816-1-22Типовой проект 816-1-22Типовой проект 816-1-22Типовой проект 816-1-22Типовой проект 816-1-22Типовой проект 816-1-22Типовой проект 816-1-22Типовой проект 816-1-22Типовой проект 816-1-22Типовой проект 816-1-22Типовой проект 816-1-22Типовой проект 816-1-22Типовой проект 816-1-22Типовой проект 816-1-22Типовой проект 816-1-22Типовой проект 816-1-22Типовой проект 816-1-22Типовой проект 816-1-22Типовой проект 816-1-22Типовой проект 816-1-22Типовой проект 816-1-22Типовой проект 816-1-22Типовой проект 816-1-22Типовой проект 816-1-22Типовой проект 816-1-22Типовой проект 816-1-22Типовой проект 816-1-22Типовой проект 816-1-22Типовой проект 816-1-22Типовой проект 816-1-22Типовой проект 816-1-22Типовой проект 816-1-22Типовой проект 816-1-22Типовой проект 816-1-22Типовой проект 816-1-22Типовой проект 816-1-22Типовой проект 816-1-22Типовой проект 816-1-22Типовой проект 816-1-22Типовой проект 816-1-22Типовой проект 816-1-22Типовой проект 816-1-22Типовой проект 816-1-22Типовой проект 816-1-22Типовой проект 816-1-22

© 2013 Ёшкин Кот :-) Карта сайта