Информационная система
«Ёшкин Кот»

Скачать базу одним архивом
Скачать обновления
История создания базы
Карта сайта

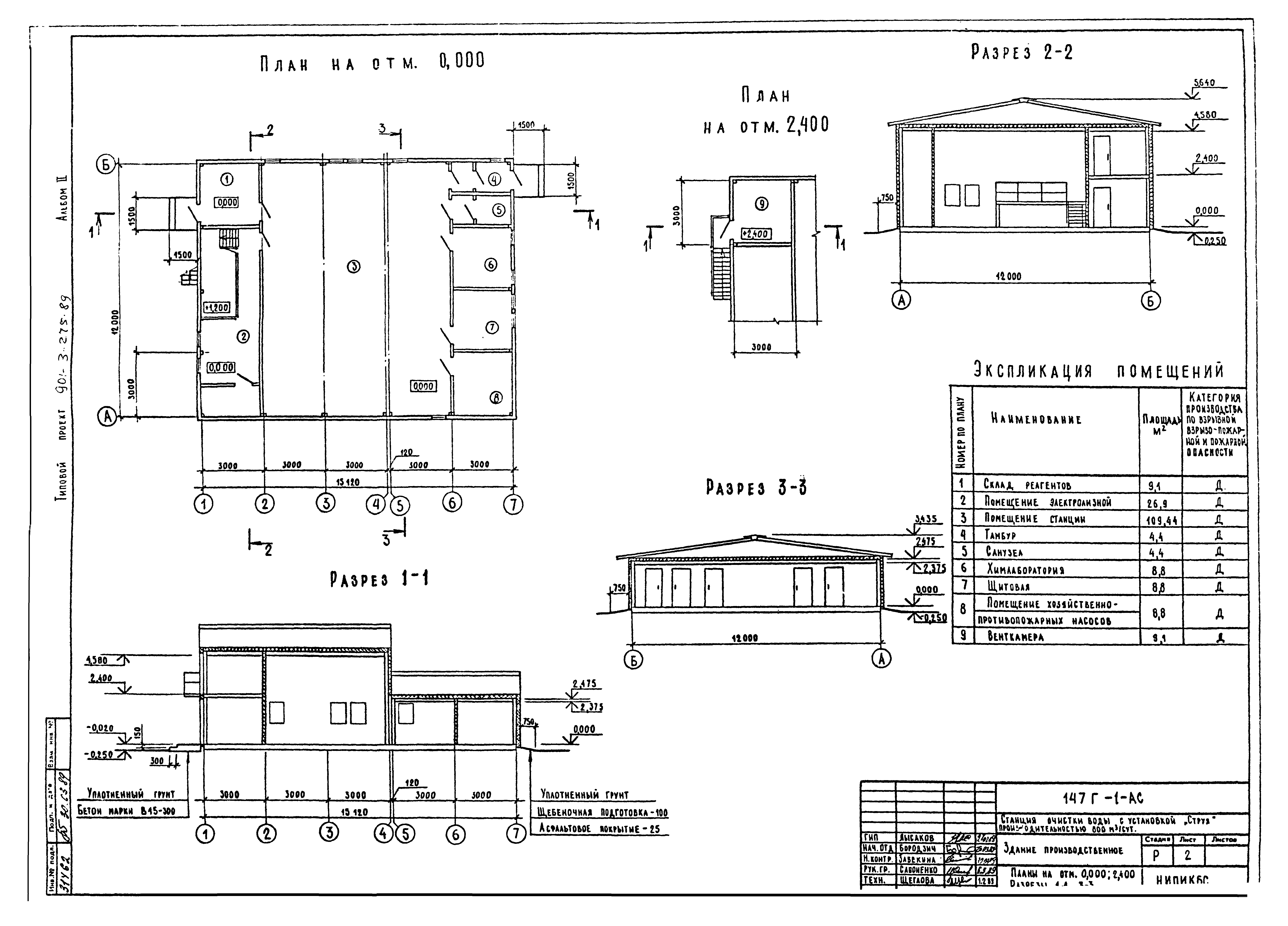
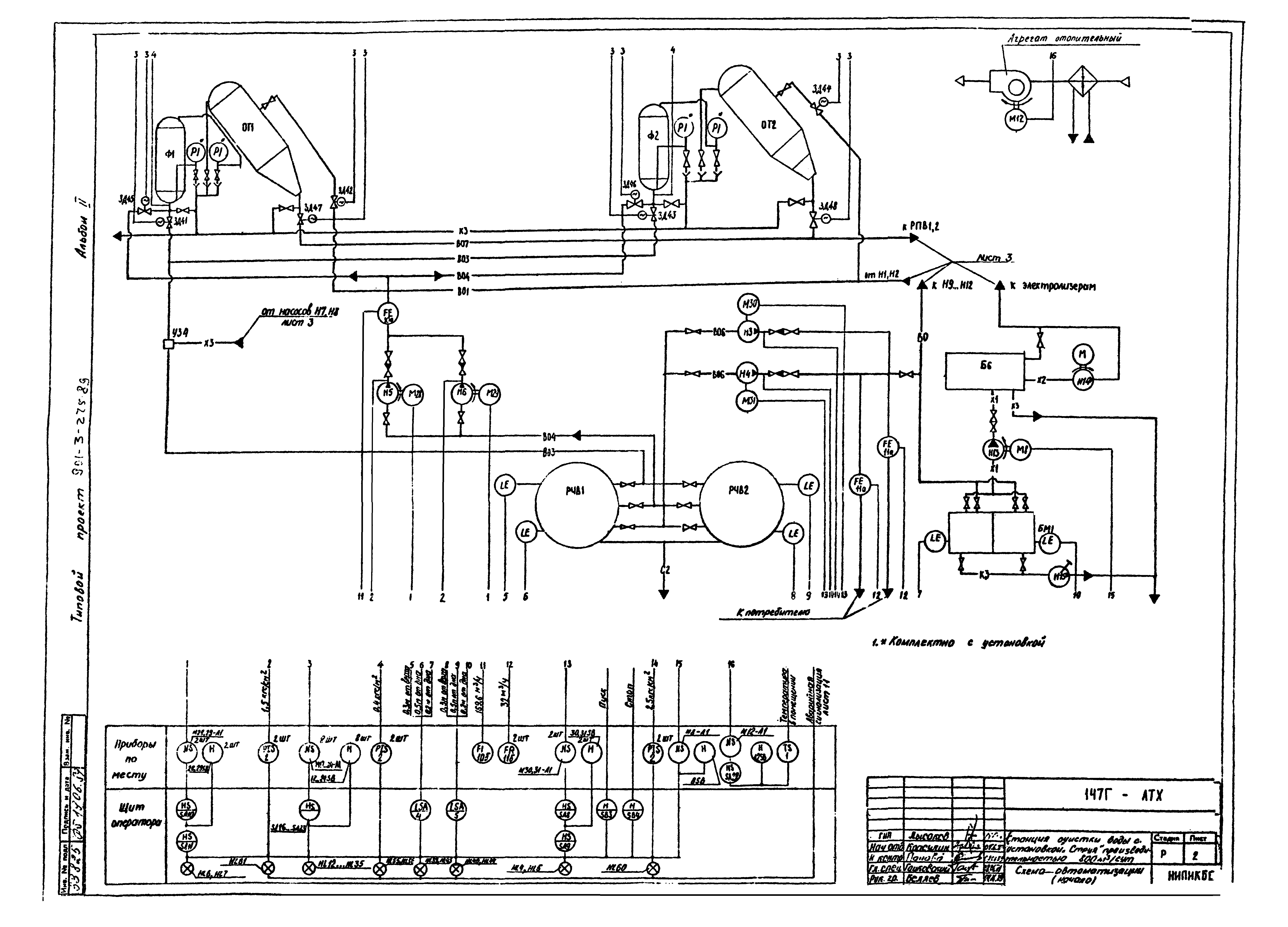
Скачать Типовой проект 901-3-275.89 Альбом 2. Рабочие чертежи и документации для производства работ на строительной площадке

Дата актуализации: 10.08.2017

Типовой проект 901-3-275.89

Альбом 2. Рабочие чертежи и документации для производства работ на строительной площадке

Обозначение: Типовой проект 901-3-275.89
Обозначение англ: 901-3-275.89
Статус:не определен законодательством
Название рус.:Альбом 2. Рабочие чертежи и документации для производства работ на строительной площадке
Дата добавления в базу:01.09.2013
Дата актуализации:05.05.2017
Дата введения:01.01.1989
Разработан: НИПИ КБС Миннефтегазстроя
Утверждён:01.01.1989 Миннефтегазстрой (Minneftegazstroy )
Издан: ЦИТП Госстроя СССР (CITP, Gosstroy (USSR) 1990 г. )
Расположен в:Техническая документация Строительство Справочные документы Типовые строительные конструкции, изделия и узлы Общероссийский строительный каталог Промышленные предприятия, здания и сооружения Здания и сооружения санитарно-технические Водоснабжение Очистные сооружения Станции очистки воды в комплектно-блочном исполнении
Типовой проект 901-3-275.89Типовой проект 901-3-275.89Типовой проект 901-3-275.89Типовой проект 901-3-275.89Типовой проект 901-3-275.89Типовой проект 901-3-275.89Типовой проект 901-3-275.89Типовой проект 901-3-275.89Типовой проект 901-3-275.89Типовой проект 901-3-275.89Типовой проект 901-3-275.89Типовой проект 901-3-275.89Типовой проект 901-3-275.89Типовой проект 901-3-275.89Типовой проект 901-3-275.89Типовой проект 901-3-275.89Типовой проект 901-3-275.89Типовой проект 901-3-275.89Типовой проект 901-3-275.89Типовой проект 901-3-275.89Типовой проект 901-3-275.89Типовой проект 901-3-275.89Типовой проект 901-3-275.89Типовой проект 901-3-275.89Типовой проект 901-3-275.89Типовой проект 901-3-275.89Типовой проект 901-3-275.89Типовой проект 901-3-275.89Типовой проект 901-3-275.89Типовой проект 901-3-275.89Типовой проект 901-3-275.89Типовой проект 901-3-275.89Типовой проект 901-3-275.89Типовой проект 901-3-275.89Типовой проект 901-3-275.89Типовой проект 901-3-275.89Типовой проект 901-3-275.89Типовой проект 901-3-275.89Типовой проект 901-3-275.89Типовой проект 901-3-275.89Типовой проект 901-3-275.89Типовой проект 901-3-275.89Типовой проект 901-3-275.89Типовой проект 901-3-275.89Типовой проект 901-3-275.89Типовой проект 901-3-275.89Типовой проект 901-3-275.89Типовой проект 901-3-275.89Типовой проект 901-3-275.89Типовой проект 901-3-275.89Типовой проект 901-3-275.89Типовой проект 901-3-275.89Типовой проект 901-3-275.89Типовой проект 901-3-275.89Типовой проект 901-3-275.89Типовой проект 901-3-275.89Типовой проект 901-3-275.89Типовой проект 901-3-275.89Типовой проект 901-3-275.89Типовой проект 901-3-275.89Типовой проект 901-3-275.89Типовой проект 901-3-275.89Типовой проект 901-3-275.89Типовой проект 901-3-275.89Типовой проект 901-3-275.89Типовой проект 901-3-275.89Типовой проект 901-3-275.89Типовой проект 901-3-275.89Типовой проект 901-3-275.89Типовой проект 901-3-275.89Типовой проект 901-3-275.89Типовой проект 901-3-275.89Типовой проект 901-3-275.89Типовой проект 901-3-275.89Типовой проект 901-3-275.89Типовой проект 901-3-275.89Типовой проект 901-3-275.89Типовой проект 901-3-275.89Типовой проект 901-3-275.89Типовой проект 901-3-275.89Типовой проект 901-3-275.89Типовой проект 901-3-275.89Типовой проект 901-3-275.89Типовой проект 901-3-275.89Типовой проект 901-3-275.89Типовой проект 901-3-275.89Типовой проект 901-3-275.89Типовой проект 901-3-275.89Типовой проект 901-3-275.89Типовой проект 901-3-275.89Типовой проект 901-3-275.89Типовой проект 901-3-275.89Типовой проект 901-3-275.89Типовой проект 901-3-275.89Типовой проект 901-3-275.89Типовой проект 901-3-275.89Типовой проект 901-3-275.89Типовой проект 901-3-275.89Типовой проект 901-3-275.89Типовой проект 901-3-275.89Типовой проект 901-3-275.89Типовой проект 901-3-275.89Типовой проект 901-3-275.89Типовой проект 901-3-275.89Типовой проект 901-3-275.89Типовой проект 901-3-275.89Типовой проект 901-3-275.89Типовой проект 901-3-275.89Типовой проект 901-3-275.89Типовой проект 901-3-275.89Типовой проект 901-3-275.89Типовой проект 901-3-275.89Типовой проект 901-3-275.89Типовой проект 901-3-275.89Типовой проект 901-3-275.89Типовой проект 901-3-275.89Типовой проект 901-3-275.89Типовой проект 901-3-275.89Типовой проект 901-3-275.89Типовой проект 901-3-275.89Типовой проект 901-3-275.89Типовой проект 901-3-275.89Типовой проект 901-3-275.89Типовой проект 901-3-275.89Типовой проект 901-3-275.89Типовой проект 901-3-275.89Типовой проект 901-3-275.89Типовой проект 901-3-275.89Типовой проект 901-3-275.89Типовой проект 901-3-275.89Типовой проект 901-3-275.89Типовой проект 901-3-275.89Типовой проект 901-3-275.89Типовой проект 901-3-275.89Типовой проект 901-3-275.89Типовой проект 901-3-275.89Типовой проект 901-3-275.89Типовой проект 901-3-275.89Типовой проект 901-3-275.89Типовой проект 901-3-275.89Типовой проект 901-3-275.89Типовой проект 901-3-275.89Типовой проект 901-3-275.89Типовой проект 901-3-275.89Типовой проект 901-3-275.89Типовой проект 901-3-275.89Типовой проект 901-3-275.89Типовой проект 901-3-275.89Типовой проект 901-3-275.89Типовой проект 901-3-275.89Типовой проект 901-3-275.89Типовой проект 901-3-275.89Типовой проект 901-3-275.89Типовой проект 901-3-275.89Типовой проект 901-3-275.89Типовой проект 901-3-275.89Типовой проект 901-3-275.89Типовой проект 901-3-275.89Типовой проект 901-3-275.89Типовой проект 901-3-275.89Типовой проект 901-3-275.89Типовой проект 901-3-275.89Типовой проект 901-3-275.89Типовой проект 901-3-275.89Типовой проект 901-3-275.89Типовой проект 901-3-275.89Типовой проект 901-3-275.89Типовой проект 901-3-275.89Типовой проект 901-3-275.89Типовой проект 901-3-275.89Типовой проект 901-3-275.89Типовой проект 901-3-275.89Типовой проект 901-3-275.89Типовой проект 901-3-275.89Типовой проект 901-3-275.89Типовой проект 901-3-275.89Типовой проект 901-3-275.89Типовой проект 901-3-275.89Типовой проект 901-3-275.89Типовой проект 901-3-275.89Типовой проект 901-3-275.89Типовой проект 901-3-275.89Типовой проект 901-3-275.89Типовой проект 901-3-275.89Типовой проект 901-3-275.89Типовой проект 901-3-275.89Типовой проект 901-3-275.89Типовой проект 901-3-275.89Типовой проект 901-3-275.89Типовой проект 901-3-275.89Типовой проект 901-3-275.89Типовой проект 901-3-275.89Типовой проект 901-3-275.89Типовой проект 901-3-275.89Типовой проект 901-3-275.89Типовой проект 901-3-275.89Типовой проект 901-3-275.89Типовой проект 901-3-275.89Типовой проект 901-3-275.89Типовой проект 901-3-275.89Типовой проект 901-3-275.89Типовой проект 901-3-275.89Типовой проект 901-3-275.89Типовой проект 901-3-275.89Типовой проект 901-3-275.89Типовой проект 901-3-275.89Типовой проект 901-3-275.89Типовой проект 901-3-275.89Типовой проект 901-3-275.89Типовой проект 901-3-275.89Типовой проект 901-3-275.89Типовой проект 901-3-275.89Типовой проект 901-3-275.89Типовой проект 901-3-275.89Типовой проект 901-3-275.89Типовой проект 901-3-275.89Типовой проект 901-3-275.89Типовой проект 901-3-275.89Типовой проект 901-3-275.89Типовой проект 901-3-275.89Типовой проект 901-3-275.89Типовой проект 901-3-275.89Типовой проект 901-3-275.89Типовой проект 901-3-275.89Типовой проект 901-3-275.89Типовой проект 901-3-275.89Типовой проект 901-3-275.89Типовой проект 901-3-275.89Типовой проект 901-3-275.89Типовой проект 901-3-275.89Типовой проект 901-3-275.89

© 2013 Ёшкин Кот :-) Карта сайта