Информационная система
«Ёшкин Кот»

Скачать базу одним архивом
Скачать обновления
История создания базы
Карта сайта

Скачать Типовой проект 801-2-26 Альбом II. Общая пояснительная записка. Рабочие чертежи

Дата актуализации: 10.08.2017

Типовой проект 801-2-26

Альбом II. Общая пояснительная записка. Рабочие чертежи

Обозначение: Типовой проект 801-2-26
Обозначение англ: 801-2-26
Статус:действует
Название рус.:Альбом II. Общая пояснительная записка. Рабочие чертежи
Дата добавления в базу:01.09.2013
Дата актуализации:05.05.2017
Оглавление:Ведомость чертежей. Пояснительная записка
Керамзитобетонные изделия
   Панели СПСЛ30Л/1,4х4,2 - 1; СПСЛ30П/1,4х4,2 - 1; сборочный чертеж
   Панели СПСЛ30Л/1,4х3,6 - 1; СПСЛ30П/1,4х3,6 - 1; сборочный чертеж
   Панель СПСЛ30/1,6х6,0 - 1; сборочный чертеж
   Панели СПСЛ30Л/1,2х4,2 - 1; СПСЛ30П/1,2х4,2 - 1; сборочный чертеж
   Панели СПСЛ30Л/0,6х4,2 - 3; СПСЛ30П/0,6х4,2 - 3; сборочный чертеж
   Панель СПСЛ30/1,2х2,4 - 1; сборочный чертеж
   Панели СПСЛ30Л/1,2х1,2 - 2; СПСЛ30П/1,2х1,2 - 2; сборочный чертеж
   Панель СПСЛ30/0,6х3,6 - 1; сборочный чертеж
   Панель СПСЛ30/0,9х2,4 - 1; сборочный чертеж
Железобетонные изделия
   Стойки С-1; С-2; С-1А; С-1Б; С-2А; С-2Б; сборочный чертеж
   Стойки С-3; С-4; сборочный чертеж
   Ригель Р-1; сборочный чертеж
   Ригель Р-2; сборочный чертеж
   Панель ПГБ-1/4,0х2,4; сборочный чертеж
   Панель ПГБ-2/5,0х2,4; сборочный чертеж
   Панель ПГБ-3/1,6х3,6; сборочный чертеж
   Панель ПГБ-3А/1,6х3,6; сборочный чертеж
   Панель ПГБ-4/2,0х4,1; сборочный чертеж
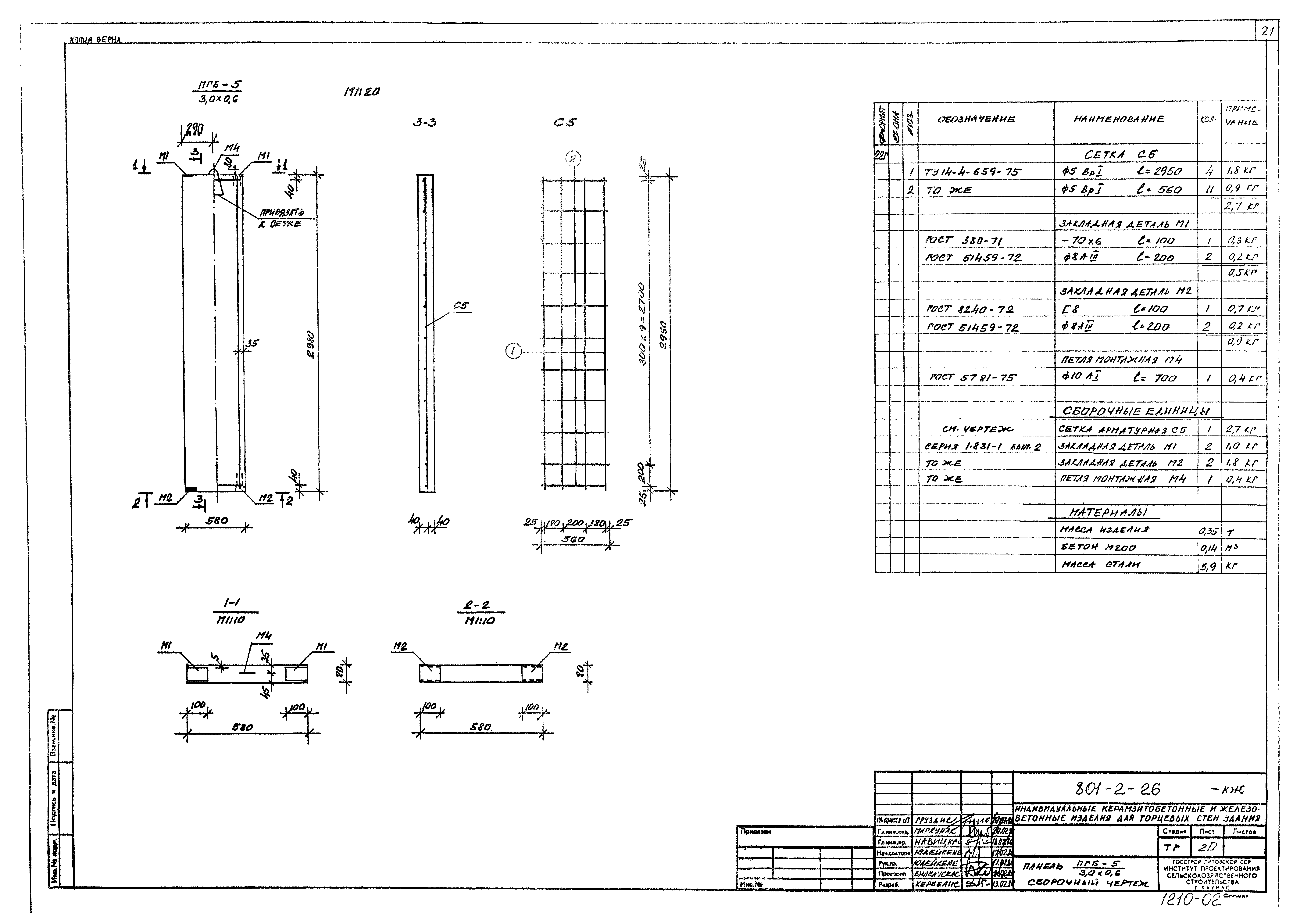
   Панель ПГБ-5/3,0х0,6; сборочный чертеж
   Панель ПГБ-6/2,4х2,4; сборочный чертеж
Выборка стали. Схемы испытаний
Разработан: Госстрой Лит. ССР
Утверждён:29.12.1978 Министерство сельского хозяйства Литовской ССР (1630)
Расположен в:Техническая документация Строительство Справочные документы Типовые строительные конструкции, изделия и узлы Разработанные другими министерствами, ведомствами и организациями
Типовой проект 801-2-26Типовой проект 801-2-26Типовой проект 801-2-26Типовой проект 801-2-26Типовой проект 801-2-26Типовой проект 801-2-26Типовой проект 801-2-26Типовой проект 801-2-26Типовой проект 801-2-26Типовой проект 801-2-26Типовой проект 801-2-26Типовой проект 801-2-26Типовой проект 801-2-26Типовой проект 801-2-26Типовой проект 801-2-26Типовой проект 801-2-26Типовой проект 801-2-26Типовой проект 801-2-26Типовой проект 801-2-26Типовой проект 801-2-26Типовой проект 801-2-26Типовой проект 801-2-26Типовой проект 801-2-26Типовой проект 801-2-26Типовой проект 801-2-26

© 2013 Ёшкин Кот :-) Карта сайта