Информационная система
«Ёшкин Кот»

Скачать базу одним архивом
Скачать обновления
История создания базы
Карта сайта

Скачать Типовые материалы для проектирования 407-03-564.90 Альбом 2. Строительные конструкции. Стальные конструкции

Дата актуализации: 10.08.2017

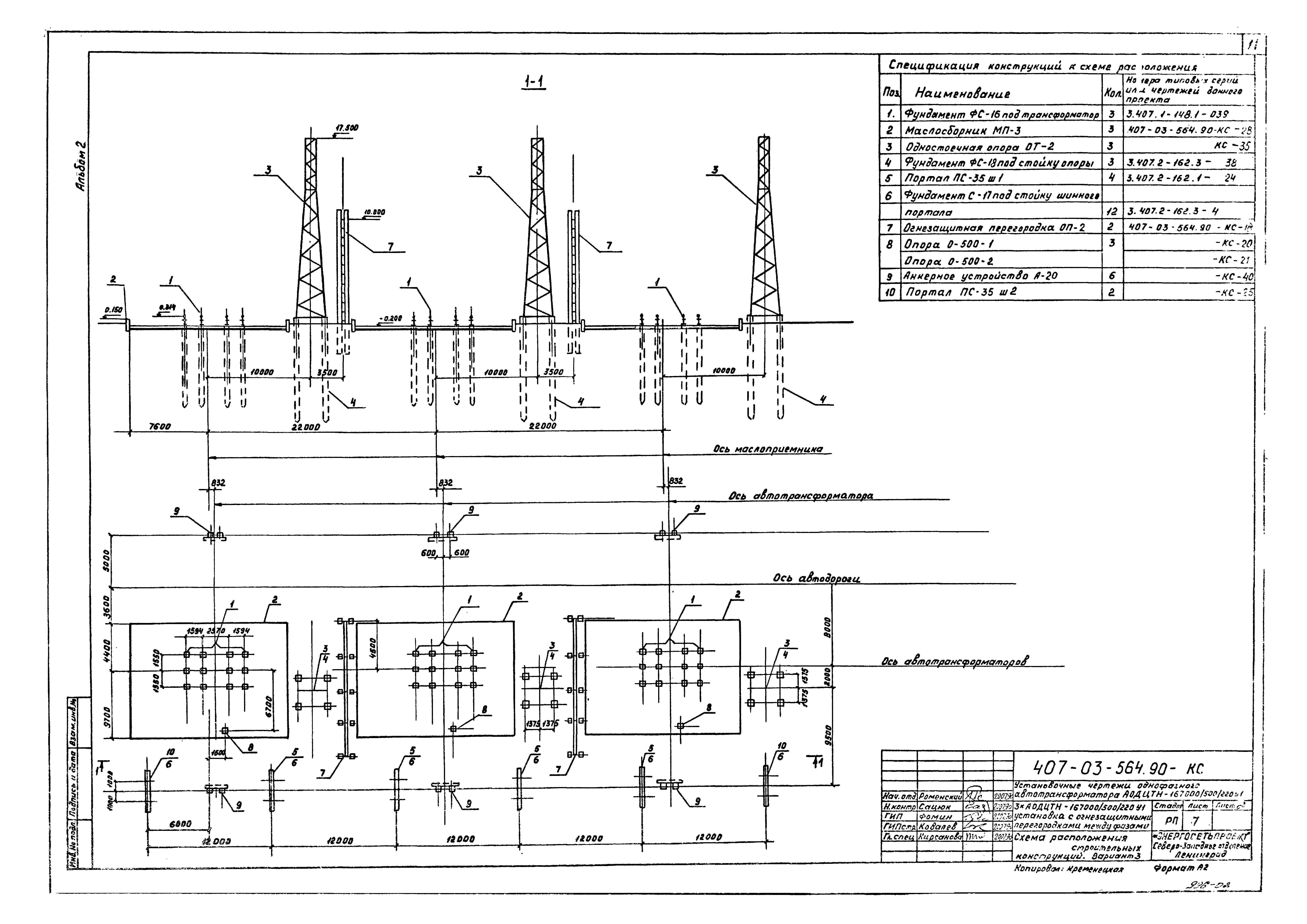
Типовые материалы для проектирования 407-03-564.90

Альбом 2. Строительные конструкции. Стальные конструкции

Обозначение: Типовые материалы для проектирования 407-03-564.90
Обозначение англ: 407-03-564.90
Статус:cправочные материалы, мп, тпр
Название рус.:Альбом 2. Строительные конструкции. Стальные конструкции
Дата добавления в базу:01.09.2013
Дата актуализации:05.05.2017
Дата введения:20.07.1990
Разработан: Северо-западное отделение института Энергосетьпроект
Утверждён:20.07.1990 Минэнерго СССР (USSR Minenergo 42)
Расположен в:Техническая документация Строительство Справочные документы Типовые строительные конструкции, изделия и узлы Общероссийский строительный каталог Промышленные предприятия, здания и сооружения Предприятия, здания и сооружения промышленности и электроэнергетики Электроэнергетика Установочные чертежи для трансформаторных подстанций
Типовые материалы для проектирования 407-03-564.90Типовые материалы для проектирования 407-03-564.90Типовые материалы для проектирования 407-03-564.90Типовые материалы для проектирования 407-03-564.90Типовые материалы для проектирования 407-03-564.90Типовые материалы для проектирования 407-03-564.90Типовые материалы для проектирования 407-03-564.90Типовые материалы для проектирования 407-03-564.90Типовые материалы для проектирования 407-03-564.90Типовые материалы для проектирования 407-03-564.90Типовые материалы для проектирования 407-03-564.90Типовые материалы для проектирования 407-03-564.90Типовые материалы для проектирования 407-03-564.90Типовые материалы для проектирования 407-03-564.90Типовые материалы для проектирования 407-03-564.90Типовые материалы для проектирования 407-03-564.90Типовые материалы для проектирования 407-03-564.90Типовые материалы для проектирования 407-03-564.90Типовые материалы для проектирования 407-03-564.90Типовые материалы для проектирования 407-03-564.90Типовые материалы для проектирования 407-03-564.90Типовые материалы для проектирования 407-03-564.90Типовые материалы для проектирования 407-03-564.90Типовые материалы для проектирования 407-03-564.90Типовые материалы для проектирования 407-03-564.90Типовые материалы для проектирования 407-03-564.90Типовые материалы для проектирования 407-03-564.90Типовые материалы для проектирования 407-03-564.90Типовые материалы для проектирования 407-03-564.90Типовые материалы для проектирования 407-03-564.90Типовые материалы для проектирования 407-03-564.90Типовые материалы для проектирования 407-03-564.90Типовые материалы для проектирования 407-03-564.90Типовые материалы для проектирования 407-03-564.90Типовые материалы для проектирования 407-03-564.90Типовые материалы для проектирования 407-03-564.90Типовые материалы для проектирования 407-03-564.90Типовые материалы для проектирования 407-03-564.90Типовые материалы для проектирования 407-03-564.90Типовые материалы для проектирования 407-03-564.90Типовые материалы для проектирования 407-03-564.90Типовые материалы для проектирования 407-03-564.90Типовые материалы для проектирования 407-03-564.90Типовые материалы для проектирования 407-03-564.90Типовые материалы для проектирования 407-03-564.90Типовые материалы для проектирования 407-03-564.90Типовые материалы для проектирования 407-03-564.90

© 2013 Ёшкин Кот :-) Карта сайта