Информационная система
«Ёшкин Кот»

Скачать базу одним архивом
Скачать обновления
История создания базы
Карта сайта

Скачать Типовой проект 816-142 Альбом I. Общая и технологическая части

Дата актуализации: 10.08.2017

Типовой проект 816-142

Альбом I. Общая и технологическая части

Обозначение: Типовой проект 816-142
Обозначение англ: 816-142
Статус:действует
Название рус.:Альбом I. Общая и технологическая части
Дата добавления в базу:01.09.2013
Дата актуализации:05.05.2017
Оглавление:Титульный лист
Содержание альбома
Пояснительная записка
Схема генерального плана
Технологическая часть
   Пояснительная записка
   Компоновочный план
   План расположения технологического оборудования
   Столовая на 75 посадочных мест, работающая на полуфабрикатах. Лаборатории. План расположения технологического оборудования
   План и разрез
   Спецификация технологического оборудования
   Конвейер подвесной грузонесущий типа ГН-160р на участке 6 поз. 6
   Конвейер подвесной грузонесущий типа ГН-100р на участке 18 поз. 7
   Конвейер подвесной грузонесущий типа ГН-160р на участке 18 поз. 13
   Конвейер подвесной грузонесущий типа ГН-100р на участке 19 поз. 8
   Монтажный чертеж однорельсовой подвесной дороги с автоматическим управлением
Промпроводки
   Перечень листов марки ВС
   Пояснительная записка
   Примечания. Условные обозначения
   Спецификация материалов, трубопроводов и арматуры
   Экспликация потребителей сжатого воздуха
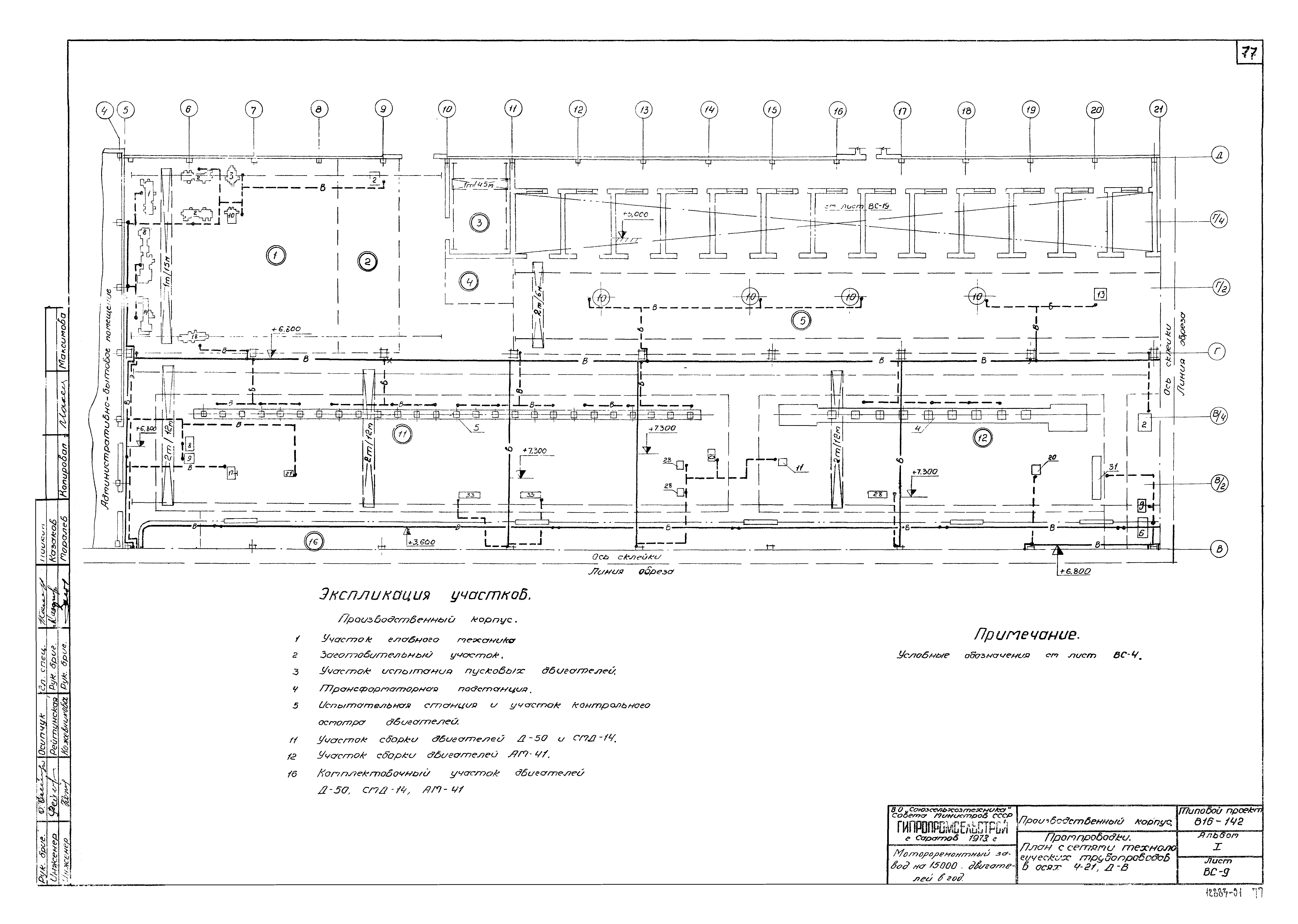
   План с сетями технологических трубопроводов в осях 4 - 21, Д - В
   План с сетями технологических трубопроводов в осях 21 - 35, Д - В
   План с сетями технологических трубопроводов в осях 4 - 21, В - А
   План с сетями технологических трубопроводов в осях 21 - 35, В - А
   Схема трубопроводов сжатого воздуха в осях 5 - 15, Г/4 - 6
   Схема трубопроводов сжатого воздуха в осях 17 - 29, А - Г
   Схема трубопроводов сжатого воздуха в осях 5 - 25, Б - В
   Схемы трубопроводов кислорода и ацетилена
   Схемы трубопроводов эмульсии и содового раствора. Схема трубопроводов моющих растворов
   Схемы трубопроводов подачи лакокрасок. Экспликация оборудования
   Испытательная станция. План с сетями технологических трубопроводов испытательной станции с участком питания
   Испытательная станция. Схема трубопровода бензина и дизельного топлива
   Испытательная станция. Схема трубопроводов охлаждения двигателей
   Испытательная станция. Схема трубопровода электролита
   Испытательная станция. Схема трубопроводов масел
   Технологическое пароснабжение. Экспликация оборудования, потребляющего пар
   Технологическое пароснабжение. Паровой узел управления. План. Разрезы. Аксонометрическая схема
   Технологическое пароснабжение. План в осях 5 - 21, Д - В
   Технологическое пароснабжение. План в осях 21 - 35, Д - В
   Технологическое пароснабжение. План в осях 2 - 21, В - А
   Технологическое пароснабжение. План в осях 21 - 35, В - А
   Технологическое пароснабжение. Аксонометрическая схема в осях 11 - 29, А - Д
   Технологическое пароснабжение. Аксонометрическая схема в осях 5 - 15, А - В. Сечения каналов
Чертежи общих видов нестандартизированного оборудования (справочный материал)
   Марка: С-89, 88346
   Марки: 811.026.00.00.00.пл.36.159
   Марка: 63-265-0-0
   Марки: С-3321, 04-100-100 ПП-1
   Марка: 856.084.00.000
   Марки: 856.135.00.00.00
   Марка: 63-398-0-0 105144, 99643
   Марки: 850,223,00,00,00 ПТ-1А
   Марки: СЖ-1, КС-2, С-372203
   Марки: С-3А, 54425, ПИ-175, ПИ-174
   Марки: СО-1, ПИ-228, 1051140
   Марки: 027-094-00084 99642; С-3019-18
Разработан: Гипропромсельстрой
Утверждён:26.11.1973 Союзсельхозтехника (57)
Расположен в:Техническая документация Строительство Справочные документы Типовые строительные конструкции, изделия и узлы Общероссийский строительный каталог Промышленные предприятия, здания и сооружения Предприятия, здания и сооружения промышленности и электроэнергетики Ремонтные предприятия. Административно-бытовые, производственные и вспомогательные здания и сооружения промышленных предприятий Ремонтные предприятия, производственные и вспомогательные здания и сооружения
Типовой проект 816-142Типовой проект 816-142Типовой проект 816-142Типовой проект 816-142Типовой проект 816-142Типовой проект 816-142Типовой проект 816-142Типовой проект 816-142Типовой проект 816-142Типовой проект 816-142Типовой проект 816-142Типовой проект 816-142Типовой проект 816-142Типовой проект 816-142Типовой проект 816-142Типовой проект 816-142Типовой проект 816-142Типовой проект 816-142Типовой проект 816-142Типовой проект 816-142Типовой проект 816-142Типовой проект 816-142Типовой проект 816-142Типовой проект 816-142Типовой проект 816-142Типовой проект 816-142Типовой проект 816-142Типовой проект 816-142Типовой проект 816-142Типовой проект 816-142Типовой проект 816-142Типовой проект 816-142Типовой проект 816-142Типовой проект 816-142Типовой проект 816-142Типовой проект 816-142Типовой проект 816-142Типовой проект 816-142Типовой проект 816-142Типовой проект 816-142Типовой проект 816-142Типовой проект 816-142Типовой проект 816-142Типовой проект 816-142Типовой проект 816-142Типовой проект 816-142Типовой проект 816-142Типовой проект 816-142Типовой проект 816-142Типовой проект 816-142Типовой проект 816-142Типовой проект 816-142Типовой проект 816-142Типовой проект 816-142Типовой проект 816-142Типовой проект 816-142Типовой проект 816-142Типовой проект 816-142Типовой проект 816-142Типовой проект 816-142Типовой проект 816-142Типовой проект 816-142Типовой проект 816-142Типовой проект 816-142Типовой проект 816-142Типовой проект 816-142Типовой проект 816-142Типовой проект 816-142Типовой проект 816-142Типовой проект 816-142Типовой проект 816-142Типовой проект 816-142Типовой проект 816-142Типовой проект 816-142Типовой проект 816-142Типовой проект 816-142Типовой проект 816-142Типовой проект 816-142Типовой проект 816-142Типовой проект 816-142Типовой проект 816-142Типовой проект 816-142Типовой проект 816-142Типовой проект 816-142Типовой проект 816-142Типовой проект 816-142Типовой проект 816-142Типовой проект 816-142Типовой проект 816-142Типовой проект 816-142Типовой проект 816-142Типовой проект 816-142Типовой проект 816-142Типовой проект 816-142Типовой проект 816-142Типовой проект 816-142Типовой проект 816-142Типовой проект 816-142Типовой проект 816-142Типовой проект 816-142Типовой проект 816-142Типовой проект 816-142Типовой проект 816-142Типовой проект 816-142Типовой проект 816-142Типовой проект 816-142Типовой проект 816-142Типовой проект 816-142Типовой проект 816-142Типовой проект 816-142Типовой проект 816-142Типовой проект 816-142

© 2013 Ёшкин Кот :-) Карта сайта