Скачать Типовые материалы для проектирования 407-03-617.91 Альбом 1. Пояснительная записка. Электротехнические чертежиДата актуализации: 10.08.2017 Типовые материалы для проектирования 407-03-617.91
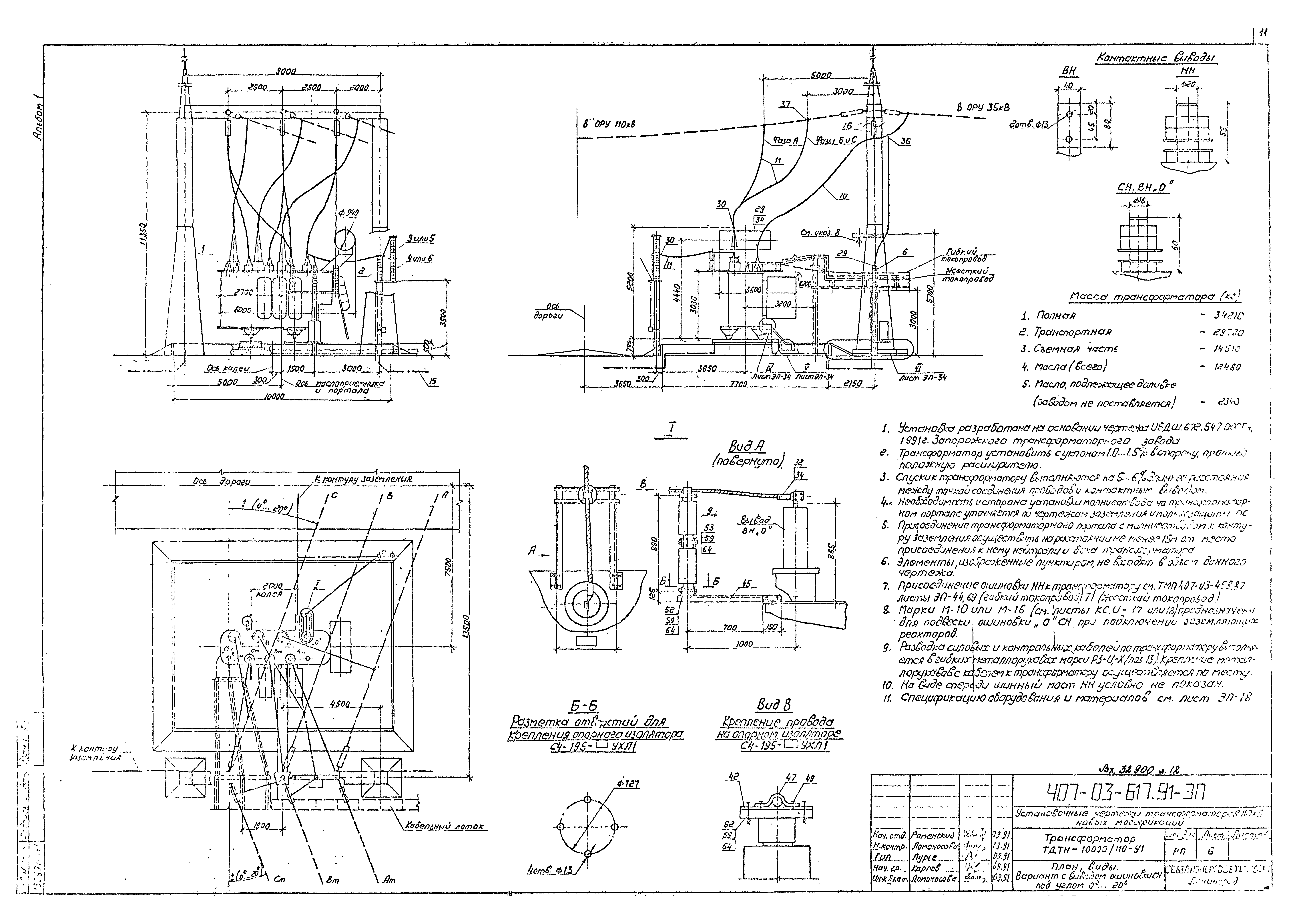
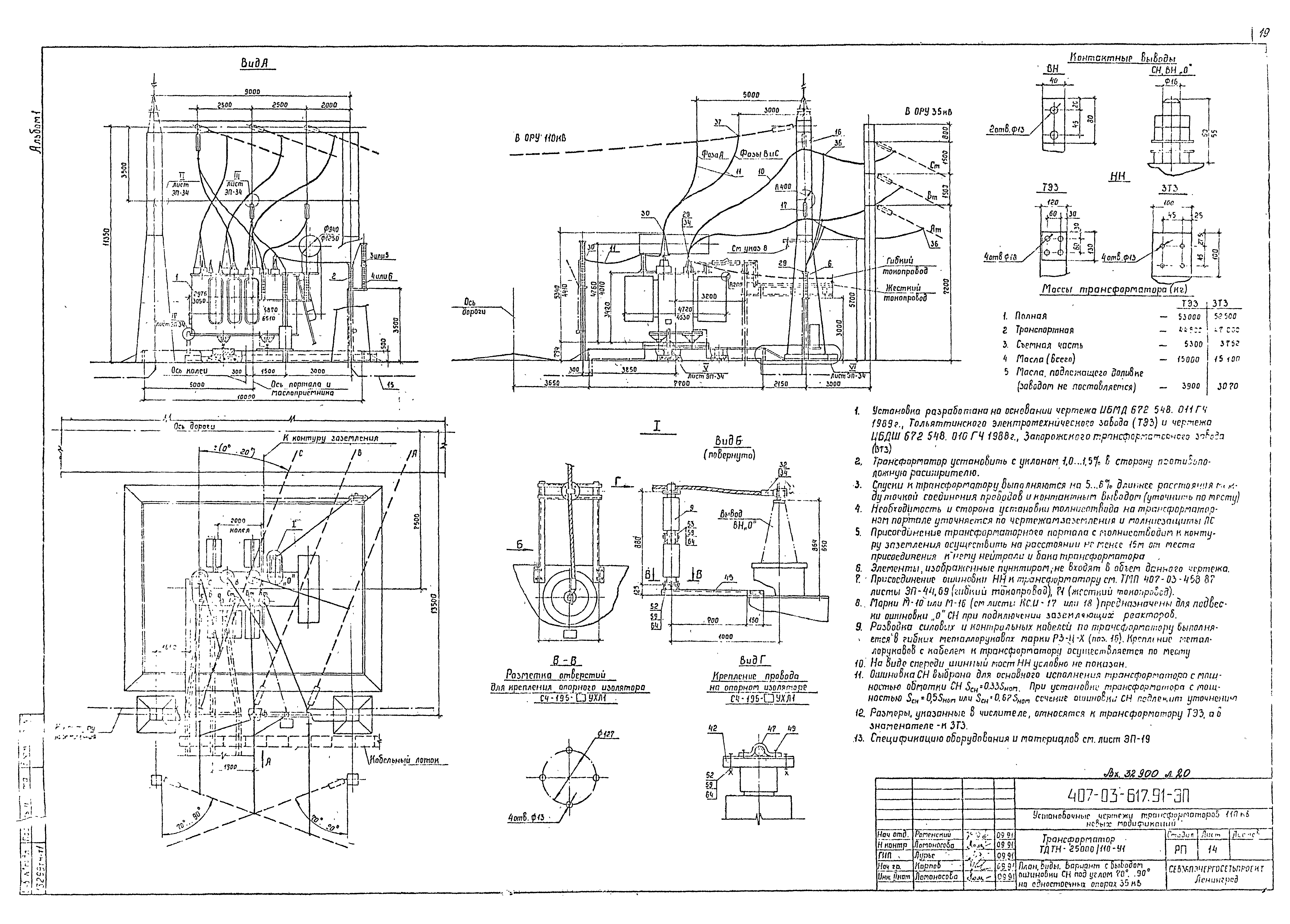
Альбом 1. Пояснительная записка. Электротехнические чертежиОбозначение: | Типовые материалы для проектирования 407-03-617.91 | Обозначение англ: | 407-03-617.91 | Статус: | cправочные материалы, мп, тпр | Название рус.: | Альбом 1. Пояснительная записка. Электротехнические чертежи | Дата добавления в базу: | 01.09.2013 | Дата актуализации: | 05.05.2017 | Дата введения: | 28.11.1991 | Оглавление: | ПЗ Пояснительная записка ЭП Электротехнические чертежи Трансформатор ТНДЦН-25000/16000/110-У1. План, виды Трансформатор ТРНДЦН-25000/16000/110-У1. План, виды Трансформатор ТРНДЦН-40000/25000/110-У1. План, виды Трансформатор ТРНДЦН-63000/40000/110-У1. План, виды Спецификация оборудования и материалов к листам ЭП-1, 2, 3, 4 Трансформатор ТДТН-10000/110-У1. План, виды. Вариант с выводом ошиновки СН под углом 0 - 20 градусов Трансформатор ТДТН-10000/110-У1. План, виды. Вариант с выводом ошиновки СН под углом 70 - 90 градусов на ячейковых порталах 35 кВ Трансформатор ТДТН-10000/110-У1. План, виды. Вариант с выводом ошиновки СН под углом 70 - 90 градусов на одностоечных опорах 35 кВ Трансформатор ТДТН-16000/110-У1. План, виды. Вариант с выводом ошиновки СН под углом 0 - 20 градусов Трансформатор ТДТН-16000/110-У1. План, виды. Вариант с выводом ошиновки СН под углом 70 - 90 градусов на ячейковых порталах 35 кВ Трансформатор ТДТН-16000/110-У1. План, виды. Вариант с выводом ошиновки СН под углом 70 - 90 градусов на одностоечных опорах 35 кВ Трансформатор ТДТН-25000/110-У1. План, виды. Вариант с выводом ошиновки СН под углом 0 - 20 градусов Трансформатор ТДТН-25000/110-У1. План, виды. Вариант с выводом ошиновки СН под углом 70 - 90 градусов на ячейковых порталах 35 кВ Трансформатор ТДТН-25000/110-У1. План, виды. Вариант с выводом ошиновки СН под углом 70 - 90 градусов на одностоечных опорах 35 кВ Трансформатор ТДТН-40000/110-У1. План, виды. Вариант с выводом ошиновки СН под углом 0 - 20 градусов Трансформатор ТДТН-40000/110-У1. План, виды. Вариант с выводом ошиновки СН под углом 70 - 90 градусов на ячейковых порталах 35 кВ Трансформатор ТДТН-40000/110-У1. План, виды. Вариант с выводом ошиновки СН под углом 70 - 90 градусов на одностоечных опорах 35 кВ Спецификация оборудования и материалов к листам ЭП-6, 9, 12, 15 Спецификация оборудования и материалов к листам ЭП-7, 8, 10, 11, 13, 14, 16, 17 Трансформатор ТДТНФ-16000/110-У1. План, виды. Вариант с выводом ошиновки СН под углом 0 - 20 градусов Трансформатор ТДТНФ-16000/110-У1. План, виды. Вариант с выводом ошиновки СН под углом 70 - 90 градусов на ячейковых порталах 35 кВ Трансформатор ТДТНФ-16000/110-У1. План, виды. Вариант с выводом ошиновки СН под углом 70 - 90 градусов на одностоечных опорах 35 кВ Трансформатор ТДТНФ-25000/110-У1. План, виды. Вариант с выводом ошиновки СН под углом 0 - 20 градусов Трансформатор ТДТНФ-25000/110-У1. План, виды. Вариант с выводом ошиновки СН под углом 70 - 90 градусов на ячейковых порталах 35 кВ Трансформатор ТДТНФ-25000/110-У1. План, виды. Вариант с выводом ошиновки СН под углом 70 - 90 градусов на одностоечных опорах 35 кВ Трансформатор ТДТНФ-40000/110-У1. План, виды. Вариант с выводом ошиновки СН под углом 0 - 20 градусов Трансформатор ТДТНФ-40000/110-У1. План, виды. Вариант с выводом ошиновки СН под углом 70 - 90 градусов на ячейковых порталах 35 кВ Трансформатор ТДТНФ-40000/110-У1. План, виды. Вариант с выводом ошиновки СН под углом 70 - 90 градусов на одностоечных опорах 35 кВ Трансформатор ТДТНФ-63000/110-У1. План, виды. Вариант с выводом ошиновки СН под углом 0 - 20 градусов Трансформатор ТДТНФ-63000/110-У1. План, виды. Вариант с выводом ошиновки СН под углом 70 - 90 градусов на ячейковых порталах 35 кВ Трансформатор ТДТНФ-63000/110-У1. План, виды. Вариант с выводом ошиновки СН под углом 70 - 90 градусов на одностоечных опорах 35 кВ Спецификация оборудования и материалов к листам ЭП-20, 23, 26, 29 Спецификация оборудования и материалов к листам ЭП-21, 22, 24, 25, 27, 28, 30, 31 Узлы II, III, IV, V, VI Установка шкафов ШЗВ и ШАОТ-НДЦ на опоре шинного моста и на опоре О-110-8 Взаимное расположение двух трансформаторов и ремонтных площадок. План Пример размещения оборудования на ремонтных площадках. План Установка однополюсного заземлителя ЗОН-110м-IIУХЛ1 с разрядниками РВМ или РВС. Вариант I Установка однополюсного заземлителя ЗОН-110м-IIУХЛ1 с разрядниками РВМ или РВС. Вариант II Установка разрядников РВС-35 и шкафа ШЗВ на опоре О-110-5 Установка разрядников РВС-35 и шкафов ШХВ и ШД-2 на опорах О-110-7,9 Гирлянда изоляторов ПС70-Д поддерживающая одноцепная Гирлянда изоляторов ПС70-Д поддерживающая одноцепная с удлинительным тросом ЭП.И Электротехнические изделия Кронштейн К-1 Скоба С-1 Планка опорная П-1 Планка П-2 ЭП.СО Спецификация оборудования | Разработан: | Севзапэнергосетьпроект
| Утверждён: | 28.11.1991 Минэнерго СССР (USSR Minenergo 48)
| Расположен в: |
|
                                                  
|