Информационная система
«Ёшкин Кот»

Скачать базу одним архивом
Скачать обновления
История создания базы
Карта сайта

Скачать Типовой проект 705-1-77 Альбом IV. Нестандартизированное оборудование

Дата актуализации: 10.08.2017

Типовой проект 705-1-77

Альбом IV. Нестандартизированное оборудование

Обозначение: Типовой проект 705-1-77
Обозначение англ: 705-1-77
Статус:действует
Название рус.:Альбом IV. Нестандартизированное оборудование
Дата добавления в базу:01.09.2013
Дата актуализации:05.05.2017
Оглавление:Содержание альбома
Поддон стоечный. Сборочный чертеж
Поддон стоечный. Ведомость спецификаций
Поддон стоечный. Ведомость покупных изделий
Поддон стоечный
Каркас
Рамка
Каркас. Сборочный чертеж
Рамка. Сборочный чертеж
Рама. Сборочный чертеж
Стойка. Сборочный чертеж
Стойка
Рама
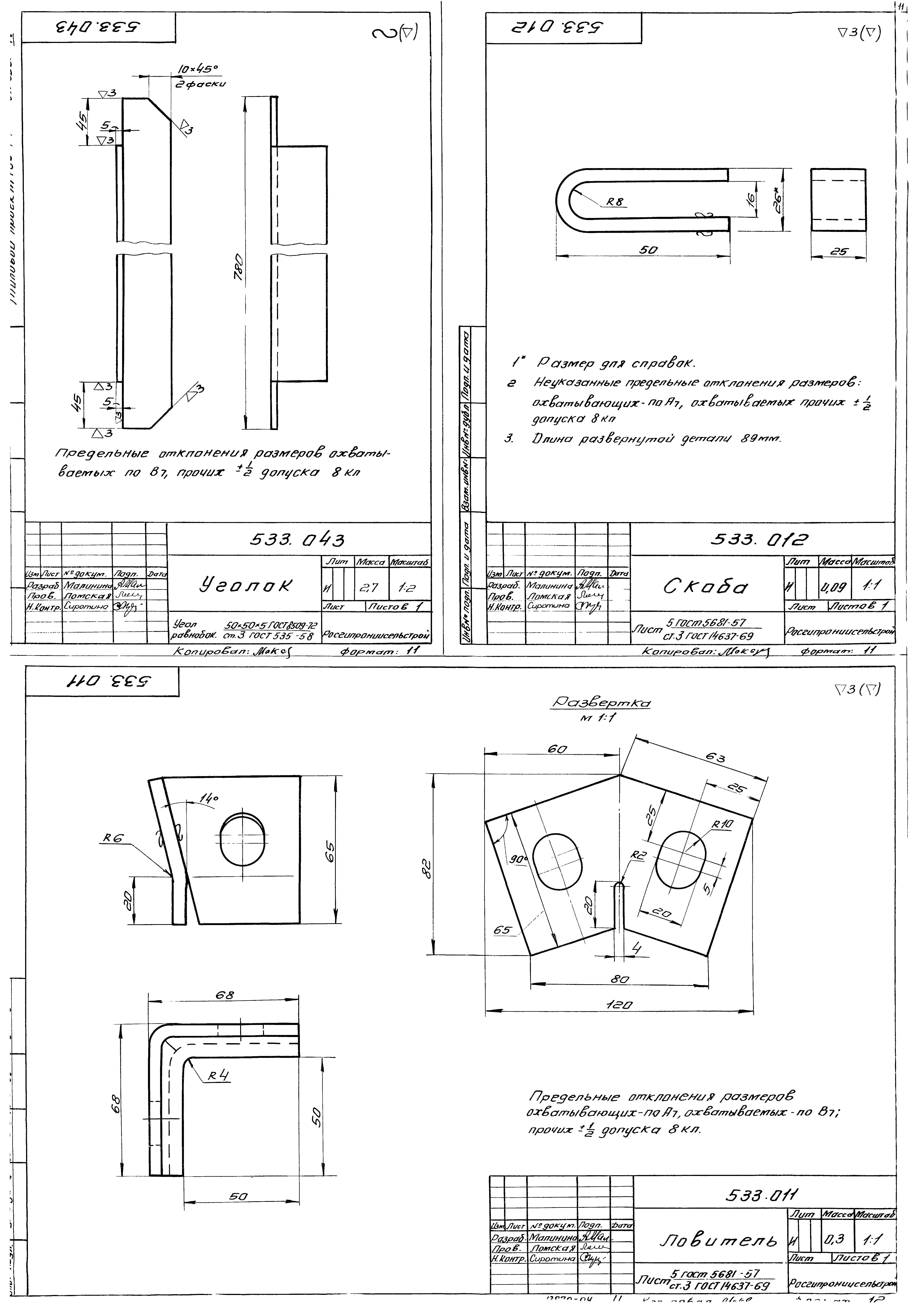
Ловитель
Скоба
Уголок
Скоба
Швеллер
Штырь
Скоба
Штырь
Уголок
Доска
Накладка
Металлоконструкция под измельчитель ИСУ-4. Сборочный чертеж
Металлоконструкция под измельчитель ИСУ-4
Металлоконструкция под измельчитель ИСУ-4. Ведомость покупных изделий
Уголок
Накладка
Болт фундаментный
Разработан: Росгипрониисельстрой
Утверждён:26.09.1975 Министерство сельского хозяйства СССР (USSR Ministry of Agriculture 23)
Расположен в:Техническая документация Строительство Справочные документы Типовые строительные конструкции, изделия и узлы Общероссийский строительный каталог Сельскохозяйственные предприятия, здания и сооружения Предприятия, здания и сооружения по ремонту, техническому обслуживанию, хранению и обеспечению горюче-смазочными материалами сельхозтехники Прирельсовые склады твердых минеральных удобрений
Типовой проект 705-1-77Типовой проект 705-1-77Типовой проект 705-1-77Типовой проект 705-1-77Типовой проект 705-1-77Типовой проект 705-1-77Типовой проект 705-1-77Типовой проект 705-1-77Типовой проект 705-1-77Типовой проект 705-1-77Типовой проект 705-1-77Типовой проект 705-1-77Типовой проект 705-1-77Типовой проект 705-1-77Типовой проект 705-1-77

© 2013 Ёшкин Кот :-) Карта сайта