Информационная система
«Ёшкин Кот»

Скачать базу одним архивом
Скачать обновления
История создания базы
Карта сайта

Скачать Типовой проект 407-3-348.84 Альбом II. Электротехническая часть. Чертежи-задания заводу изготовителю

Дата актуализации: 10.08.2017

Типовой проект 407-3-348.84

Альбом II. Электротехническая часть. Чертежи-задания заводу изготовителю

Обозначение: Типовой проект 407-3-348.84
Обозначение англ: 407-3-348.84
Статус:не определен законодательством
Название рус.:Альбом II. Электротехническая часть. Чертежи-задания заводу изготовителю
Дата добавления в базу:01.09.2013
Дата актуализации:05.05.2017
Дата введения:15.12.1983
Оглавление:Технические решения
Трансформаторная подстанция. План расположения оборудования
План трансформаторной подстанции. Ошиновка
Разрезы 1-1; 2-2
Электроосвещение. План. Раскладка кабелей
Кабельное расписание
Заземление. Внутренний контур
Элементные схемы камер отходящих линий 10 кВ с защитой
Трансформатор напряжения шин 10 кВ. Элементная схема. Ряд зажимов камеры КСО
Камера ввода 0,4 кВ. Схема внешних соединений
Установка светильников на камерах КСО-366
Установка светильников и автоматов на вводной панели ЩО 70
Проходная плита для шин 10 кВ
Проходная плита для шин 0,4 кВ
Конструкция с изоляторами
Кронштейн
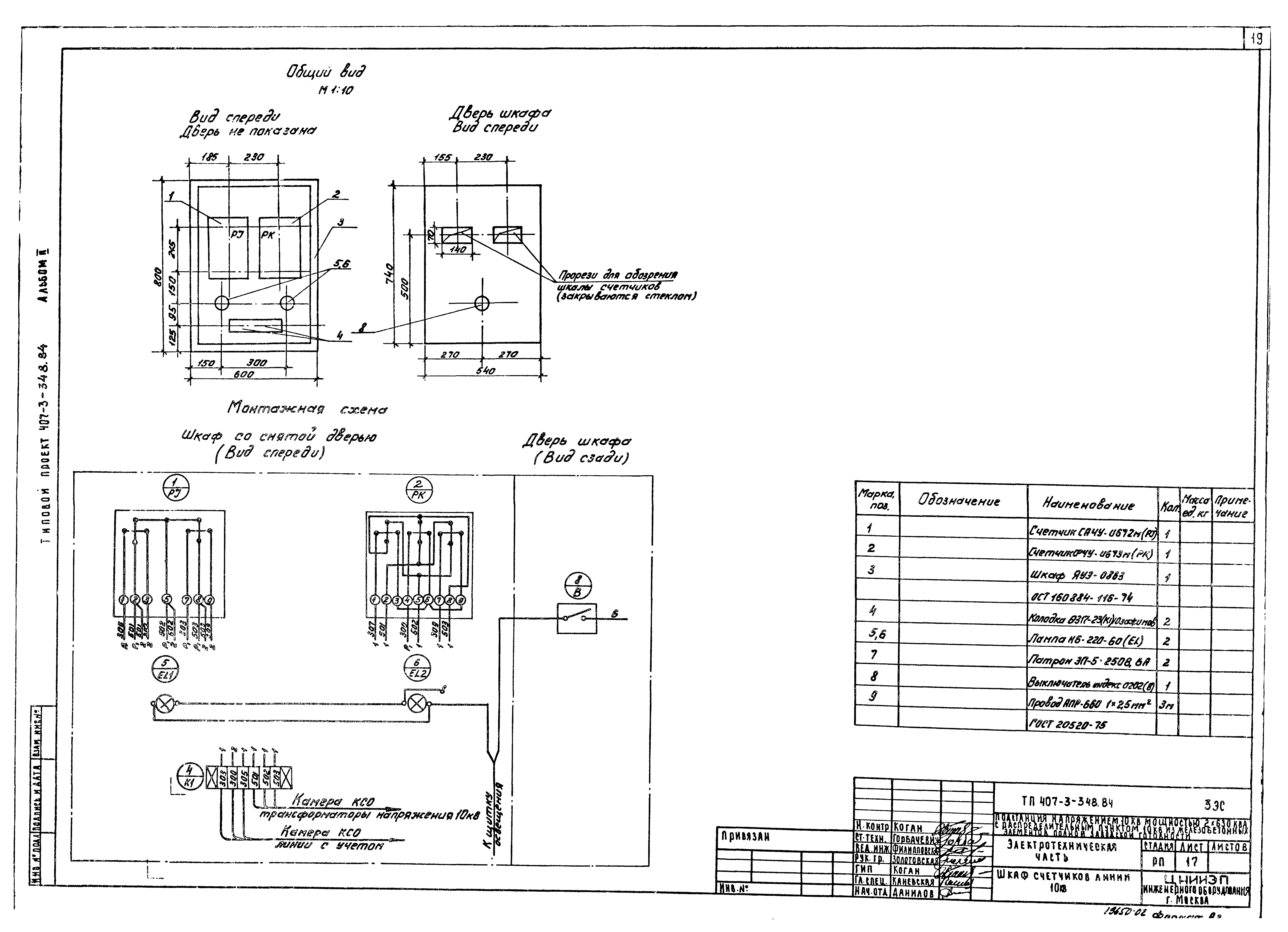
Шкаф счетчиков линии 10 Кв
Изолирующая подставка
Опросный лист для заказа камер КСО-366 (схема №1)
Опросный лист для заказа камер КСО-366 (схема №2)
Опросный лист для заказа камер КСО-366 (схема №3)
Опросный лист для заказа панелей ЩО 70
Барьер в камере трансформатора
Разработан: ЦНИИЭП иженерного оборудования
Утверждён:10.05.1983 Госгражданстрой (Gosgrazhdanstroy 138)
Расположен в:Техническая документация Строительство Справочные документы Типовые строительные конструкции, изделия и узлы Общероссийский строительный каталог Промышленные предприятия, здания и сооружения Предприятия, здания и сооружения промышленности и электроэнергетики Электроэнергетика Устройства и подстанции распределительные
Типовой проект 407-3-348.84Типовой проект 407-3-348.84Типовой проект 407-3-348.84Типовой проект 407-3-348.84Типовой проект 407-3-348.84Типовой проект 407-3-348.84Типовой проект 407-3-348.84Типовой проект 407-3-348.84Типовой проект 407-3-348.84Типовой проект 407-3-348.84Типовой проект 407-3-348.84Типовой проект 407-3-348.84Типовой проект 407-3-348.84Типовой проект 407-3-348.84Типовой проект 407-3-348.84Типовой проект 407-3-348.84Типовой проект 407-3-348.84Типовой проект 407-3-348.84Типовой проект 407-3-348.84Типовой проект 407-3-348.84Типовой проект 407-3-348.84Типовой проект 407-3-348.84Типовой проект 407-3-348.84Типовой проект 407-3-348.84Типовой проект 407-3-348.84Типовой проект 407-3-348.84

© 2013 Ёшкин Кот :-) Карта сайта