Информационная система
«Ёшкин Кот»

Скачать базу одним архивом
Скачать обновления
История создания базы
Карта сайта

Скачать Серия 1.232-3 Выпуск 9. Часть II. Панели увеличенных габаритов толщиной 120 мм с обрамлением наружных обшивок алюминиевым профилем с двойным остеклением оконных блоков

Дата актуализации: 10.08.2017

Серия 1.232-3

Выпуск 9. Часть II. Панели увеличенных габаритов толщиной 120 мм с обрамлением наружных обшивок алюминиевым профилем с двойным остеклением оконных блоков

Обозначение: Серия 1.232-3
Обозначение англ: Series 1.232-3
Статус:не действует
Название рус.:Выпуск 9. Часть II. Панели увеличенных габаритов толщиной 120 мм с обрамлением наружных обшивок алюминиевым профилем с двойным остеклением оконных блоков
Дата добавления в базу:01.09.2013
Дата актуализации:05.05.2017
Дата введения:01.05.1999
Оглавление:Наружная стеновая панель НР3-30.33.12-1. Общий вид
Наружная стеновая панель НР3-30.33.12-1. Каркас К-34
Наружная стеновая панель НР3-30.33.12-1. Рама алюминиевого обрамления РА-34
Наружная стеновая панель НР3-30.39.12-1. Общий вид
Наружная стеновая панель НР3-30.39.12-1. Каркас К-35
Наружная стеновая панель НР3-30.39.12-1. Рама алюминиевого обрамления РА-35
Наружная стеновая панель НР3-30.42.12-1. Общий вид
Наружная стеновая панель НР3-30.42.12-1. Каркас К-36
Наружная стеновая панель НР3-30.42.12-1. Рама алюминиевого обрамления РА-36
Наружная стеновая панель НР3-30.33.12-2. Общий вид
Наружная стеновая панель НР3-30.33.12-2. Каркас К-37
Наружная стеновая панель НР3-30.33.12-2. Рама алюминиевого обрамления РА-37
Наружная стеновая панель НР3-30.39.12-2. Общий вид
Наружная стеновая панель НР3-30.39.12-2. Каркас К-38
Наружная стеновая панель НР3-30.39.12-2. Рама алюминиевого обрамления РА-38
Наружная стеновая панель НР3-30.42.12-2. Общий вид
Наружная стеновая панель НР3-30.42.12-2. Каркас К-39
Наружная стеновая панель НР3-30.42.12-2. Рама алюминиевого обрамления РА-39
Наружная стеновая панель НР3-30.33.12-3. Общий вид
Наружная стеновая панель НР3-30.33.12-3. Каркас К-40
Наружная стеновая панель НР3-30.33.12-3. Рама алюминиевого обрамления РА-40
Наружная стеновая панель НР3-30.39.12-3. Общий вид
Наружная стеновая панель НР3-30.39.12-3. Каркас К-41
Наружная стеновая панель НР3-30.39.12-3. Рама алюминиевого обрамления РА-41
Наружная стеновая панель НР3-30.42.12-3. Общий вид
Наружная стеновая панель НР3-30.42.12-3. Каркас К-42
Наружная стеновая панель НР3-30.42.12-3. Рама алюминиевого обрамления РА-42
Наружная стеновая панель НР3-30.33.12-4. Общий вид
Наружная стеновая панель НР3-30.33.12-4. Каркас К-43
Наружная стеновая панель НР3-30.33.12-4. Рама алюминиевого обрамления РА-43
Наружная стеновая панель НР3-30.39.12-4. Общий вид
Наружная стеновая панель НР3-30.39.12-4. Каркас К-44
Наружная стеновая панель НР3-30.39.12-4. Рама алюминиевого обрамления РА-44
Наружная стеновая панель НР3-30.42.12-4. Общий вид
Наружная стеновая панель НР3-30.42.12-4. Каркас К-45
Наружная стеновая панель НР3-30.42.12-4. Рама алюминиевого обрамления РА-45
Наружная стеновая панель НР3-30.33.12-5. Общий вид
Наружная стеновая панель НР3-30.33.12-5. Каркас К-46
Наружная стеновая панель НР3-30.33.12-5. Рама алюминиевого обрамления РА-46
Наружная стеновая панель НР3-30.39.12-5. Общий вид
Наружная стеновая панель НР3-30.39.12-5. Каркас К-47
Наружная стеновая панель НР3-30.39.12-5. Рама алюминиевого обрамления РА-47
Наружная стеновая панель НР3-30.42.12-5. Общий вид
Наружная стеновая панель НР3-30.42.12-5. Каркас К-48
Наружная стеновая панель НР3-30.42.12-5. Рама алюминиевого обрамления РА-48
Наружная стеновая панель НР3-30.33.12-6. Общий вид
Наружная стеновая панель НР3-30.33.12-6. Каркас К-49
Наружная стеновая панель НР3-30.33.12-6. Рама алюминиевого обрамления РА-49
Наружная стеновая панель НР3-30.39.12-6. Общий вид
Наружная стеновая панель НР3-30.39.12-6. Каркас К-50
Наружная стеновая панель НР3-30.39.12-6. Рама алюминиевого обрамления РА-50
Наружная стеновая панель НР3-30.42.12-6. Общий вид
Наружная стеновая панель НР3-30.42.12-6. Каркас К-51
Наружная стеновая панель НР3-30.42.12-6. Рама алюминиевого обрамления РА-51
Наружная стеновая панель доборная НД1-28.33.12-1. лев. Общий вид
Наружная стеновая панель доборная НД1-28.33.12-1. лев. Каркас К-52
Наружная стеновая панель доборная НД1-28.33.12-1. лев. Рама алюминиевого обрамления РА-52
Наружная стеновая панель доборная НД1-28.39.12-1. лев. Общий вид
Наружная стеновая панель доборная НД1-28.39.12-1. лев. Каркас К-53
Наружная стеновая панель доборная НД1-28.39.12-1. лев. Рама алюминиевого обрамления РА-53
Наружная стеновая панель доборная НД1-28.42.12-1. лев. Общий вид
Наружная стеновая панель доборная НД1-28.42.12-1. лев. Каркас К-54
Наружная стеновая панель доборная НД1-28.42.12-1. лев. Рама алюминиевого обрамления РА-54
Наружная стеновая панель доборная НД1-27.33.12-2. лев. Общий вид
Наружная стеновая панель доборная НД1-27.33.12-2. лев. Каркас К-55
Наружная стеновая панель доборная НД1-27.33.12-2. лев. Рама алюминиевого обрамления РА-55
Наружная стеновая панель доборная НД1-27.39.12-2. лев. Общий вид
Наружная стеновая панель доборная НД1-27.39.12-2. лев. Каркас К-56
Наружная стеновая панель доборная НД1-27.39.12-2. лев. Рама алюминиевого обрамления РА-56
Наружная стеновая панель доборная НД1-27.42.12-2. лев. Общий вид
Наружная стеновая панель доборная НД1-27.42.12-2. лев. Каркас К-57
Наружная стеновая панель доборная НД1-27.42.12-2. лев. Рама алюминиевого обрамления РА-57
Наружная стеновая панель угловая НУ1-3.33.12-1. Общий вид
Наружная стеновая панель угловая НУ1-3.33.12-1. Каркас К-58
Наружная стеновая панель угловая НУ1-3.33.12-1. Рама алюминиевого обрамления РА-58
Наружная стеновая панель угловая НУ1-3.39.12-1. Общий вид
Наружная стеновая панель угловая НУ1-3.39.12-1. Каркас К-59
Наружная стеновая панель угловая НУ1-3.39.12-1. Рама алюминиевого обрамления РА-59
Наружная стеновая панель угловая НУ1-3.42.12-1. Общий вид
Наружная стеновая панель угловая НУ1-3.42.12-1. Каркас К-60
Наружная стеновая панель угловая НУ1-3.42.12-1. Рама алюминиевого обрамления РА-60
Наружная стеновая панель угловая НУ1-4.33.12-2. Общий вид
Наружная стеновая панель угловая НУ1-4.33.12-2. Каркас К-61
Наружная стеновая панель угловая НУ1-4.33.12-2. Рама алюминиевого обрамления РА-61
Наружная стеновая панель угловая НУ1-4.39.12-2. Общий вид
Наружная стеновая панель угловая НУ1-4.39.12-2. Каркас К-62
Наружная стеновая панель угловая НУ1-4.39.12-2. Рама алюминиевого обрамления РА-62
Наружная стеновая панель угловая НУ1-4.42.12-2. Общий вид
Наружная стеновая панель угловая НУ1-4.42.12-2. Каркас К-63
Наружная стеновая панель угловая НУ1-4.42.12-2. Рама алюминиевого обрамления РА-63
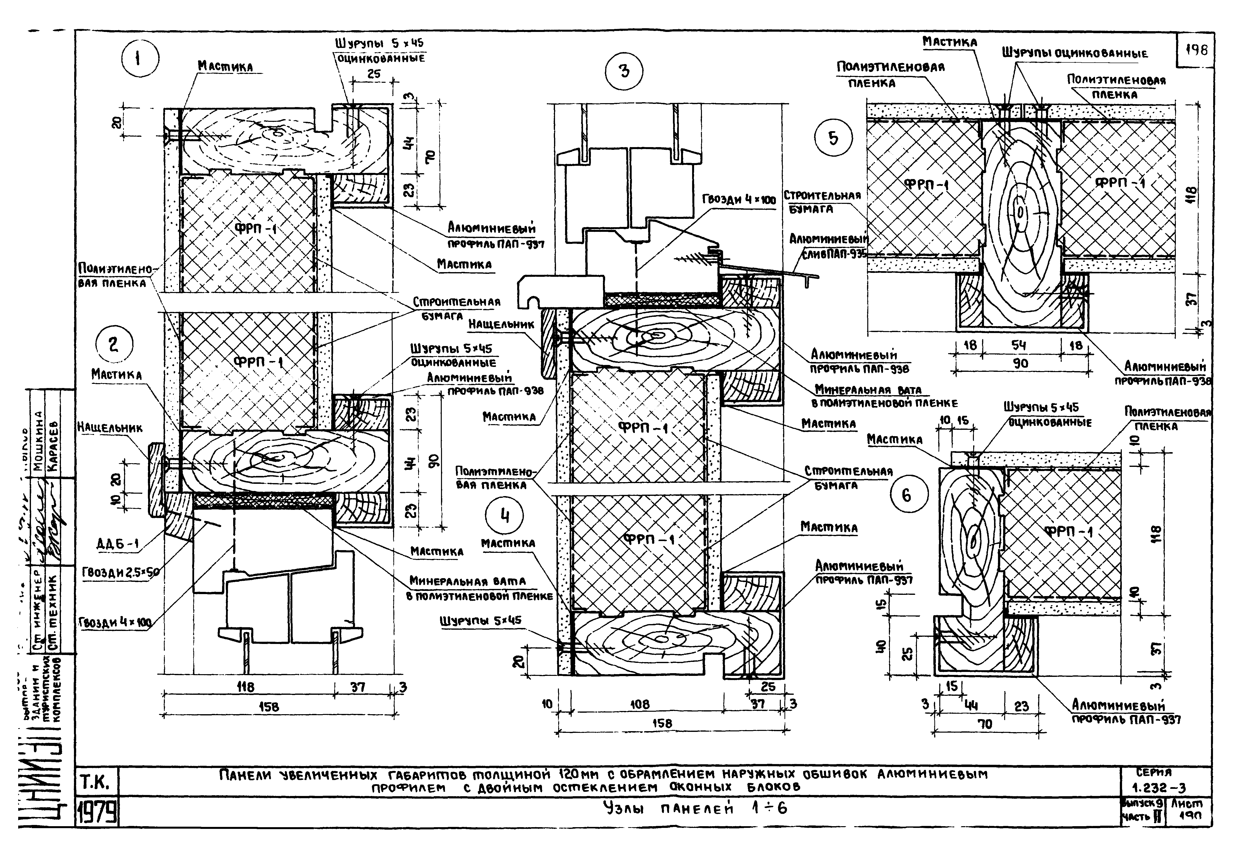
Узлы панелей 1 - 6
Узлы панелей 7 - 9
Узлы панелей 10 - 11
Узлы панелей. Узел 12
Узлы панелей с двойным раздельным остеклением 13 - 14
Узлы каркасов 1 - 2
Узлы каркасов 3 - 4
Узлы каркасов. Узел 5
Узлы каркасов 6
Узлы каркасов 7, 8
Сечения элементов каркасов
Узлы рам алюминиевого обрамления. Узлы 1 - 2
Заготовки алюминиевых сливов АС-1 - АС-5
Заготовки асбестоцементных листов Л-1 - Л-18
Заготовки асбестоцементных листов Л-19 - Л-28; Л-31 - Л-44
Заготовки асбестоцементных листов Л-29 - Л-30; Л-45 - Л-52; Л-55 - Л-64
Заготовки асбестоцементных листов Л-53 - Л-54; Л-65 - Л-76
Заготовки асбестоцементных листов Л-77 - Л-90
Разработан: ЦНИИЭП торгово-бытовых зданий и туристских комплексов
Утверждён:01.08.1980 Государственный комитет по гражданскому строительству и архитектуре при Госстрое СССР (196)
Расположен в:Техническая документация Строительство Справочные документы Типовые строительные конструкции, изделия и узлы Общероссийский строительный каталог Строительные конструкции, изделия и узлы зданий и сооружений для всех видов строительства Конструкции, изделия и узлы зданий Ограждающие конструкции Стены наружные Панели (бетонные и железобетонные)
Нормативные ссылки:
Серия 1.232-3Серия 1.232-3Серия 1.232-3Серия 1.232-3Серия 1.232-3Серия 1.232-3Серия 1.232-3Серия 1.232-3Серия 1.232-3Серия 1.232-3Серия 1.232-3Серия 1.232-3Серия 1.232-3Серия 1.232-3Серия 1.232-3Серия 1.232-3Серия 1.232-3Серия 1.232-3Серия 1.232-3Серия 1.232-3Серия 1.232-3Серия 1.232-3Серия 1.232-3Серия 1.232-3Серия 1.232-3Серия 1.232-3Серия 1.232-3Серия 1.232-3Серия 1.232-3Серия 1.232-3Серия 1.232-3Серия 1.232-3Серия 1.232-3Серия 1.232-3Серия 1.232-3Серия 1.232-3Серия 1.232-3Серия 1.232-3Серия 1.232-3Серия 1.232-3Серия 1.232-3Серия 1.232-3Серия 1.232-3Серия 1.232-3Серия 1.232-3Серия 1.232-3Серия 1.232-3Серия 1.232-3Серия 1.232-3Серия 1.232-3Серия 1.232-3Серия 1.232-3Серия 1.232-3Серия 1.232-3Серия 1.232-3Серия 1.232-3Серия 1.232-3Серия 1.232-3Серия 1.232-3Серия 1.232-3Серия 1.232-3Серия 1.232-3Серия 1.232-3Серия 1.232-3Серия 1.232-3Серия 1.232-3Серия 1.232-3Серия 1.232-3Серия 1.232-3Серия 1.232-3Серия 1.232-3Серия 1.232-3Серия 1.232-3Серия 1.232-3Серия 1.232-3Серия 1.232-3Серия 1.232-3Серия 1.232-3Серия 1.232-3Серия 1.232-3Серия 1.232-3Серия 1.232-3Серия 1.232-3Серия 1.232-3Серия 1.232-3Серия 1.232-3Серия 1.232-3Серия 1.232-3Серия 1.232-3Серия 1.232-3Серия 1.232-3Серия 1.232-3Серия 1.232-3Серия 1.232-3Серия 1.232-3Серия 1.232-3Серия 1.232-3Серия 1.232-3Серия 1.232-3Серия 1.232-3Серия 1.232-3Серия 1.232-3Серия 1.232-3Серия 1.232-3Серия 1.232-3Серия 1.232-3Серия 1.232-3Серия 1.232-3Серия 1.232-3Серия 1.232-3

© 2013 Ёшкин Кот :-) Карта сайта