Информационная система
«Ёшкин Кот»

Скачать базу одним архивом
Скачать обновления
История создания базы
Карта сайта

Скачать Серия 1.232-3 Выпуск 9. Часть I. Панели увеличенных габаритов толщиной 120 мм с обрамлением наружных обшивок алюминиевым профилем с двойным остеклением оконных блоков

Дата актуализации: 10.08.2017

Серия 1.232-3

Выпуск 9. Часть I. Панели увеличенных габаритов толщиной 120 мм с обрамлением наружных обшивок алюминиевым профилем с двойным остеклением оконных блоков

Обозначение: Серия 1.232-3
Обозначение англ: Series 1.232-3
Статус:не действует
Название рус.:Выпуск 9. Часть I. Панели увеличенных габаритов толщиной 120 мм с обрамлением наружных обшивок алюминиевым профилем с двойным остеклением оконных блоков
Дата добавления в базу:01.09.2013
Дата актуализации:05.05.2017
Дата введения:01.05.1999
Оглавление:Содержание альбома
Наружная стеновая панель НР1-30.33.12-1. Общий вид
Наружная стеновая панель НР1-30.33.12-1. Каркас К-1
Наружная стеновая панель НР1-30.33.12-1. Рама алюминиевого обрамления РА-1
Наружная стеновая панель НР1-30.39.12-1. Общий вид
Наружная стеновая панель НР1-30.39.12-1. Каркас К-2
Наружная стеновая панель НР1-30.39.12-1. Рама алюминиевого обрамления РА-2
Наружная стеновая панель НР1-30.42.12-1. Общий вид
Наружная стеновая панель НР1-30.42.12-1. Каркас К-3
Наружная стеновая панель НР1-30.42.12-1. Рама алюминиевого обрамления РА-3
Наружная стеновая панель НР2-30.33.12-1. Общий вид
Наружная стеновая панель НР2-30.33.12-1. Каркас К-4
Наружная стеновая панель НР2-30.33.12-1. Рама алюминиевого обрамления РА-4
Наружная стеновая панель НР2-30.39.12-1. Общий вид
Наружная стеновая панель НР2-30.39.12-1. Каркас К-5
Наружная стеновая панель НР2-30.39.12-1. Рама алюминиевого обрамления РА-5
Наружная стеновая панель НР2-30.42.12-1. Общий вид
Наружная стеновая панель НР2-30.42.12-1. Каркас К-6
Наружная стеновая панель НР2-30.42.12-1. Рама алюминиевого обрамления РА-6
Наружная стеновая панель НР2-30.33.12-2. Общий вид
Наружная стеновая панель НР2-30.33.12-2. Каркас К-7
Наружная стеновая панель НР2-30.33.12-2. Рама алюминиевого обрамления РА-7
Наружная стеновая панель НР2-30.39.12-2. Общий вид
Наружная стеновая панель НР2-30.39.12-2. Каркас К-8
Наружная стеновая панель НР2-30.39.12-2. Рама алюминиевого обрамления РА-8
Наружная стеновая панель НР2-30.42.12-2. Общий вид
Наружная стеновая панель НР2-30.42.12-2. Каркас К-9
Наружная стеновая панель НР2-30.42.12-2. Рама алюминиевого обрамления РА-9
Наружная стеновая панель НР2-30.33.12-3. Общий вид
Наружная стеновая панель НР2-30.33.12-3. Каркас К-10
Наружная стеновая панель НР2-30.33.12-3. Рама алюминиевого обрамления РА-10
Наружная стеновая панель НР2-30.39.12-3. Общий вид
Наружная стеновая панель НР2-30.39.12-3. Каркас К-11
Наружная стеновая панель НР2-30.39.12-3. Рама алюминиевого обрамления РА-11
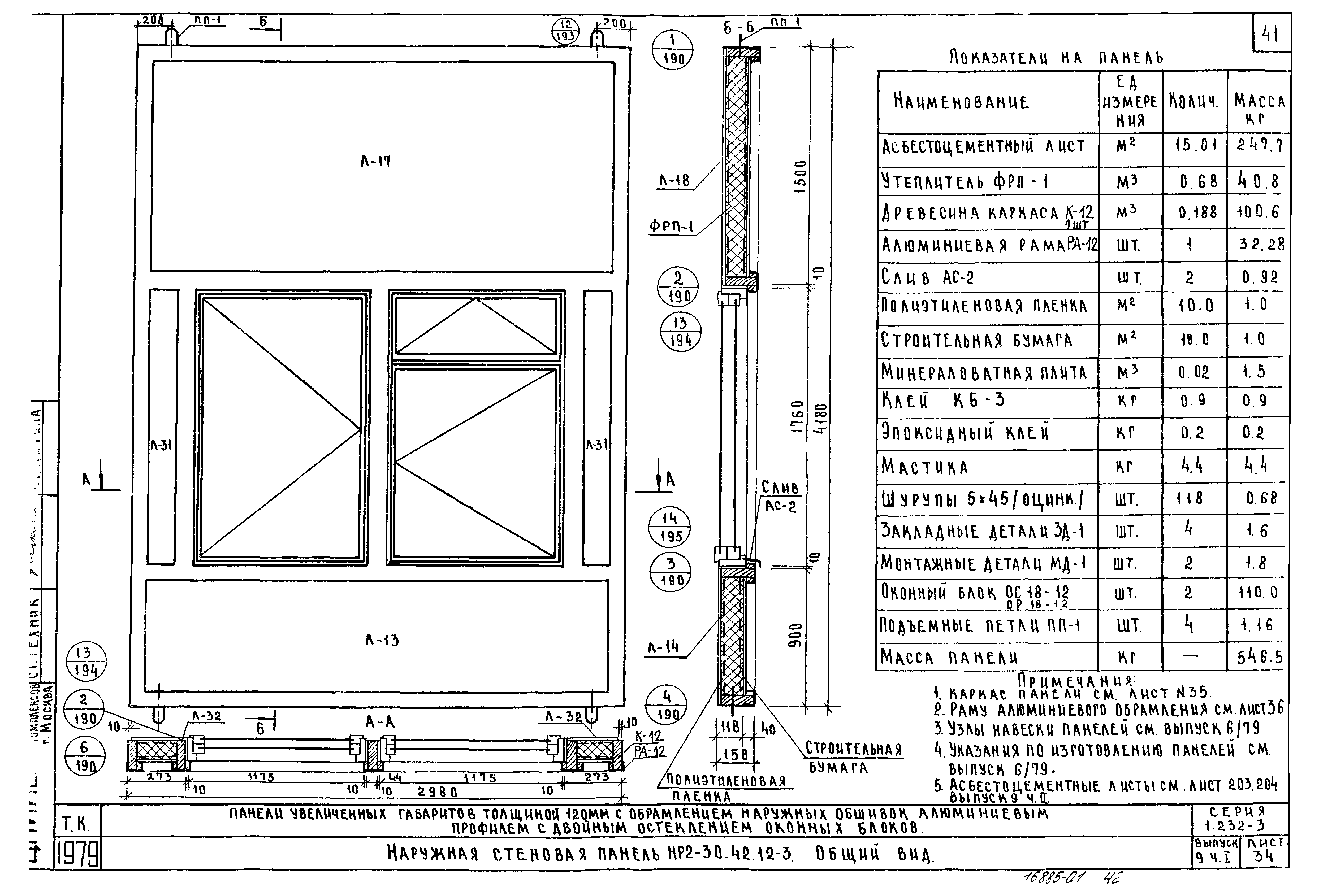
Наружная стеновая панель НР2-30.42.12-3. Общий вид
Наружная стеновая панель НР2-30.42.12-3. Каркас К-12
Наружная стеновая панель НР2-30.42.12-3. Рама алюминиевого обрамления РА-12
Наружная стеновая панель НР2-30.33.12-4. Общий вид
Наружная стеновая панель НР2-30.33.12-4. Каркас К-13
Наружная стеновая панель НР2-30.33.12-4. Рама алюминиевого обрамления РА-13
Наружная стеновая панель НР2-30.39.12-4. Общий вид
Наружная стеновая панель НР2-30.39.12-4. Каркас К-14
Наружная стеновая панель НР2-30.39.12-4. Рама алюминиевого обрамления РА-14
Наружная стеновая панель НР2-30.42.12-4. Общий вид
Наружная стеновая панель НР2-30.42.12-4. Каркас К-15
Наружная стеновая панель НР2-30.42.12-4. Рама алюминиевого обрамления РА-15
Наружная стеновая панель НР2-30.33.12-5. Общий вид
Наружная стеновая панель НР2-30.33.12-5. Каркас К-16
Наружная стеновая панель НР2-30.33.12-5. Рама алюминиевого обрамления РА-16
Наружная стеновая панель НР2-30.39.12-5. Общий вид
Наружная стеновая панель НР2-30.39.12-5. Каркас К-17
Наружная стеновая панель НР2-30.39.12-5. Рама алюминиевого обрамления РА-17
Наружная стеновая панель НР2-30.42.12-5. Общий вид
Наружная стеновая панель НР2-30.42.12-5. Каркас К-18
Наружная стеновая панель НР2-30.42.12-5. Рама алюминиевого обрамления РА-18
Наружная стеновая панель НР2-30.33.12-6. Общий вид
Наружная стеновая панель НР2-30.33.12-6. Каркас К-19
Наружная стеновая панель НР2-30.33.12-6. Рама алюминиевого обрамления РА-19
Наружная стеновая панель НР2-30.39.12-6. Общий вид
Наружная стеновая панель НР2-30.39.12-6. Каркас К-20
Наружная стеновая панель НР2-30.39.12-6. Рама алюминиевого обрамления РА-20
Наружная стеновая панель НР2-30.42.12-6. Общий вид
Наружная стеновая панель НР2-30.42.12-6. Каркас К-21
Наружная стеновая панель НР2-30.42.12-6. Рама алюминиевого обрамления РА-21
Наружная стеновая панель НР2-30.33.12-7. Общий вид
Наружная стеновая панель НР2-30.33.12-7. Каркас К-22
Наружная стеновая панель НР2-30.33.12-7. Рама алюминиевого обрамления РА-22
Наружная стеновая панель НР2-30.39.12-7. Общий вид
Наружная стеновая панель НР2-30.39.12-7. Каркас К-23
Наружная стеновая панель НР2-30.39.12-7. Рама алюминиевого обрамления РА-23
Наружная стеновая панель НР2-30.42.12-7. Общий вид
Наружная стеновая панель НР2-30.42.12-7. Каркас К-24
Наружная стеновая панель НР2-30.42.12-7. Рама алюминиевого обрамления РА-24
Наружная стеновая панель НР2-30.33.12-8. Общий вид
Наружная стеновая панель НР2-30.33.12-8. Каркас К-25
Наружная стеновая панель НР2-30.33.12-8. Рама алюминиевого обрамления РА-25
Наружная стеновая панель НР2-30.39.12-8. Общий вид
Наружная стеновая панель НР2-30.39.12-8. Каркас К-26
Наружная стеновая панель НР2-30.39.12-8. Рама алюминиевого обрамления РА-26
Наружная стеновая панель НР2-30.42.12-8. Общий вид
Наружная стеновая панель НР2-30.42.12-8. Каркас К-27
Наружная стеновая панель НР2-30.42.12-8. Рама алюминиевого обрамления РА-27
Наружная стеновая панель НР2-30.33.12-9. Общий вид
Наружная стеновая панель НР2-30.33.12-9. Каркас К-28
Наружная стеновая панель НР2-30.33.12-9. Рама алюминиевого обрамления РА-28
Наружная стеновая панель НР2-30.39.12-9. Общий вид
Наружная стеновая панель НР2-30.39.12-9. Каркас К-29
Наружная стеновая панель НР2-30.39.12-9. Рама алюминиевого обрамления РА-29
Наружная стеновая панель НР2-30.42.12-9. Общий вид
Наружная стеновая панель НР2-30.42.12-9. Каркас К-30
Наружная стеновая панель НР2-30.42.12-9. Рама алюминиевого обрамления РА-30
Наружная стеновая панель НР2-30.33.12-10. Общий вид
Наружная стеновая панель НР2-30.33.12-10. Каркас К-31
Наружная стеновая панель НР2-30.33.12-10. Рама алюминиевого обрамления РА-31
Наружная стеновая панель НР2-30.39.12-10. Общий вид
Наружная стеновая панель НР2-30.39.12-10. Каркас К-32
Наружная стеновая панель НР2-30.39.12-10. Рама алюминиевого обрамления РА-32
Наружная стеновая панель НР2-30.42.12-10. Общий вид
Наружная стеновая панель НР2-30.42.12-10. Каркас К-33
Наружная стеновая панель НР2-30.42.12-10. Рама алюминиевого обрамления РА-33
Разработан: ЦНИИЭП торгово-бытовых зданий и туристских комплексов
Утверждён:01.08.1980 Государственный комитет по гражданскому строительству и архитектуре при Госстрое СССР (196)
Расположен в:Техническая документация Строительство Справочные документы Типовые строительные конструкции, изделия и узлы Общероссийский строительный каталог Строительные конструкции, изделия и узлы зданий и сооружений для всех видов строительства Конструкции, изделия и узлы зданий Ограждающие конструкции Стены наружные Панели (бетонные и железобетонные)
Серия 1.232-3Серия 1.232-3Серия 1.232-3Серия 1.232-3Серия 1.232-3Серия 1.232-3Серия 1.232-3Серия 1.232-3Серия 1.232-3Серия 1.232-3Серия 1.232-3Серия 1.232-3Серия 1.232-3Серия 1.232-3Серия 1.232-3Серия 1.232-3Серия 1.232-3Серия 1.232-3Серия 1.232-3Серия 1.232-3Серия 1.232-3Серия 1.232-3Серия 1.232-3Серия 1.232-3Серия 1.232-3Серия 1.232-3Серия 1.232-3Серия 1.232-3Серия 1.232-3Серия 1.232-3Серия 1.232-3Серия 1.232-3Серия 1.232-3Серия 1.232-3Серия 1.232-3Серия 1.232-3Серия 1.232-3Серия 1.232-3Серия 1.232-3Серия 1.232-3Серия 1.232-3Серия 1.232-3Серия 1.232-3Серия 1.232-3Серия 1.232-3Серия 1.232-3Серия 1.232-3Серия 1.232-3Серия 1.232-3Серия 1.232-3Серия 1.232-3Серия 1.232-3Серия 1.232-3Серия 1.232-3Серия 1.232-3Серия 1.232-3Серия 1.232-3Серия 1.232-3Серия 1.232-3Серия 1.232-3Серия 1.232-3Серия 1.232-3Серия 1.232-3Серия 1.232-3Серия 1.232-3Серия 1.232-3Серия 1.232-3Серия 1.232-3Серия 1.232-3Серия 1.232-3Серия 1.232-3Серия 1.232-3Серия 1.232-3Серия 1.232-3Серия 1.232-3Серия 1.232-3Серия 1.232-3Серия 1.232-3Серия 1.232-3Серия 1.232-3Серия 1.232-3Серия 1.232-3Серия 1.232-3Серия 1.232-3Серия 1.232-3Серия 1.232-3Серия 1.232-3Серия 1.232-3Серия 1.232-3Серия 1.232-3Серия 1.232-3Серия 1.232-3Серия 1.232-3Серия 1.232-3Серия 1.232-3Серия 1.232-3Серия 1.232-3Серия 1.232-3Серия 1.232-3Серия 1.232-3Серия 1.232-3Серия 1.232-3Серия 1.232-3Серия 1.232-3Серия 1.232-3Серия 1.232-3Серия 1.232-3Серия 1.232-3

© 2013 Ёшкин Кот :-) Карта сайта