Информационная система
«Ёшкин Кот»

Скачать базу одним архивом
Скачать обновления
История создания базы
Карта сайта

Скачать Типовые проектные решения 402-11-0145.87 Альбом I. Пояснительная записка и чертежи

Дата актуализации: 10.08.2017

Типовые проектные решения 402-11-0145.87

Альбом I. Пояснительная записка и чертежи

Обозначение: Типовые проектные решения 402-11-0145.87
Обозначение англ: 402-11-0145.87
Статус:cправочные материалы, мп, тпр
Название рус.:Альбом I. Пояснительная записка и чертежи
Дата добавления в базу:01.09.2013
Дата актуализации:05.05.2017
Дата введения:30.09.1987
Оглавление:Опись альбома
ПЗ1 - ПЗ7 Пояснительная записка
Технологическое оборудование
   ТХ1 Общие данные
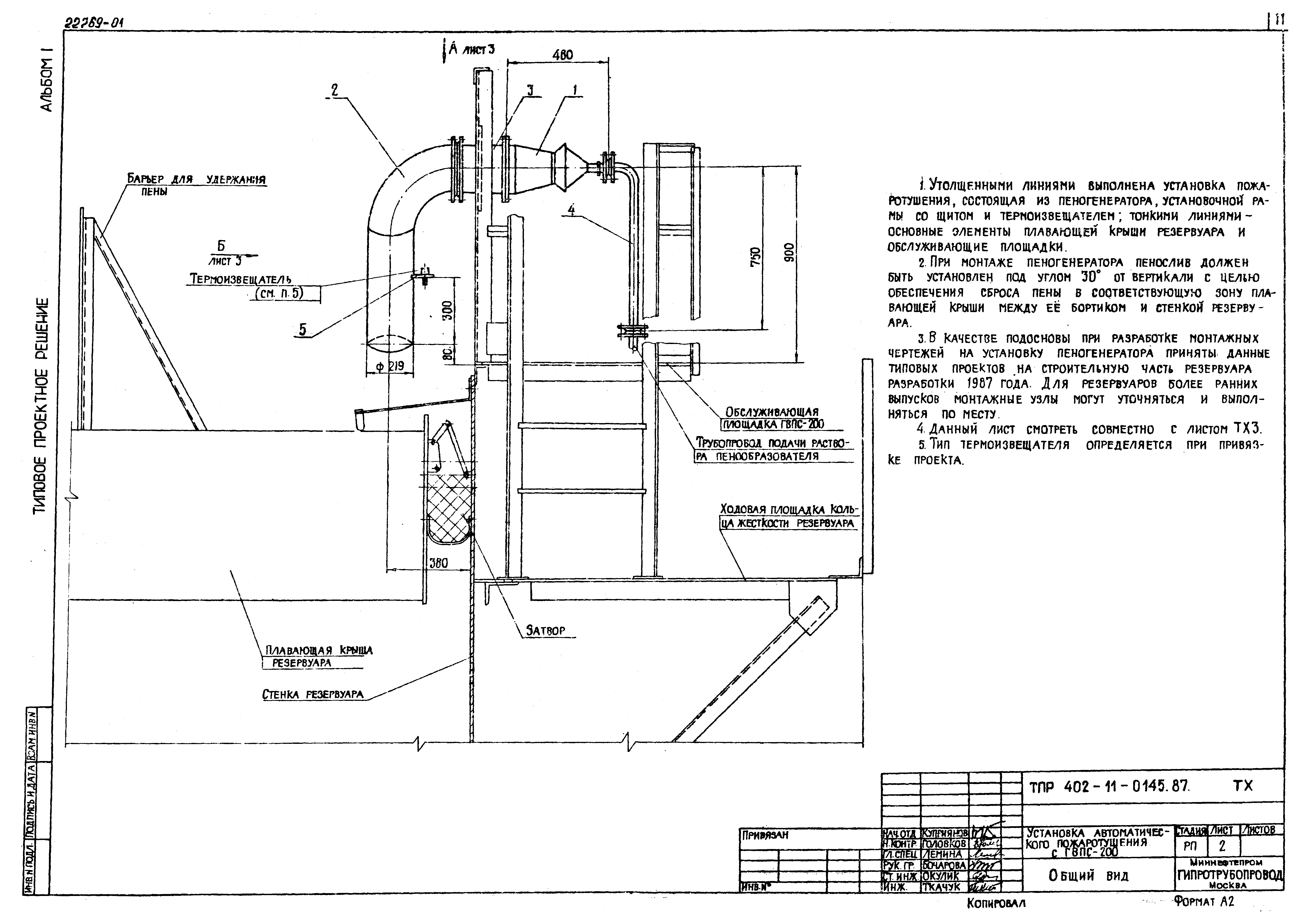
   ТХ2 Установка автоматического пожаротушения с ГВПС-200. Общий вид
   ТХ3 Установка автоматического пожаротушения с ГВПС-200. Узлы. Разрезы
   ТХ4 Установка автоматического пожаротушения с ГПСС-600. Общий вид
   ТХ5 Установка автоматического пожаротушения с ГПСС-2000. Верхний ввод. общий вид
   ТХ6 Установка автоматического пожаротушения с ГПСС-2000. Верхний ввод. Общий вид короба
   ТХ7 Установка автоматического пожаротушения с ГПСС-2000. Боковой ввод. общий вид
Разработан: Гипротрубопровод Миннефтепрома (Giprotruboprovod, Minnefteprom )
Утверждён:30.09.1987 Миннефтепром СССР (335"Э")
Издан: ЦИТП Госстроя СССР (CITP, Gosstroy (USSR) 1989 г. )
Расположен в:Техническая документация Строительство Справочные документы Типовые строительные конструкции, изделия и узлы Общероссийский строительный каталог Промышленные предприятия, здания и сооружения Предприятия, здания и сооружения промышленности и электроэнергетики Промышленность нефтяная и газовая Промышленность нефтяная Промышленность нефтедобывающая
Заменяет собой:
  • Типовой проект 402-11-59/74
Типовые проектные решения 402-11-0145.87Типовые проектные решения 402-11-0145.87Типовые проектные решения 402-11-0145.87Типовые проектные решения 402-11-0145.87Типовые проектные решения 402-11-0145.87Типовые проектные решения 402-11-0145.87Типовые проектные решения 402-11-0145.87Типовые проектные решения 402-11-0145.87Типовые проектные решения 402-11-0145.87Типовые проектные решения 402-11-0145.87Типовые проектные решения 402-11-0145.87Типовые проектные решения 402-11-0145.87Типовые проектные решения 402-11-0145.87Типовые проектные решения 402-11-0145.87Типовые проектные решения 402-11-0145.87Типовые проектные решения 402-11-0145.87Типовые проектные решения 402-11-0145.87Типовые проектные решения 402-11-0145.87

© 2013 Ёшкин Кот :-) Карта сайта