Информационная система
«Ёшкин Кот»

Скачать базу одним архивом
Скачать обновления
История создания базы
Карта сайта

Скачать Типовые проектные решения 501-3-040.22.88 Альбом 1. Пояснительная записка. Чертежи

Дата актуализации: 10.08.2017

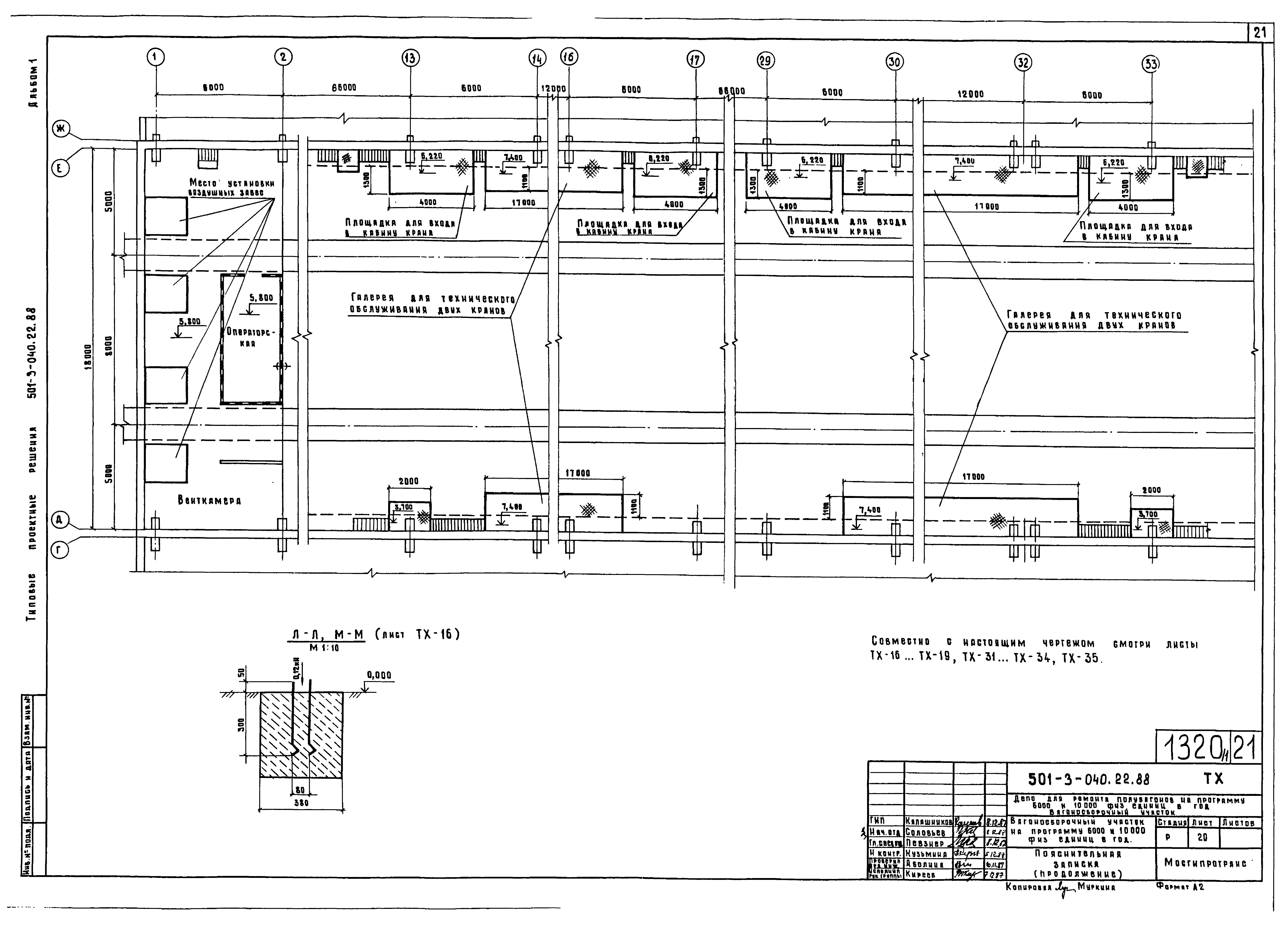
Типовые проектные решения 501-3-040.22.88

Альбом 1. Пояснительная записка. Чертежи

Обозначение: Типовые проектные решения 501-3-040.22.88
Обозначение англ: 501-3-040.22.88
Статус:cправочные материалы, мп, тпр
Название рус.:Альбом 1. Пояснительная записка. Чертежи
Дата добавления в базу:01.09.2013
Дата актуализации:05.05.2017
Дата введения:28.06.1988
Оглавление:Титульный лист
ТХ-1 Общие данные
ТХ-2…ТХ-27 Пояснительная записка
ТХ-28…ТХ-30 Вагоносборочный участок на программу 6000 физ. единиц в год. План с расстановкой оборудования
ТХ-31…ТХ3-34 Вагоносборочный участок на программу 10000 физ. единиц в год. План с расстановкой оборудования
ТХ-35 Вагоносборочный участок на программу 6000 и 10000 физ. единиц в год. Разрезы
ТХ-36 Вагоносборочный участок на программу 6000 физ. единиц в год. Установка тяговых конвейеров. Схема расположения тяговых конвейеров
ТХ-37 Вагоносборочный участок на программу 10000 физ. единиц в год. Установка тяговых конвейеров. Схема расположения тяговых конвейеров
ТХ-38…ТХ-39 Вагоносборочный участок на программу 6000 и 10000 физ. единиц в год. Установка тяговых конвейеров. Разрезы
ТХ-40 Вагоносборочный участок на программу 6000 физ. единиц в год. План технологических трубопроводов. Разрезы
ТХ-41 Вагоносборочный участок на программу 6000 физ. единиц в год. Аксонометрическая схема трубопроводов. Разрезы
ТХ-42 Вагоносборочный участок на программу 10000 физ. единиц в год. План технологических трубопроводов
ТХ-43 Вагоносборочный участок на программу 10000 физ. единиц в год. Аксонометрическая схема трубопроводов. Разрезы
Разработан: Мосгипротранс
Утверждён:28.06.1988 Министерство путей сообщения СССР (USSR Ministry of Railroads Г-2228у)
Расположен в:Техническая документация Строительство Справочные документы Типовые строительные конструкции, изделия и узлы Общероссийский строительный каталог Промышленные предприятия, здания и сооружения Предприятия, здания и сооружения транспорта Транспорт железнодорожный Здания и сооружения локомотивного и вагонного хозяйства Экипировочные устройства, депо, склады и др. здания и сооружения
Типовые проектные решения 501-3-040.22.88Типовые проектные решения 501-3-040.22.88Типовые проектные решения 501-3-040.22.88Типовые проектные решения 501-3-040.22.88Типовые проектные решения 501-3-040.22.88Типовые проектные решения 501-3-040.22.88Типовые проектные решения 501-3-040.22.88Типовые проектные решения 501-3-040.22.88Типовые проектные решения 501-3-040.22.88Типовые проектные решения 501-3-040.22.88Типовые проектные решения 501-3-040.22.88Типовые проектные решения 501-3-040.22.88Типовые проектные решения 501-3-040.22.88Типовые проектные решения 501-3-040.22.88Типовые проектные решения 501-3-040.22.88Типовые проектные решения 501-3-040.22.88Типовые проектные решения 501-3-040.22.88Типовые проектные решения 501-3-040.22.88Типовые проектные решения 501-3-040.22.88Типовые проектные решения 501-3-040.22.88Типовые проектные решения 501-3-040.22.88Типовые проектные решения 501-3-040.22.88Типовые проектные решения 501-3-040.22.88Типовые проектные решения 501-3-040.22.88Типовые проектные решения 501-3-040.22.88Типовые проектные решения 501-3-040.22.88Типовые проектные решения 501-3-040.22.88Типовые проектные решения 501-3-040.22.88Типовые проектные решения 501-3-040.22.88Типовые проектные решения 501-3-040.22.88Типовые проектные решения 501-3-040.22.88Типовые проектные решения 501-3-040.22.88Типовые проектные решения 501-3-040.22.88Типовые проектные решения 501-3-040.22.88Типовые проектные решения 501-3-040.22.88Типовые проектные решения 501-3-040.22.88Типовые проектные решения 501-3-040.22.88Типовые проектные решения 501-3-040.22.88Типовые проектные решения 501-3-040.22.88Типовые проектные решения 501-3-040.22.88Типовые проектные решения 501-3-040.22.88Типовые проектные решения 501-3-040.22.88Типовые проектные решения 501-3-040.22.88Типовые проектные решения 501-3-040.22.88Типовые проектные решения 501-3-040.22.88

© 2013 Ёшкин Кот :-) Карта сайта