Информационная система
«Ёшкин Кот»

Скачать базу одним архивом
Скачать обновления
История создания базы
Карта сайта

Скачать Типовые материалы для проектирования 501-03-39.32.88 Альбом 2. Чертежи

Дата актуализации: 10.08.2017

Типовые материалы для проектирования 501-03-39.32.88

Альбом 2. Чертежи

Обозначение: Типовые материалы для проектирования 501-03-39.32.88
Обозначение англ: 501-03-39.32.88
Статус:cправочные материалы, мп, тпр
Название рус.:Альбом 2. Чертежи
Дата добавления в базу:01.09.2013
Дата актуализации:05.05.2017
Дата введения:28.06.1988
Оглавление:Титульный лист
Содержание
Депо на программу 6000 физ. единиц. Схема генерального плана
Депо на программу 10000 физ. единиц. Схема генерального плана
Депо на программу 6000 и 10000 физ. единиц. Технологический процесс ремонта 4-осных полувагонов
Депо на программу 6000 и 10000 физ. единиц. Технологический процесс ремонта 8-осных полувагонов
Депо на программу 6000 и 10000 физ. единиц. График технологического процесса ремонта 4-осного полувагона
Депо на программу 6000 и 10000 физ. единиц. График технологического процесса ремонта 8-осного полувагона
Депо на программу 6000 физ. единиц. Производственный корпус. План
Депо на программу 6000 физ. единиц. Производственный корпус. Экспликация помещений
Депо на программу 10000 физ. единиц. Производственный корпус. План
Депо на программу 10000 физ. единиц. Производственный корпус. Экспликация помещений
Депо на программу 6000 и 10000 физ. единиц. Производственный корпус. Разрезы
Депо на программу 6000 физ. единиц. Производственный корпус. Схема грузопотоков
Депо на программу 10000 физ. единиц. Производственный корпус. Схема грузопотоков
Депо на программу 6000 физ. единиц. Производственный корпус. Отделение мастерских. План с расстановкой оборудования
Депо на программу 6000 физ. единиц. Производственный корпус. Вагоносборочный участок. План с расстановкой оборудования
Депо на программу 6000 физ. единиц. Производственный корпус. Малярное отделение. Отделения мастерских. План с расстановкой оборудования
Депо на программу 6000 физ. единиц. Производственный корпус. Тележечный и колесотокарный участок. План с расстановкой оборудования
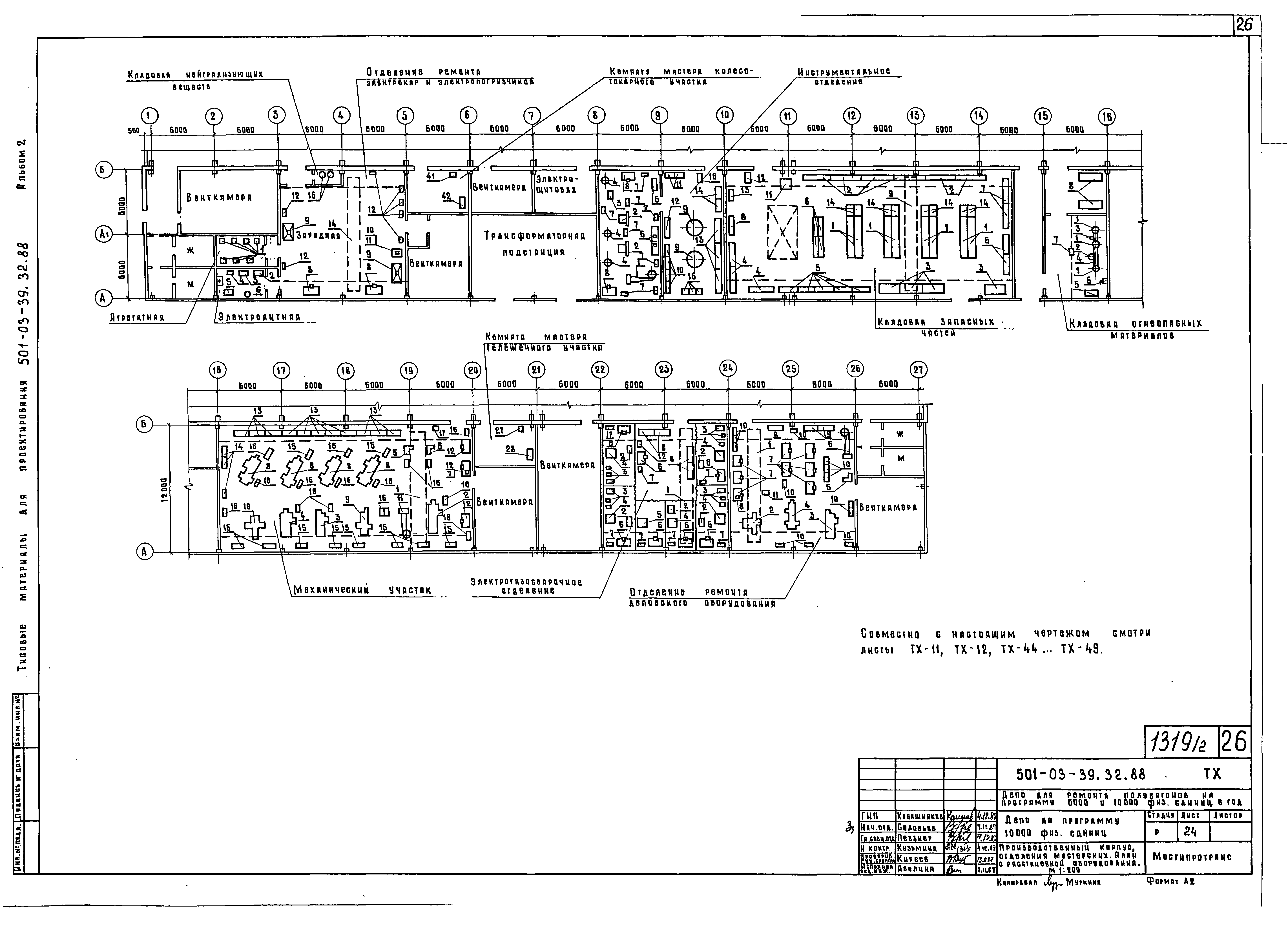
Депо на программу 10000 физ. единиц. Производственный корпус. Отделение мастерских. План с расстановкой оборудования
Депо на программу 10000 физ. единиц. Производственный корпус. Вагоносборочный участок. План с расстановкой оборудования
Депо на программу 10000 физ. единиц. Производственный корпус. Малярное отделение. План с расстановкой оборудования
Депо на программу 10000 физ. единиц. Производственный корпус. Тележечный и колесотокарный участок. План с расстановкой оборудования
Депо на программу 10000 физ. единиц. Производственный корпус. Отделение мастерских. План с расстановкой оборудования
Депо на программу 6000 и 10000 физ. единиц. Производственный корпус. Спецификация
Депо на программу 6000 и 10000 физ. единиц. Цех обмывки и очистки полувагонов. План с расстановкой оборудования
Депо на программу 6000 и 10000 физ. единиц. Цех обмывки и очистки полувагонов. Экспликация помещений. Спецификация
Депо на программу 6000 и 10000 физ. единиц. Цех уравнительного ремонта. План с расстановкой оборудования
Депо на программу 6000 и 10000 физ. единиц. Экспликация помещений. Спецификация
Разработан: Мосгипротранс
Утверждён:28.06.1988 Министерство путей сообщения СССР (USSR Ministry of Railroads Г-2228у)
Расположен в:Техническая документация Строительство Справочные документы Типовые строительные конструкции, изделия и узлы Общероссийский строительный каталог Промышленные предприятия, здания и сооружения Предприятия, здания и сооружения транспорта Транспорт железнодорожный Здания и сооружения локомотивного и вагонного хозяйства Экипировочные устройства, депо, склады и др. здания и сооружения
Типовые материалы для проектирования 501-03-39.32.88Типовые материалы для проектирования 501-03-39.32.88Типовые материалы для проектирования 501-03-39.32.88Типовые материалы для проектирования 501-03-39.32.88Типовые материалы для проектирования 501-03-39.32.88Типовые материалы для проектирования 501-03-39.32.88Типовые материалы для проектирования 501-03-39.32.88Типовые материалы для проектирования 501-03-39.32.88Типовые материалы для проектирования 501-03-39.32.88Типовые материалы для проектирования 501-03-39.32.88Типовые материалы для проектирования 501-03-39.32.88Типовые материалы для проектирования 501-03-39.32.88Типовые материалы для проектирования 501-03-39.32.88Типовые материалы для проектирования 501-03-39.32.88Типовые материалы для проектирования 501-03-39.32.88Типовые материалы для проектирования 501-03-39.32.88Типовые материалы для проектирования 501-03-39.32.88Типовые материалы для проектирования 501-03-39.32.88Типовые материалы для проектирования 501-03-39.32.88Типовые материалы для проектирования 501-03-39.32.88Типовые материалы для проектирования 501-03-39.32.88Типовые материалы для проектирования 501-03-39.32.88Типовые материалы для проектирования 501-03-39.32.88Типовые материалы для проектирования 501-03-39.32.88Типовые материалы для проектирования 501-03-39.32.88Типовые материалы для проектирования 501-03-39.32.88Типовые материалы для проектирования 501-03-39.32.88Типовые материалы для проектирования 501-03-39.32.88Типовые материалы для проектирования 501-03-39.32.88Типовые материалы для проектирования 501-03-39.32.88Типовые материалы для проектирования 501-03-39.32.88Типовые материалы для проектирования 501-03-39.32.88Типовые материалы для проектирования 501-03-39.32.88Типовые материалы для проектирования 501-03-39.32.88Типовые материалы для проектирования 501-03-39.32.88Типовые материалы для проектирования 501-03-39.32.88Типовые материалы для проектирования 501-03-39.32.88Типовые материалы для проектирования 501-03-39.32.88Типовые материалы для проектирования 501-03-39.32.88Типовые материалы для проектирования 501-03-39.32.88Типовые материалы для проектирования 501-03-39.32.88Типовые материалы для проектирования 501-03-39.32.88Типовые материалы для проектирования 501-03-39.32.88Типовые материалы для проектирования 501-03-39.32.88Типовые материалы для проектирования 501-03-39.32.88Типовые материалы для проектирования 501-03-39.32.88Типовые материалы для проектирования 501-03-39.32.88Типовые материалы для проектирования 501-03-39.32.88Типовые материалы для проектирования 501-03-39.32.88Типовые материалы для проектирования 501-03-39.32.88Типовые материалы для проектирования 501-03-39.32.88Типовые материалы для проектирования 501-03-39.32.88Типовые материалы для проектирования 501-03-39.32.88Типовые материалы для проектирования 501-03-39.32.88Типовые материалы для проектирования 501-03-39.32.88Типовые материалы для проектирования 501-03-39.32.88

© 2013 Ёшкин Кот :-) Карта сайта