Информационная система
«Ёшкин Кот»

Скачать базу одним архивом
Скачать обновления
История создания базы
Карта сайта

Скачать Типовые материалы для проектирования 501-03-35.32.87 Альбом 2. Чертежи

Дата актуализации: 10.08.2017

Типовые материалы для проектирования 501-03-35.32.87

Альбом 2. Чертежи

Обозначение: Типовые материалы для проектирования 501-03-35.32.87
Обозначение англ: 501-03-35.32.87
Статус:cправочные материалы, мп, тпр
Название рус.:Альбом 2. Чертежи
Дата добавления в базу:01.09.2013
Дата актуализации:05.05.2017
Дата введения:15.12.1987
Оглавление:Титульный лист
Содержание
Депо на программу 8000 физ. ед. Схема генерального плана
Депо на программу 10000 физ. Ед. Схема генерального плана
Технологический процесс ремонта платформ
Графики технологического процесса ремонта платформ
Депо на программу 8000 физ. ед. Производственный корпус. План
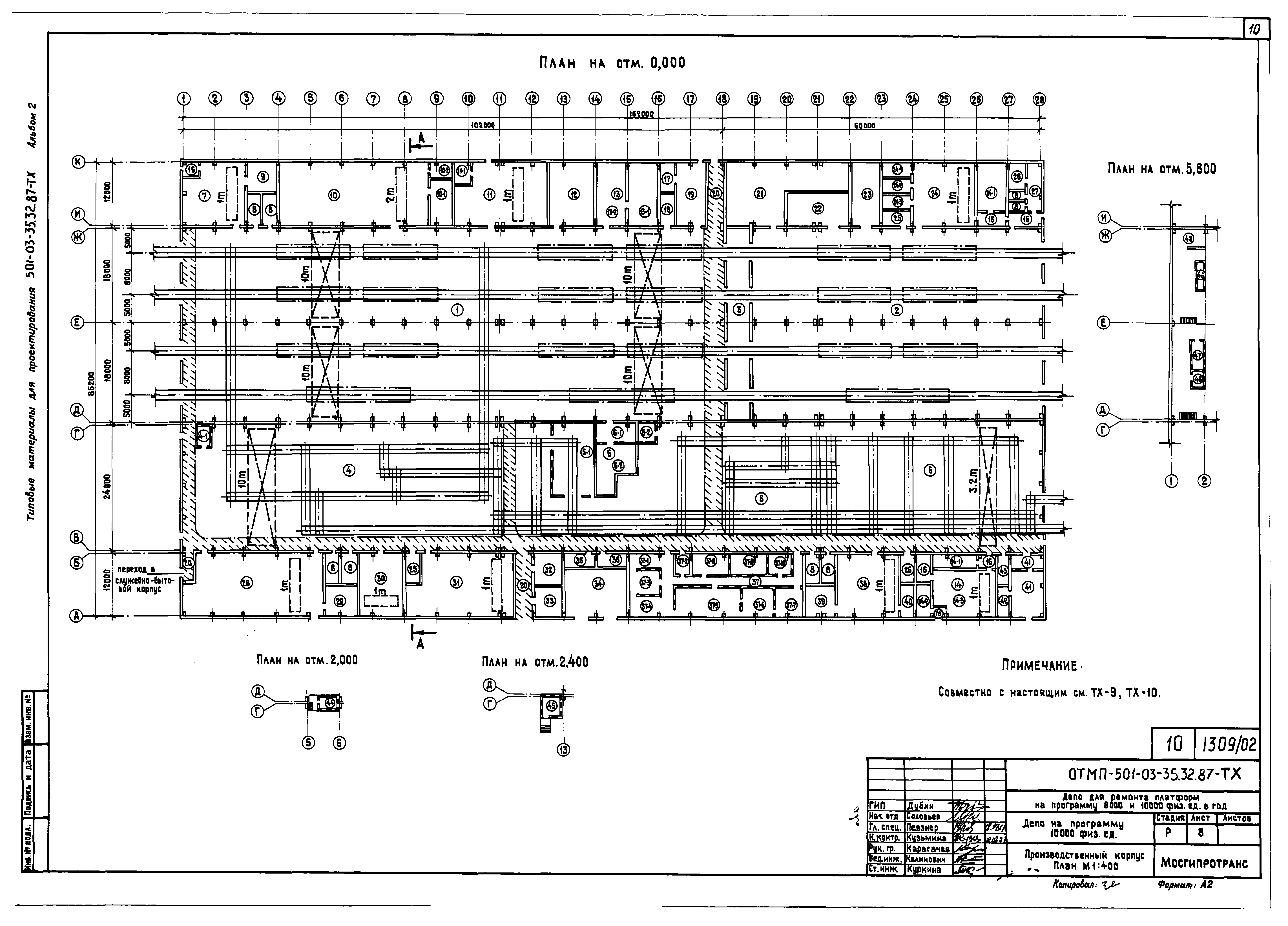
Депо на программу 10000 физ. ед. Производственный корпус. План
Производственный корпус. Экспликация помещений
Производственный корпус. Разрезы
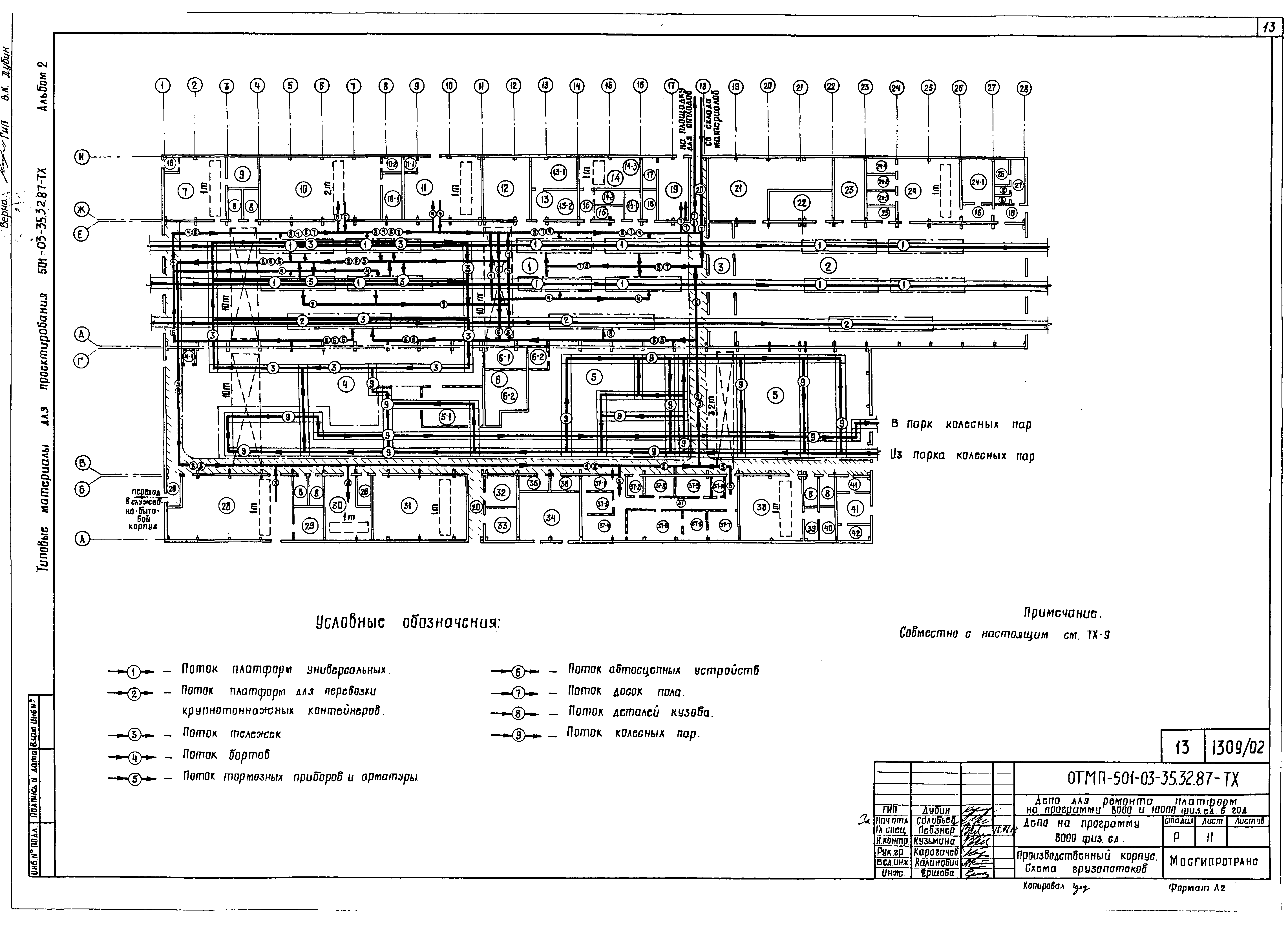
Депо на программу 8000 физ. ед. Производственный корпус. Схема грузопотоков
Депо на программу 10000 физ. ед. Производственный корпус. Схема грузопотоков
Депо на программу 8000 физ. ед. Производственный корпус. Влагоносборочный участок. План с расстановкой оборудования
Депо на программу 10000 физ. ед. Производственный корпус. Влагоносборочный участок. План с расстановкой оборудования
Депо на программу 8000 физ. ед. Производственный корпус. Молярное отделение. План с расстановкой оборудования
Депо на программу 10000 физ. ед. Производственный корпус. Молярное отделение. План с расстановкой оборудования
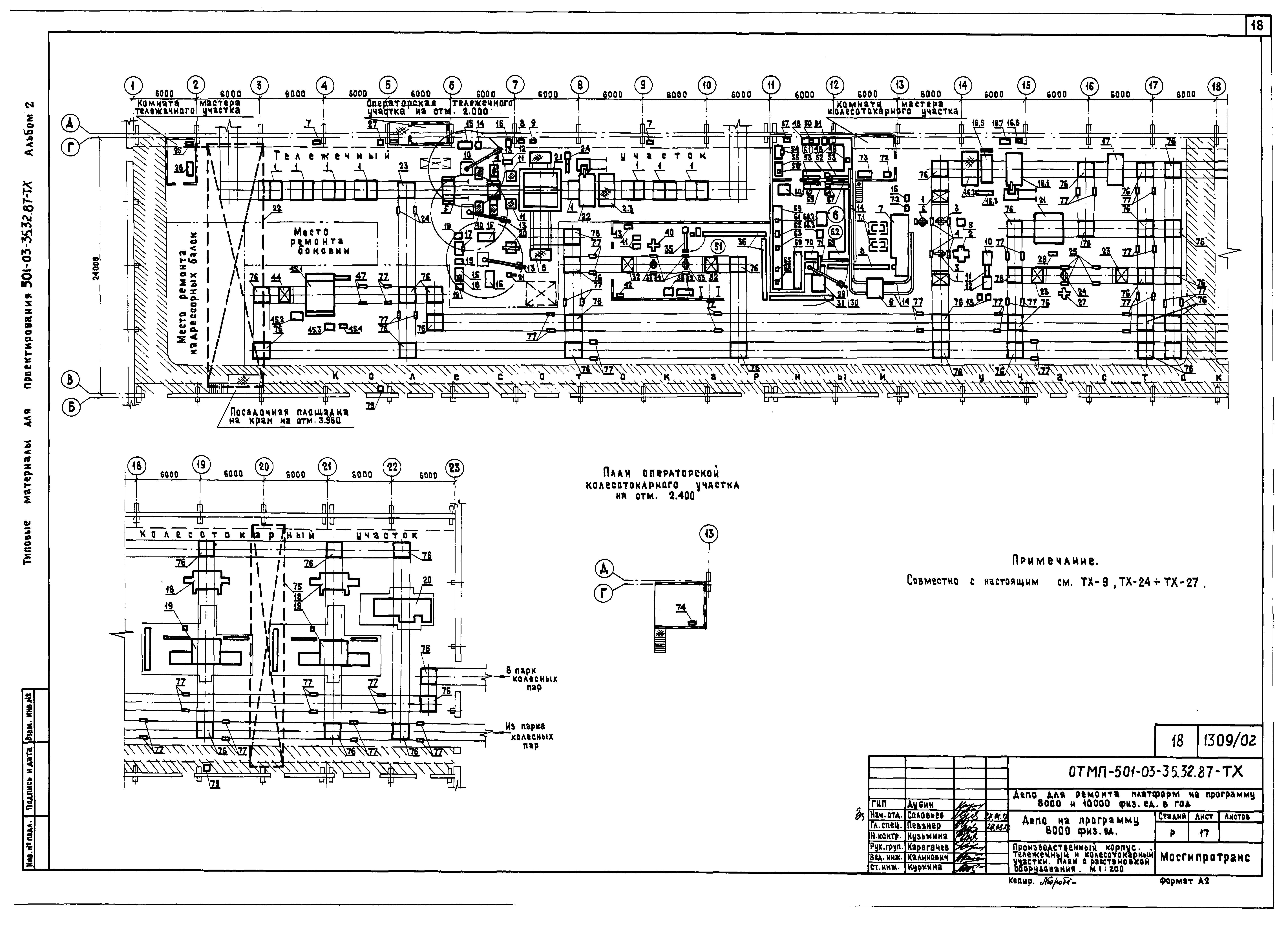
Депо на программу 8000 физ. ед. Производственный корпус. Тележечный и колесотокарный участки. План с расстановкой оборудования
Депо на программу 10000 физ. ед. Производственный корпус. Тележечный и колесотокарный участки. План с расстановкой оборудования
Депо на программу 8000 физ. ед. Производственный корпус. Отделение мастерских. План с расстановкой оборудования
Депо на программу 10000 физ. ед. Производственный корпус. Отделение мастерских. План с расстановкой оборудования
Производственный корпус. Ведомость оборудования
Цех обмывки и подготовки платформ к ремонту. План с расстановкой оборудования. Разрез
Цех обмывки и подготовки платформ к ремонту. Ведомость оборудования. Экспликация помещений
Разработан: Мосгипротранс
Утверждён:15.12.1987 МПС (Ministry of Railroads А-6310у)
Расположен в:Техническая документация Строительство Справочные документы Типовые строительные конструкции, изделия и узлы Общероссийский строительный каталог Промышленные предприятия, здания и сооружения Предприятия, здания и сооружения транспорта Транспорт железнодорожный Здания и сооружения локомотивного и вагонного хозяйства Экипировочные устройства, депо, склады и др. здания и сооружения
Типовые материалы для проектирования 501-03-35.32.87Типовые материалы для проектирования 501-03-35.32.87Типовые материалы для проектирования 501-03-35.32.87Типовые материалы для проектирования 501-03-35.32.87Типовые материалы для проектирования 501-03-35.32.87Типовые материалы для проектирования 501-03-35.32.87Типовые материалы для проектирования 501-03-35.32.87Типовые материалы для проектирования 501-03-35.32.87Типовые материалы для проектирования 501-03-35.32.87Типовые материалы для проектирования 501-03-35.32.87Типовые материалы для проектирования 501-03-35.32.87Типовые материалы для проектирования 501-03-35.32.87Типовые материалы для проектирования 501-03-35.32.87Типовые материалы для проектирования 501-03-35.32.87Типовые материалы для проектирования 501-03-35.32.87Типовые материалы для проектирования 501-03-35.32.87Типовые материалы для проектирования 501-03-35.32.87Типовые материалы для проектирования 501-03-35.32.87Типовые материалы для проектирования 501-03-35.32.87Типовые материалы для проектирования 501-03-35.32.87Типовые материалы для проектирования 501-03-35.32.87Типовые материалы для проектирования 501-03-35.32.87Типовые материалы для проектирования 501-03-35.32.87Типовые материалы для проектирования 501-03-35.32.87Типовые материалы для проектирования 501-03-35.32.87Типовые материалы для проектирования 501-03-35.32.87Типовые материалы для проектирования 501-03-35.32.87Типовые материалы для проектирования 501-03-35.32.87Типовые материалы для проектирования 501-03-35.32.87Типовые материалы для проектирования 501-03-35.32.87Типовые материалы для проектирования 501-03-35.32.87Типовые материалы для проектирования 501-03-35.32.87Типовые материалы для проектирования 501-03-35.32.87Типовые материалы для проектирования 501-03-35.32.87Типовые материалы для проектирования 501-03-35.32.87Типовые материалы для проектирования 501-03-35.32.87Типовые материалы для проектирования 501-03-35.32.87Типовые материалы для проектирования 501-03-35.32.87Типовые материалы для проектирования 501-03-35.32.87Типовые материалы для проектирования 501-03-35.32.87Типовые материалы для проектирования 501-03-35.32.87

© 2013 Ёшкин Кот :-) Карта сайта