Скачать Серия 3.504.9-19 Выпуск 1. Конструкции, изделия и узлыДата актуализации: 10.08.2017 Серия 3.504.9-19
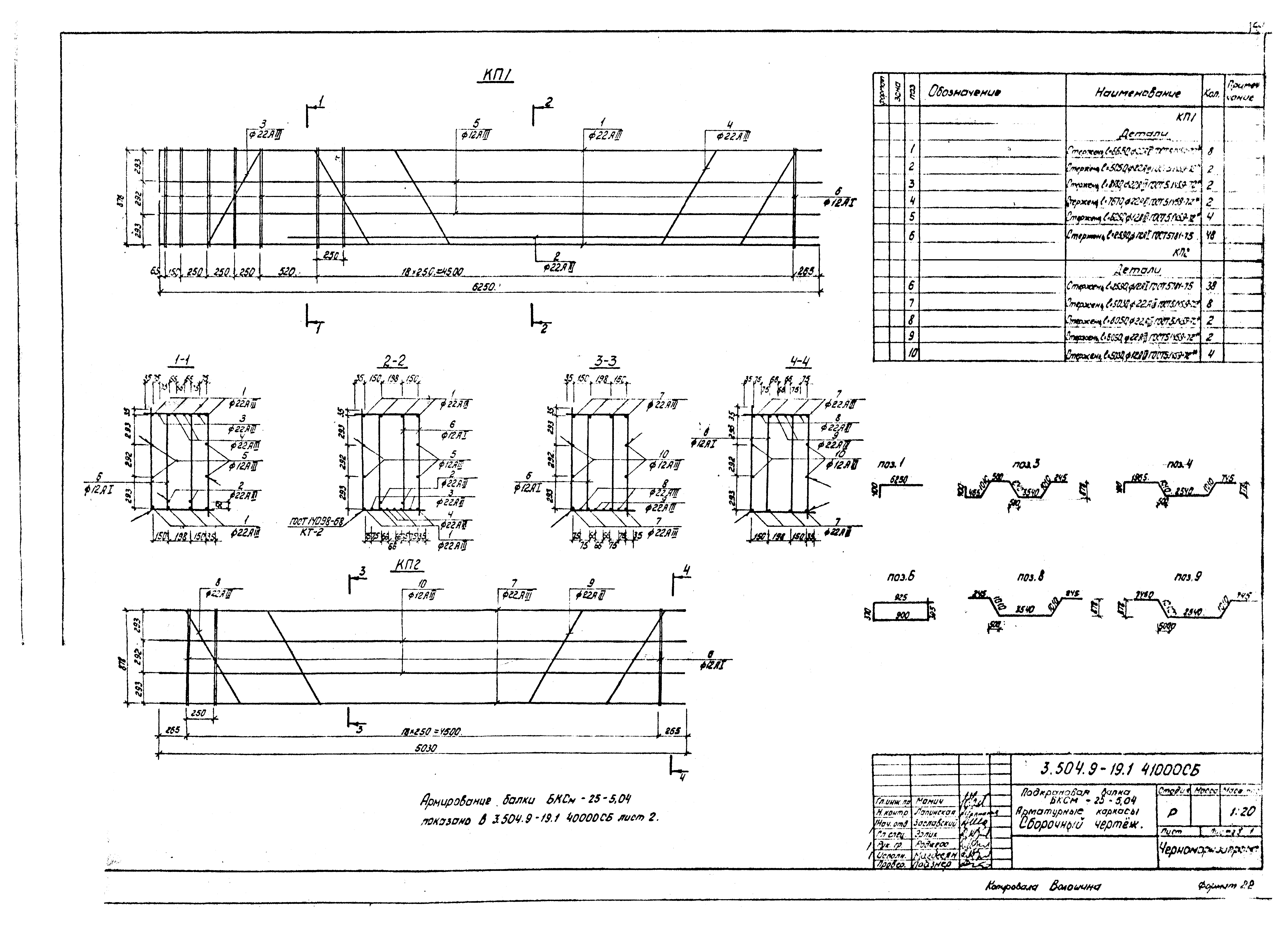
Выпуск 1. Конструкции, изделия и узлыОбозначение: | Серия 3.504.9-19 | Обозначение англ: | Series 3.504.9-19 | Статус: | не определен законодательством | Название рус.: | Выпуск 1. Конструкции, изделия и узлы | Дата добавления в базу: | 01.09.2013 | Дата актуализации: | 05.05.2017 | Дата введения: | 01.07.1981 | Оглавление: | 3.504.9-19.1 00000 ПЗ Пояснительная записка 3.504.9-19.1 10000 СБ Шпала струнобетонная ШС. Сборочный чертеж. Армирование 3.504.9-19.1 20000 СБ Подкрановые балки БКм-25; БКм-26,5; БКм-35; БКм-45. Сборочный чертеж 3.504.9-19.1 20000 СБ Подкрановая балка БКм-25. Армирование 3.504.9-19.1 20000 СБ Подкрановая балка БКм-26,5. Армирование 3.504.9-19.1 20000 СБ Подкрановая балка БКм-35. Армирование 3.504.9-19.1 20000 СБ Подкрановая балка БКм-45. Армирование 3.504.9-19.1 21000 СБ Подкрановая балка БКм-25. Арматурные каркасы и сетки. Сборочный чертеж 3.504.9-19.1 21000 СБ Подкрановая балка БКм-26,5. Арматурные каркасы и сетки. Сборочный чертеж 3.504.9-19.1 21000 СБ Подкрановая балка БКм-35. Арматурные каркасы и сетки. Сборочный чертеж 3.504.9-19.1 21000 СБ Подкрановая балка БКм-45. Арматурные каркасы и сетки. Сборочный чертеж 3.504.9-19.1 30000 СБ Подкрановые балки БКСм-45 - 2,52; БКСм-25; 26,5 - 3,36. Сборочный чертеж 3.504.9-19.1 30000 СБ Подкрановая балка БКСм-25; 26,5 - 2,52. Армирование 3.504.9-19.1 30000 СБ Подкрановая балка БКСм-45 - 2,52. Армирование 3.504.9-19.1 30000 СБ Подкрановая балка БКСм-25; 26,5 - 3,36. Армирование 3.504.9-19.1 31000 СБ Подкрановая балка БКСм-25; 26,5 - 2,52. Арматурные каркасы. Сборочный чертеж 3.504.9-19.1 31000 СБ Подкрановая балка БКСм-45 - 2,52. Арматурные каркасы. Сборочный чертеж 3.504.9-19.1 31000 СБ Подкрановая балка БКСм-25; 26,5 - 3,36. Арматурные каркасы. Сборочный чертеж 3.504.9-19.1 40000 СБ Подкрановая балка БКСм-25 - 5,04. Сборочный чертеж 3.504.9-19.1 40000 СБ Подкрановая балка БКСм-25 - 5,04. Армирование 3.504.9-19.1 41000 СБ Подкрановая балка БКСм-25 - 5,04. Арматурные каркасы. Сборочный чертеж 3.504.9-19.1 50000 СБ Подкрановые балки БК2См-35 - 2,52/35; БК2См-35 - 2,52/40; БК2См-35; 45 - 3,36/35; БК2См-35; 45 - 3,36/40. Сборочный чертеж 3.504.9-19.1 50000 СБ Подкрановая балка БК2См-35 - 2,52/35. Армирование 3.504.9-19.1 50000 СБ Подкрановая балка БК2См-35 - 2,52/40. Армирование 3.504.9-19.1 50000 СБ Подкрановая балка БК2См-35; 45 - 3,36/35. Армирование 3.504.9-19.1 50000 СБ Подкрановая балка БК2См-35; 45 - 3,36/40. Армирование 3.504.9-19.1 51000 СБ Подкрановая балка БК2См-35 - 2,52/35. Арматурные каркасы и сетки. Сборочный чертеж 3.504.9-19.1 51000 СБ Подкрановая балка БК2См-35 - 2,52/40. Арматурные каркасы и сетки. Сборочный чертеж 3.504.9-19.1 51000 СБ Подкрановая балка БК2См-35; 45 - 3,36/35. Арматурные каркасы и сетки. Сборочный чертеж 3.504.9-19.1 51000 СБ Подкрановая балка БК2См-35; 45 - 3,36/40. Арматурные каркасы и сетки. Сборочный чертеж 3.504.9-19.1 60000 СБ Подкрановые балки БК2См-26,5 - 5,04/35; БК2См-26,5 - 5,04/40; БК2См-35; 45 - 5,04/35; 40. Сборочный чертеж 3.504.9-19.1 60000 СБ Подкрановая балка БК2См-26,5 - 5,04/35. Армирование. Сборочный чертеж 3.504.9-19.1 60000 СБ Подкрановая балка БК2См-26,5 - 5,04/40. Армирование 3.504.9-19.1 60000 СБ Подкрановая балка БК2См-35; 45 - 5,04/35; 40. Армирование 3.504.9-19.1 61000 СБ Подкрановая балка БК2См-26,5 - 5,04/35. Арматурные каркасы и сетки. Сборочный чертеж 3.504.9-19.1 61000 СБ Подкрановая балка БК2См-26,5 - 5,04/40. Арматурные каркасы и сетки. Сборочный чертеж 3.504.9-19.1 61000 СБ Подкрановая балка БК2См-35; 45 - 5,04/35; 40. Арматурные каркасы и сетки. Сборочный чертеж 3.504.9-19.1 70000 СБ Железобетонный концевой упор УК-1. Сборочный чертеж 3.504.9-19.1 70000 СБ Железобетонный концевой упор УК-1. Армирование 3.504.9-19.1 80000 СБ Железобетонный концевой упор УК-2. Сборочный чертеж 3.504.9-19.1 80000 СБ Железобетонный концевой упор УК-2. Армирование 3.504.9-19.1 90000 СБ Металлические концевые упоры УК-3-50 и УК-3-65. Сборочный чертеж 3.504.9-19.1 00010 СБ Закладные части упругих связей МН-1 - МН-12 3.504.9-19.1 00020 СБ Рельсовые скрепления для путей на шпалах. Клеменно-болтовое скрепление раздельного типа (марка КБ-50) 3.504.9-19.1 00030 СБ Рельсовые скрепления для путей на балках. Клеменно-болтовое скрепление раздельного типа (марка КБА-50) 3.504.9-19.1 00030 СБ Рельсовые скрепления для путей на балках. Клеменно-болтовое скрепление раздельного типа (марка КБА-50) и нераздельного типа (марка НКБ-50) 3.504.9-19.1 00030 СБ Рельсовые скрепления для путей на балках. Клеменно-болтовое скрепление раздельного типа (марка КБА-65) 3.504.9-19.1 00030 СБ Рельсовые скрепления для путей на балках. Клеменно-болтовые скрепления раздельного типа (марка КБП-65) и нераздельного типа (марка НКБ-65) 3.504.9-19.1 00030 СБ Рельсовые скрепления для путей на балках. Клеменно-болтовое скрепление раздельного типа (марка КБА-100) 3.504.9-19.1 00030 СБ Рельсовые скрепления для путей на балках. Клеменно-болтовые скрепления раздельного типа (марка КБА-100) и нераздельного типа НКБ-100) 3.504.9-19.1 00040 СБ Рельсовые скрепления для путей на ростверках. Клеменно-болтовые скрепления нераздельного типа (марка НКБ-50) и раздельного типа (марка КБУ-50) 3.504.9-19.1 00040 СБ Рельсовые скрепления для путей на ростверках. Клеменно-болтовые скрепления нераздельного типа (марка НКБ-65) и раздельного типа (марка КБУ-65) 3.504.9-19.1 00040 СБ Рельсовые скрепления для путей на ростверках. Клеменно-болтовые скрепления нераздельного типа (марка НКБ-100) и раздельного типа (марка КБУ-100) 3.504.9-19.1 00001 Детали рельсовых скреплений | Разработан: | Черноморниипроект
| Утверждён: | 03.03.1981 Министерство морского флота СССР (USSR Ministry of the Merchant Marine )
| Расположен в: |
|
                                                           
|