Информационная система
«Ёшкин Кот»

Скачать базу одним архивом
Скачать обновления
История создания базы
Карта сайта

Скачать Типовые материалы для проектирования 902-03-87.88 Альбом 2. Технологические решения. Генеральный план. Организация строительства

Дата актуализации: 10.08.2017

Типовые материалы для проектирования 902-03-87.88

Альбом 2. Технологические решения. Генеральный план. Организация строительства

Обозначение: Типовые материалы для проектирования 902-03-87.88
Обозначение англ: 902-03-87.88
Статус:cправочные материалы, мп, тпр
Название рус.:Альбом 2. Технологические решения. Генеральный план. Организация строительства
Дата добавления в базу:01.09.2013
Дата актуализации:05.05.2017
Дата введения:05.11.1984
Оглавление:Содержание альбома
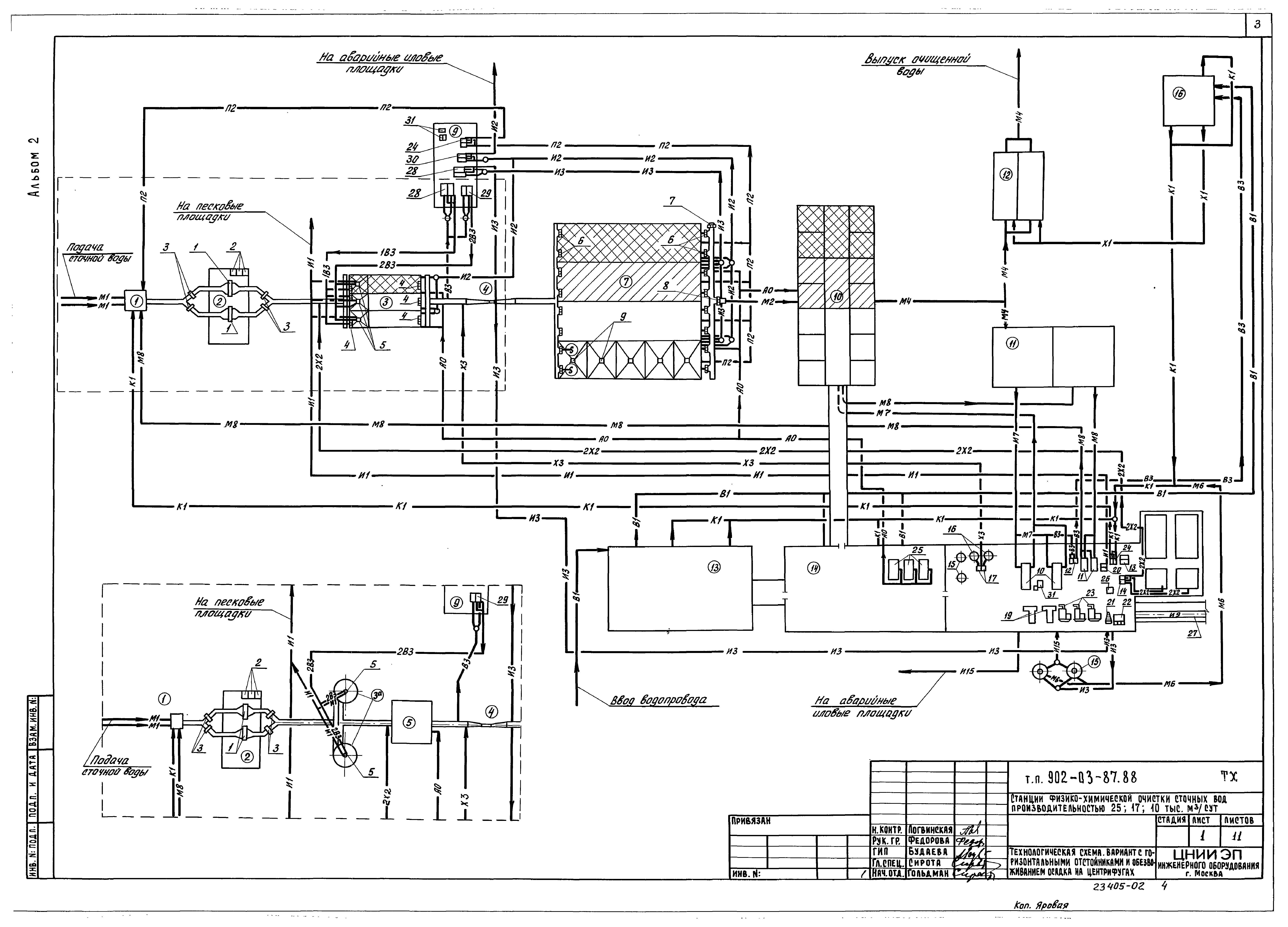
Технологическая схема. Вариант с горизонтальными отстойниками и обезвоживанием осадка на центрифугах
Технологическая схема. Вариант с горизонтальными отстойниками и обезвоживанием осадка на иловых площадках
Технологическая схема. Вариант с радиальными отстойниками и обезвоживанием осадка на центрифугах
Технологическая схема. Вариант с радиальными отстойниками и обезвоживанием осадка на иловых площадках
Экспликация основного оборудования. Экспликация сооружений. Условные обозначения
Станция производительностью 25 тыс. куб. м/сутки. Схема высотного расположения сооружений станции
Станция производительностью 17 тыс. куб. м/сутки. Схема высотного расположения сооружений станции
Станция производительностью 10 тыс. куб. м/сутки. Схема высотного расположения сооружений станции
Узлы и детали иловых площадок
Детали иловых площадок. Конструкция дренажей и дренажных труб
Детали иловых площадок. Схема илового колодца
Станции производительностью 25; 17 тыс. куб. м/сутки
   Примерный генплан. Вариант с горизонтальными отстойниками и обезвоживанием осадка на центрифугах
   Примерный генплан. Вариант с горизонтальными отстойниками и обезвоживанием осадка на иловых площадках
   Примерный генплан. Вариант с радиальными отстойниками и обезвоживанием осадка на центрифугах
   Примерный генплан. Вариант с радиальными отстойниками и обезвоживанием осадка на иловых площадках
Станция производительностью 10 тыс. куб. м/сутки
   Примерный генплан. Вариант с горизонтальными отстойниками и обезвоживанием осадка на центрифугах
   Примерный генплан. Вариант с горизонтальными отстойниками и обезвоживанием осадка на иловых площадках
   Примерный генплан. Вариант с радиальными отстойниками и обезвоживанием осадка на центрифугах
   Примерный генплан. Вариант с радиальными отстойниками и обезвоживанием осадка на иловых площадках
Станции производительностью 25; 17 тыс. куб. м/сутки
   Схема стройгенплана
Станция производительностью 10 тыс. куб. м/сутки
   Схема стройгенплана
Разработан: ЦНИИЭП иженерного оборудования
Утверждён:05.11.1984 Госгражданстрой (Gosgrazhdanstroy 320)
Расположен в:Техническая документация Строительство Справочные документы Типовые строительные конструкции, изделия и узлы Общероссийский строительный каталог Промышленные предприятия, здания и сооружения Здания и сооружения санитарно-технические Канализация Сооружения для очистки производственных сточных вод Станции физико-химической очистки
Типовые материалы для проектирования 902-03-87.88Типовые материалы для проектирования 902-03-87.88Типовые материалы для проектирования 902-03-87.88Типовые материалы для проектирования 902-03-87.88Типовые материалы для проектирования 902-03-87.88Типовые материалы для проектирования 902-03-87.88Типовые материалы для проектирования 902-03-87.88Типовые материалы для проектирования 902-03-87.88Типовые материалы для проектирования 902-03-87.88Типовые материалы для проектирования 902-03-87.88Типовые материалы для проектирования 902-03-87.88Типовые материалы для проектирования 902-03-87.88Типовые материалы для проектирования 902-03-87.88Типовые материалы для проектирования 902-03-87.88Типовые материалы для проектирования 902-03-87.88Типовые материалы для проектирования 902-03-87.88Типовые материалы для проектирования 902-03-87.88Типовые материалы для проектирования 902-03-87.88Типовые материалы для проектирования 902-03-87.88Типовые материалы для проектирования 902-03-87.88Типовые материалы для проектирования 902-03-87.88Типовые материалы для проектирования 902-03-87.88Типовые материалы для проектирования 902-03-87.88Типовые материалы для проектирования 902-03-87.88

© 2013 Ёшкин Кот :-) Карта сайта