Информационная система
«Ёшкин Кот»

Скачать базу одним архивом
Скачать обновления
История создания базы
Карта сайта

Скачать Рекомендации по применению отделочных материалов и оснащению гостиниц Госкоминтуриста СССР в зависимости от строительных разрядов гостиниц и их назначения

Дата актуализации: 10.08.2017

Рекомендации по применению отделочных материалов и оснащению гостиниц Госкоминтуриста СССР в зависимости от строительных разрядов гостиниц и их назначения

Статус:не действует
Название рус.:Рекомендации по применению отделочных материалов и оснащению гостиниц Госкоминтуриста СССР в зависимости от строительных разрядов гостиниц и их назначения
Дата добавления в базу:01.09.2013
Дата актуализации:05.05.2017
Область применения:Документ содержит данные по установлению критериев уровня комфорта гостиниц в соответствии с действующими нормативными документами по строительству и эксплуатации этих учреждений, а также гостиниц разряда люкс, не предусмотренных в действующих нормативных документах.
Оглавление:Введение
1. Рекомендации по внутренней отделке гостиниц Госкоминтуриста СССР
   Анализ отечественного и зарубежного опыта внутренней отделки гостиниц для иностранных туристов
   Основные критерии качества материалов внутренней отделки гостиниц для иностранных туристов и изменение критериев в зависимости от уровня комфорта гостиниц
   Классификация помещений гостиниц Госкоминтуриста СССР по системе требований к отделочным материалам
   Некоторые архитектурные приемы внутренней отделки гостиниц Госкоминтуриста СССР. Рекомендации по применению основных отделочных материалов и принципы их подбора с учетом степени заводской готовности элементов ограждающих конструкций
   Основные способы прменения отделочных материалов
2. Оборудование основных помещений гостиниц
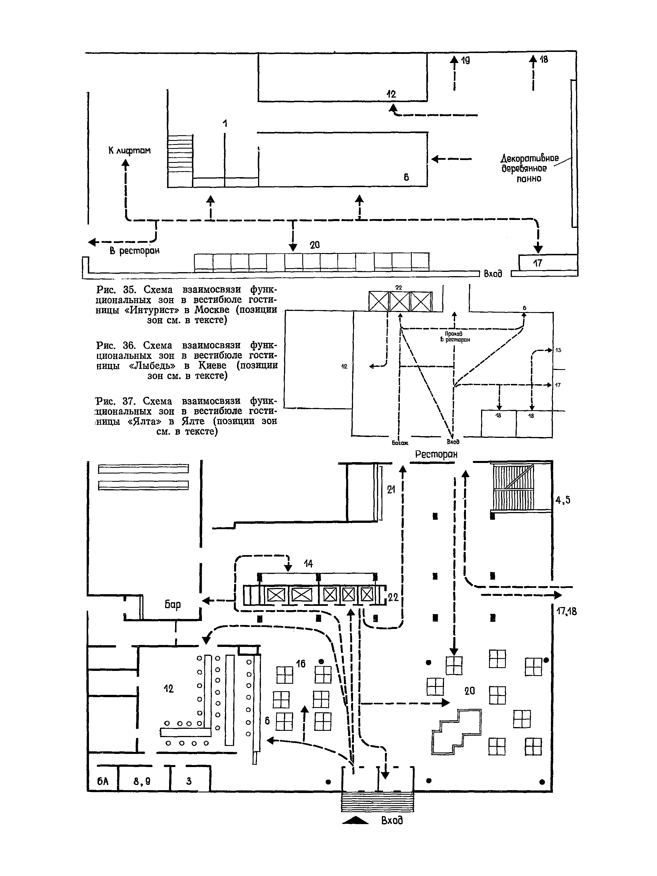
   Вестибюльная группа помещений
   Требования к оборудованию вестибюльной группы помещений
   Особенности объемно-планировочной организации вестибюльной группы помещений гостиниц и их оборудования в практике отечественного строительства
   Поэтажные холлы и гостиные
   Требования к оборудованию поэтажных холлов и гостиных
   Особенности оборудования поэтажных холлов и гостиных в гостиницах отечественного строительства
   Формирование интерьера гостиных перспективных типов гостиниц
   Номера гостиниц
   Требования к оборудованию номеров гостиниц
   Однокомнатные номера
   Многокомнатные номера
   Двухкомнатные номера
   Трехкомнатные номера
   Оснащение номеров сигнализацией и слаботочными устройствами
   Передние и гардеробные в номерах различных типов, особенности их оборудования
   Санитарные узлы номеров
   Формирование интерьера номеров перспективных типов гостиниц
3. Искусственное освещение и светоцветовая среда
   Существующие и перспективные виды искусственного освещения применительно к зданиям гостиничного типа
   Анализ и предложения по дифференциации искусственного освещения в соответствии со строительными разрядами зданий и категориями номеров гостиниц
   Предложения по искусственному освещению помещений гостиниц
Приложение 1. Результаты натурных обследований отделки гостиниц Госкоминтуриста СССР и анализ проектной документации строящихся гостиниц
Приложение 2. Система функциональных требований к материалам внутренней отделки жилых и общественных зданий
Список литературы
Разработан: ЦНИИЭП курортно-туристских зданий и комплексов Госгражданстроя
Расположен в:Техническая документация Экология СТРОИТЕЛЬНЫЕ МАТЕРИАЛЫ И СТРОИТЕЛЬСТВО Градостроительство. Планировка и застройка населенных мест Строительство Справочные документы Директивные письма, положения, рекомендации и др.
Нормативные ссылки:

© 2013 Ёшкин Кот :-) Карта сайта