Информационная система
«Ёшкин Кот»

Скачать базу одним архивом
Скачать обновления
История создания базы
Карта сайта

Скачать Серия 7.401-2 Выпуск 7. Узлы крепления трубопроводов Ду400. Рабочие чертежи

Дата актуализации: 10.08.2017

Серия 7.401-2

Выпуск 7. Узлы крепления трубопроводов Ду400. Рабочие чертежи

Обозначение: Серия 7.401-2
Обозначение англ: Series 7.401-2
Статус:не определен законодательством
Название рус.:Выпуск 7. Узлы крепления трубопроводов Ду400. Рабочие чертежи
Дата добавления в базу:01.09.2013
Дата актуализации:05.05.2017
Дата введения:25.10.1990
Оглавление:Содержание
ПЗ Пояснительная записка
1ФС400-000 Фланцы Ду400 стальные свободные на приварном кольце
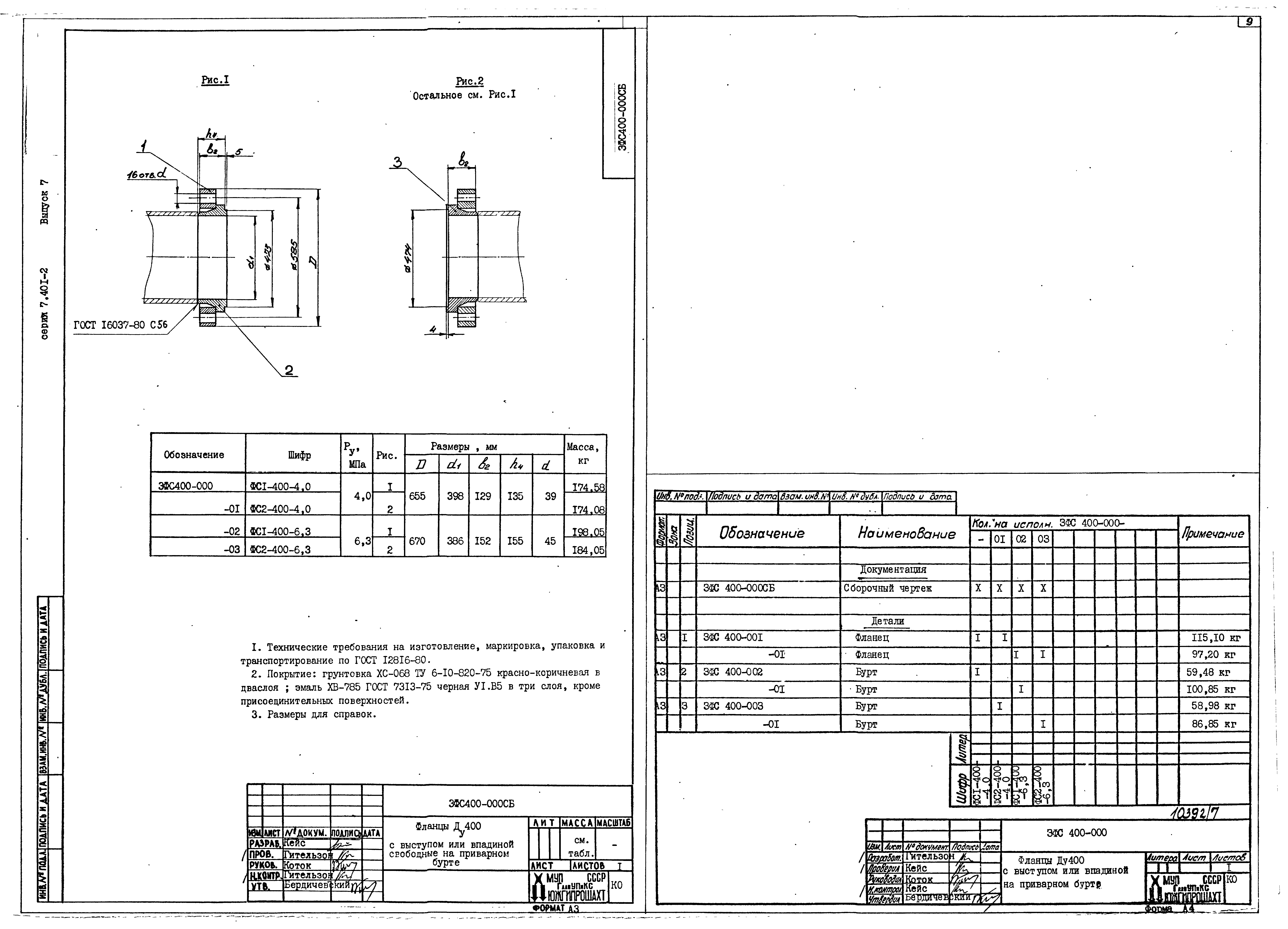
3ФС400-000 Фланцы Ду400 с выступом или впадиной свободные на приварном бурте
ФП400-001 Фланцы Ду400 с выступом или впадиной стальные приварные встык
1СОУ400-000 Стул опорный Ду400 Ру 1,0; 1,6; 2,5 МПа, узкий
3СОУ400-000 Стул опорный Ду400 Ру 4,0; 6,3; 10 МПа, узкий
1СОШ400-000 Стул опорный Ду400 Ру 1,0; 1,6; 2,5 МПа, широкий
3СОШ400-000 Стул опорный Ду400 Ру 4,0; 16,3; 10 МПа, широкий
1КО400-000 Колено опорное Ду400 Ру 1,0; 1,6; 2,5 МПа
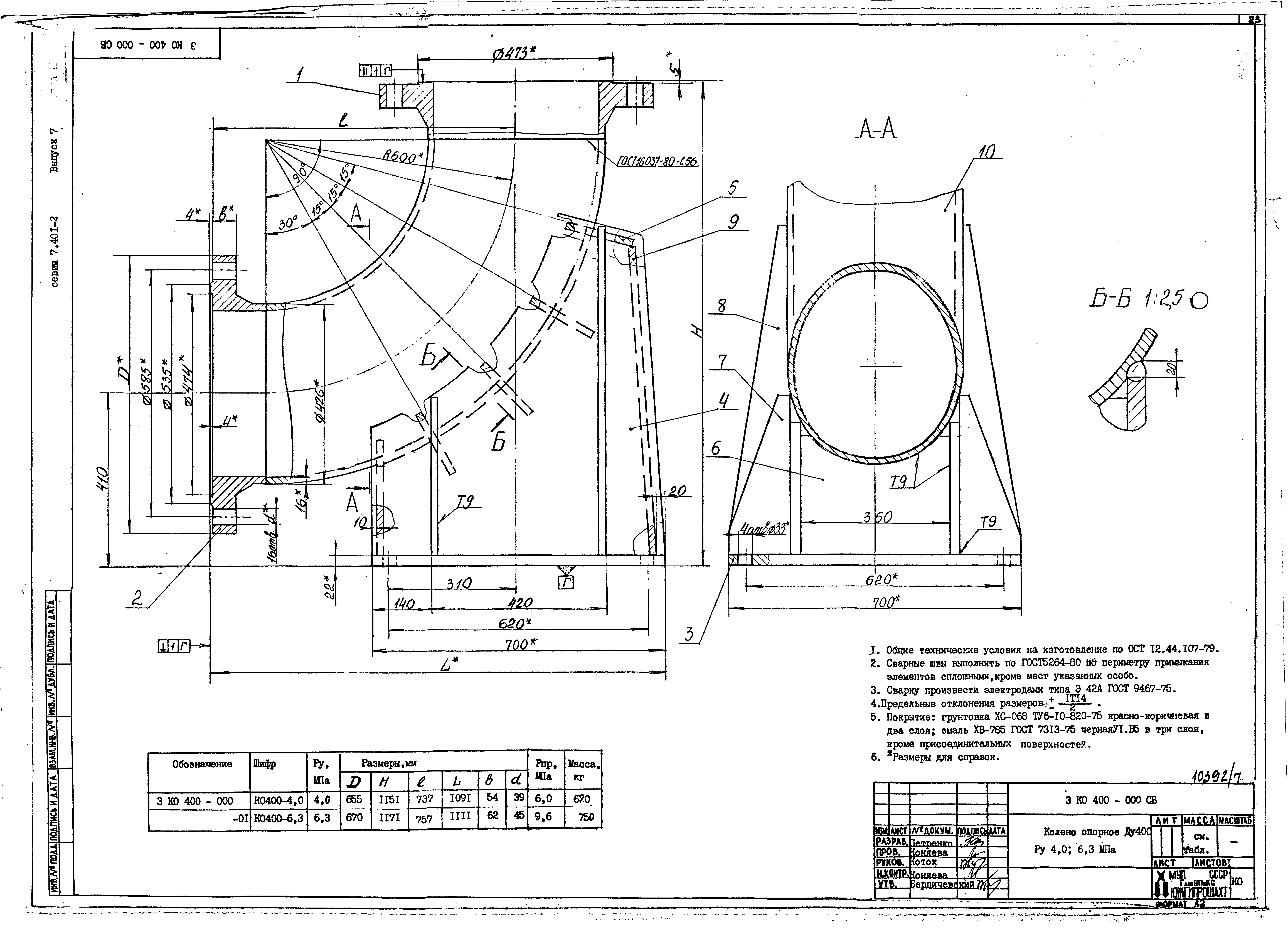
3КО400-000 Колено опорное Ду400 Ру 4,0; 6,3 МПа
4КО400-000 Колено опорное Ду400 Ру 10 МПа
1К400-000 Компенсатор Ду400 Ру 1,0; 1,6; 2,5 МПа
3К400-000 Компенсатор Ду400 Ру 4,0; 6,3; 10 МПа
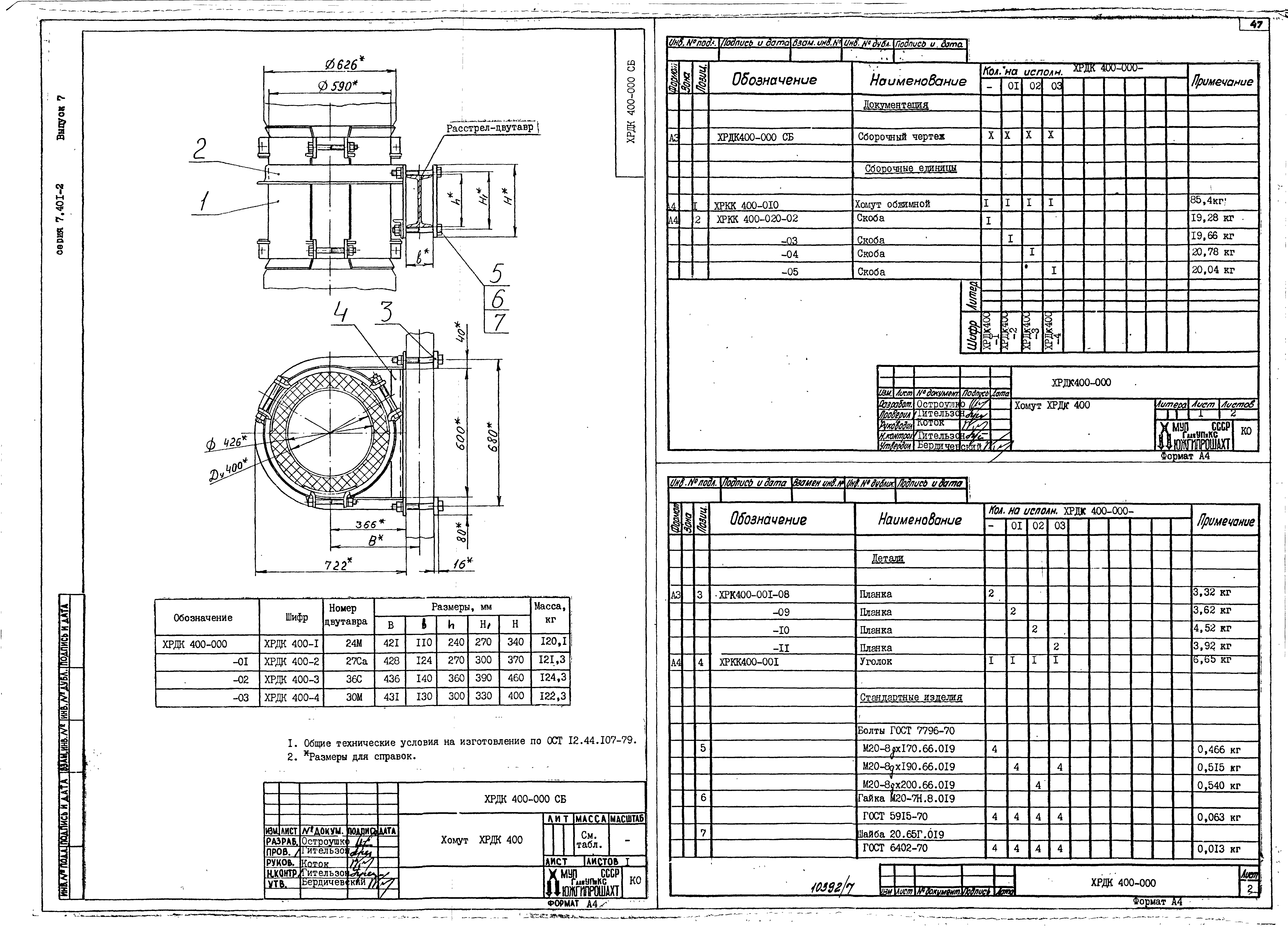
ХРК400-000 Хомут ХРК 400
ХРКК400-000 Хомут ХРКК 400
ХРД400-000 Хомут ХРД 400
ХРДК400-000 Хомут ХРДК 400
ХБ400-000 Хомут ХБ 400
ХБК400-000 Хомут ХБК 400
ХТШ400-000 Хомут ХТШ 400
ХТШК400-000 Хомут ХТШК 400
ОГ400-000 Опора ОГ 400
ОН400-000 Опора ОН 400
Разработан: Южгипрошахт Минуглепрома СССР
Утверждён:25.10.1990 Минуглепром СССР (USSR Minugleprom 3-35-18/1079)
Издан: Госстрой СССР (1991 г. )
Расположен в:Техническая документация Строительство Справочные документы Типовые строительные конструкции, изделия и узлы Общероссийский строительный каталог Строительные конструкции, изделия и узлы зданий и сооружений для всех видов строительства Инженерное оборудование Инженерное оборудование; изделия и узлы инженерного оборудования зданий и сооружений Прочее оборудование
Заменяет собой:
  • Серия 7.401-1
Серия 7.401-2Серия 7.401-2Серия 7.401-2Серия 7.401-2Серия 7.401-2Серия 7.401-2Серия 7.401-2Серия 7.401-2Серия 7.401-2Серия 7.401-2Серия 7.401-2Серия 7.401-2Серия 7.401-2Серия 7.401-2Серия 7.401-2Серия 7.401-2Серия 7.401-2Серия 7.401-2Серия 7.401-2Серия 7.401-2Серия 7.401-2Серия 7.401-2Серия 7.401-2Серия 7.401-2Серия 7.401-2Серия 7.401-2Серия 7.401-2Серия 7.401-2Серия 7.401-2Серия 7.401-2Серия 7.401-2Серия 7.401-2Серия 7.401-2Серия 7.401-2Серия 7.401-2Серия 7.401-2Серия 7.401-2Серия 7.401-2Серия 7.401-2Серия 7.401-2Серия 7.401-2Серия 7.401-2Серия 7.401-2Серия 7.401-2Серия 7.401-2Серия 7.401-2Серия 7.401-2Серия 7.401-2Серия 7.401-2Серия 7.401-2Серия 7.401-2Серия 7.401-2Серия 7.401-2Серия 7.401-2Серия 7.401-2Серия 7.401-2Серия 7.401-2Серия 7.401-2Серия 7.401-2Серия 7.401-2

© 2013 Ёшкин Кот :-) Карта сайта