Информационная система
«Ёшкин Кот»

Скачать базу одним архивом
Скачать обновления
История создания базы
Карта сайта

Скачать Серия 7.401-2 Выпуск 6. Узлы крепления трубопроводов Ду350. Рабочие чертежи

Дата актуализации: 10.08.2017

Серия 7.401-2

Выпуск 6. Узлы крепления трубопроводов Ду350. Рабочие чертежи

Обозначение: Серия 7.401-2
Обозначение англ: Series 7.401-2
Статус:не определен законодательством
Название рус.:Выпуск 6. Узлы крепления трубопроводов Ду350. Рабочие чертежи
Дата добавления в базу:01.09.2013
Дата актуализации:05.05.2017
Дата введения:25.10.1990
Оглавление:Содержание
ПЗ Пояснительная записка
1ФС350-000 Фланцы ДУ350 стальные свободные на приварном кольце
2ФС350-000 Фланцы ДУ350 с выступом или впадиной свободные на приварном кольце
ФП350-000 Фланцы ДУ350 с выступом или впадиной стальные приварные встык
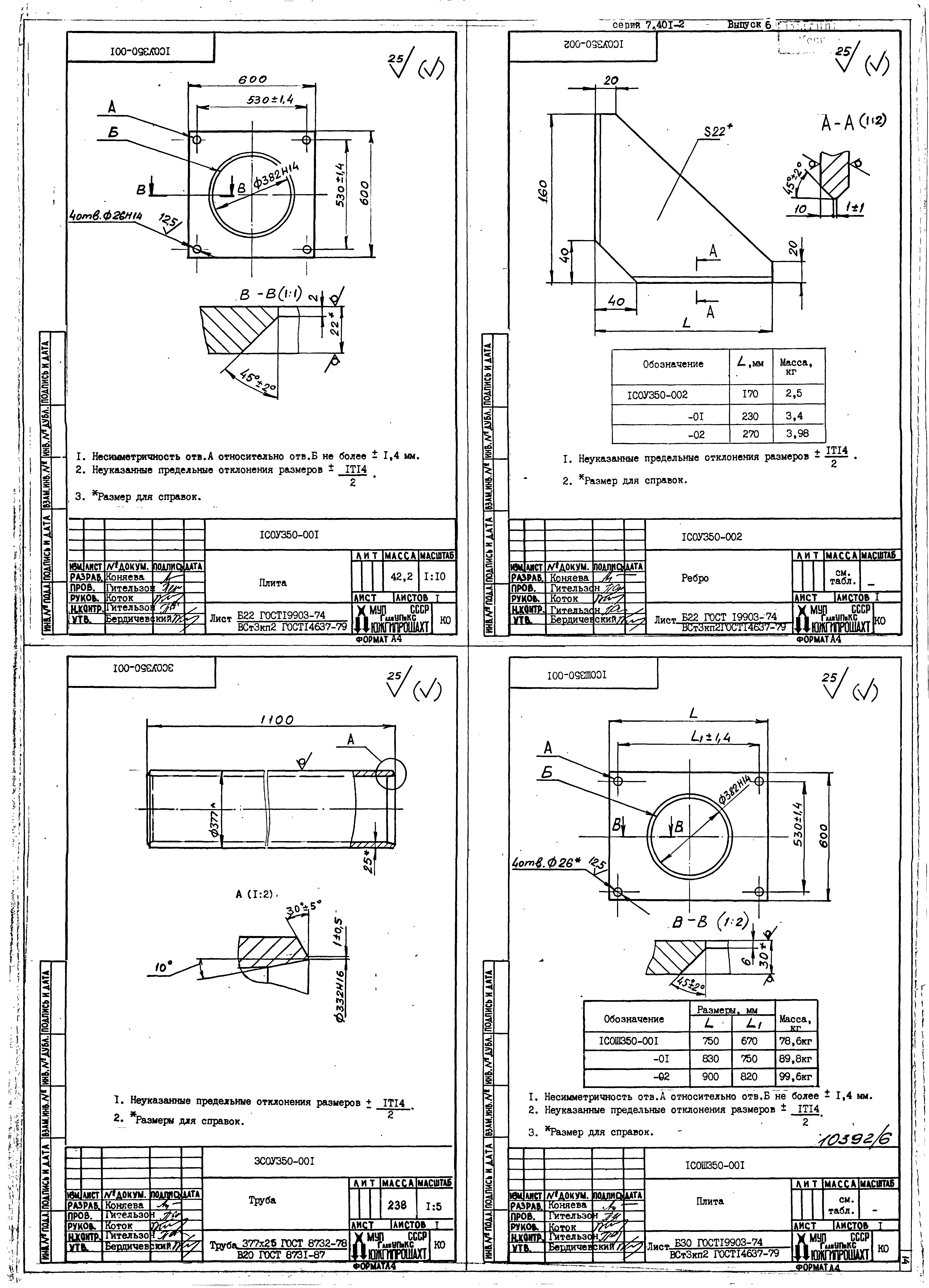
1СОУ350-000 Стул опорный Ду350 Ру 1,0; 1,6; 2,5 МПа узкий
2СОУ350-000 Стул опорный Ду350 Ру 4,0; 6,3 МПа узкий
3СОУ350-000 Стул опорный Ду350 Ру 10 МПа узкий
1СОШ350-000 Стул опорный Ду350 Ру 1,0; 1,6; 2,5 МПа широкий
2СОШ350-000 Стул опорный Ду350 Ру 4,0; 6,3 МПа широкий
3СОШ350-000 Стул опорный Ду350 Ру 10 МПа широкий
1КО350-000 Колено опорное Ду350 Ру 1,0; 1,6; 2,5 МПа
2КО350-000 Колено опорное Ду350 Ру 4,0; 6,3 МПа
4КО350-000 Колено опорное Ду350 Ру 10 МПа
1К350-000 Компенсатор Ду350 Ру 1,0; 1,6; 2,5 МПа
2К350-000 Компенсатор Ду350 Ру 4,0; 6,3 МПа
3К350-000 Компенсатор Ду350 Ру 10 МПа
ХРК350-000 Хомут ХРК 350
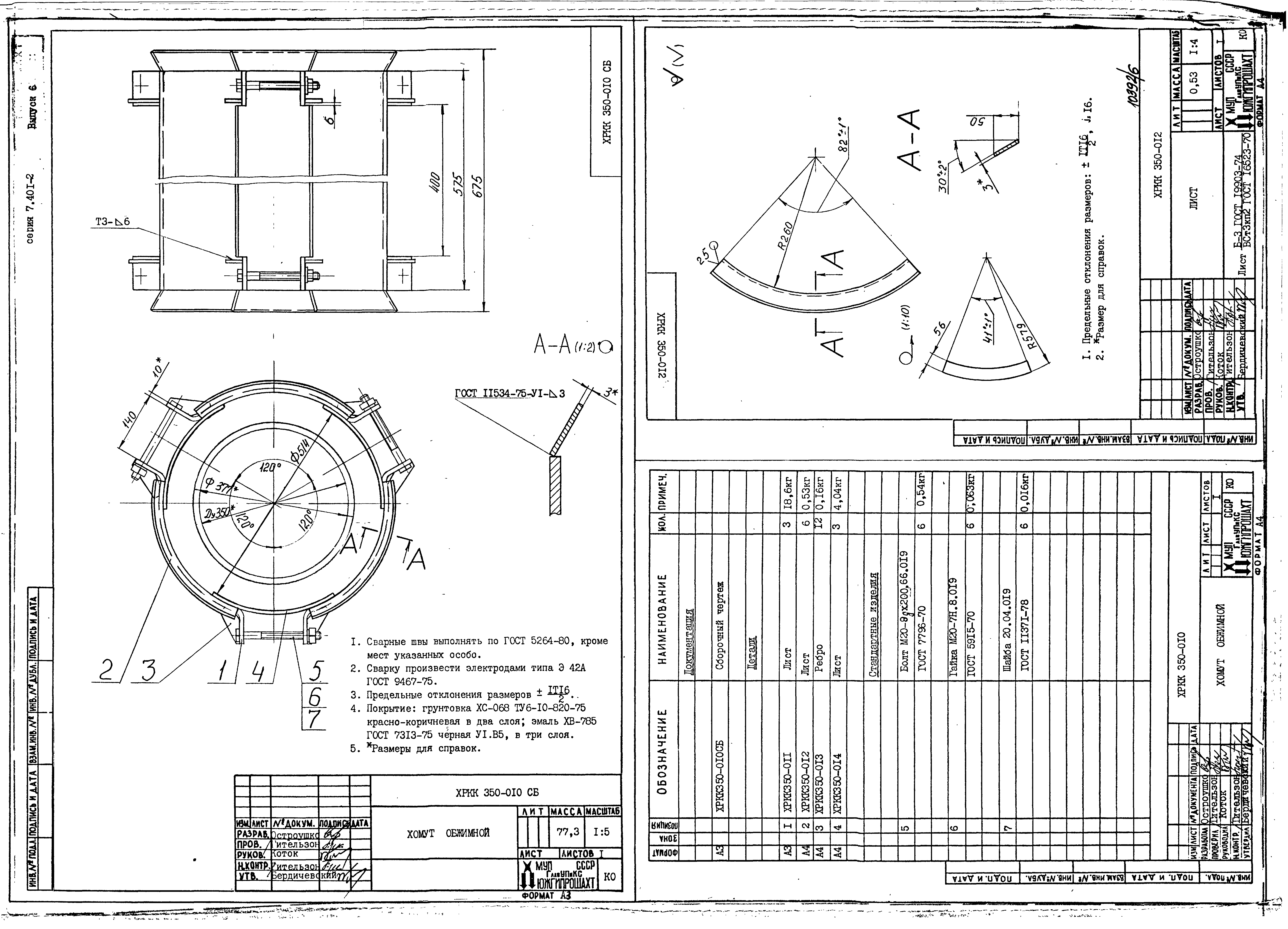
ХРКК350-000 Хомут ХРКК 350
ХРД350-000 Хомут ХРД 350
ХРДК350-000 Хомут ХРДК 350
ХБ350-000 Хомут ХБ 350
ХБК350-000 Хомут ХБК 350
ХТШ350-000 Хомут ХТШ 350
ХТШК350-000 Хомут ХТШК 350
ОГ350-000 Опора ОГ 350
ОН350-000 Опора ОН 350
УП350-000 Устройство противоугонное УП 350
Разработан: Южгипрошахт Минуглепрома СССР
Утверждён:25.10.1990 Минуглепром СССР (USSR Minugleprom 3-35-18/1079)
Издан: Госстрой СССР (1991 г. )
Расположен в:Техническая документация Строительство Справочные документы Типовые строительные конструкции, изделия и узлы Общероссийский строительный каталог Строительные конструкции, изделия и узлы зданий и сооружений для всех видов строительства Инженерное оборудование Инженерное оборудование; изделия и узлы инженерного оборудования зданий и сооружений Прочее оборудование
Заменяет собой:
  • Серия 7.401-1
Серия 7.401-2Серия 7.401-2Серия 7.401-2Серия 7.401-2Серия 7.401-2Серия 7.401-2Серия 7.401-2Серия 7.401-2Серия 7.401-2Серия 7.401-2Серия 7.401-2Серия 7.401-2Серия 7.401-2Серия 7.401-2Серия 7.401-2Серия 7.401-2Серия 7.401-2Серия 7.401-2Серия 7.401-2Серия 7.401-2Серия 7.401-2Серия 7.401-2Серия 7.401-2Серия 7.401-2Серия 7.401-2Серия 7.401-2Серия 7.401-2Серия 7.401-2Серия 7.401-2Серия 7.401-2Серия 7.401-2Серия 7.401-2Серия 7.401-2Серия 7.401-2Серия 7.401-2Серия 7.401-2Серия 7.401-2Серия 7.401-2Серия 7.401-2Серия 7.401-2Серия 7.401-2Серия 7.401-2Серия 7.401-2Серия 7.401-2Серия 7.401-2Серия 7.401-2Серия 7.401-2Серия 7.401-2Серия 7.401-2Серия 7.401-2Серия 7.401-2Серия 7.401-2Серия 7.401-2Серия 7.401-2Серия 7.401-2Серия 7.401-2Серия 7.401-2Серия 7.401-2Серия 7.401-2Серия 7.401-2Серия 7.401-2Серия 7.401-2Серия 7.401-2Серия 7.401-2Серия 7.401-2Серия 7.401-2Серия 7.401-2Серия 7.401-2

© 2013 Ёшкин Кот :-) Карта сайта