Информационная система
«Ёшкин Кот»

Скачать базу одним архивом
Скачать обновления
История создания базы
Карта сайта

Скачать Серия 7.401-2 Выпуск 5. Узлы крепления трубопроводов Ду300. Рабочие чертежи

Дата актуализации: 10.08.2017

Серия 7.401-2

Выпуск 5. Узлы крепления трубопроводов Ду300. Рабочие чертежи

Обозначение: Серия 7.401-2
Обозначение англ: Series 7.401-2
Статус:не определен законодательством
Название рус.:Выпуск 5. Узлы крепления трубопроводов Ду300. Рабочие чертежи
Дата добавления в базу:01.09.2013
Дата актуализации:05.05.2017
Дата введения:25.10.1990
Оглавление:Содержание
ПЗ Пояснительная записка
1ФС300-000 Фланцы Ду300 стальные свободные на приварном кольце
2ФС300-000 Фланцы Ду300 с выступом или впадиной свободные на приварном кольце
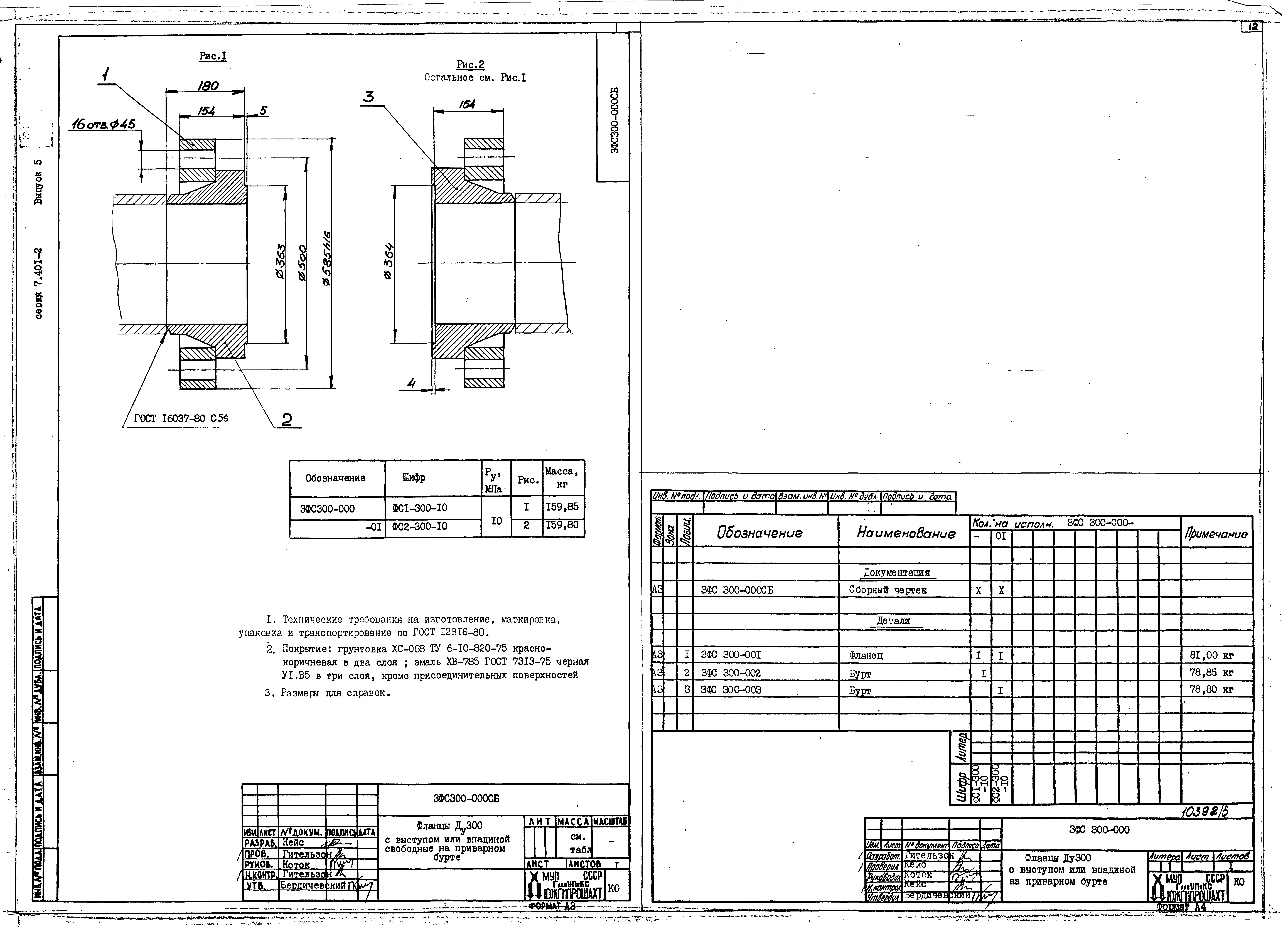
3ФС300-000 Фланцы Ду300 с выступом или впадиной свободные на приварном бурте
ФП300-001 Фланцы Ду300 с выступом или впадиной стальные приварные встык
1СОУ300-000 Стул опорный Ду300 Ру 1,0; 1,6; 2,5 МПа узкий
2СОУ300-000 Стул опорный Ду300 Ру 4,0; 6,3 МПа узкий
3СОУ300-000 Стул опорный Ду300 Ру 10; 16 МПа узкий
1СОШ300-000 Стул опорный Ду300 Ру 1,0; 1,6; 2,5 МПа широкий
2СОШ300-000 Стул опорный Ду300 Ру 4,0; 6,3 МПа широкий
3СОШ300-000 Стул опорный Ду300 Ру 10; 16 МПа широкий
1КО300-000 Колено опорное Ду300 Ру 1,0; 1,6; 2,5 МПа
2КО300-000 Колено опорное Ду300 Ру 4,0; 6,3 МПа
3КО300-000 Колено опорное Ду300 Ру 10 МПа
4КО300-000 Колено опорное Ду300 Ру 16 МПа
1К300-000 Компенсатор Ду300 Ру 1,0; 1,6; 2,5 МПа
2К300-000 Компенсатор Ду300 Ру 4,0; 6,3 МПа
3К300-000 Компенсатор Ду300 Ру 10; 16 МПа
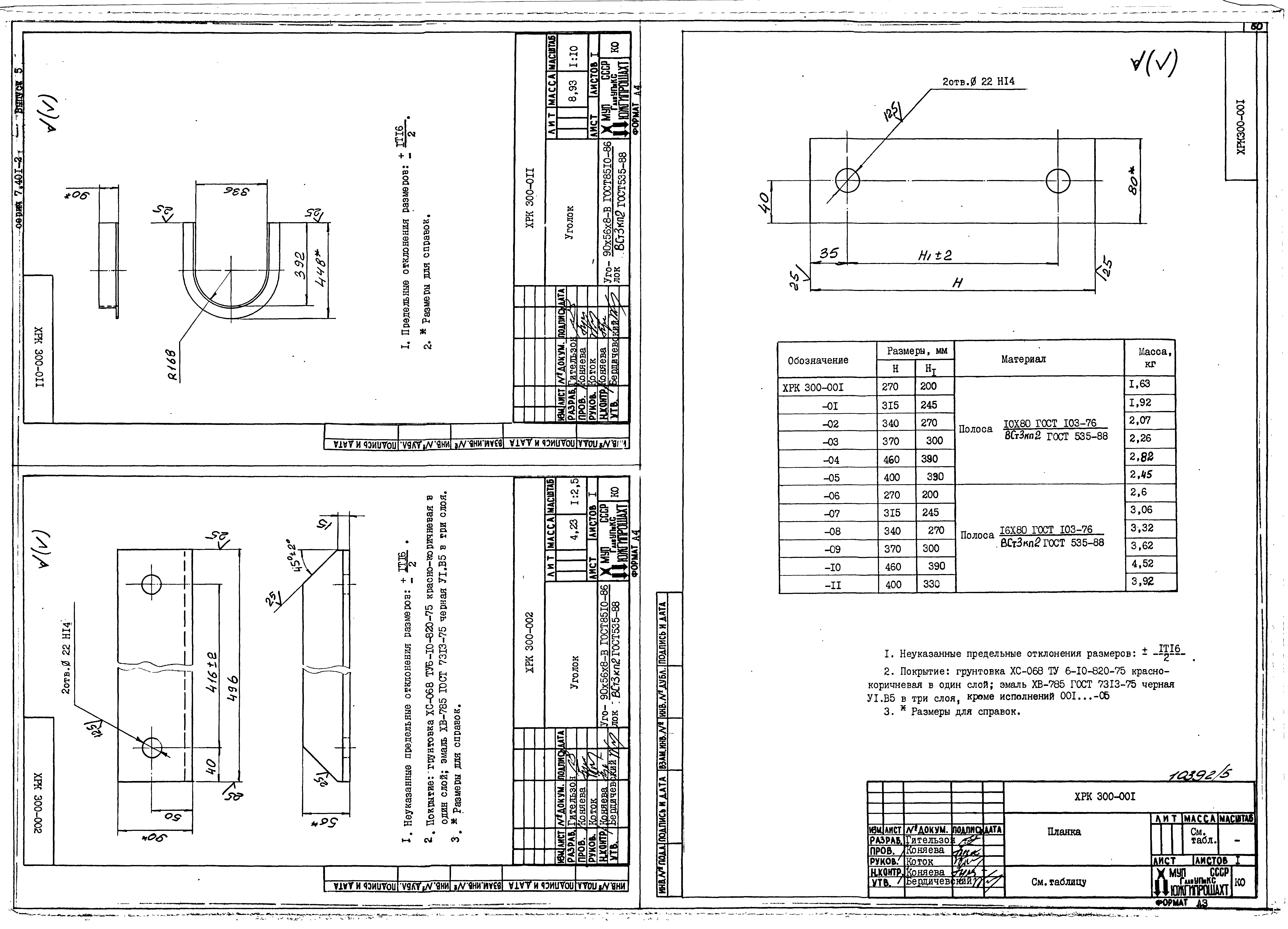
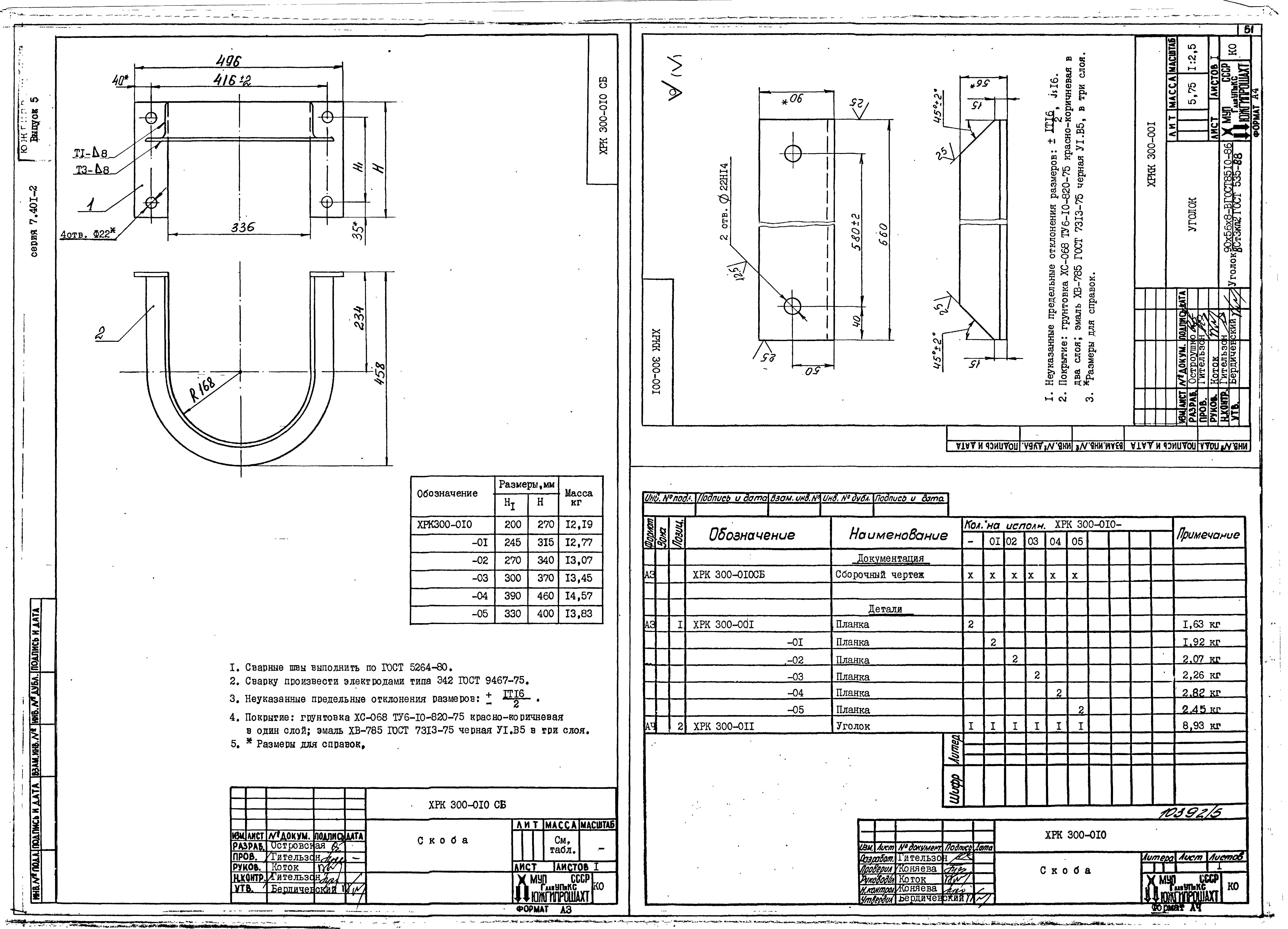
ХРК300-000 Хомут ХРК 300
ХРКК300-000 Хомут ХРКК 300
ХРД300-000 Хомут ХРД 300
ХРДК300-000 Хомут ХРДК 300
ХБ300-000 Хомут ХБ 300
ХБК300-000 Хомут ХБК 300
ХТШ300-000 Хомут ХТШ 300
ХТШК300-000 Хомут ХТШК 300
ПАП300-000 Подвеска ПАП 300
ПАКП300-000 Подвеска ПАКП 300
ПСК300-000 Подвеска ПСК 300
ПВ300-000 Подвеска ПВ 300
ПБ300-000 Подвеска ПБ 300
ПШ300-000 Подвеска ПШ 300
ОГ300-000 Опоры ОГ 300
ОН300-000 Опоры ОН 300
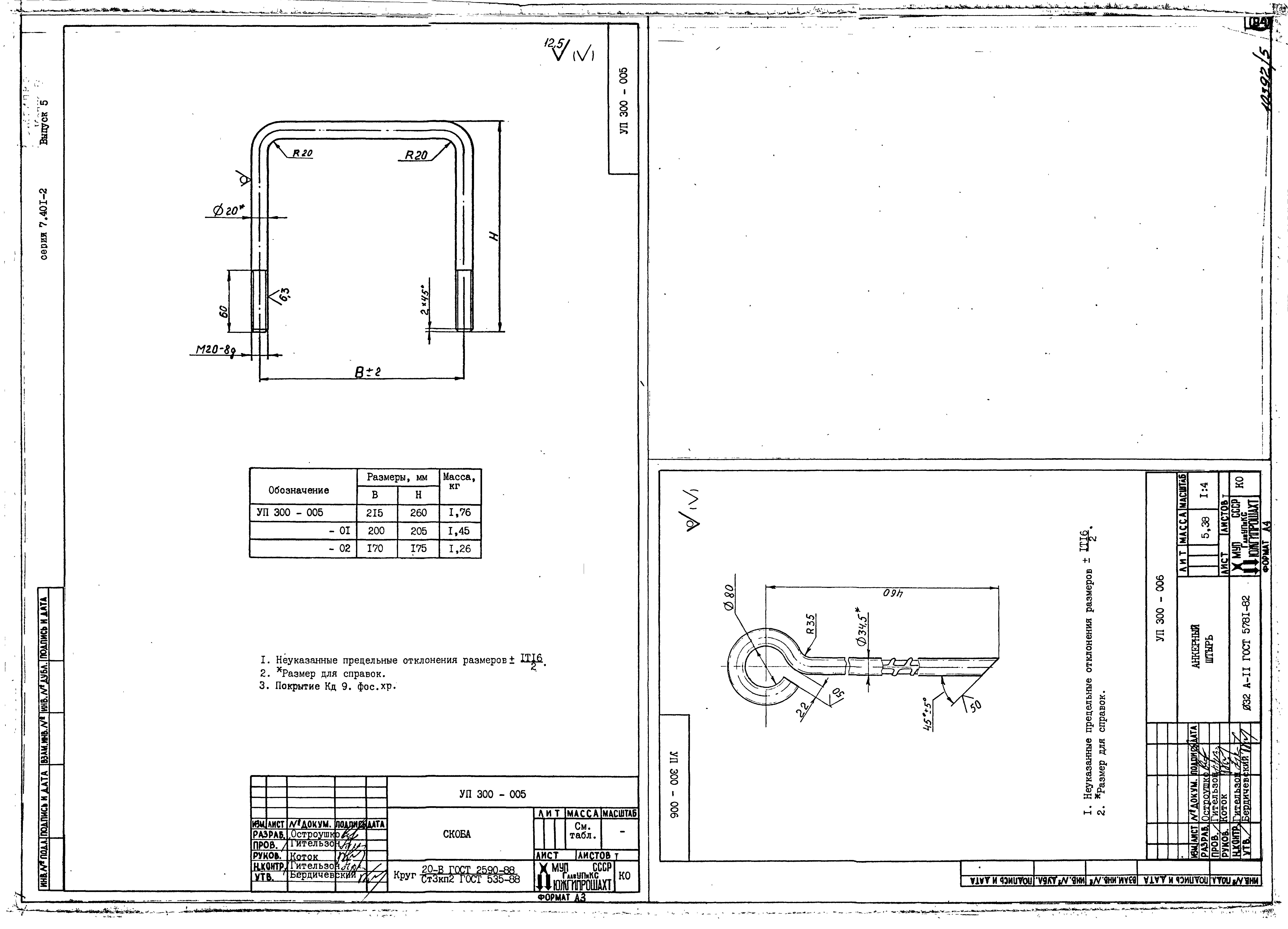
УП300-000 Устройство противоугонное УП 300
Разработан: Южгипрошахт Минуглепрома СССР
Утверждён:25.10.1990 Минуглепром СССР (USSR Minugleprom 3-35-18/1079)
Издан: Госстрой СССР (1991 г. )
Расположен в:Техническая документация Строительство Справочные документы Типовые строительные конструкции, изделия и узлы Общероссийский строительный каталог Строительные конструкции, изделия и узлы зданий и сооружений для всех видов строительства Инженерное оборудование Инженерное оборудование; изделия и узлы инженерного оборудования зданий и сооружений Прочее оборудование
Заменяет собой:
  • Серия 7.401-1
Серия 7.401-2Серия 7.401-2Серия 7.401-2Серия 7.401-2Серия 7.401-2Серия 7.401-2Серия 7.401-2Серия 7.401-2Серия 7.401-2Серия 7.401-2Серия 7.401-2Серия 7.401-2Серия 7.401-2Серия 7.401-2Серия 7.401-2Серия 7.401-2Серия 7.401-2Серия 7.401-2Серия 7.401-2Серия 7.401-2Серия 7.401-2Серия 7.401-2Серия 7.401-2Серия 7.401-2Серия 7.401-2Серия 7.401-2Серия 7.401-2Серия 7.401-2Серия 7.401-2Серия 7.401-2Серия 7.401-2Серия 7.401-2Серия 7.401-2Серия 7.401-2Серия 7.401-2Серия 7.401-2Серия 7.401-2Серия 7.401-2Серия 7.401-2Серия 7.401-2Серия 7.401-2Серия 7.401-2Серия 7.401-2Серия 7.401-2Серия 7.401-2Серия 7.401-2Серия 7.401-2Серия 7.401-2Серия 7.401-2Серия 7.401-2Серия 7.401-2Серия 7.401-2Серия 7.401-2Серия 7.401-2Серия 7.401-2Серия 7.401-2Серия 7.401-2Серия 7.401-2Серия 7.401-2Серия 7.401-2Серия 7.401-2Серия 7.401-2Серия 7.401-2Серия 7.401-2Серия 7.401-2Серия 7.401-2Серия 7.401-2Серия 7.401-2Серия 7.401-2Серия 7.401-2Серия 7.401-2Серия 7.401-2Серия 7.401-2Серия 7.401-2Серия 7.401-2Серия 7.401-2Серия 7.401-2Серия 7.401-2Серия 7.401-2Серия 7.401-2Серия 7.401-2Серия 7.401-2Серия 7.401-2Серия 7.401-2Серия 7.401-2

© 2013 Ёшкин Кот :-) Карта сайта