Информационная система
«Ёшкин Кот»

Скачать базу одним архивом
Скачать обновления
История создания базы
Карта сайта

Скачать Типовой проект 294-3-56.90 Альбом 5. Задание заводам-изготовителям

Дата актуализации: 10.08.2017

Типовой проект 294-3-56.90

Альбом 5. Задание заводам-изготовителям

Обозначение: Типовой проект 294-3-56.90
Обозначение англ: 294-3-56.90
Статус:не определен законодательством
Название рус.:Альбом 5. Задание заводам-изготовителям
Дата добавления в базу:01.09.2013
Дата актуализации:05.05.2017
Дата введения:30.11.1990
Оглавление:АУ001 Содержание альбома
АУ.С02 Спецификация щитов
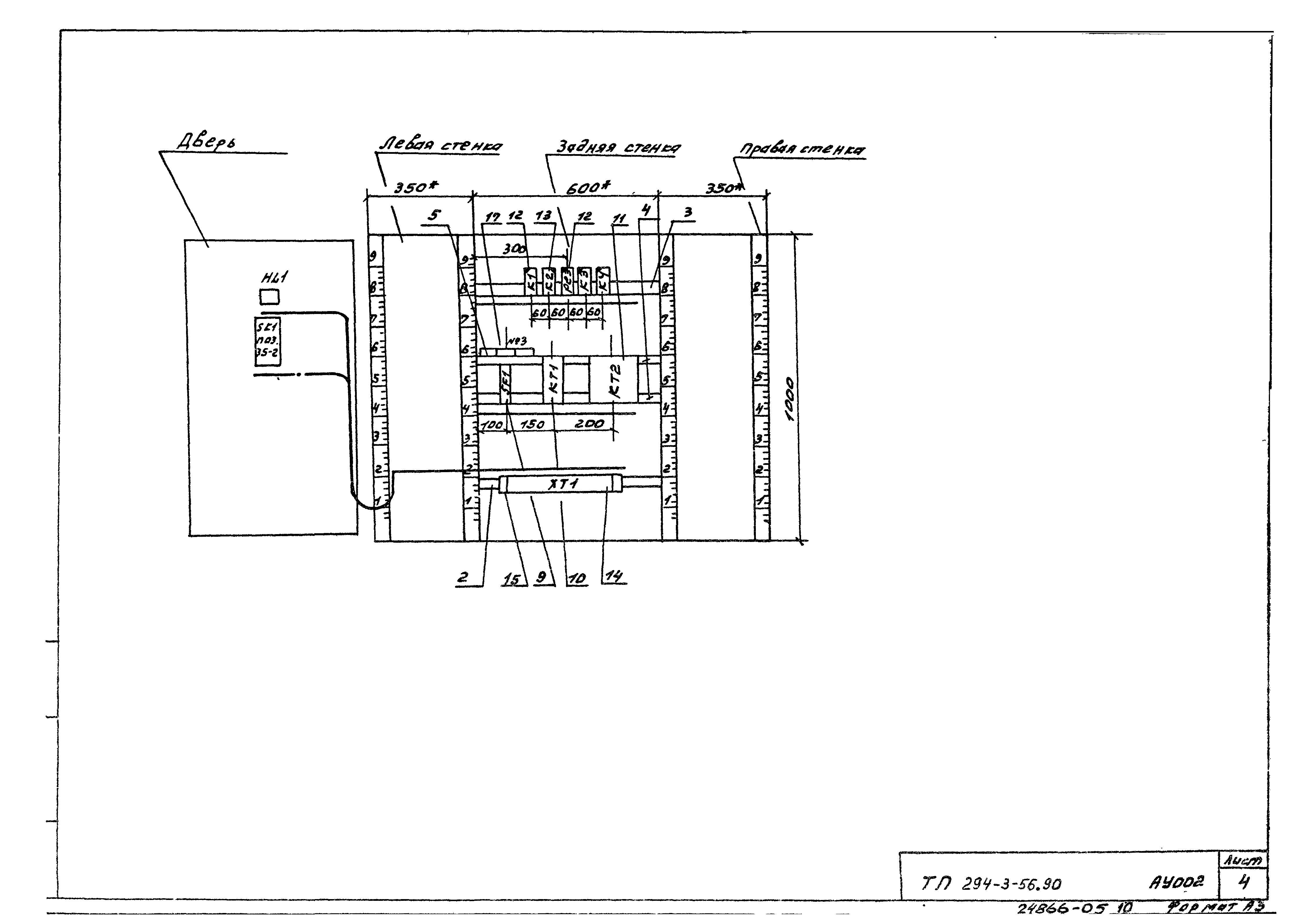
АУ002 Щит системы П1(П2, П3). Общий вид
АУ003 Щит системы П1(П2, П3). Таблица соединений
АУ004 Щит системы П1(П2, П3). Таблица подключения
АУ005 Щит зональных подогревателей. Общий вид
АУ006 Щит зональных подогревателей. Таблица соединений
АУ007 Щит зональных подогревателей. Таблица подключения
АУ008 Щит системы У1. Общий вид
АУ009 Щит системы У1. Таблица соединений
АУ010 Щит системы У1. Система подключения
АУ011 Щит управления. Общий вид
АУ012 Щит управления. Таблица соединений
АУ013 Щит управления. Таблица подключения
Разработан: ЦНИИЭП им. Б.С. Мезенцева Госгражданстроя
Утверждён:30.11.1990 Госкомспорт СССР (USSR Goskomsport 432)
Расположен в:Техническая документация Строительство Справочные документы Типовые строительные конструкции, изделия и узлы Общероссийский строительный каталог Общественные здания в городах и поселках городского типа Физкультурно-оздоровительные и спортивные здания и сооружения Сооружения для водных видов спорта
Типовой проект 294-3-56.90Типовой проект 294-3-56.90Типовой проект 294-3-56.90Типовой проект 294-3-56.90Типовой проект 294-3-56.90Типовой проект 294-3-56.90Типовой проект 294-3-56.90Типовой проект 294-3-56.90Типовой проект 294-3-56.90Типовой проект 294-3-56.90Типовой проект 294-3-56.90Типовой проект 294-3-56.90Типовой проект 294-3-56.90Типовой проект 294-3-56.90Типовой проект 294-3-56.90Типовой проект 294-3-56.90Типовой проект 294-3-56.90Типовой проект 294-3-56.90Типовой проект 294-3-56.90Типовой проект 294-3-56.90Типовой проект 294-3-56.90Типовой проект 294-3-56.90Типовой проект 294-3-56.90Типовой проект 294-3-56.90Типовой проект 294-3-56.90Типовой проект 294-3-56.90Типовой проект 294-3-56.90Типовой проект 294-3-56.90Типовой проект 294-3-56.90Типовой проект 294-3-56.90Типовой проект 294-3-56.90Типовой проект 294-3-56.90Типовой проект 294-3-56.90Типовой проект 294-3-56.90Типовой проект 294-3-56.90Типовой проект 294-3-56.90Типовой проект 294-3-56.90Типовой проект 294-3-56.90Типовой проект 294-3-56.90Типовой проект 294-3-56.90Типовой проект 294-3-56.90Типовой проект 294-3-56.90Типовой проект 294-3-56.90

© 2013 Ёшкин Кот :-) Карта сайта