Скачать Типовой проект 294-3-56.90 Альбом 3. Пояснительная записка. Отопление, вентиляция. Внутренний водопровод и канализация, ливнестоки. Автоматизация сантехустройствДата актуализации: 10.08.2017 Типовой проект 294-3-56.90
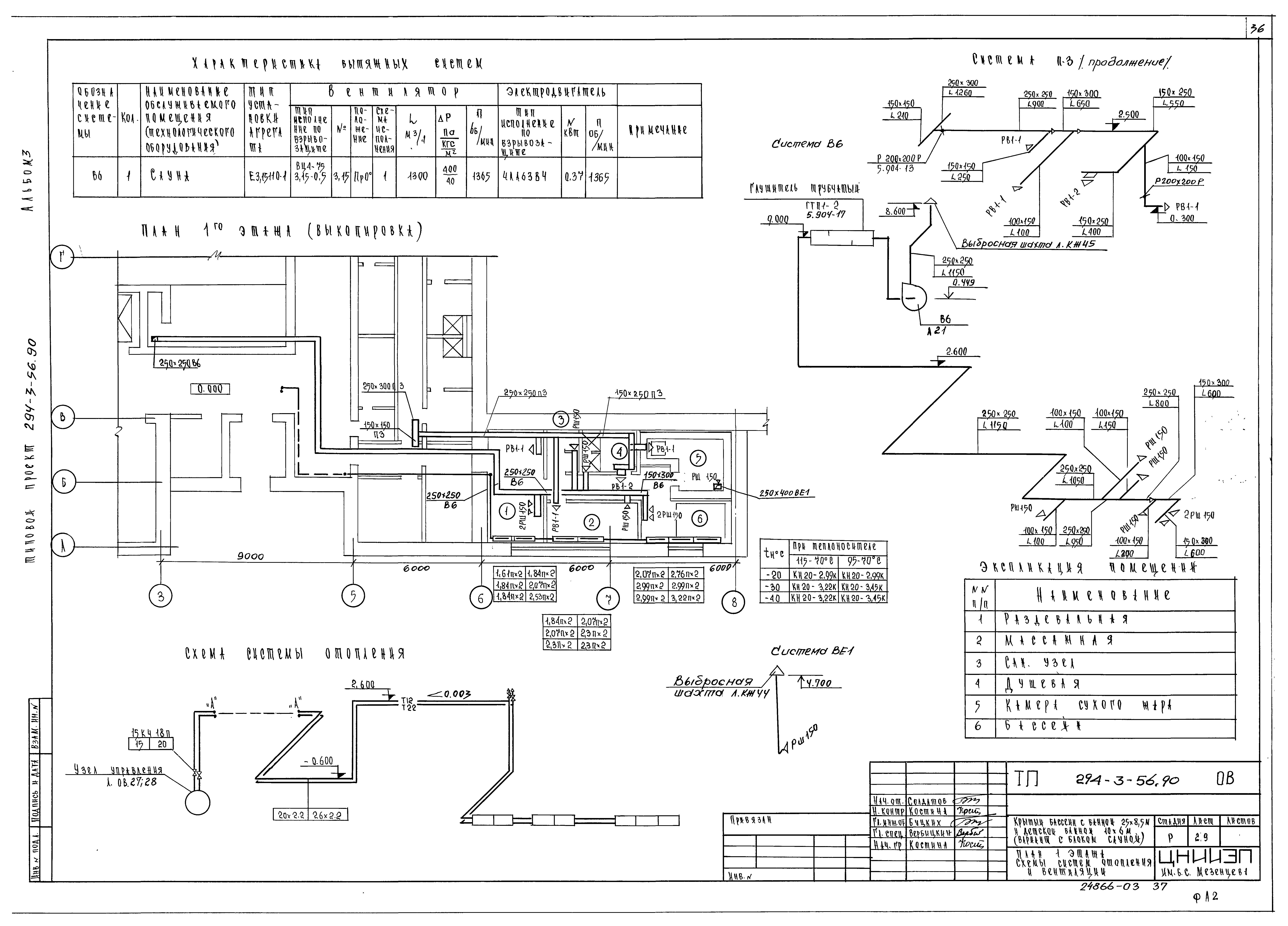
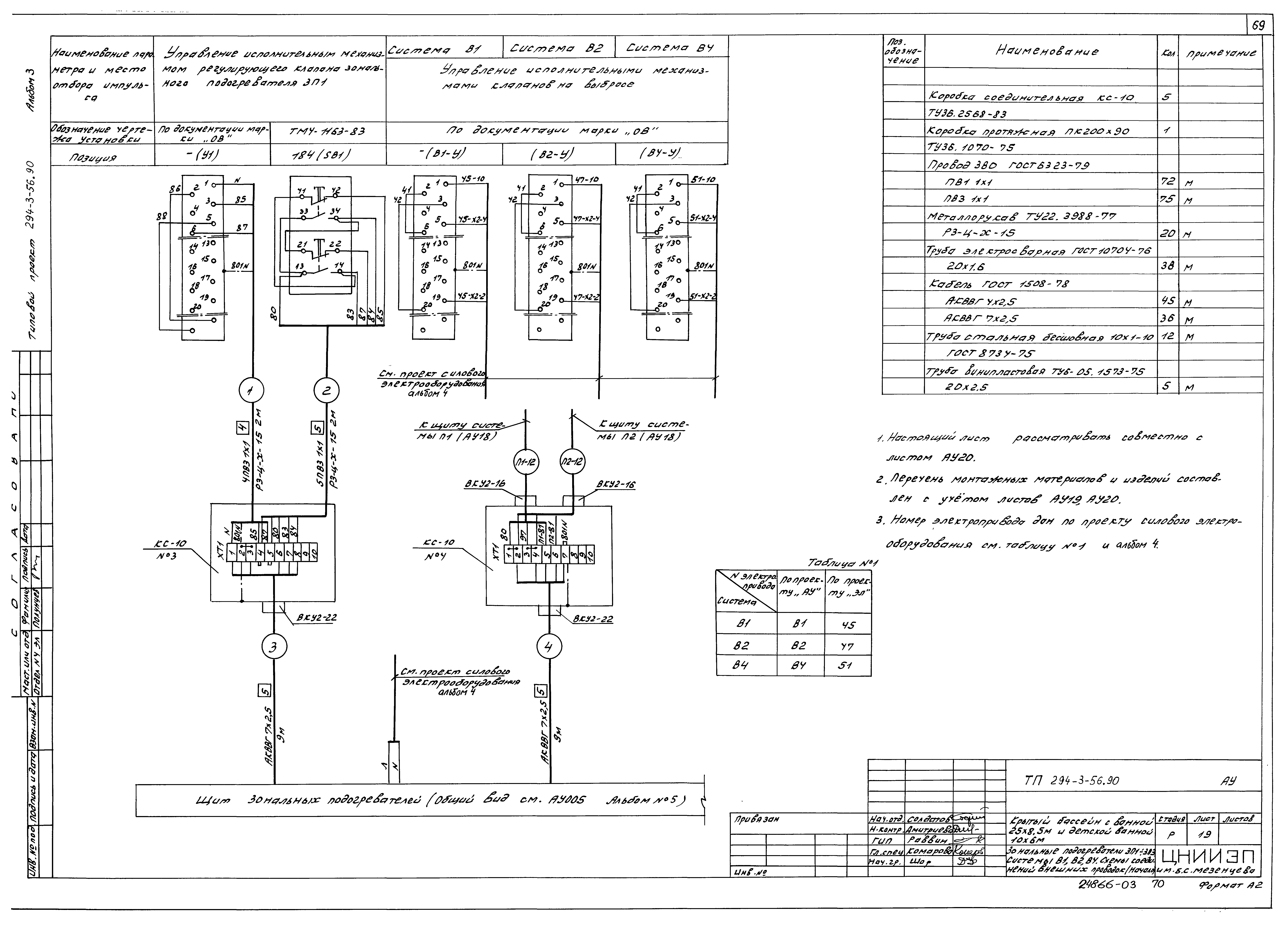
Альбом 3. Пояснительная записка. Отопление, вентиляция. Внутренний водопровод и канализация, ливнестоки. Автоматизация сантехустройствОбозначение: | Типовой проект 294-3-56.90 | Обозначение англ: | 294-3-56.90 | Статус: | не определен законодательством | Название рус.: | Альбом 3. Пояснительная записка. Отопление, вентиляция. Внутренний водопровод и канализация, ливнестоки. Автоматизация сантехустройств | Дата добавления в базу: | 01.09.2013 | Дата актуализации: | 05.05.2017 | Дата введения: | 30.11.1990 | Оглавление: | Пояснительная записка Отопление и вентиляция Общие данные План подвала и чердака План 1-го этажа План 2-го этажа План 2-го этажа. Отопление обходных дорожек Схема системы отопления №1 Схемы систем отопления 2, 3, 4 Схема системы отопления обходных дорожек Схемы систем П1 - П3 (начало), У1 Схемы систем В5, П1, П2 (окончание) Схемы системы П3 (окончание) Схемы систем В1, В2, В3 Схема системы В4 Установки систем П1 - П3, У1. План Установки систем П1 - П3, У1. Разрезы 1-1, 2-2, 3-3 Установки систем П1 - П3, У1. Спецификация Установки систем В1 - В6. План. Разрезы 1-1 - 3-3 Установки систем В1 - ВС. Спецификация Схема системы теплоснабжения калориферов приточных установок (начало) Схема системы теплоснабжения калориферов приточных систем (окончание) Схема системы утилизации теплоустановок П1, П2, В1, В2 Схема теплоснабжения водонагревателей Узел управления. Т 150 - 70 градусов Цельсия Узел управления. Т 95 - 70 градусов Цельсия Вариант с блоком сауной. План 1 этажа. Схемы систем отопления и вентиляции Водоснабжение и канализация Общие данные План подвала с сетями ВО, Т3 и К1 План 1-го этажа с сетями ВО, Т3 и К1 План 1-го этажа с сетями К1, К2 и К3 План 2-го этажа с сетями ВО, Т3 План 2-го этажа с сетями К1, К2 План кровли. Схема системы К2 Схема системы ВО Схема системы ТЗ Схема систем К1 и К3 Насосно-фильтровальная станция. План Насосно-фильтровальная станция. Схема систем В4.1; В4.2; В5.1; В5.2; СС; АС Ванна 25х6,5, ванна 10х6. Схемы обвязки трубопроводов Сауна. План. Схемы систем ВО, Т3, К1 Автоматизация сантехустройств Общие данные Система П1(П2). Схема автоматизации Системы П3, У1, В1(В2), В3, В4, В5(В6, В7). Схемы автоматизации Тепловой пункт. Схема автоматизации Насосно-фильтровочная станция. Схема автоматизации Система П1(П2, П3). Схема электрическая принципиальная Зональные подогреватели ЗП1 - ЗП3. Насосы утилизации №1, 2. Схемы электрические принципиальные Система У1. Схема электрическая принципиальная Система В3. Насосы подпиточный и обходных дорожек. Схемы электрические принципиальные Задвижки З1-У, З2-У. Схемы электрические принципиальные Задвижка З3-У. Схема электрическая принципиальная Задвижки З1-У - З3-У. Сигнализация. Схема электрическая принципиальная Энергопитание щита управления. Схема контроля температуры наружного воздуха. Система В1(В2, В4). Схемы электрические принципиальные Сигнализация щита управления. Схема электрическая принципиальная Система П1(П2, П3). Схема соединения внешних проводок Зональные подогреватели ЗП1 - ЗП3. Системы В1, В2, В4. Схемы соединений внешних проводок Система У1. Схема соединений и подключения внешних проводок Задвижки З1-У - З3-У. Схема соединений внешних проводок Щит управления. Схема соединения внешних проводок Системы П1(П2, П3). Зональные подогреватели ЗП1 - ЗП3. Схемы подключения внешних проводок Щит управления. Схема подключения внешних проводок Фрагмент подвала в осях В-Е - 2-4. Венткамера на отм. 6.600. Планы расположения 1 этаж. План расположения Фрагменты 1-го этажа в осях В-Г - 6-9, 2-го этажа в осях Е - 3 -5, В-Г - 6. План расположения Вентиль защиты сауны сухого жара. Схема автоматизации. Схемы принципиальная, электрическая, соединений внешних проводок. Фрагмент 1 этажа в осях А-В - 5-8. План расположения Содержание, воздуховод из асбестоцементных листов. Общий вид, узлы Коробка 1500х800х1400 (h) Диффузор Конструкция изоляции воздуховодов Коробка 1250х800х1000 (h) Коробка 1250х600х1000 (h) Коробка 500х1000х1000 (h) Коробка 500х1000х800 (h) | Разработан: | ЦНИИЭП им. Б.С. Мезенцева Госгражданстроя
| Утверждён: | 30.11.1990 Госкомспорт СССР (USSR Goskomsport 432)
| Расположен в: |
|
                                                                                   
|