| ||||||||||||||||||||||||||||
Скачать Серия ИИ-04-6 Выпуск 7. Диафрагмы жесткости для зданий с высотами этажей 3,6 м; 4,2 м; 4,8 м и 6,0 м. Рабочие чертежиДата актуализации: 10.08.2017
|
| Обозначение: | Серия ИИ-04-6 |
| Обозначение англ: | Series ИИ-04-6 |
| Статус: | не действует |
| Название рус.: | Выпуск 7. Диафрагмы жесткости для зданий с высотами этажей 3,6 м; 4,2 м; 4,8 м и 6,0 м. Рабочие чертежи |
| Дата добавления в базу: | 01.09.2013 |
| Дата актуализации: | 05.05.2017 |
| Дата окончания срока действия: | 01.04.1982 |
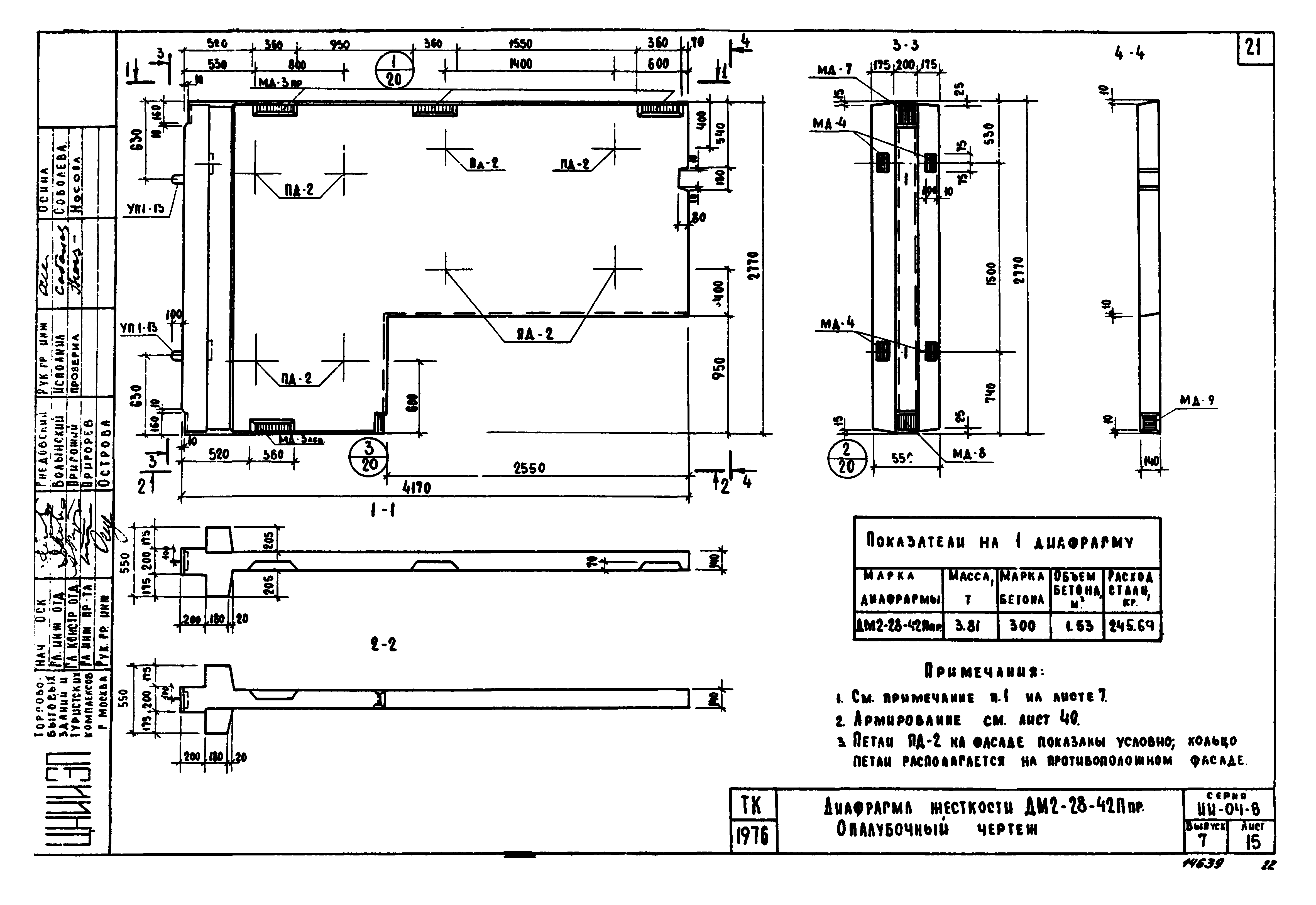
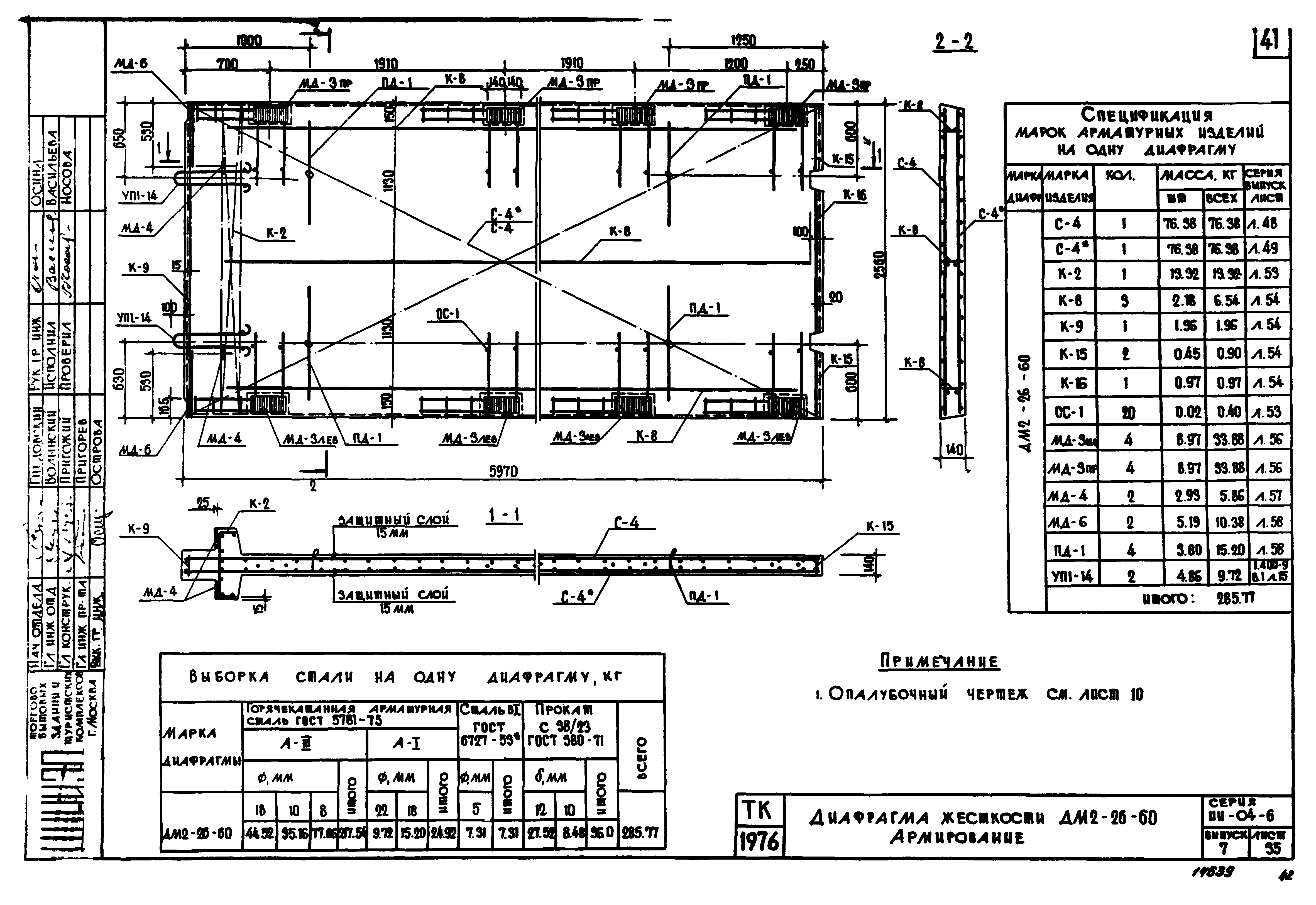
| Оглавление: | Содержание Пояснительная записка Номенклатура Диафрагмы жесткости. Опалубочные чертежи Опалубочные чертежи. Узлы 1, 2, 3 Диафрагмы жесткости. Армирование Диафрагмы жесткости. Спецификации марок арматурных изделий. Выборка стали Детали "А", "Б" и "В" Сетки С-1, С-2, С-3, С-4, С-5, С-6, С-7, С-8 Сетки С-1*, С-2*, С-3*, С-4*, С-5*, С-6*, С-7*, С-8* Сетки С-9лев, С-10лев, С-11лев, С-12лев, С-9пр, С-10пр, С-11пр, С-12пр Сетки С-9*лев, С-10*лев, С-11*лев, С-12*лев Сетки С-9*пр, С-10*пр, С-11*пр, С-12*пр Каркасы К-1, К-2, К-3, К-4, ОС-1 Каркасы К-5 - К-10, К-14 - К-17. Отдельный стержень ОС-8 Каркасы К-11, К-12, К-13. Отдельные стержни ОС-2 - ОС-7. Петля ПД-2 Закладные детали МД-3пр, МД-3лев Закладные детали МД-4, МД-5 Закладная деталь МД-6. Петля ПД-1 Закладные детали МД-7, МД-8, МД-9 Закладные детали МД-10, МД-11 |
| Разработан: | НИИЖБ Госстроя СССР ЦНИИЭП торгово-бытовых зданий и туристских комплексов |
| Утверждён: | 31.01.1977 Государственный комитет по гражданскому строительству и архитектуре при Госстрое СССР (19) |
| Расположен в: | |
| Чем заменён: |



































































