Скачать Серия 1.132-1 Выпуск 1-10. Панели группы НР5 двухшаговые толщиной 300, 350 и 400 ммДата актуализации: 10.08.2017 Серия 1.132-1
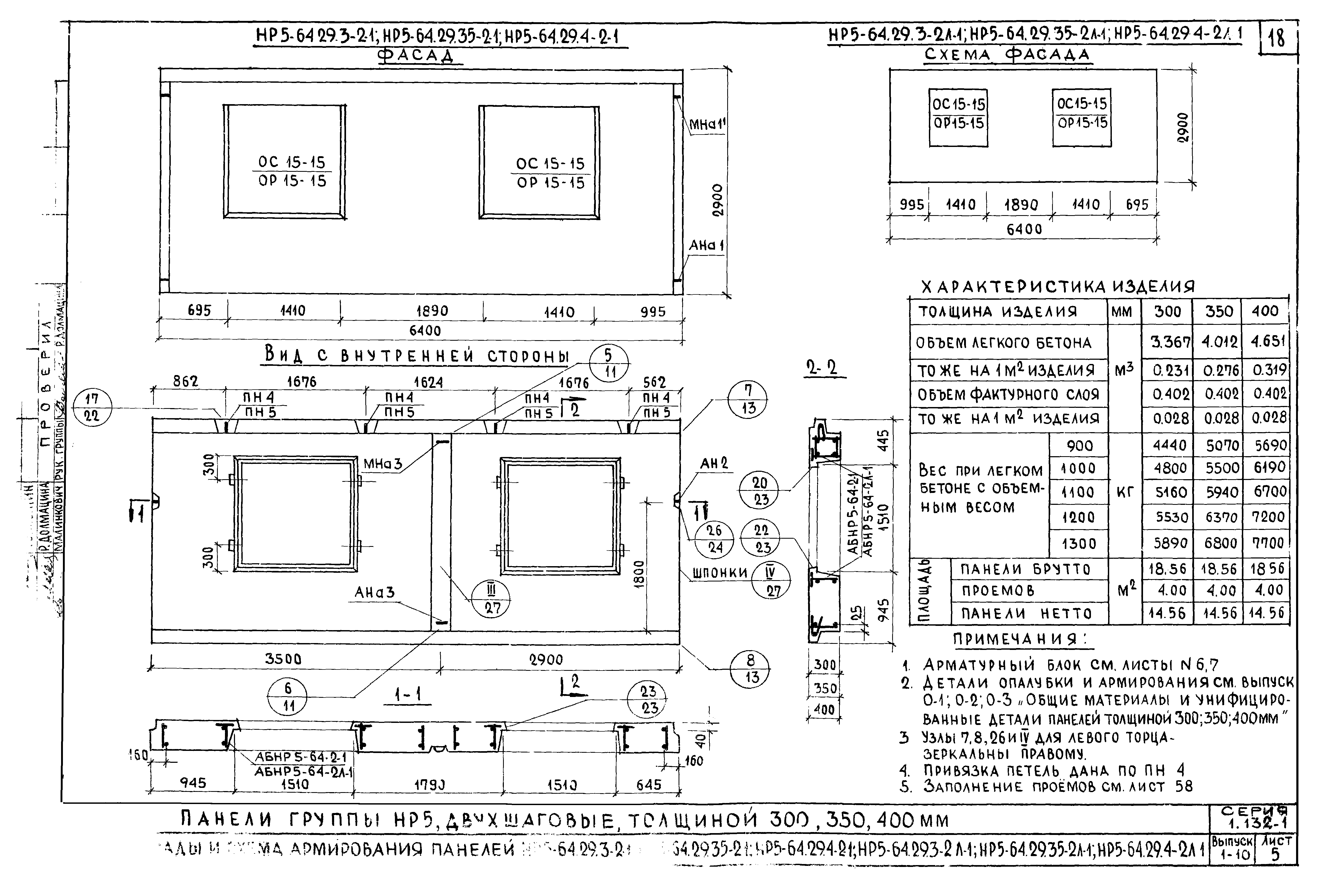
Выпуск 1-10. Панели группы НР5 двухшаговые толщиной 300, 350 и 400 ммОбозначение: | Серия 1.132-1 | Обозначение англ: | Series 1.132-1 | Статус: | заменен | Название рус.: | Выпуск 1-10. Панели группы НР5 двухшаговые толщиной 300, 350 и 400 мм | Дата добавления в базу: | 01.09.2013 | Дата актуализации: | 05.05.2017 | Дата введения: | 01.10.1983 | Область применения: | В выпуске 1-10 представлены рабочие чертежи наружных стеновых панелей группы НР5 двухшаговые, толщиной 300, 350 и 400 мм | Разработан: | ЦНИИСК им. В.А. Кучеренко ЦНИИЭП жилища
| Утверждён: | 26.10.1971 Государственный комитет по гражданскому строительству и архитектуре при Госстрое СССР (234)
| Расположен в: |
| Чем заменён: | | Нормативные ссылки: | |
                                                                       
|