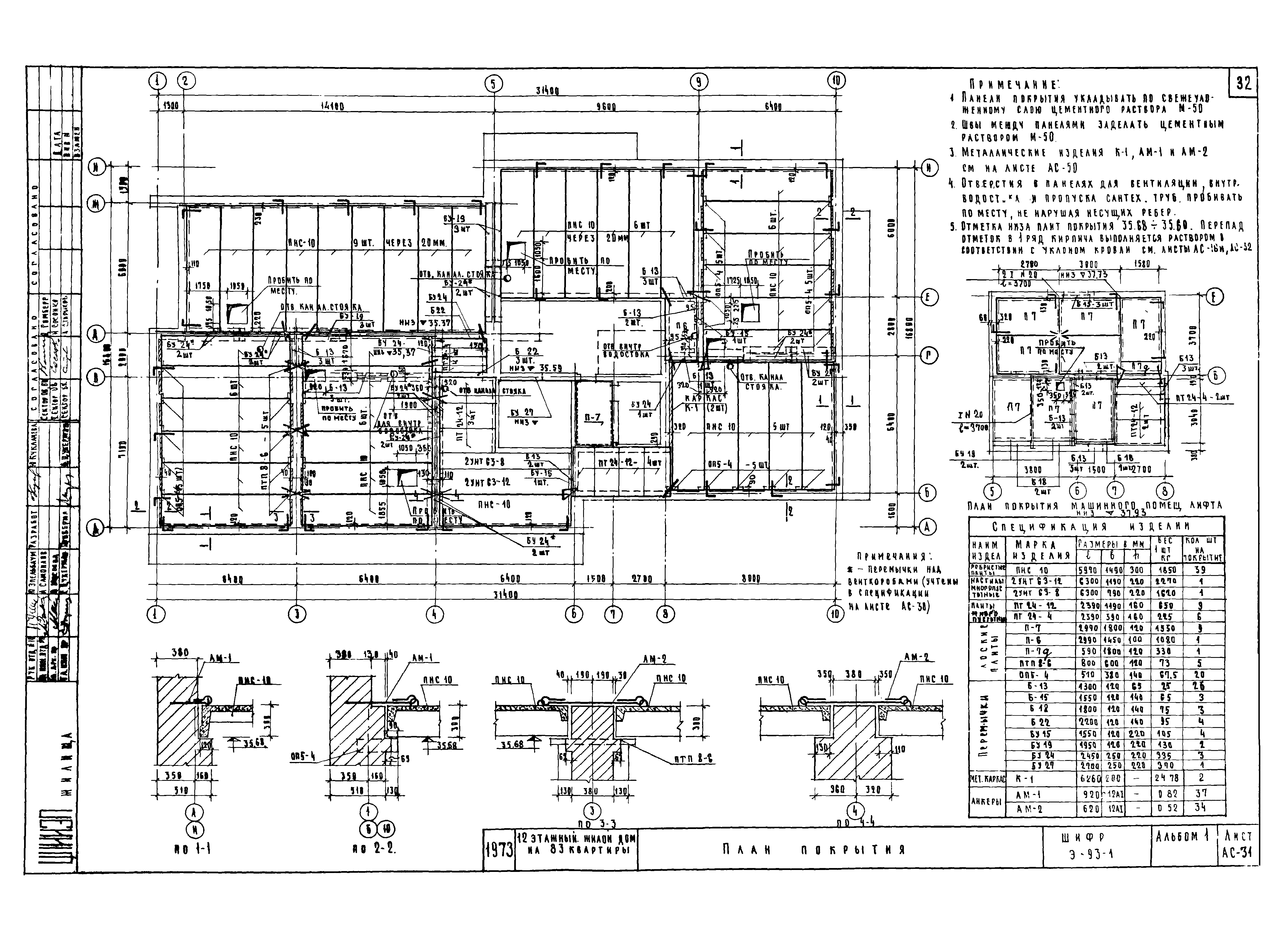
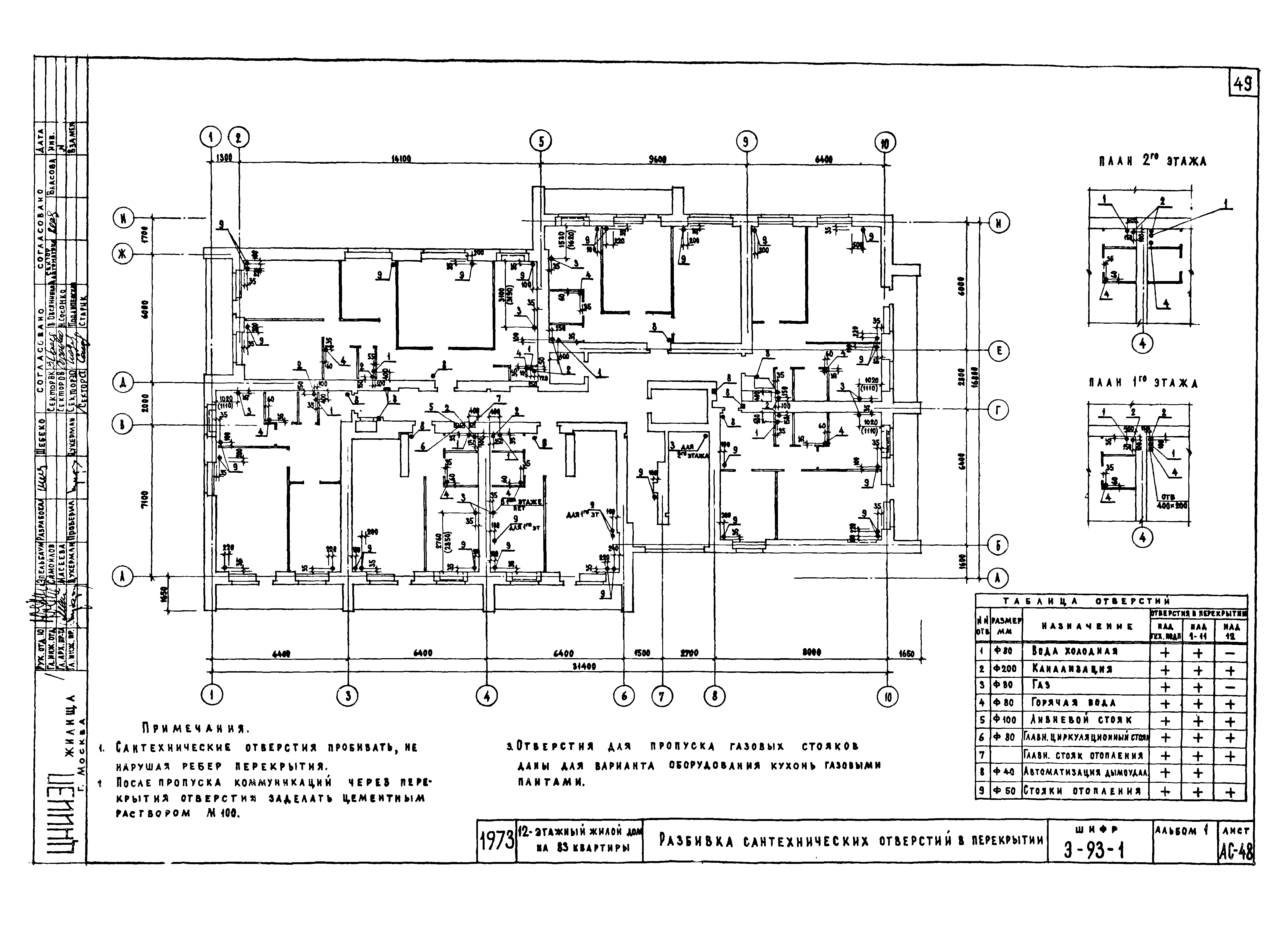
Скачать Шифр Э-93-1 Альбом I. Архитектурно-строительные чертежи (выше отм. 0.000)Дата актуализации: 10.08.2017 Шифр Э-93-1
Альбом I. Архитектурно-строительные чертежи (выше отм. 0.000)Обозначение: | Шифр Э-93-1 | Обозначение англ: | Э-93-1 | Статус: | не действует | Название рус.: | Альбом I. Архитектурно-строительные чертежи (выше отм. 0.000) | Дата добавления в базу: | 01.09.2013 | Дата актуализации: | 05.05.2017 | Разработан: | ЦНИИЭП жилища
| Утверждён: | 01.01.1973 Государственный комитет по гражданскому строительству и архитектуре при Госстрое СССР
| Расположен в: |
|
                                                                   
|