Информационная система
«Ёшкин Кот»

Скачать базу одним архивом
Скачать обновления
История создания базы
Карта сайта

Скачать Типовой проект 282-1-163.84 Альбом I. Архитектурно-строительные решения. Технология и механизация. Витражи

Дата актуализации: 10.08.2017

Типовой проект 282-1-163.84

Альбом I. Архитектурно-строительные решения. Технология и механизация. Витражи

Обозначение: Типовой проект 282-1-163.84
Обозначение англ: 282-1-163.84
Статус:не определен законодательством
Название рус.:Альбом I. Архитектурно-строительные решения. Технология и механизация. Витражи
Дата добавления в базу:01.09.2013
Дата актуализации:05.05.2017
Дата введения:11.04.1985
Оглавление:Чертежи основного комплекта марки АС1
   Общий данные
   План 1 этажа между осями 1 - 4
   План 1 этажа между осями 4 - 7
   План 1 этажа между осями 7 - 11
   План 2 этажа между осями 1 - 4
   План 2 этажа между осями 4 - 7
   План 2 этажа между осями 7 - 11
   План техподполья
   Фасад 1 - 11
   Фасад 11 - 9, 9 - 3, 3- 1
   Фасад А - Г и Г - А
   План крыши
   Разрезы 1-1, 2-2
   Элементы входов
   Заполнение ж/б рам гипсокартонными листами
   Звено асбестоцементного воздуховода
   Развертка стен отделения связи и сберкассы
   Развертки стен салона КПП и торгового зала аптеки
   Схема нагрузок на элементы фундаментов
   Схема расположения элементов фундаментов в осях 1 - 7, А - Г
   Схема расположения элементов фундаментов в осях А - Г, 7 - 11
   Сечения к схемам расположения элементов фундаментов. Спецификация
   Схемы расположения элементов стен техподполья и элементов парапета
   Схемы расположения элементов наружных и внутренних стен 1 и 2 этажей
   Спецификация к схемам расположения стеновых панелей при толщине наружных стен 350 мм
   Спецификация к схемам расположения стеновых панелей при толщине наружных стен 400 мм
   Схема нагрузок на элементы перекрытий и покрытия
   Схема расположения элементов перекрытия на отм. 0.000
   Схема расположения элементов перекрытия на отм. 3.300 между осями А - Г, 1 - 7
   Схема расположения элементов перекрытия на отм. 3.300 между осями А - Г, 7 - 11
   Схема расположения элементов покрытия между осями А - Г, 1 - 7
   Схема расположения элементов покрытия между осями А - Г, 7 - 11
   Монтажные схемы элементов лестниц
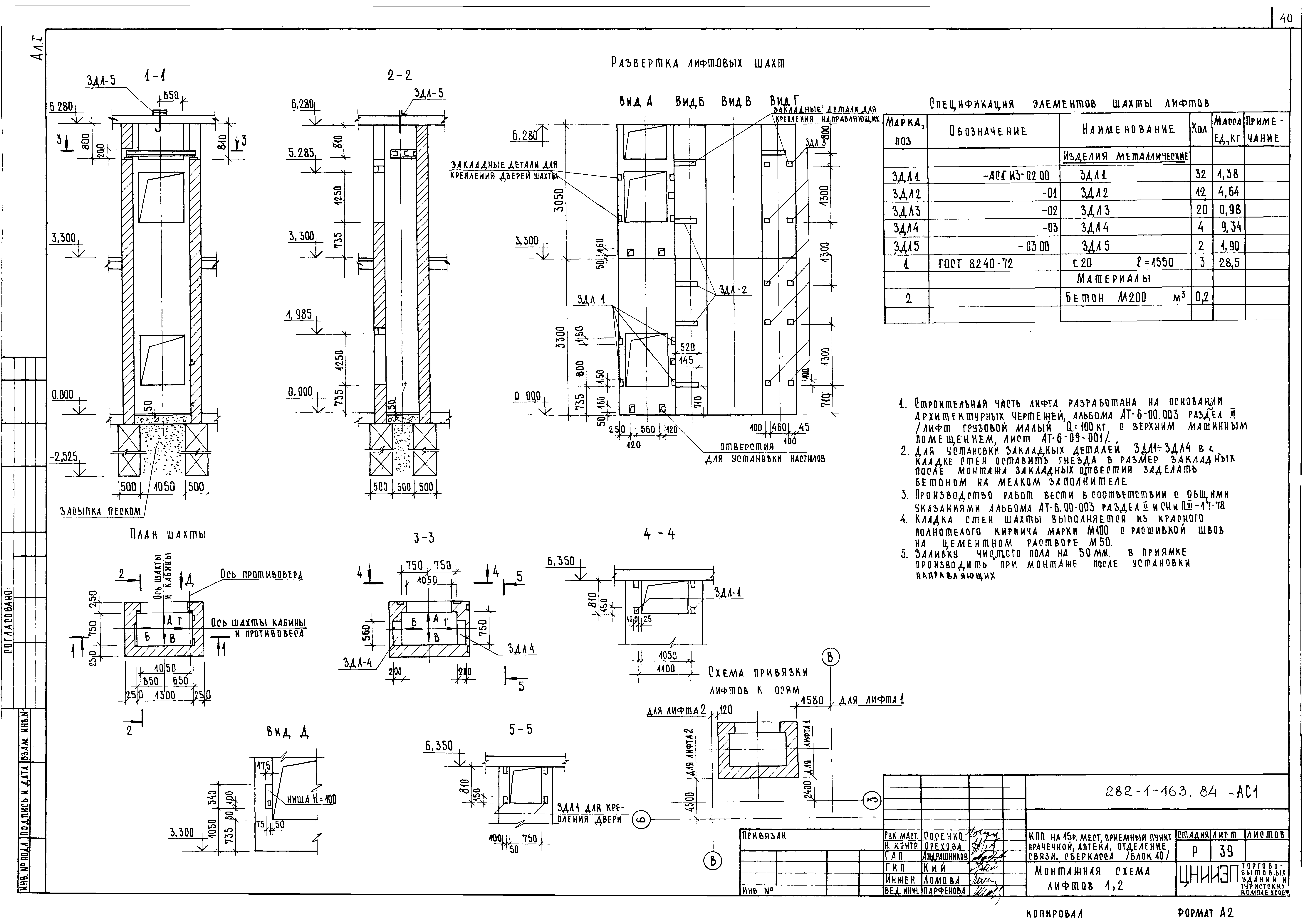
   Монтажная схема лифтов 1, 2
   Чертеж на заказ лифтов 1, 2
   Кладовая ценностей (опалубка)
   Кладовая ценностей (армирование)
   Монтажные схемы расположения закладных деталей для крепления витражей
Чертежи основного комплекта марки ТХМ
   Общий данные
   План 1 этажа между осями 7 - 11
   План 2 этажа между осями 7 - 11
   План 1 этажа между осями 1 - 4
   План 2 этажа между осями 1 - 4
   План 1 этажа между осями 4 - 7
   План 2 этажа между осями 4 - 7
Чертежи основного комплекта марки АС2
   Общий данные
   Спецификация элементов оконных блоков и тамбуров. Вентиляционные решетки
   Схема расположения элементов витража и тамбуров по оси А. Узел 14
   Схема расположения оконных блоков по осям А, 9 (II этаж), тамбуров по оси В и дверных блоков
   Узлы , 2, 3, 13
   Узлы 4, 5, 6, 7, 8, 9, 10, 11, 12
Разработан: ЦНИИЭП торгово-бытовых зданий и туристских комплексов
Утверждён:30.01.1981 Госгражданстрой (Gosgrazhdanstroy 38)
Расположен в:Техническая документация Строительство Справочные документы Типовые строительные конструкции, изделия и узлы Общероссийский строительный каталог Общественные здания в городах и поселках городского типа Предприятия бытового обслуживания населения и коммунального хозяйства Дома быта, комбинаты бытового обслуживания, комплексные приемные пункты, ателье
Типовой проект 282-1-163.84Типовой проект 282-1-163.84Типовой проект 282-1-163.84Типовой проект 282-1-163.84Типовой проект 282-1-163.84Типовой проект 282-1-163.84Типовой проект 282-1-163.84Типовой проект 282-1-163.84Типовой проект 282-1-163.84Типовой проект 282-1-163.84Типовой проект 282-1-163.84Типовой проект 282-1-163.84Типовой проект 282-1-163.84Типовой проект 282-1-163.84Типовой проект 282-1-163.84Типовой проект 282-1-163.84Типовой проект 282-1-163.84Типовой проект 282-1-163.84Типовой проект 282-1-163.84Типовой проект 282-1-163.84Типовой проект 282-1-163.84Типовой проект 282-1-163.84Типовой проект 282-1-163.84Типовой проект 282-1-163.84Типовой проект 282-1-163.84Типовой проект 282-1-163.84Типовой проект 282-1-163.84Типовой проект 282-1-163.84Типовой проект 282-1-163.84Типовой проект 282-1-163.84Типовой проект 282-1-163.84Типовой проект 282-1-163.84Типовой проект 282-1-163.84Типовой проект 282-1-163.84Типовой проект 282-1-163.84Типовой проект 282-1-163.84Типовой проект 282-1-163.84Типовой проект 282-1-163.84Типовой проект 282-1-163.84Типовой проект 282-1-163.84Типовой проект 282-1-163.84Типовой проект 282-1-163.84Типовой проект 282-1-163.84Типовой проект 282-1-163.84Типовой проект 282-1-163.84Типовой проект 282-1-163.84Типовой проект 282-1-163.84Типовой проект 282-1-163.84Типовой проект 282-1-163.84Типовой проект 282-1-163.84Типовой проект 282-1-163.84Типовой проект 282-1-163.84Типовой проект 282-1-163.84Типовой проект 282-1-163.84Типовой проект 282-1-163.84Типовой проект 282-1-163.84Типовой проект 282-1-163.84Типовой проект 282-1-163.84Типовой проект 282-1-163.84

© 2013 Ёшкин Кот :-) Карта сайта