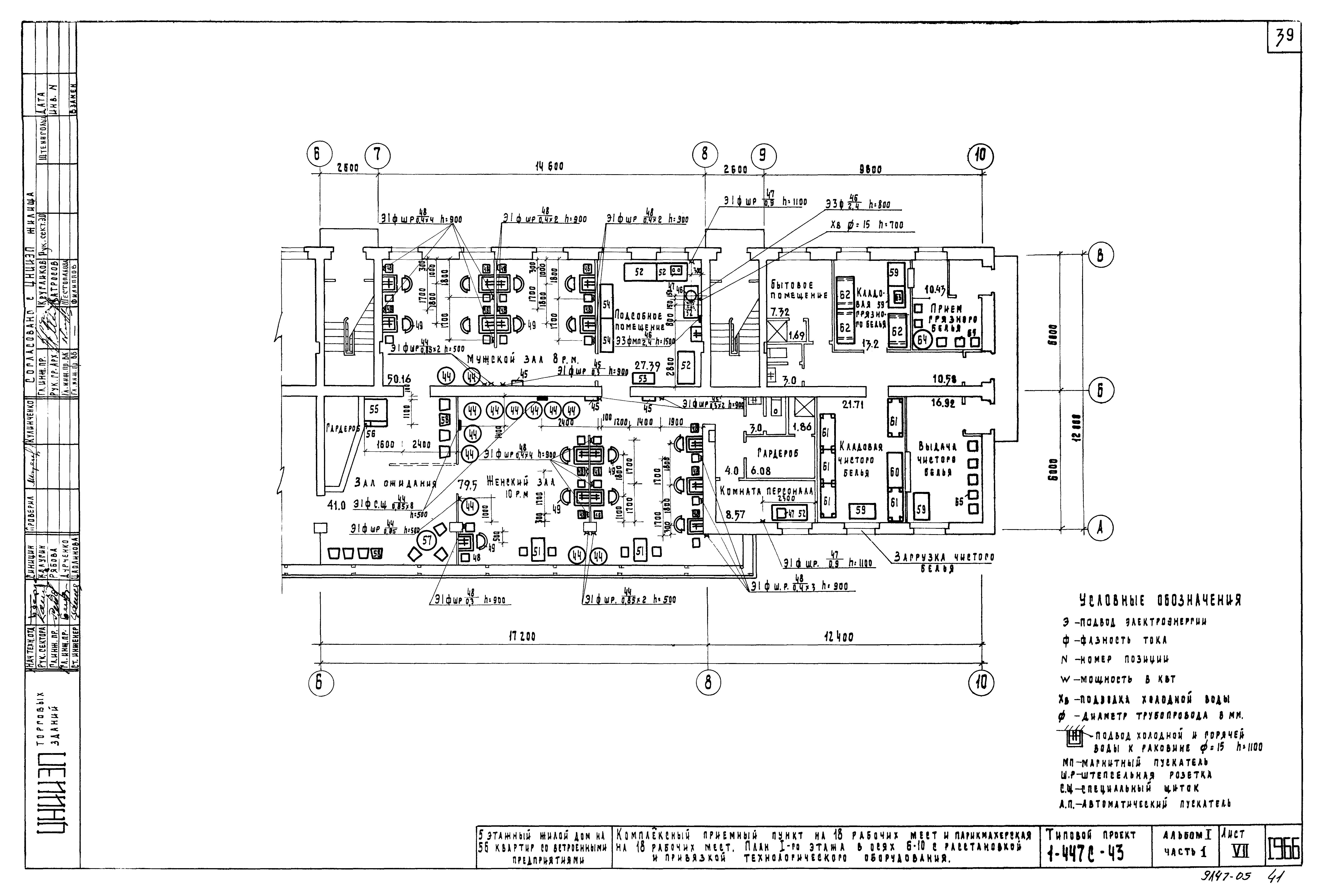
Скачать Типовой проект 1-447с-43 Альбом I. Часть 1. Чертежи здания выше отм. 2.800. Архитектурно-строительные чертежиДата актуализации: 10.08.2017 Типовой проект 1-447с-43
Альбом I. Часть 1. Чертежи здания выше отм. 2.800. Архитектурно-строительные чертежиОбозначение: | Типовой проект 1-447с-43 | Обозначение англ: | 1-447с-43 | Статус: | не действует | Название рус.: | Альбом I. Часть 1. Чертежи здания выше отм. 2.800. Архитектурно-строительные чертежи | Дата добавления в базу: | 01.09.2013 | Дата актуализации: | 05.05.2017 | Разработан: | ЦНИИЭП торгово-бытовых зданий и туристских комплексов ЦНИИЭП жилища
| Утверждён: | 28.02.1967 ЦНИИЭП жилища (TsNIIEPzhilishcha 39)
| Расположен в: |
|
                                         
|