Скачать Серия ИИС24-2 Железобетонные плиты для перекрытий типа 2, с опиранием на ригели прямоугольного сечения (расчетная сейсмичность 9 баллов)Дата актуализации: 10.08.2017 Серия ИИС24-2
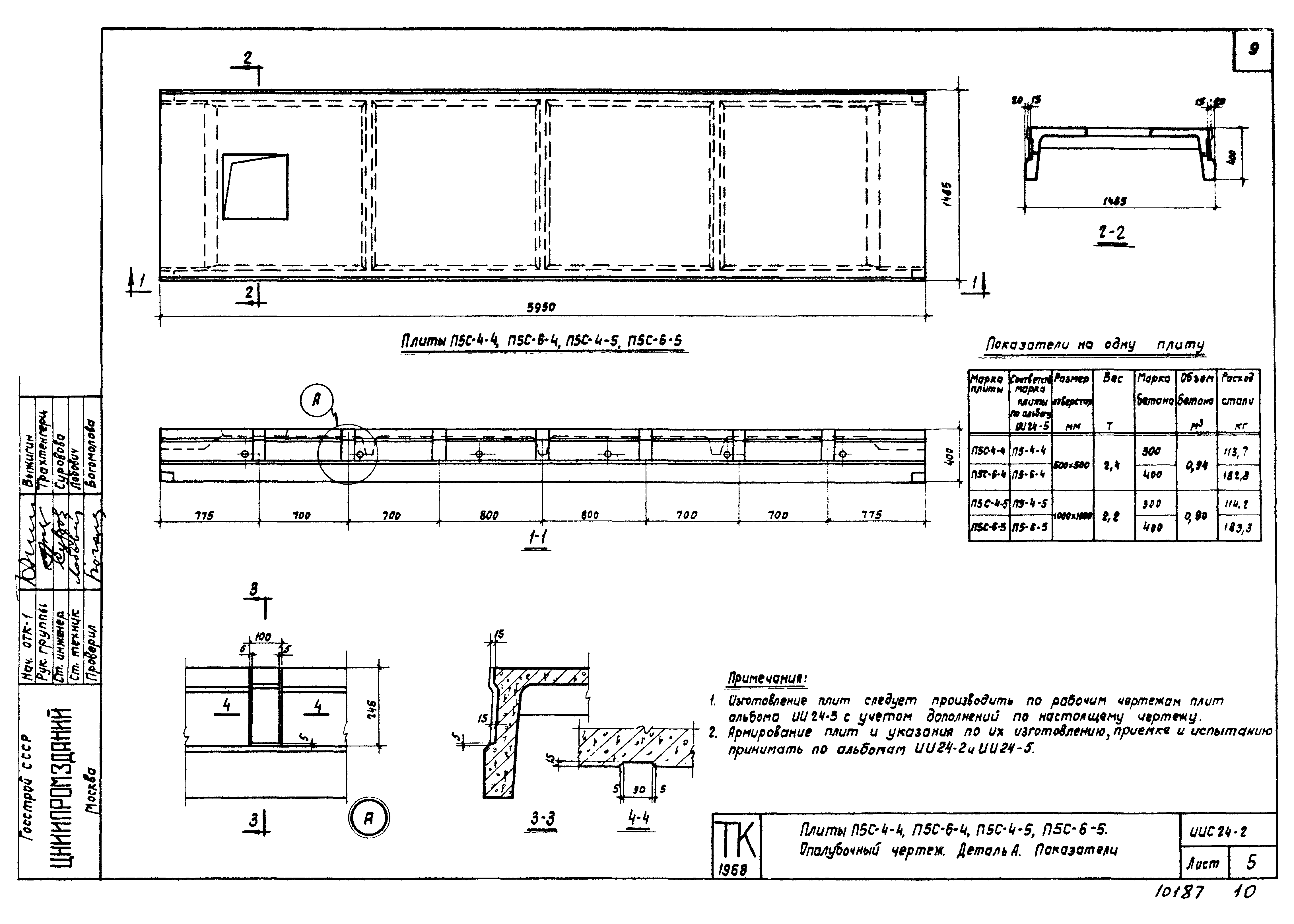
Железобетонные плиты для перекрытий типа 2, с опиранием на ригели прямоугольного сечения (расчетная сейсмичность 9 баллов)| Обозначение: | Серия ИИС24-2 | | Обозначение англ: | Series ИИС24-2 | | Статус: | не действует | | Название рус.: | Железобетонные плиты для перекрытий типа 2, с опиранием на ригели прямоугольного сечения (расчетная сейсмичность 9 баллов) | | Дата добавления в базу: | 01.09.2013 | | Дата актуализации: | 05.05.2017 | | Дата введения: | 01.10.1969 | | Дата окончания срока действия: | 01.05.1975 | | Разработан: | ЦНИИСК им. В.А. Кучеренко ЦНИИпромзданий НИИЖБ
| | Утверждён: | 30.06.1969 Госстрой СССР (Государственный комитет Совета Министров СССР по делам строительства) (USSR Gosstroy 77)
| | Расположен в: |
| | Чем заменён: | |
           
|