Скачать Типовой проект 282-3-41 Альбом V. Электроосвещение и электрооборудование. Устройства связи и сигнализацииДата актуализации: 10.08.2017 Типовой проект 282-3-41
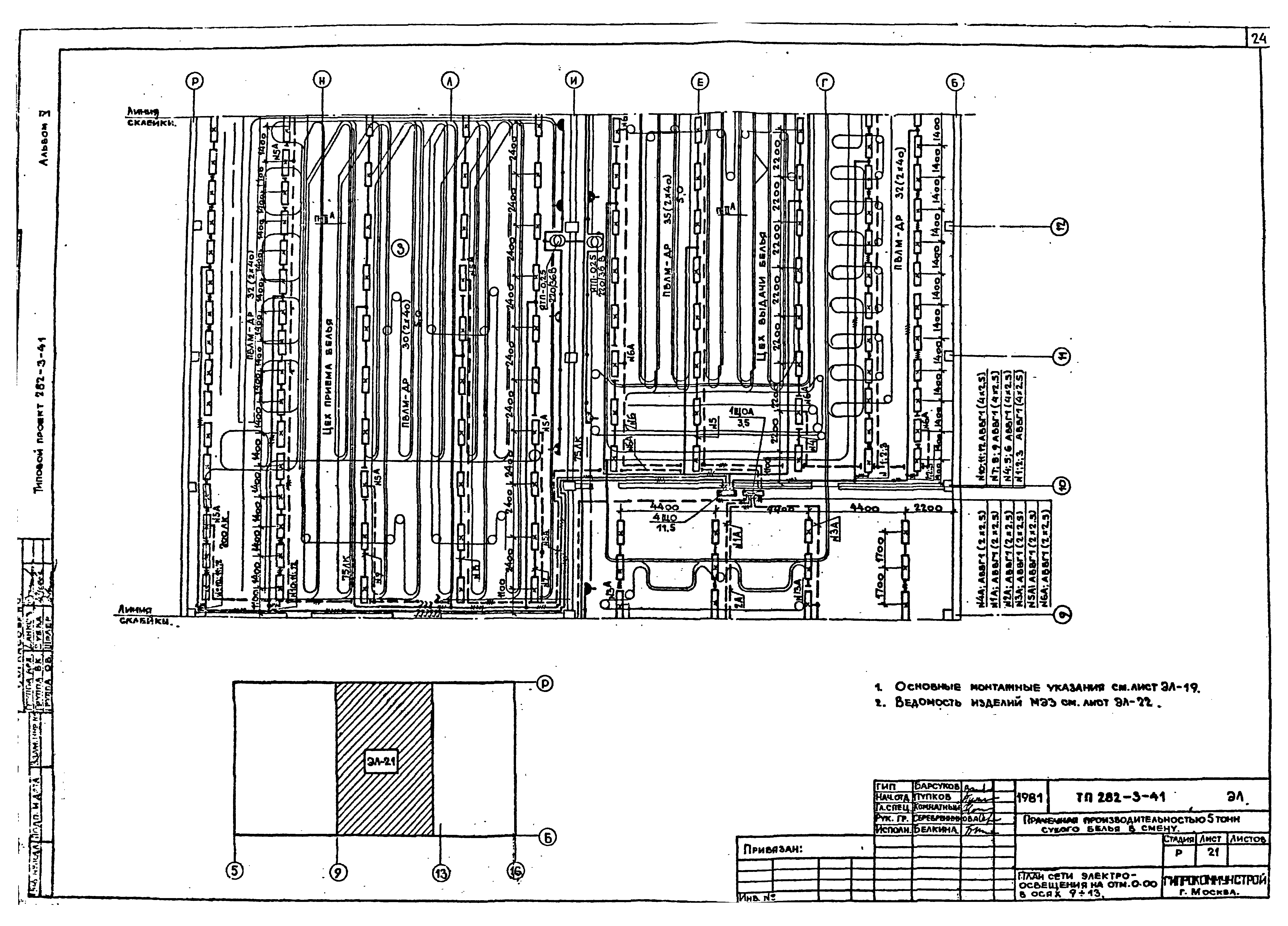
Альбом V. Электроосвещение и электрооборудование. Устройства связи и сигнализацииОбозначение: | Типовой проект 282-3-41 | Обозначение англ: | 282-3-41 | Статус: | действует | Название рус.: | Альбом V. Электроосвещение и электрооборудование. Устройства связи и сигнализации | Дата добавления в базу: | 01.09.2013 | Дата актуализации: | 05.05.2017 | Дата введения: | 29.03.1982 | Разработан: | Гипрокоммунстрой
| Утверждён: | 28.10.1980 Минжилкомхоз РСФСР (Russian Federation Minzhilkomkhoz 11-ТД)
| Расположен в: |
|
                                                   
|