Информационная система
«Ёшкин Кот»

Скачать базу одним архивом
Скачать обновления
История создания базы
Карта сайта

Скачать Пособие по проектированию интерьера детских яслей-садов

Дата актуализации: 10.08.2017

Пособие по проектированию интерьера детских яслей-садов

Статус:действует
Название рус.:Пособие по проектированию интерьера детских яслей-садов
Дата добавления в базу:01.09.2013
Дата актуализации:05.05.2017
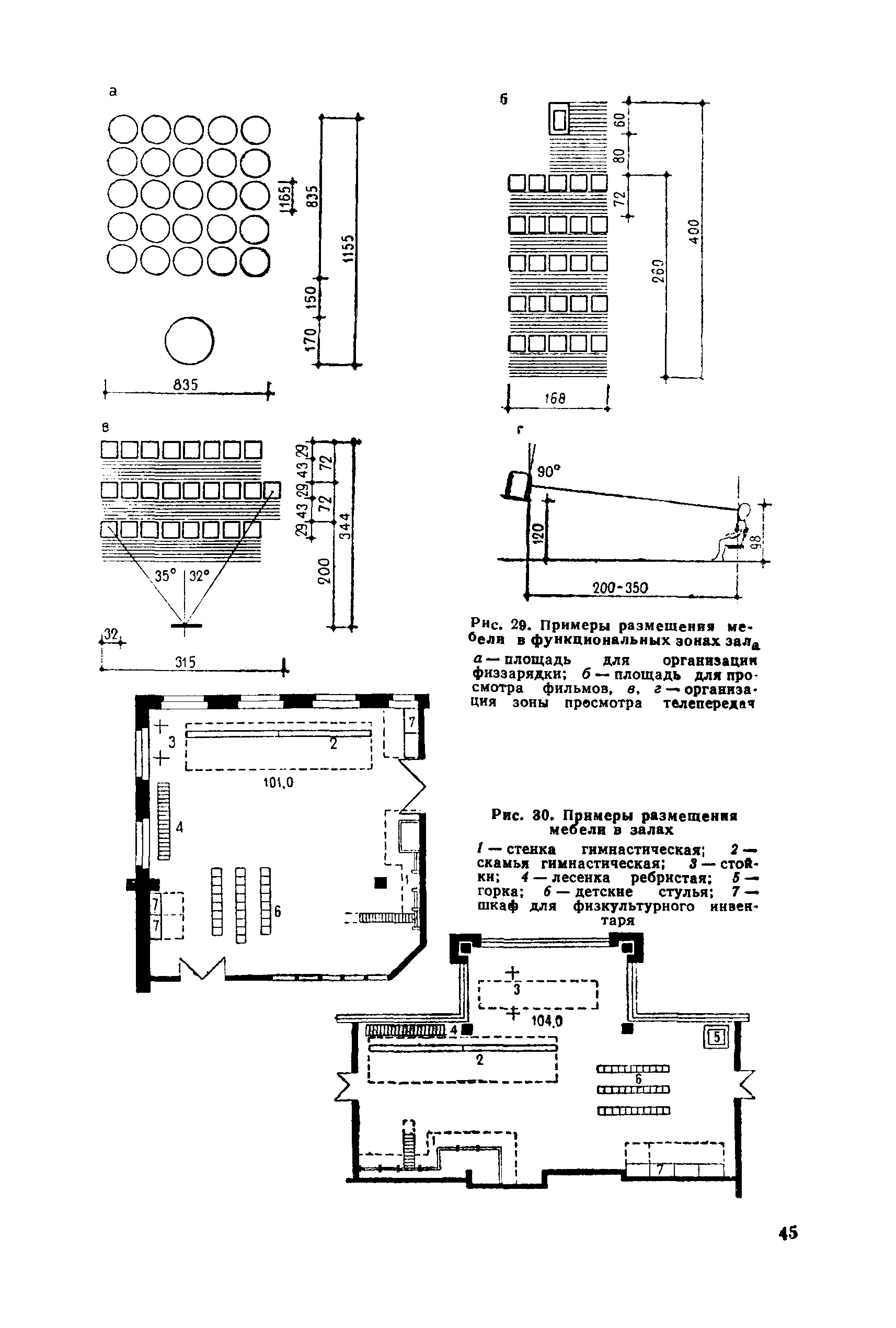
Область применения:В документе приведены принципы формирования интерьера основных помещений детских дошкольных учреждений (яслей-садов). Интерьер рассматривается с точки зрения архитектурно-планировочных особенностей оборудования, приемов искусственного освещения, цветового решения, использования типовых и декоративных элементов интерьера, отделочных материалов. Для специалистов, работающих в области проектирования, строительства и эксплуатации зданий яслей-садов.
Оглавление:Предисловие
Глава 1. Современные требования к комплексному решению интерьеров
   Современные типы зданий яслей-садов
   Особенности эксплуатации основных помещений дошкольных учреждений
   Общие принципы организации интерьера основных помещений
Глава 2. Формирование пространственной среды помещений различного назначения
   Принципы функционального зонирования в помещениях детских дошкольных учреждений
   Масштабность оборудования и предметов внутреннего убранства как художественное средство выразительности интерьера.
   Приемы трансформации помещений универсального назначения
Глава 3. Рекомендации по вопросам искусственного освещения и цветового решения интерьера
   Приемы искусственного освещения и осветительные приборы
   Цветовое решение основных помещений детских дошкольных учреждений
   Отделочные материалы
Глава 4. Декоративное оформление помещений
   Общие требования к проектированию и изготовлению типовых и декоративных элементов
   Требования к проектированию отдельных типовых и декоративных элементов интерьеров детских дошкольных учреждений.
Глава 5. Оборудование основных помещений детских яслей-садов
   Номенклатура мебельного оборудования
   Основные требования, предъявляемые к проектированию и изготовлению детской мебели
   Основные принципы проектирования мебели для детских дошкольных учреждений
Список литературы
Разработан: ЦНИИЭП учебных зданий Госгражданстроя при Госстрое СССР
Утверждён: ЦНИИЭП учебных зданий Госгражданстроя
Издан: Стройиздат (1982 г. )
Расположен в:Техническая документация Экология ГРАЖДАНСКОЕ СТРОИТЕЛЬСТВО Гражданское строительство в целом Строительство Справочные документы Директивные письма, положения, рекомендации и др.
Нормативные ссылки:

© 2013 Ёшкин Кот :-) Карта сайта