Скачать Альбом А11-2011 Прокладка кабелей напряжением до 35 кВ в траншеях с применением двустенных гофрированных труб ЗАО ДКСДата актуализации: 10.08.2017 Альбом А11-2011
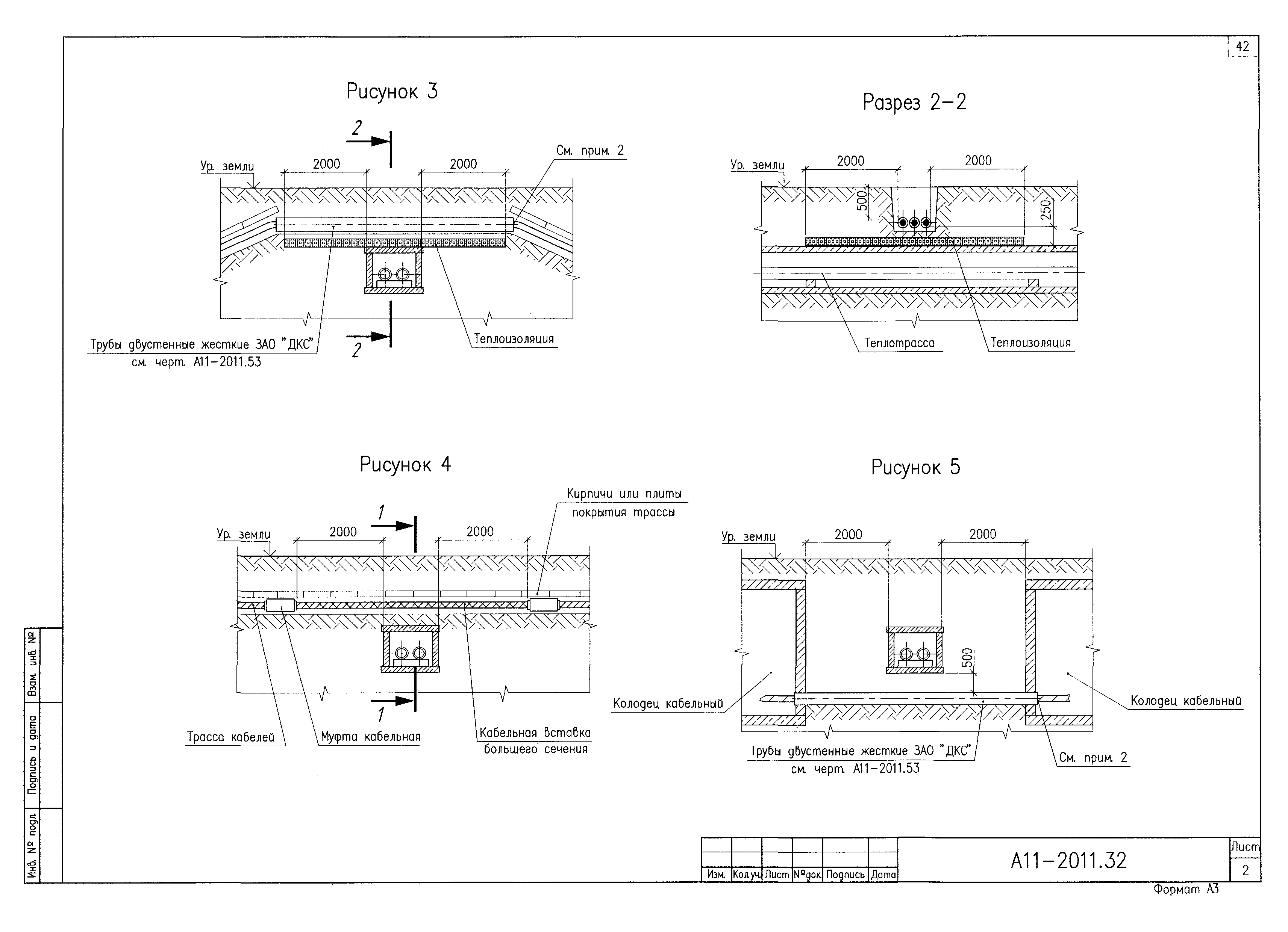
Прокладка кабелей напряжением до 35 кВ в траншеях с применением двустенных гофрированных труб ЗАО "ДКС"Обозначение: | Альбом А11-2011 | Обозначение англ: | А11-2011 | Статус: | cправочные материалы, мп, тпр | Название рус.: | Прокладка кабелей напряжением до 35 кВ в траншеях с применением двустенных гофрированных труб ЗАО "ДКС" | Дата добавления в базу: | 01.09.2013 | Дата актуализации: | 05.05.2017 | Дата введения: | 01.01.2011 | Разработан: | Тяжпромэлектропроект ЗАО Диэлектрические кабельные системы
| Утверждён: | 01.01.2011 Тяжпромэлектропроект
| Расположен в: |
|
                                                                     
|