| ||||||||||||||||||||||||||||
Скачать Серия 1.220.1-2 Выпуск 11. Монтажные узлы и детали. Рабочие чертежиДата актуализации: 10.08.2017
|
| Обозначение: | Серия 1.220.1-2 |
| Обозначение англ: | Series 1.220.1-2 |
| Статус: | заменен |
| Название рус.: | Выпуск 11. Монтажные узлы и детали. Рабочие чертежи |
| Дата добавления в базу: | 01.09.2013 |
| Дата актуализации: | 05.05.2017 |
| Дата введения: | 01.04.1984 |
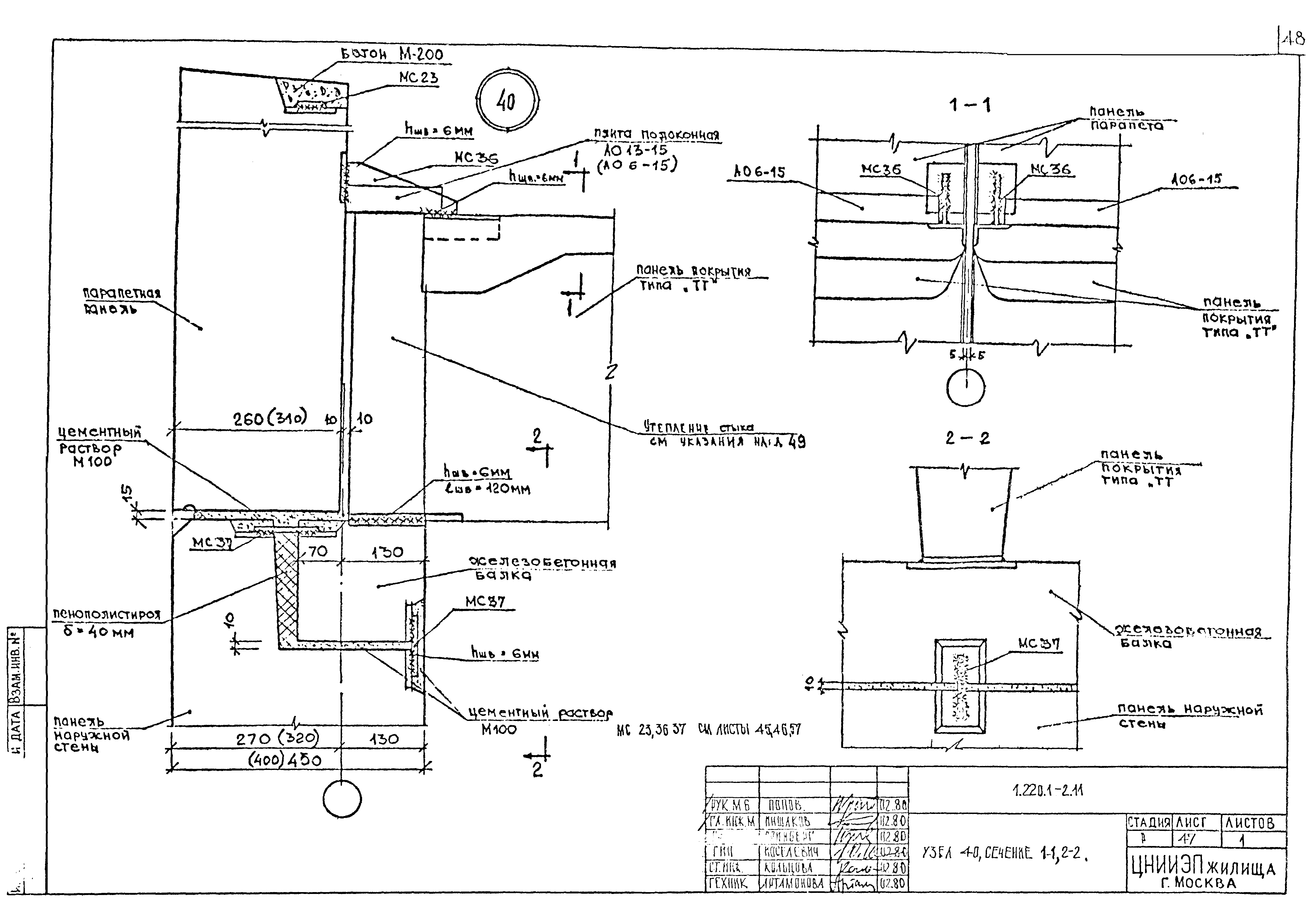
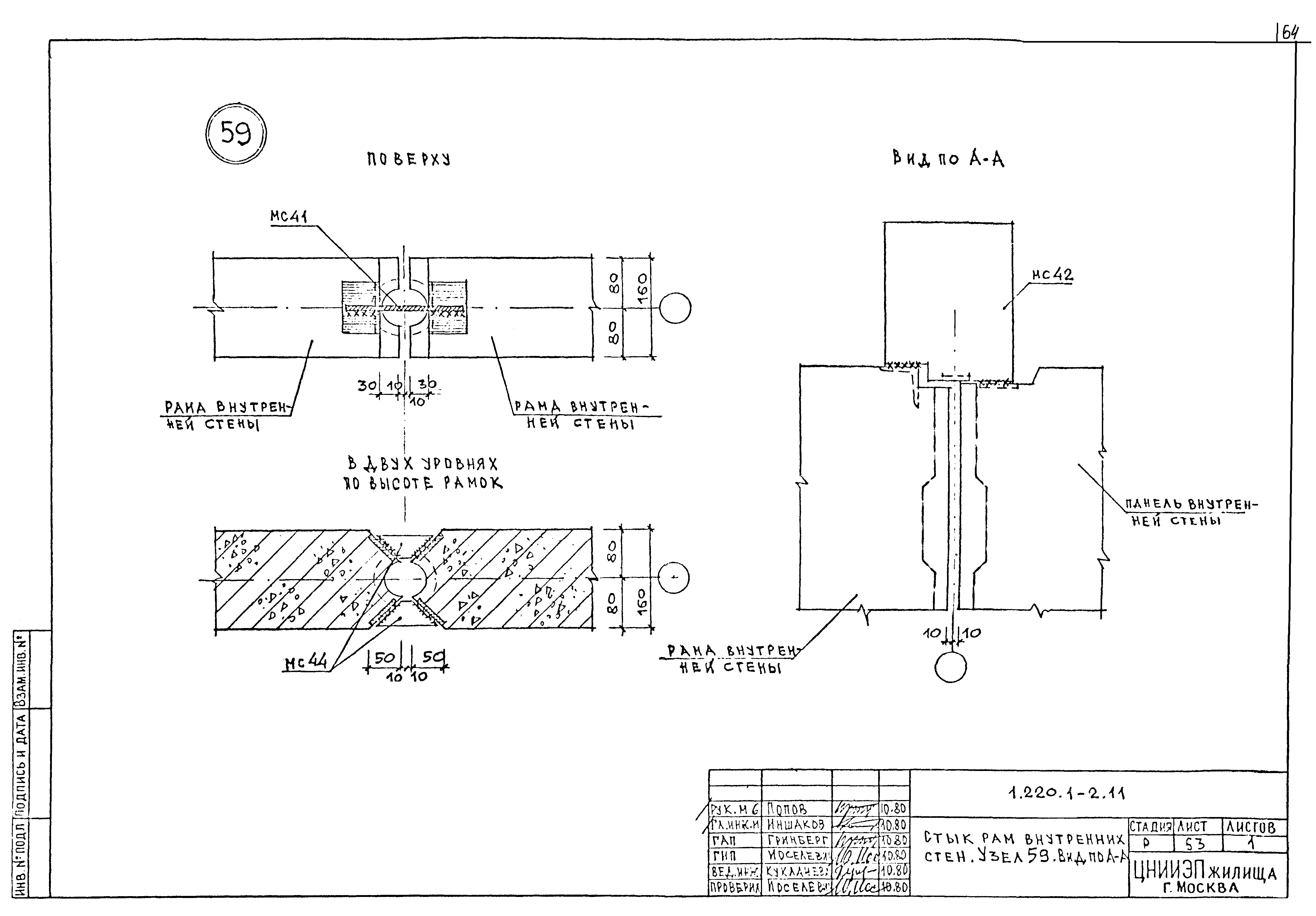
| Оглавление: | Содержание Пояснительная записка Указания по герметизации стыков Герметизация стыков наружных стен цоколя. Узлы 1ц, 2ц Сопряжение панелей наружных и внутренних цокольных стен и панелей перекрытия. Узлы 3ц, 4ц Угловой стык цокольных панелей наружных стен. Узел 5ц Сечение 1-1 к узлу 5ц Рядовой стык цокольных панелей наружных стен. Узел 6ц Рядовой стык цокольных панелей наружных и внутренних стен. Узел 7ц Сечение 1-1 к узлу 7ц Стык цокольных панелей наружных и внутренних стен у внутреннего угла. Узел 8ц Стык цокольных панелей наружных и внутренних стен у внутреннего угла. Узел 9ц Герметизация стыков панелей наружных стен. Узлы 1, 2 Сопряжение панелей наружных и внутренних стен и панелей перекрытий. Узлы 3, 4 Угловой стык панелей наружных стен. Узел 5 Стыки панелей наружных стен с перекрытиями. Узлы 6, 7 Сечение 1-1 к узлам 5, 6, 7 Рядовой стык панелей наружных стен. Узел 8 Сечение 1-1 к узлам 8, 11 Рядовой стык панелей наружных и внутренних стен. Узел 9 Стыки панелей наружных и внутренних стен с перекрытиями. Узлы 10, 11, 14 Сечение 1-1 к узлам 9, 10 Стыки панелей наружных и внутренних стен с ребристыми панелями перекрытий. Узлы 12, 13 Стык панелей внутренних стен с панелями перекрытий. Узел 15 Стык панелей наружных и внутренних стен у внутреннего угла. Узел 16 Стык панелей наружных и внутренних стен у внутреннего угла. Узел 17 Стыки панелей наружных и внутренних стен с перекрытиями у внутреннего угла. Узлы 18, 19 Стыки панелей наружных стен с ребристыми панелями перекрытий у внутреннего угла. Узлы 20, 21 Стыки панелей внутренних стен. Узлы 22, 23, 24 Стыки панелей внутренних стен. Узел 25. Сечение 1-1 Стыки панелей наружных и внутренних стен с перекрытиями и лестничными маршами. Узлы 26, 30 Стыки панелей наружных и внутренних стен с перекрытиями и лестничными маршами. Узел 27 Стык панелей внутренних стен с перекрытиями. Узел 28 Стык панелей внутренних стен с перекрытиями. Узлы 29, 31 Стыки панелей внутренних стен с перекрытиями и лестничным маршем. Узел 32. Сечение 1-1 Стыки вентблоков. Узлы 33, 34 Стыки лестничных маршей. Узлы 35, 36 Стыки парапетных панелей. Узлы 37, 38 Стыки парапетных панелей. Узел 39. Сечение 1-1 Стыки панельных конструкций с каркасными. Узел 1к Стыки панельных конструкций с каркасными. Узлы 2к, 3к Стыки панелей наружных и внутренних стен лестничных клеток Монтажные соединительные элементы МС1 - МС18 Монтажные соединительные элементы МС19 - МС29 Узел 40, сечение 1-1, 2-2 Узлы 41, 53 Сечение 7-7. Указания по утеплению стыков Узлы 42, 43, сечение 3-3 Узел 44, сечение 4-4 Узел 45, сечение 5-5 Узлы 46, 48 Узел 47, сечение 6-6 Узлы 49, 50 Узлы 51, 52 Монтажные соединительные элементы МС30 - Мс44 Узлы 53, 54 Стык панелей наружных стен и рамы внутренней стены. Узел 55 и сечение 1-1 Стыки панелей внутренних стен и рам внутренних стен. Узлы 56, 57 Стык панели внутренней стены и рам внутренних стен. Узел 58 Сечение 1-1 к узлу 56. Сечение 2-2 к узлу 58 Стык рам внутренних стен. Узел 59. Вид по А-А Устройство связей для предотвращения цепного обрушения конструкций. Узел 60 Устройство связей для предотвращения цепного обрушения конструкций. Узлы 61, 62 Устройство связей для предотвращения цепного обрушения конструкций. Узлы 63, 64 Устройство связей для предотвращения цепного обрушения конструкций. Узел 65 |
| Разработан: | ЦНИИЭП жилища |
| Утверждён: | 23.12.1980 Госгражданстрой (Gosgrazhdanstroy 363) |
| Расположен в: | |
| Чем заменён: |





































































