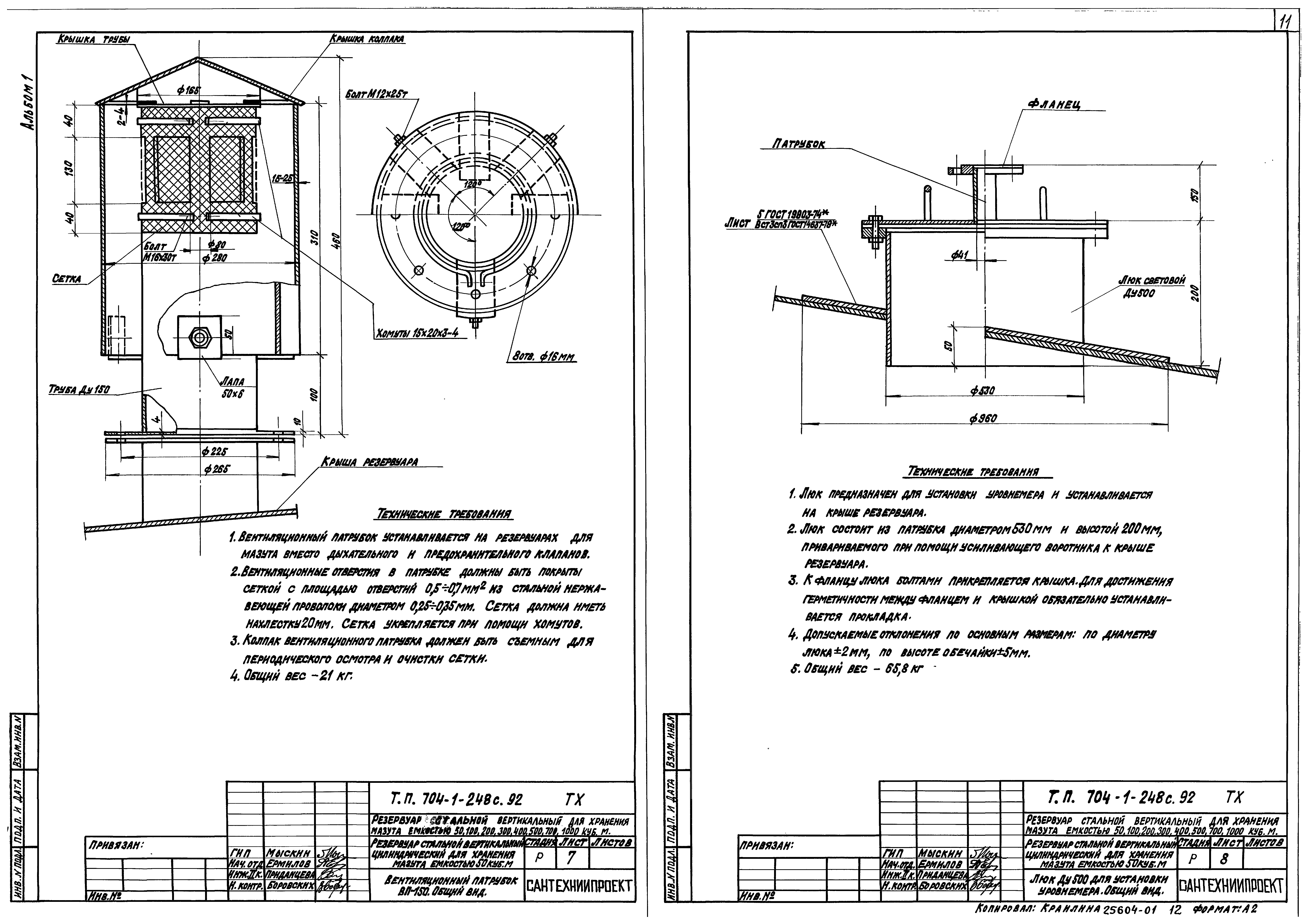
Скачать Типовой проект 704-1-248с.92 Альбом 1. Пояснительная записка. Оборудование технологическое, электротехническое, автоматикиДата актуализации: 10.08.2017 Типовой проект 704-1-248с.92
Альбом 1. Пояснительная записка. Оборудование технологическое, электротехническое, автоматикиОбозначение: | Типовой проект 704-1-248с.92 | Обозначение англ: | 704-1-248с.92 | Статус: | не определен законодательством | Название рус.: | Альбом 1. Пояснительная записка. Оборудование технологическое, электротехническое, автоматики | Дата добавления в базу: | 01.09.2013 | Дата актуализации: | 05.05.2017 | Дата введения: | 13.10.1992 | Разработан: | Сантехниипроект Госстроя России ВНИПИТеплопроект Фундаментпроект Гипронефтеспецмонтаж Минмонтажспецстроя СССР (Giproneftespetsmontazh, Minmontazhspetsstroy (USSR) ) ЦНИИпроектстальконструкция Госстроя
| Утверждён: | 13.10.1992 Сантехниипроект (35)
| Расположен в: |
|
            
|