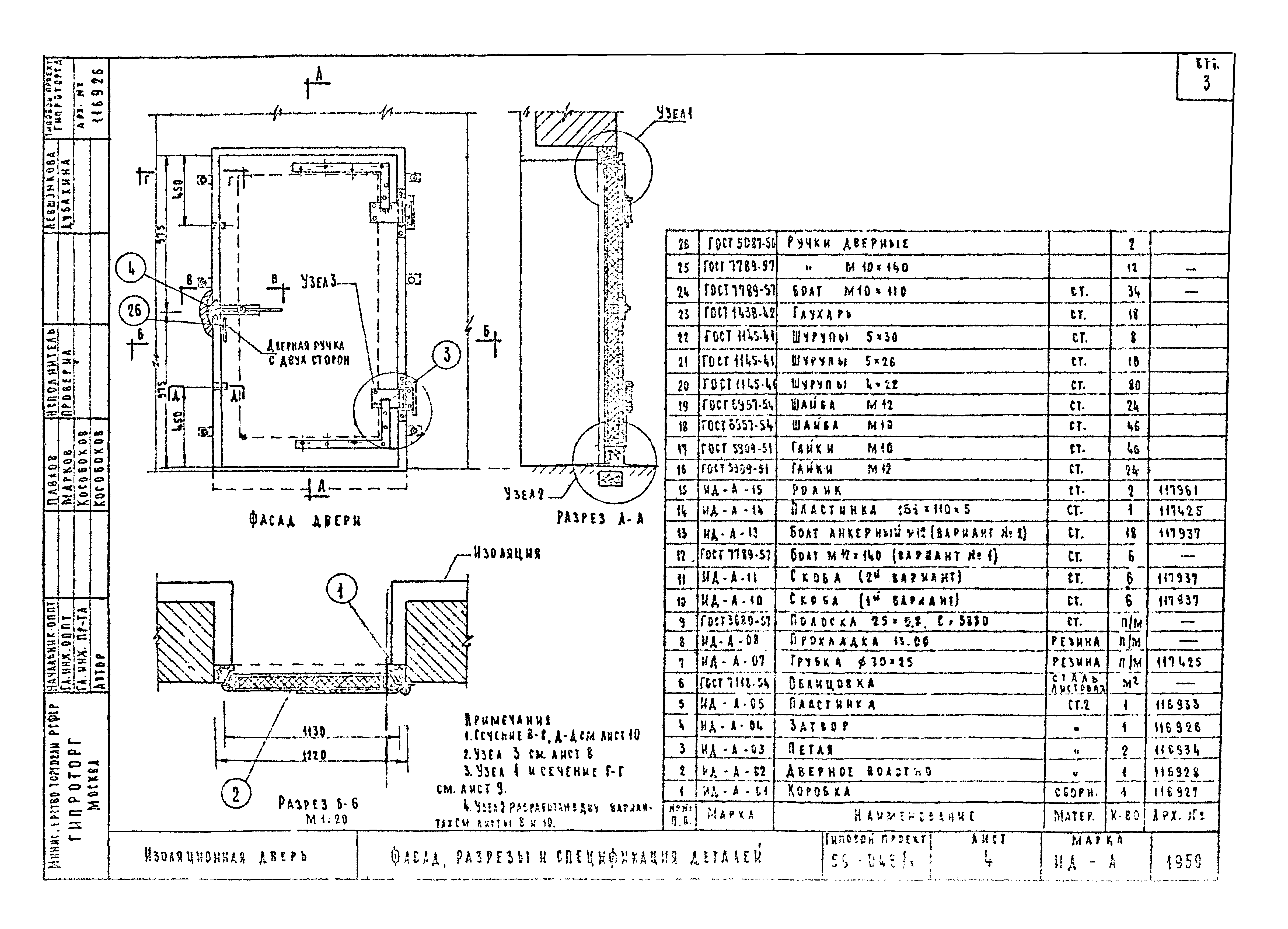
Скачать Типовой проект 59-046/1 Изоляционные двери для холодильных камер ИД-А. Рабочие чертежиДата актуализации: 10.08.2017 Типовой проект 59-046/1
Изоляционные двери для холодильных камер ИД-А. Рабочие чертежиОбозначение: | Типовой проект 59-046/1 | Обозначение англ: | 59-046/1 | Статус: | не действует | Название рус.: | Изоляционные двери для холодильных камер ИД-А. Рабочие чертежи | Дата добавления в базу: | 01.09.2013 | Дата актуализации: | 05.05.2017 | Разработан: | Гипроторг
| Утверждён: | 01.01.1959 Министерство торговли РСФСР
| Расположен в: |
|
                     
|